售楼处电话:400-936-9938(已认证)

内环内 真静安
「信达信安里」
源起静安寺 起笔南京西路
建面约280-540㎡风貌别墅
均价19.98万/㎡
总价约5686万-1.1亿
私家花园庭院
独门独院、围合天地、连院宽厅
世界尽藏一隅
高附赠率别墅空间
无柱、无廊、大落地窗设计
老静安内环内的稀缺臻品
里献全球名宅隐贵之所

风貌别墅,堪称上海居住文明的瑰宝与时代名片。它不仅是居所,更是历史、土地与未来世代之间的一场深刻对话。
这些建筑往往占据着上海不可再生的核心地段,其价值远超越土地本身。

它们承载着城市的文化记忆与历史文脉。从石库门里弄的肌理,到红砖青砖的岁月痕迹,从Art Deco的装饰线条,到老虎窗与双坡顶的天际轮廓,风貌别墅将海派文化的百年风华凝聚于一砖一瓦之中。
然而,如何既保留历史原真性,又契合当代高净值人群的生活需求?
抛开风貌别墅的地段、历史传承等外在因素,真正能让风貌别墅成为上海居住名片,或许符合现代居住的空间打造,才是风貌别墅最大的挑战。

颠覆风貌别墅空间
打造的项目出现了!
最近,老静安唯一在售的风貌别墅—— 信安里·忻园,样板房正式亮相了!
这刚一亮相,就成了市场焦点,艳惊四座!
去看过的人都发出了惊叹: 这是市场上从未有过的风貌别墅!

它不仅是建筑,更是一场关乎空间革命与历史再生的当代实践。
它的出现,意味着真正兼具现代化奢阔生活体验与深厚历史传承的风貌别墅,终于从概念走进了现实。
信安里·忻园,用两大颠覆性创新,重新定义了风貌别墅居住逻辑!
颠覆之一:
堪比大平层的超大面宽
彻底打破风貌别墅“窄开间”桎梏
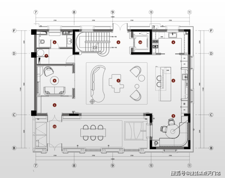
最长19.5米的超大宽厅!这是忻园给出的惊喜答案!
相比于市面上多数风貌产品仅能做到1.5-2开间,难以匹配当代高净值家庭对开阔感与通透性的要求,信安里·忻园,实现了真正意义上的 “空间跨越”!
其主力户型做到约360㎡建筑面积、4开间朝南、总体面宽约16米,堪比一线大平层的尺度感。

尤其值得一提的是建面约540㎡的楼王户型,更是以5开间朝南、约19.5米超大宽厅,刷新了市场对风貌别墅的空间认知。


创意展示空间 实景图
哪怕是建筑面积约280-290㎡的小面积,也做到了3开间朝南。
这在市面上极其少见!
更值得强调的是,这些空间内部极少承重结构柱,赋予业主极高的空间自由度,可根据家庭结构、社交需求、生活偏好进行灵活分隔与场景打造。

创意展示空间 实景图
这不仅是对风貌别墅的“空间解放”,更是对高端生活场景的重新定义。
从私人艺术沙龙、家庭聚会厅到儿童活动区,真正实现“一厅多用,世代同堂”。
颠覆之二:
最高7.2米的超高层高地下使用空间
实现“实际使用空间”的降维打击
以往的风貌别墅地下空间,往往层高有限,普遍仅5-6米,相对可实现的功能比较单一。
而信安里·忻园则一举将地下层高提升至7.2米,大大增加了空间使用率!别墅的地下空间下面是双层车库层,共三层的地下空间,防潮性能进一步提升。

创意展示空间 实景图
这不仅极大拓展了垂直维度的功能潜力,更在面积附赠层面实现了近乎“一比一”的震撼效果!
建面约280㎡户型,赠送面积可达约280㎡;建筑面积约460㎡的楼王,赠送面积甚至高达500多㎡。
这对开发商来说,大大增加了成本,所以这样的产品十分罕见。但是对于居住者来说,却是增加了地下空间的通透性,并且实现了更多的功能性。
它意味着生活想象力的彻底释放。业主可据此打造私人健身区、恒温酒窖、专业影音室、SPA疗愈空间、收藏画廊甚至子女兴趣工坊。

创意展示空间 实景图
这种“面积赋能”,本质上是对传统别墅价值模型的一次重构。
更多细节:
超越符号的文脉延续与现代生活融合
信安里·忻园的颠覆,并未以牺牲历史质感为代价。
相反,它更注重“原真性保留”与“现代生活融合”的平衡。
项目外立面并非简单模仿传统样式,而是通过对孟莎式屋顶、清水红砖外墙、传统石库门门头、老虎窗等元素的保留与转译,实现海派建筑语汇的当代延续。
它复刻了张爱玲笔下“常春藤公寓”的文艺肌理,将城市记忆转化为可感知、可触摸、可生活的日常场景。
文脉延续的同时,又融入更先进的打造之法。

创意展示空间 实景图
与其他风貌共用一堵分户墙不同的是,忻园的风貌别墅采用双层分户墙做法,每户之间没有共用墙。200mm厚度的墙体,中间还设置了100mm空腔,避免邻里的相互影响,带来舒适静谧的居住感受。

双层分户墙做法示意图
并且,忻园还是上海较早采用外墙PC板夹芯保温技术的风貌住宅,隔音的同时,保温防水性能更是优异。

外墙PC板夹芯保温做法示意图
为了呈现立面的精细化,项目更是运用了60多种定制砖,尽显品质感。在建筑的拐角处,延续现状并结合历史建筑中“拐弯抹角”的做法,把转角隅石优化为弧形。“上方下圆”的抹角设计,不仅体现了通行方便安全,也是一种谦和,更是一种传统美德,表达街坊邻里间和谐友善的氛围。

延续并优化转角隅石示意图

60多种定制砖示意图
这种既尊重历史原貌、又坚决创新空间功能的做法,使得忻园不仅是一处“住的空间”,更成为值得传承的“文化资产”。
样板间的开放,不仅是一次产品的亮相,更是一场关于 “如何做真正好的风貌别墅”的深刻对话,而这或许正是上海这座城市更新中最值得期待的声音。

风貌别墅大量上市
但信安里·忻园,却是真正的稀缺!
当风貌别墅在黄浦、虹口等区域以“批量化”姿态涌入市场,老静安的信安里·忻园,却以一种近乎“例外”的姿态,重新定义了“何谓稀缺”。
它凭借前所未见的产品优势未开先火、客户蓄水充足,但究其根本——它真正稀缺的,远不止是产品。
老静安绝版价值的稀缺!
首先是土地价值的稀缺。
老静安,全区仅7.62平方公里,是上海最小、最核心的行政区,没有之一。
这里是上海真正意义上的 “城市心脏”,更是无数高净值人群心目中的 “居住白月光”。

静安寺商圈实景图/图片来源于网络
据静安区2035单元规划,全域建筑规模中,商业、办公及公共服务设施占比极高,住宅用地稀缺到堪称 “挤出式供应”。

近10年来,新房供应量不超过1800套!而信安里·忻园所处的风貌别墅类别,更是这稀缺中的稀缺。近4年来唯一在售的风貌别墅,仅信安里·忻园!
土地之外,更有着“文化硬通货+资本密度”双加持
与黄浦区依赖外滩、新天地的商业标签不同,老静安的价值,建立在“文明半径”与“资本密度”的双重护城河之上。
忻园毗邻静安寺、张园、徐园,坐拥蔡元培旧居、毛泽东旧居等百年文脉,这不是简单的地段标签,而是真正可触摸、可感知的“文化硬通货”。
与此同时,南京西路商圈百亿级税收、恒隆广场顶级租金表现,构成强大的资本外溢效应,不断推升居住资产价值——这不仅是居住,更是一种对稀缺文明资源的占有。
忻园产品本身的绝版稀缺!
四年唯一,仅27席城心孤品!
老静安近四年唯一在售风貌别墅项目,仅推出27套。与此形成鲜明对比的是,黄浦区年风貌别墅供应量超百套,同质化竞争严重。
这种极端稀缺的控制,使忻园不仅是一套房子,更是一张进入静安核心圈层的“稀有资产凭证”。
性价比惊喜,击穿风貌别墅定价体系!

创意展示空间 实景图
在当下的顶豪市场,信安里·忻园呈现罕见的“价格窗口”特征。
横向对比同类产品,忻园均价19.98万/㎡,远低于黄浦风貌别墅25万/㎡、虹口24万/㎡、杨浦21万/㎡的水平。

示意图
纵向对比周边次新,毗邻的九龙仓静安壹号、嘉天汇等二手房价格已站稳20万/㎡+,且惜售严重。
再来看看最近的地价,静安寺最新地块楼板价已超16万/㎡,未来售价预期突破25万/㎡+,而忻园当前售价仍保持在19.98万/㎡!
当购房者还在外围区域以更高单价购置风貌别墅时,忻园提供了一种新的价值选择——
总价5000万级,即可入驻老静安核心区;
得房率极高,最高附赠面积最高达约500㎡,实际使用单价相当于仅10万/㎡左右;
产品力全面提升,7.2米地下空间、3-5开间朝南、无柱宽厅,遥遥领先市场普遍标准!
写在最后
这是一次悄然发生的产品革命!
信安里·忻园的出现,向市场传递出一个明确信号:风貌别墅的价值,不应止于地段与历史,更应回归至空间本身能否承载当代顶尖生活。
它用实打实的创新证明,传统与现代从不是对立选项。真正的产品力,来自于对历史的敬畏之心,以及对未来生活的远见。
信安里·忻园的稀缺,并不只是一种营销话术,而是一种深刻的资产属性。它位于不可再生的城市核心,承载文明记忆,具备强大的资本溢出效应,同时产品力颠覆、价格处于洼地。

实景图
在风貌别墅供应大潮中,多数项目只是“可替代的商品”,而忻园,却是真正的“稀缺资产”。它用27席的孤品体量证明,真正的顶豪,从不是批量生产的产物,而是土地、文明与产品力交织而成的时代作品。
如今窗口已然开启,能否把握,就取决于认知的深度与行动的速度!

售楼处电话:400-936-9938(已认证)
