象屿·天宸雅颂位于浦江中心,预计推出约89-230平米高层、叠墅、联排及会所+架空层。售楼处电话:400-1182-105。项目展厅自开放以来,人气爆棚。目前,前滩南以及浦锦街道新房一房难求,购房者可关注。
象屿·天宸雅颂
售楼处电话:400-1182-105
如有问题欢迎来电咨询,来电即可享受买房优惠!
预约来电尊享购房优惠,可预约案场内部销售人员,专业一对一热情服务,让您用专业眼光去买房。
楼盘项目全面介绍,本电话为开发商提供线上售楼处电话,楼盘项目全面介绍(包含楼盘简介,楼盘积分,房价,价格,楼盘地址,户型图,交通规划,备案价,项目配套,楼盘详情,售楼处电话,最新消息,最新详情,周边配套,最新进展等详情咨询)
象屿·天宸雅颂售楼处电话:400-1182-105
编辑
编辑
编辑

新浦江中心 6站前滩
象屿前滩南TOD
「象屿·天宸雅颂」
预计推出约89-230㎡高层/叠墅/联排
约2500㎡会所+约 3000㎡架空层
4/12正式开放样板间
高层为建面约89-139㎡3-4房
叠加建面约145-156㎡
联排建面约190-230㎡
象屿·天宸雅颂售楼处电话:400-1182-105
编辑
编辑
编辑

象屿·天宸雅颂售楼处电话:400-1182-105项目展厅自开放以来,吸引大批量准购房客户,现场人气爆棚!
编辑
编辑
编辑

编辑
编辑
编辑

编辑
编辑
编辑

编辑
编辑
编辑

象屿·天宸雅颂售楼处电话:400-1182-105如今,前滩南以及浦锦街道新房一房难求,频频触发积分,比如前滩南新房前滩公馆,三开三罄,并触发积分:
编辑
编辑
编辑

再比如浦锦街道新房大华星樾,去年开盘也同样三开三罄,并触发积分:
编辑
编辑
编辑

要知道,如今能够触发积分并且开盘当天能够售罄的项目早已凤毛麟角,足可见前滩南和浦锦街道板块对购房者的吸引力。
如今, 象屿•天宸雅颂的出现,将弥补前滩南一房难求的局面,前滩和浦锦街道的落榜生们,不妨来看看这个盘! 象屿·天宸雅颂售楼处电话:400-1182-105
事实上,该项目能够吸引如此之多购房者关注,以下优势极为明显:
1) 地段站位优:该盘位于8号线沈杜公路地铁站旁,算是 地铁上盖项目,距离该站点只有 约300米。8号线是上海城市中轴线,可达浦东前滩、世博、浦西老西门、人民广场等上海地标。
编辑
编辑
编辑

项目乘坐8号线到往人民广场用时只需约40分钟,地铁出行非常快捷!
同时, 该站点也可同站换乘浦江线,所以该盘地铁出行优势很大。
2) 附近或有越江隧道:去年年底,东川路越江隧道又有新动态,这也是闵行第三条越江隧道。大概方案或有两种走向: 东川路-先新路& 东川路-鲁南路!
编辑
编辑
编辑

无论如何走向, 这条隧道都在象屿•天宸雅颂南侧不远处象屿·天宸雅颂售楼处电话:400-1182-105,未来到往浦西,出行上将有更多选择,对于象屿•天宸雅颂来说也是一大利好。
3) 配套未来可期:在 该项目东侧,规划一处约15万方大型商业用地,未来落成也将成为区内商业中心,而该盘就在这幅商业用地隔壁,可直接享受未来商业配套利好。
与此同时 浦锦街道经过多年发展, 已积蓄了众多配套商业设施,如浦江城市生活广场、绿地乐和城以及浦江镇南部片区的万达广场等,距离该盘都在约4公里范围内。
4) 社区设计较好:项目 地面无车位, 全人车分流, 高层地块内还规划有风雨连廊以及大量的架空层, 同时还打有会所,这在该片区内是不可多得的品质住宅!
编辑
编辑
编辑

编辑
编辑
编辑

编辑
编辑
编辑

项目预计 首开建面约89-139㎡3-4房,象屿·天宸雅颂售楼处电话:400-1182-105尤其值得一提的是,项目户型采用“一生之宅”的理念设计,高层户型均设置可拓展空间,保证不同年龄段都可以进行不同功能调整。分户型来看:
这个建面约89㎡户型妥妥的性价比之选, 不到90㎡的建面实现3房一步到位,功能性上符合市场需求。
同时利用科学的收纳和S墙设计保障了室内空间的井井有条,又通过大量飘窗和阳台等提升尺度感,尤其是 厨房带飘窗你见过吗?不夸张的讲,这个 建面约107㎡刷新了我对百平三房的新认知。
编辑
编辑
编辑

首先是尺度,客厅的面宽被拉长到了约 4.7米,呈现了可成长的X空间,适配更长家庭周期;
其次是储藏 ,3S墙的设计,极大的扩容了家的储物角落,消减了业主生活的繁琐。
最后你数数有几个飘窗?足足5个飘窗,3个卧室2个卫生间全部“扩容”,尤其是 主卧、主卫双270°全景飘窗的设计前所未见,未来窗外郊野公园的胜境将一览无余。
据悉该户型或将申请专利,我认为实至名归!项目建面约128㎡4房同样出彩。
编辑
编辑
编辑

延续3S墙和双270°全景双舱亮点的同时,尺度感极大提升, 南向四开间,保证了更充沛的阳光。
客餐厅+超大尺度阳台贯穿南北,进门视野无遮挡,大宅气度油然而生!项目建面约139㎡4房则是集大成的终极改善户型。
编辑
编辑
编辑

该户型是 独立电梯入户,保证了业主的私密性和尊崇感!
不止 是四开间朝南,更是大宽厅设计,采光无敌。
飘窗数量来到了惊人的 7个:4个房间、2个卫生间、还有厨房,仅飘窗带来的灵动空间就秒杀同面积段其他产品,要知道这个户型还配备了超大尺度的阳台!项目高层户型硬核,装修更硬核!
编辑
编辑
编辑

据销售人员透露,大件方面,项目 中央空调/地暖两联供、新风系统一应俱全。
厨房方面,除了灶具、吸油烟机等常规配置,还将加配 蒸烤一体机、洗碗机、冰箱和厨房凉霸,全方位提升便捷性和品质感。象屿·天宸雅颂售楼处电话:400-1182-105
卫生间方面,项目洗脸盆、座便器、淋浴龙头或直接上豪宅专属 唯宝品牌(或同等档次品牌)。
从选材、选牌到施工工艺,项目装修每个环节都非常考究, 呈现的居住品质足以媲美其他市区千万级豪宅!
另外,项目使用了 智能化系统,从社区到单元门和入户整体的无接触归家,单元门自动呼梯到户内装标配置的智能化系统,为业主带来全方位的科技便捷生活!
编辑
编辑
编辑

编辑
编辑
编辑

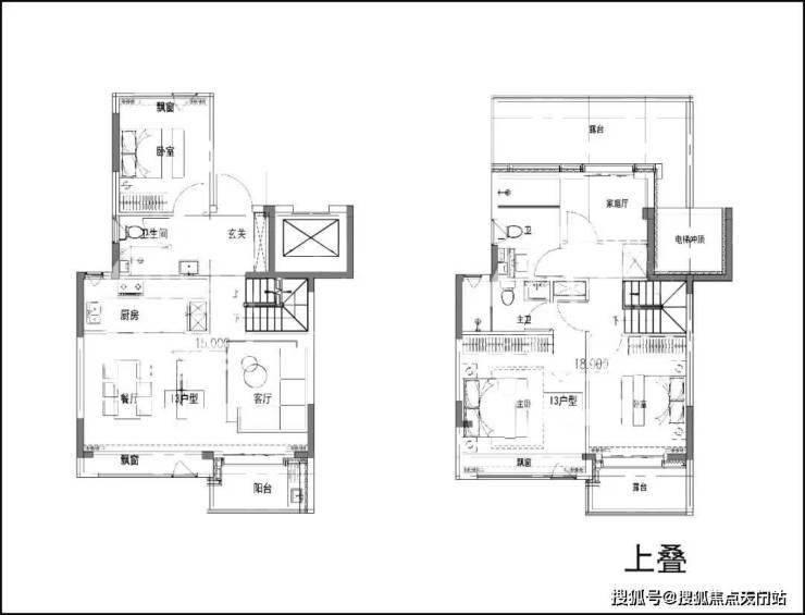
叠墅户型图如下:(过程稿,以开发商发布为准)
编辑
编辑
编辑

编辑
编辑
编辑

编辑
编辑
编辑

基本信息:
【开发商】象屿地产
【项目区位】一脉前滩·8号线枢纽
【占地面积】约69493㎡
【地上建筑面积】约14.9万㎡
【产品类别】高层、叠加、联排
【设计风格】海派+宋式美学
【总户数】约1254套(可售约1140套)
【容积率】01-02、01-03地块:2.4 | 03-02地块:1.2
【绿地率】约35%
【装修标准】集采价格不低于3000元/㎡
【车位比】01-02、01-03地块约1:13 | 03-02地块约1:2
01
大体量供应
高层&别墅产品均有
闵行浦江镇地铁8号线沈杜公路西侧—— 象屿·天宸雅颂售楼处电话:400-1182-105【象屿•天宸雅颂】3幅宅地正式公示设计方案,总建筑面积约14.9万方,未来 预计将有约1254套住宅供应。
编辑
编辑
编辑

象屿•天宸雅颂项目作为新浦江中心首发项目 象屿·天宸雅颂售楼处电话:400-1182-105,将 主动嵌入到新浦江中心的规划与建设中,打造灵感与森态共栖、快链与漫步一体、烟火与精致并蓄、艺术与人文浸润的PARK TOD样板。
外立面采用精致 铝板装饰+ 通透大窗的美学立面设计,打造 弧面窄框艺术之境。
编辑
编辑
编辑

园林方面将围绕中央景观,以 现代艺术手法,打造 森林岛屿景观。内部设置 特色水景,串联不同节点。同时以树木、水系与局部连廊体系融合,共同组建起社区与居所之间的联通介质。
编辑
编辑
编辑

项目还打造 约2500平会所, 涵盖泳池、健身房、童玩区、瑜伽室、水吧区、私宴厅等高端设施。
社区还有 约3000平架空层,打造全龄共享的生活志趣。
编辑
编辑
编辑

具体规划指标如下:
象屿•天宸雅颂位于闵行浦江镇锦浦街道象屿·天宸雅颂售楼处电话:400-1182-105,8号线与浦江线沈杜公路站的西边。地块西侧就是浦江郊野公园,东侧则是保留的商办用地, 未来或将围绕地铁站打造TOD综合体。
编辑
编辑
编辑

编辑
编辑
编辑

地块信息
01-03:出让面积25684.46m²,容积率2.4
01-02:出让面积22014.96m²,容积率2.4
03-02:出让面积21793.14m²,容积率1.2
总建筑面积:140630.376m²
地块四至
01-03:东至南官路,南至沈杜公路,西至大寨河,北至昌林路
01-02:东至南官路,南至悦亭路,西至大寨河,北至昌林路
03-02:东至浦星公路,南至姚家浜,西至大寨河,北至沈杜公路
编辑
编辑
编辑

01-02(最北面)规划8幢楼,总高17-18层,除了南面靠马路的二幢楼外,其余一楼采用架空层,南北楼间距30米。地块内全部为商品房。
规划可售住宅约524套,将推出建面约89-128㎡3-4房。
编辑
编辑
编辑

编辑
编辑
编辑

01-03(中间),规划10幢楼,其中一幢为保障房,总高17-18-20层,小区中心位置的商品一楼为架空层,南北楼间距30米。
规划可售住宅约472套,将推出建面约89-139㎡3-4房。
01-03地块规划有下沉式庭院,地下会所,该地块距离地铁站也更近一些!
编辑
编辑
编辑

编辑
编辑
编辑

03-02(最南面),规划13幢总高3-4-7层低密度住宅,3层(联排别墅)总高10米,4层(上下叠加)总高13米,7层(平层洋房)总高24米,南北楼间距12-15米。
该地块将推出叠墅以及联排产品,共计约182套!
编辑
编辑
编辑

象屿·天宸雅颂
售楼处电话:400-1182-105
如有问题欢迎来电咨询,来电即可享受买房优惠!
预约来电尊享购房优惠,可预约案场内部销售人员,专业一对一热情服务,让您用专业眼光去买房。
楼盘项目全面介绍,本电话为开发商提供线上售楼处电话,楼盘项目全面介绍(包含楼盘简介,楼盘积分,房价,价格,楼盘地址,户型图,交通规划,备案价,项目配套,楼盘详情,售楼处电话,最新消息,最新详情,周边配套,最新进展等详情咨询)
象屿·天宸雅颂售楼处电话:400-1182-105
编辑
编辑
编辑

选房时需要考虑的几个关键因素包括地理位置、价格、生活环境、公共资源以及物业管理等。
1.地理位置:地理位置是选房的首要考虑因素。周边商业设施要充足,生活和出行方便。交通要发达,确保去哪里都很便捷。
2.价格:房价要适中,太贵的房子可能超出预算,而太便宜的房子可能存在问题。
3.生活环境:周边环境要舒适,避免嘈杂的噪音和污染。理想的居住环境应有绿树成荫、小河流水等自然景观。
4.公共资源:周边是否有幼儿园、学校、超市、便利店和菜市场等,这些设施能提高生活便利性和舒适度。
5.物业管理:好的物业管理能确保小区的安全、整洁和温馨,有助于房屋的保值增值。