浦东中房晶华公馆_口碑好_售楼部在哪_怎么样_多少钱一平
扫描到手机,新闻随时看
扫一扫,用手机看文章
更加方便分享给朋友
浦东中房晶华公馆
◆℡TEL:400-101-9071接通后输入520
◆网上售楼中心——欢迎来电咨询〢——匠心钜制恭迎品鉴!
◆----------- 欢迎来电预约尊享服务!给您一个满意温馨的家!
不限购!地铁上盖,通燃气
如有问题欢迎来电咨询,来电即可享受买房优惠!预约来电尊享内部优惠,
建面约235-298㎡送装修
均价7万/㎡,1600万起
每栋5层,每层层高4.4米
从窗外看出去遍览园林美景
宜居 宜商 宜投资
楼盘详情介绍
市中心大平层,怎是森林氧吧?

晶华公馆窗外实景
晶华公馆位于前滩附近
坐拥一片静谧园林
1
中房聘请专属英国室内设计师,
希望这里将成为适合年轻有为、优雅高知
都市菁英全家生活的住宅,
TA去过世界多地旅行,爱生活有品位,
在职场中游刃有余,
在闲暇时希望与全家轻松共处。
晶华公馆每栋5层,每层层高4.4米。
从窗外看出去遍览园林美景。
室内面积在220-300㎡之间多种选择,
满足各类人群需要,
想必热爱生活的高知哥哥姐姐们
已经将这里列入自己的理想私宅清单了!
02
听英国设计师
如何定义中房晶华公馆?
中房晶华公馆以
宽敞大平层及闹市中的静谧为特色,
设计风格根治于国际文化,
室内设计风格现代简约,
却融合本土润物细无声的细腻格调。
大面积使用悦目柔和色彩,
则为晶华带来柔美奢华的气质。
家具与装饰以简洁实用的现代设计为主,也不乏有分量的精致后现代单品,
优雅且不失个性。
03
乳白与豆蔻青的异想世界
整套房采用简约美式风格,
空间色调呈乳白色,
搭配时下最流行的豆蔻青相映衬,
浪漫温馨。
超高4.4米层高使美式吊顶成为可能,
更显贵族风范。
而为了增添都市洒脱氛围,
全屋软装更加入了现代元素。
上海浦东中房晶华公馆售楼处
售楼处电话:400-101-9071接通后输入520
玄关搭配了后现代亚克力全透明玄关桌,
也放置了简约时尚画作与之搭配,
增添国际都市感。
中厨与餐厅之间设计了
全透明无框玻璃隔断,
保留了大空间的通透,
也杜绝了中式油烟的侵扰。
罕见的是,中厨内特设双灶台,
厨师猛火灶台与家用煤气灶齐备,
为商务宴请做好准备,
像专业餐厅那样3分钟就出菜?
难不倒你!
(中厨及餐厅平面图)
04
每个人都不是一座孤岛
(配色为可选方案之一)
西厨提供大面积操作台,
想要Mojito还是Espresso都任你选择,通透的水吧桌角让操作台
像漂浮云端一样轻盈,
客厅至餐厅的动线顺畅,视野清晰。
现代人最注重空间的社交性,
每个人都不是一座孤岛,
晶华与你心有灵犀。
(配色为可选方案之一)
在客厅边三扇大大的窗户下,
是巧妙设计的迷你休闲区/洽谈区。
洁白的咖啡桌替主人
保存下这份柔软的阳光,
静静等待贵客的光临。
(客厅,休闲区及西厨水吧平面图)
05
天空之城
当客厅映入眼帘,相信你看得懂这惊喜。
只有超高层高才能容纳这样的空中阁楼,
悬浮阁楼被打造成儿童游戏房,
孩子们可以感受
仿佛在云端一般自由嬉戏的美妙体验。
全透明玻璃的存在给了他们安全,
也给了家长放心。
或者,不妨试试在云端办公?
想必也会是一种曼妙的体验。
不被打扰,却也不被忘记。
楼梯侧墙,现代感LED灯带体现了
美式古典灵魂与现代简约风的碰撞。
豆蔻青色的宽敞低矮的三级楼梯
邀请着人们席地而坐,感知大地的召唤。
以楼梯为主体设计的平台
足以容纳全家一齐团聚,
享受这奢侈的亲密。
(阁楼平面图)
但是还不够!
当你身边有了重要的人出现,
再多的注视都是不够的。
为了好好珍惜一起的时间,
共处的空间被设计得随处可见。
榻榻米和书架的设计是文青的最爱,
和谐地隐藏在走廊的空间内。
晶华的时间不一样,
晶华的时间在书柜里,在拥抱中,
在指缝间停滞了。
上海浦东中房晶华公馆售楼处
售楼处电话:400-101-9071接通后输入520
(配色为可选方案之一)
都市新贵的生活丰富多彩,
除了走廊的榻榻米书柜,
继续向前探索,
还有阅读区,健身区,
以及商务人士必备的书房
被设计在合适的地方。
(走廊,书房,健身房,阅读区平面图)
06
何以为家?
墙壁和天花板的线条装饰为主卧
带来更浓重的精致古典主义气息。
手工藤编的床板配上后现代透明床尾凳,
现实世界便有了复古浪漫的气息。
全透明的衣柜让阳光放肆地照射进主卫,
蔓延在整间屋子里,
华丽得像法国王室一般的光芒
在这里也留存了。
衣帽间是女主人的日记本,
拉上金色窗帘杆上的窗帘,
嘘。。。听她诉说自己的小秘密。
梳妆台的灯光亮起了,她又将为谁梳妆?
(配色为可选方案之一)
如果尊贵的客人更喜欢古典风淳朴设计,设计师也提供了不一样的选择。
不同的设计就好像
玫瑰的灿烂与百合的洁白一样,
闪耀着不一样的美。
(主卧平面图)
07
水中的小岛
主卧套卫也在色彩上平衡了冷与暖:
地面与桌面大面积地使用了
白灰交织的大理石,
而镜子边框、水龙头及五金选择金色,
干净明亮之间散发出古典韵味。
(配色为可选方案之一)
此为主卧套卫的其他配色选项。
金色圆镜的设计圆润可爱,
蕴含时下流行元素。
若你偏爱百合,我也有其芳华。
(配色为可选方案之一)
长辈卧室套卫也呈现出相同的精致美感。
乳白色定制橱柜与哑光五金
显得尊贵高级。
当你清晨以凉水扑面,一抬头,
窗外鸟语花香,满目晨光。
(长辈卧室及套卫平面图)
08
在上帝都偏爱的角落等你
大平层的空间内,
设计师藏起来了太多的
惊喜,秘密和美好待发现。
不如自己来亲眼捕捉?
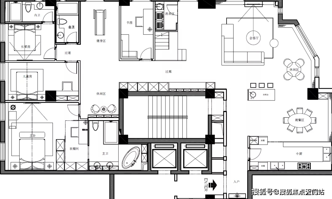
(套房完整平面图)

不限购!地铁上盖,通燃气
上海浦东中房晶华公馆售楼处
售楼处电话:400-101-9071接通后输入520
提前来电预约,可享内部房源折上折,当天下定可享砸金蛋活动,签约送礼品家电一台。
自驾看房,提前来电确定路线,可报销油费、过路费,班车免费接送。
声明:本文由入驻焦点开放平台的作者撰写,除焦点官方账号外,观点仅代表作者本人,不代表焦点立场。
