中粮北外滩壹号售楼处电话:400-118-3159(已认证) 营销中心热线:400-118-3159(欢迎致电) 售楼处预约电话:400-118-3159☎☎☎如有问题可来电咨询,预约销售专员,一对一为您服务!
中粮北外滩壹号售楼处电话:400-118-3159(已认证)
营销中心热线:400-118-3159(欢迎致电)
售楼处预约电话:400-118-3159☎☎☎如有问题可来电咨询,预约销售专员,一对一为您服务!
北外滩央企力作,中粮壹号系列「中粮北外滩壹号」入市!推出建面约185-228㎡4房,总价约2188万起,预约可看!

北外滩豪宅大平层
中粮“壹号”系全新力作
「中粮北外滩壹号」
推出建面约185-228㎡高层住宅
均价 约14.38万/㎡
目前“样板间”已开放
— 恭迎品鉴 —
中粮北外滩壹号售楼处电话:400-118-3159(已认证)
营销中心热线:400-118-3159(欢迎致电)
售楼处预约电话:400-118-3159☎☎☎如有问题可来电咨询,预约销售专员,一对一为您服务!
项目速览
开发商:项目由中粮集团和大悦城控股联合开发。
项目体量:总占地面积约2.38万㎡,总户数为208户
两类产品:
高层住宅: 共90套,主力户型为建面约185㎡和228㎡的天际大平层。
海派风貌别墅: 共118套,主力户型为建面约190㎡、210㎡和280㎡。
交付时间:预计2028年12月底。

有哪些亮点?
地段绝佳:位于北外滩“黄金三角”核心,步行可达黄浦江,距离外滩、陆家嘴都只要几站地铁,未来发展潜力被看好。
纯粹圈层: 这是一个“0商办、0自持、0保障房”的纯住宅社区,业主都是185㎡起的大平层或别墅住户,圈层非常统一,私密性好。
产品力在线: 作为央企中粮的“壹号系”产品,装修标准高,品牌如嘉格纳 、劳芬都用上了。 社区里还有一个下沉式的1800㎡顶奢会所,包含恒温泳池、私宴厅等,利用率很高。
户型设计合理: 全部是185-228㎡的四房两厅三卫,满足自住改善的需求。 228㎡的边套户型有270°环幕落地窗,高区视野能望向陆家嘴。
需要注意的“坑”
社区感薄弱: 整个社区只有1栋楼和几户别墅,楼栋独立,缺少传统小区的集中公区和邻里氛围。
视野和朝向有局限: 楼栋整体朝向西南,南向采光会比正南朝向的楼盘稍晚。
城市界面更新中:近几年周边都有风貌别墅项目会陆续动工,会有声音和粉尘。
交付时间较晚: 项目要到2028年底才交付,短期想住的话是个问题。
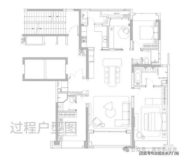
户型分布:

户型图:
185㎡/4房2厅3卫

228㎡/4房2厅3卫

228㎡样板间:











周边配套
交通配套: 项目周边拥有“四轨三隧两快速”立体交通网络,4号线大连路站、12号线提篮桥站、19号线提篮桥站(在建中);大连路隧道、新建路隧道、北横通道(快速辐射内环),叠加南北通道(规划中);内环高架、北横通道瞬息接驳。

商业配套: 商业地标环伺北外滩来福士(约600米)、瑞虹天地太阳宫(约350米)、白玉兰广场(约1公里),汇聚全球奢享;外滩万国建筑群(约2.4公里)、陆家嘴三件套(约2.2公里),于窗前定格经典天际线。
教育配套: 周边有虹口区继光高级中学(市重点)、长青学校(九年一贯制公办重点)、上海中学国际部(民办名校)等优质教育资源。
医疗配套: 附近有三甲新华医院、上海市第一人民医院、复旦大学红房子妇产科医院等为业主健康保驾护航!
北外滩豪宅大平层
中粮“壹号”系全新力作
「中粮北外滩壹号」
推出建面约185-228㎡高层住宅
均价 约14.38万/㎡
目前“样板间”已开放
— 恭迎品鉴 —
中粮北外滩壹号售楼处电话:400-118-3159(已认证)
营销中心热线:400-118-3159(欢迎致电)
售楼处预约电话:400-118-3159☎☎☎如有问题可来电咨询,预约销售专员,一对一为您服务!