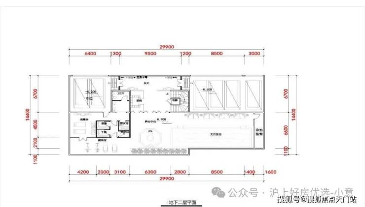
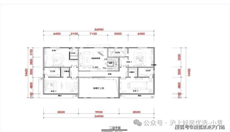
信达海上院子-上海 信达海上院子售楼处预约电话(信达海上院子售楼处电话)最新房价-小区环境-户型-停车位
扫描到手机,新闻随时看
扫一扫,用手机看文章
更加方便分享给朋友

声明:本文由入驻焦点开放平台的作者撰写,除焦点官方账号外,观点仅代表作者本人,不代表焦点立场。
