前滩南 最新户型 三林滨江南片区12单元 定名【前滩滨江道】陆家嘴开发 预计年内入市 欢迎咨询有优惠
扫描到手机,新闻随时看
扫一扫,用手机看文章
更加方便分享给朋友

如有问题欢迎来电咨询,专业一对一热情服务,让您用专业眼光去买房。
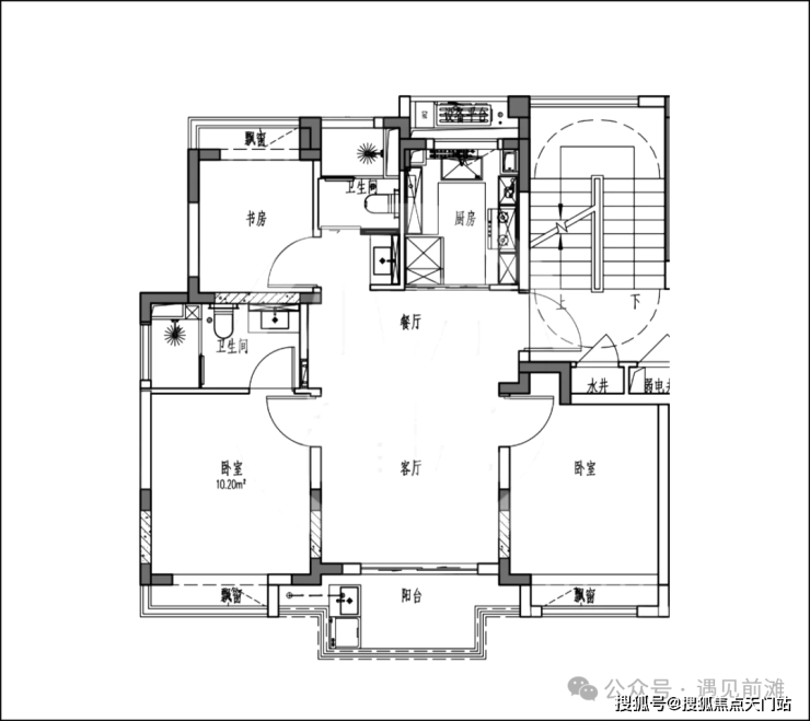
建面约99㎡ 3房2厅2卫:一梯两户,层高3.05米,经典飞机式户型;LDK一体化,南北直通,全卧飘窗,南向整体面宽约9.9米,其中客厅面宽约3.6米,主卧面宽约3.3米!

建面约89㎡ 3房2厅2卫:一梯两户,层高3.05米,相当于99竖厅户型的缩小版; 南北直通,全卧飘窗,南白整体面宽约9.75米,其中客厅面宽约3.55米,主卧面宽约3.2米!


项目位于浦东新区三林镇,东至皓川南路,南至浩昌路,西至皓明路,北至涓清路,紧临湾区水岸、轨交站点等标志性节点。规划总建筑面积15.5万平方米,建设周期3.5年。


项目规划总建筑面积15.5万平方米。
其中:
22-01地块容积率3.0,占地面积1.1万平方米,总建筑面积5万平方米,包括4栋住宅楼、2栋商业;
22-03地块容积率2.5,占地面积1.6万平方米,总建筑面积6.7万平方米,包括7栋住宅楼、2栋商业;
22-04地块容积率2.5,占地面积0.9万平方米,总建筑面积3.8万平方米,包括3栋住宅楼、2栋商业。
上海德茗置业有限公司三林滨江南片区12单元(22-01、22-03、22-04地块),是2023年陆家嘴集团继三林滨江15单元后收获的又一大地块组团中的住宅部分,距离三林滨江重点打造的共生未来湾区很近。

这个湾区最大的特色可能就是概念规划有一个类似翠湖太平桥公园那种户外戏水+人工湖的公共空间。






三林滨江南片区12单元项目按照陆家嘴集团对 “海派未来社区”的整体定位进行设计,包含了多层、中高层及高层住宅等不同住宅类别,区域定位高、交通成熟便利、配套资源丰富、产品可定制等优势,旨在打造高品质、绿色环保的居住环境。


如有问题欢迎来电咨询,专业一对一热情服务,让您用专业眼光去买房。
声明:本文由入驻焦点开放平台的作者撰写,除焦点官方账号外,观点仅代表作者本人,不代表焦点立场。
