2025#国贸海上原墅#首页网站|国贸海上原墅售楼处电话|国贸海上原墅在售户型|小区配套|最新价格|周边详情|容积率|楼盘详情

搜狐焦点天门站 2025-10-03 13:09:43
用手机看
扫描到手机,新闻随时看

扫一扫,用手机看文章
更加方便分享给朋友

国贸海上原墅 售楼处电话:400-1789-318(已认证) 国贸海上原墅营销中心热线:400-1789-318(欢迎致电) 国贸海上原墅售楼处预约电话:400-1789-318☎☎☎如有问题可来电咨询,一对一为您服务!

国贸海上原墅

售楼处电话:400-1789-318(已认证)

国贸海上原墅营销中心热线:400-1789-318(欢迎致电)

国贸海上原墅售楼处预约电话:400-1789-318☎☎☎如有问题可来电咨询,一对一为您服务!

编辑

看房需提前来电预约登记请务必致电与销售确认时间,预约客户可优先进入销售现场,避免空跑,感谢您的支持!

想住低容积率墅级社区的小伙伴,留给你们的时间真的不多了!

结合最近土地和新房供应两端的数据,我想跟大家分享2个结论:

第一、上海低密尤其是1.2以下容积率的宅地正在消失!

据统计,在2022年容积率1.2以下的宅地还有11块入市,2023年锐减至4块、2024年则只有3块,3年合计18块占比总市场仅约7%,稀缺属性爆表。

别以为18块能多,分散到上海16各区,可能数年都未必轮的到1块,而只要入市必然是天生的藏品级的置换塔尖的低密宝藏楼盘!

编辑

数据来自上海土地官网公示

第二、上海的联排别墅正在经历量跌价升!

低密宅地稀缺,别墅新房供应自然缩减。

在2022年上海还有2437套通勤时间可控的联排产品入市(排除崇明、金山、临港等极端偏远地区,下同),2023年锐减至1425套,2024年则只有1258套,占比新房供应总池子仅约2%,百里挑二的改善机遇!

编辑

数据来自网上房地产

极端的稀缺必然带来价格的飞升。

据网签数据统计,通勤可控的联排墅近3年价格猛涨,2024年均价超过12万,套均总价约2360万!意味着,你想圆梦墅居,买1套平均水准的联排,当前没有2千万级预算很难很难!

编辑

数据来自网上房地产

不过万物皆有裂缝,那是光透进来的地方,在形势如此严峻的背景下,四千年文脉胜地,松江广富林正对门,惊现容积率仅约1.2墅级社区——国贸海上原墅,三批次建面约122-201m²洋房/叠墅/联排热销中!

编辑

项目效果示意图(过程稿),仅供参考

平心而论,仅凭低密天赋,国贸海上原墅必然受到市场强烈关注。

但如果你深入了解项目的地段环境,你会发现它几乎满足了中国人居住的极致浪漫!可能是未来再也无法复刻的孤品之作!

编辑

项目位置示意图仅供参考

编辑

中国人骨子里的居住理想,总是与山水相依。

山,是沉稳的依靠,是千年文脉的沉淀;水,是灵动的韵律,是生生不息的流淌。国贸海上原墅,北倚佘山,南临广富林湖,恰好承载了这份流淌在血脉里的东方浪漫。

佘山的苍翠,是自然的屏障,更是历史的见证。漫步山间,仿佛能听见松涛低语,与古人隔空对话。而广富林的一泓碧水,则映照着千年文化的倒影,湖波荡漾间,是江南的诗意,也是现代生活的静谧。

在国贸海上原墅,推窗见山,临水而居,既有隐逸山林的超然,又不失繁华都市的便利。这不仅是居住的选择,更是一种生活哲学的回归——在快节奏的时代,依然能寻得一方山水,安放身心。

编辑

示意图,图片来源于网络

编辑

站在国贸海上原墅西望,是自然的诗意。 佘山国家森林公园的苍翠林海,辰山植物园的四季花事,广富林郊野公园的田园野趣——推窗见绿,漫步即景,呼吸间尽是草木芬芳。这里,是都市里的桃源,让心灵随时栖居在山水之间。

东向,是城市的温度。 印象城的时尚潮流、9号线地铁的便捷通达、万达广场的熙攘烟火,举步间便可拥抱繁华。咖啡香、书页声、霓虹闪烁,现代生活的丰盛与活力,在此触手可及。

在国贸海上原墅,一半公园,一半烟火,无需取舍,而是兼得。

编辑

示意图,图片来源于网络

编辑

众所周知,先有松江府,后有上海滩;先有广富林,后有松江府。广富林,是被誉为“上海之根”的文明发源地。

国贸海上原墅西侧一路之隔就是广富林文化遗址,脚下,是四千年的文明回响。 国贸海上原墅承袭这份文化基因,让建筑与文脉共生,为当代生活注入历史的深邃底蕴。

而项目的南面松江大学城7所高校如星辰汇聚,十余万师生在此激荡思想——这里是人才的熔炉,创新的策源地。更与G60科创走廊共振,人工智能、生物医药、量子科技等前沿产业在此蓬勃生长,科技之光正重塑时代的天际线。

这里是历史与未来的交汇点,成就了"古今同辉"的人居典范!

编辑

示意图,图片来源于网络

综上所述,一半佘山一半水、一半公园一半烟火、一半历史一半未来,国贸海上原墅独特的地段天赋,全上海再无二处!

而这样的地段带来的人居体验与收藏价值也难以复刻,没有错过的理由!

千载文脉随山转,一城烟火伴水生!

对望松江广富林,四千年溯源之作

容积率仅约1.2的新江南诗意墅区

国贸海上原墅

三批次少量房源热销中

下面我们详细来看项目的地段和产品:

编辑

五个新城闭眼冲龙头松江新城!三大中心交汇的核心地段,错过再无!

十四五规划明确,上海五个新城要加速发力,按照独立综合性节点城市的定位,打造成为上海未来发展具有活力的重要增长极和新的战略支点。眼光长远,看好上海的发展,资产配置五个新城无疑是明智之选!

那么五个新城应该选择谁呢?小编的建议是闭眼冲龙头松江新城!

五个新城里, 松江新城明显是发展更为醇熟的所在。这是松江新城明面上的优势,或许已经体现在了房价里。

但松江新城真正核心且独有的优势,即使是传统中央城区也难以做到,那就是一条完整的高端人才生态链!

编辑

示意图,图片来源于网络

地段发展的本质是高端人口的导入,导入的媒介主要是产业。但大多数产城融合的案例表现出的结果却是:留的住产业,留不住人,沦为传统中央城区的“潮汐卫星城”。但你看产学研深度融合的松江新城。

①松江新城本身产业强盛:长三角科创策源地G60科创走廊集聚了约40多家世界500强,占上海工业产值近10%。吸引了腾讯ai、复宏汉霖生物医药、海尔智谷、上海超硅等千百亿级项目入驻。(来源上海松江)

②松江新城自身有人才储备:包含华东政法、东华大学、上海外国语等众多高校的松江大学城,能为松江新城产业源源不断的提供新鲜血液。

③松江新城的繁华留得住人:松江新城配套成熟、交通便捷、环境优美,传统教育强区背景,加上大学城及其直管中小学教育资源,新城学府氛围浓郁,自然成为人才们的置业优选。

从高校学生到产业骨干,再到松江居民。松江新城这条完整的高端人才生态链能为板块提供源源不断的生机与活力,这比任何规划都更有说服力!也是当下时代立于不败之地的资产配置胜地!

编辑

示意图,图片来源于网络

当然有人会问,松江新城那么大,哪里更值得买?

答案很简单,你看松江最重要的3个中心,文脉中心广富林、文化中心大学城、商业中心印象城的交汇之处在哪里?

就在国贸海上原墅!这里是整个松江新城未来不会再有的塔尖地段,对于它的密度要求、建筑要求、品质要求是极高的,这点我们后文详细来说。

编辑

项目位置示意图仅供参考

也正是因为占据三大中心的交汇点,国贸海上原墅能享受的高能级配套,比市区动辄十几万的顶豪还要诱人!

商业方面,项目周边涵盖了约60万方(数据来源:上海松江)综合性商业集群——松江万达、开元地中海、五龙广场、马利来广场......还有地标性商业松江印象城一期!更有印象城二期(待建成),一期+二期总商业体量将高达约40万方!

广富林的教育资源也相当丰富,项目周边落座了松江大学城、上海外国语大学松江外国语学校、上海外国语大学附属外国语学校松江云间中学、上海实验学校松江新城分校(规划中),还有华东政法附属学校、上师大附属学校、东华大学附属学校等丰富的教育资源。(注:本资料中学校信息仅作介绍不做入学承诺,项目对口学校最终以教育部门划分为准。)

医疗方面,项目附近有上海市第一人民医院南院,为三甲综合性医院,以及养志康复医院。

编辑

项目位置示意图仅供参考

如果想通勤市区,项目东侧设有松江T2有轨电车广富林路站,仅需2站既可到达9号线松江大学城站,快速到达七宝、漕河泾、徐家汇等知名商圈。

未来在七宝还可以换乘机场联络线和嘉闵线(在建),迅达虹桥国际枢纽、浦东国际机场、闵行莘庄、浦东三林等区域。

编辑

便捷的交通和繁华的配套,让住在国贸海上原墅的业主生活品质与住在主城区无异。但松江得天独厚的生态优势是主城区无法比拟的

项目西侧一路之隔就是广富林文化遗址、广富林郊野公园、直线距离约1km+是辰山植物园,北面直线距离约3km是佘山国家森林公园、月湖雕塑公园等。

人人欣羡的诗和远方、都市快节奏上班族向往的绿色自然,成为了国贸海上原墅业主生活的日常美好!

编辑

示意图,图片来源于网络

双国企联袂打造,容积率仅约1.2广富林水岸墅区!

诚如前文所言,国贸海上原墅的地段天赋难以复刻,放眼整个上海都难逢对手。璞玉必须精雕细琢,所以对于品质的苛刻要求是必然!

幸而,项目遇到了深耕松江的2大国企,联手打造!

松江交投自不用说,松江本土深耕的国企,从松江枢纽站、有轨电车延伸段、到开发城市大型地产项目,始终与城市发展浪潮同频!

国贸地产是世界500强企业国贸控股集团核心成员企业,已在松江深耕超过10年,成功开发了包括国贸海屿佘山、国贸梧桐原、国贸余山原墅等高端住宅产品在内10个标杆作品,深受高端圈层的追捧。如今强强联手必然超越以往,再立标杆!

项目没有采取国贸的标准产品线,而是因地制宜融入广富林文脉,塑造全新的“新江南学院派”风格建筑。

编辑

项目效果示意图(过程稿),仅供参考

外立面方面,项目汲取广富林文化精髓再造东方屋宇,采用渐暖色石材、银灰色及香槟色铝板和涂料的组合,带来厚重与轻盈的平衡,在彰显文化豪宅的同时又包含国际风骨,整体呈现诗意东方之美。

编辑

社区景观方面,项目以 "富林风华,十景多花园"为核心理念,通过现代设计语言重构《富林十景》的山水意象,将 "山、水、茶、酒、舟、市" 等江南文化符号有机融入空间序列,营造 "一步一景,移步异景" 的沉浸式归家体验。

编辑

所谓“无会所,不豪宅”。

高阶会所是圈层进阶的社交场,更是分享志趣和品味的绝佳之处。然而,别说外环外新房,即使是大部分市区项目,也鲜有带高阶会所的;极个别有会所的项目,总价也在3000万级,上车门槛高不可攀。

国贸海上原墅作为广富林溯源之作,打造诗意会所空间,包含泳池、咖啡厅、私宴厅、下沉庭院、健身房等功能。并且引入黑松、山石、景墙、草坪等人文自然资源,呈现一处充满国风艺术感的社交场!

编辑

编辑

项目效果示意图(过程稿),仅供参考

产品方面,项目的容积率只有1.2,洋房包围在外围,其次是叠加,联排在社区中心位置,整体低密氛围的同时,形成错落有致的层次感。

编辑

项目效果示意图(过程稿),仅供参考

具体来看户型:

洋房方面,项目主推建面约108㎡3房和建面约124/145㎡4房。

全部是一梯两户,三开间朝南飞机户型,属于市面上更受欢迎的一类。

加上洋房天生的高得房率属性,尺度感和舒适度远超同价位竞品!

编辑

户型图过程稿,仅供参考

编辑

户型图过程稿,仅供参考

项目叠墅包含建面约141㎡上叠和建面约150㎡下叠.

而且比起市面上其他叠墅产品,国贸海上原墅为精装交付,为业主节约了大量的装修成本与时间。

且从户型图上看,横厅以及内庭院挑空等设计,户型设计更优秀且实际利用率更高。

编辑

户型图过程稿,仅供参考

编辑

户型图过程稿,仅供参考

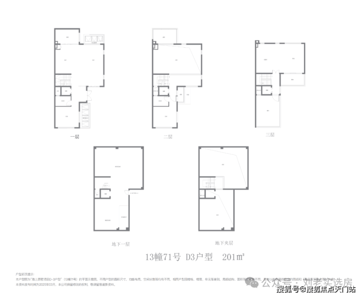
重点聊聊项目的联排产品,要知道在松江新城,叠加已经算珍惜物种,更不用说联排别墅。上一次联排别墅的供应,广富林的合生广富汇,已经在10年之前!

相比大平层“一层不变”的生活,上下5层的国贸海上原墅的联排别墅生活情境更立体,更个性化,更私密,更适配大家族多代人居住。

同时别墅户型的面宽、采光、收纳、通透、得房率等都做到尽善尽美,让家里的每一位成员都有更舒适的起居环境。

国贸海上原墅联排别墅设计约5.65米层高地下室,一层客厅挑空约6.45米,还设计了类似天井内庭院空间(不计入建筑面积),这些灵动空间都能随业主心意改造。并且三层配备双露台,听风细雨惬意非凡。

编辑

户型图过程稿,仅供参考

编辑

户型图过程稿,仅供参考

编辑

项目效果示意图(过程稿),仅供参考

综上所述,溯源而上,翻开历史,广富林站在时光里源远流长,而在此文脉之上,享依山傍水、生态与繁华兼得的墅级居住体验,无疑是错过不再有的时代置业机遇!藏品属性拉满国贸海上原墅,没有错过的理由!

千载文脉随山转,一城烟火伴水生!

对望松江广富林,四千年溯源之作

容积率仅约1.2的新江南诗意墅区

国贸海上原墅

三批次建面约122-201m²洋房/叠墅/联排

热销中

国贸海上原墅

售楼处电话:400-1789-318(已认证)

国贸海上原墅营销中心热线:400-1789-318(欢迎致电)

国贸海上原墅售楼处预约电话:400-1789-318☎☎☎如有问题可来电咨询,一对一为您服务!

编辑

看房需提前来电预约登记请务必致电与销售确认时间,预约客户可优先进入销售现场,避免空跑,感谢您的支持!

声明:本文由入驻焦点开放平台的作者撰写,除焦点官方账号外,观点仅代表作者本人,不代表焦点立场。