保利滨江和煦售楼处电话:400-8669-938

闵行颛桥第四代住宅
15号线地铁600米
保利·滨江和煦
建面约98-140㎡滨水慢奢住区
即将面市!
城市展厅已开放!
预计11月份入市!

产品方面分为小高层和洋房;
小高层面积段约 98㎡、105㎡、125㎡3-4房,共计约640套;
洋房面积段约为 130-140㎡左右4房,共计112套房源。
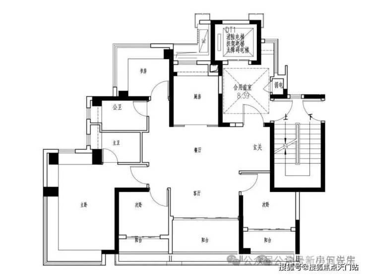
网传户型图如下
(仅供参考,以实际公示为准)

建面约98㎡3房

建面约125㎡4房

建面约140㎡4房
作为闵行首座践行保利「三好十五力」体系的“好房子”标杆作品,项目从规划到细节皆为人本考量。
稀缺双水岸:项目坐落于L型双滨水环绕的自然场域,真正实现让水岸重回生活
建筑与美学:融贯东方审美与现代简约的立面美学,立面采用精致铝线条(局部涂料)与现代质感玻璃打造,勾勒优雅轻盈的城市封面
沉浸式园林:规划“三轴一界一带”,融入玉兰花图腾、海派细节与荷花池等画景,营造可游可赏的森境家园。
全龄共享空间:煦-CLUB,是集泳池等多元空间于一体的生活服务中心,打造多重主题空间,可承载全龄段社交与生活场景。




据早前的规划显示,保利·滨江和煦所在的闵行区MHC10601单元01-22A-10地块,拟建15栋7-16F住宅,项目容积率2.0, 拟建4栋7F住宅,以及 11栋14-16F住宅;
项目配置了 下沉庭院,并且部分楼栋做了 首层架空。


在今年6月举行的上海五批次土拍中,保利发展以总价314026万竞得项目地块;
成交楼面价38775元/㎡,溢价率12.95%,住宅装修标准≥3000元/㎡。


地理位置方面,项目位于闵行颛桥地区中心位置,与15号线双柏路站直线距离约500米,周边生活氛围浓厚。
该地块下一站的元江路TOD项目,保利光合上城均价在6.5-6.99万/㎡;
西侧不远处的颛桥紫薇花园(左岸),最后一批入市价格在约7万/㎡,可供参考。
5公里成熟配套
演绎慢奢日常
生活半径内,一切所需举步即达,从容掌控工作与生活的平衡。
· 四轨环伺: 项目距15号线双柏路站距离约650米(数据来源:百度地图测距), 近临5号线、19号线(在建)、 23号线(在建),享便捷交通路网。

· 生态环绕:步行可达 颛桥剪纸文化公园与莲心公园,让自然绿意成为日常背景。
· 商业繁华:毗邻 颛桥万达广场、海梦一方等,满足全维度消费需求。
· 文教卫健全:周边汇聚 九年一贯制君莲学校、闵行区民办弘梅小学(蔷薇校区)、 上海星河湾双语学校、闵行区曹行中学、 闵行区常春藤幼儿园、上海私立蒙特梭利幼儿园等教育资源,书香萦绕,并坐享复旦大学附属中山医院闵行分院,以专属健康后盾,承托世家安怀。




保利滨江和煦售楼处电话:400-8669-938
