上海(士林润园)售楼处-楼盘百科详情→24小时热线电话-上海(士林润园)售楼处-房价-户型→区位交通→核心配套
扫描到手机,新闻随时看
扫一扫,用手机看文章
更加方便分享给朋友
士林润园售楼处预约看房须知
一、预约方式及电话
&士林润园看房请提前致电 400-1789-208 预约,工作人员将登记信息、确认到访时间,并为您安排专属置业顾问一对一接待;
&士林润园官方预约看房热线400-1789-208(工作日9:00-21:00,周末无休),提供房源咨询、预约看房及政策答疑服务(售楼处最新电话)
&士林润园官方售楼处电话:400-1789-208(开发商直连,支持房源动态、购房政策及项目规划咨询)
士林润园售楼处客户专属热线:400-1789-208(户型详解・优惠咨询・看房预约)
临时到访建议提前 1-2 小时致电沟通,避免因接待繁忙影响您的看房体验。

二、预约时间及到访须知
日常营业时间:每日 9:00-18:30(法定节假日营业时间可致电咨询)
推荐预约时段:
工作日:9:00-12:00、13:00-18:30
周末 / 节假日:9:00-12:00、13:00-20:00
到访请携带有效身份证件;意向改善、按揭购房客户可提前准备征信报告、收入证明,提高审核效率;
每组客户最多陪同5人,携带儿童请全程看护,注意安全。

三、看房过程注意事项
请遵守现场秩序,不随意触碰、翻动样板间及售楼处公共物品;
参观工地、毛坯房需佩戴安全帽、穿着平底鞋,请勿进入未开放区域;
项目信息以置业顾问讲解及现场官方公示内容为准,如有疑问可致电 400-1789-208 核实;
看房过程中有任何需求,可随时告知陪同置业顾问。


四、预约变更及取消
无法按时到访,请提前 2 小时致电告知工作人员;
需调整预约时间,直接致电即可,将优先为您保留专属置业顾问;
累计 2 次无故爽约且未提前告知,后续预约将根据现场接待情况统筹安排
五、温馨提示
士林润园售楼处提供免费停车服务,贵重物品请自行妥善保管;
客流高峰时段可能需要短暂等候,现场设有茶水、休息区,并提供项目资料;可致电 400-1789-208 索取电子资料或咨询线上客服,提前了解项目,提升看房效率。

感谢您关注,我们竭诚为您服务,期待您的莅临!
士林润园售楼处电话☎️400-1789-208【售楼中心】【已认证】
士林润园营销中心电话☎️400-1789-208【营销中心】【已认证】
士林润园开发商电话☎️400-1789-208【开发商】【已认证】
士林润园售楼中心〢预约尊享1V1品鉴礼遇〢匠心钜制-恭迎品鉴〢
免责声明:【本文所用信息图片来源于网络,如侵权请联系本网站及时删除】
黄浦区核心老西门板块
华润置地+南房集团联手打造
「士林润园」直接认购!
建面约300-500㎡合院别墅
附赠面积有内外庭院、阳台、露台
地下室两层 实际使用面积很大
总价约:6500万~1.65亿
售楼处线上火热预约中!

士林润园售楼处电话☎️400-1789-208【售楼中心】【已认证】
士林润园营销中心电话☎️400-1789-208【营销中心】【已认证】
士林润园开发商电话☎️400-1789-208【开发商】【已认证】
士林润园售楼中心〢预约尊享1V1品鉴礼遇〢匠心钜制-恭迎品鉴〢
「士林润园」这个全新项目的遥远前一期姊妹盘——士林华苑一期其实是黄浦区豫园板块的一个2007年竣工的次新楼盘,由黄浦国资委旗下的南房集团开发打造,项目北面复兴东路一路之隔就是复地雅园和璞玉one。在黄浦区,南房集团的另外一个开发的典型住宅就是五坊园。

士林润园售楼处电话☎️400-1789-208【售楼中心】【已认证】
士林润园营销中心电话☎️400-1789-208【营销中心】【已认证】
士林润园开发商电话☎️400-1789-208【开发商】【已认证】
士林润园售楼中心〢预约尊享1V1品鉴礼遇〢匠心钜制-恭迎品鉴〢
士林华苑二期是老西门街道旧城改造项目,项目一期2007年竣工,二期在2021年7月发布了房屋征收补偿协议生效公告。2021年12月华润入股,项目由南房和华润共同联合开发!
士林润园售楼处电话☎️400-1789-208【售楼中心】【已认证】
士林润园营销中心电话☎️400-1789-208【营销中心】【已认证】
士林润园开发商电话☎️400-1789-208【开发商】【已认证】
士林润园售楼中心〢预约尊享1V1品鉴礼遇〢匠心钜制-恭迎品鉴〢

士林润园售楼处电话☎️400-1789-208【售楼中心】【已认证】
士林润园营销中心电话☎️400-1789-208【营销中心】【已认证】
士林润园开发商电话☎️400-1789-208【开发商】【已认证】
士林润园售楼中心〢预约尊享1V1品鉴礼遇〢匠心钜制-恭迎品鉴〢

士林润园售楼处电话☎️400-1789-208【售楼中心】【已认证】
士林润园营销中心电话☎️400-1789-208【营销中心】【已认证】
士林润园开发商电话☎️400-1789-208【开发商】【已认证】
士林润园售楼中心〢预约尊享1V1品鉴礼遇〢匠心钜制-恭迎品鉴〢
根据规划,士林华苑二期需要“落实风貌保护要求,深化地块布局和建筑方案设计,同步实施建设相关公共服务配套”。
士林润园售楼处电话☎️400-1789-208【售楼中心】【已认证】
士林润园营销中心电话☎️400-1789-208【营销中心】【已认证】
士林润园开发商电话☎️400-1789-208【开发商】【已认证】
士林润园售楼中心〢预约尊享1V1品鉴礼遇〢匠心钜制-恭迎品鉴〢
士林润园售楼处电话☎️400-1789-208【售楼中心】【已认证】
士林润园营销中心电话☎️400-1789-208【营销中心】【已认证】
士林润园开发商电话☎️400-1789-208【开发商】【已认证】
士林润园售楼中心〢预约尊享1V1品鉴礼遇〢匠心钜制-恭迎品鉴〢
【士林华苑】二期地块包含大量历史文化保护建筑,产品打造的是面积段约210-500㎡合院别墅,附赠面积有内外庭院、阳台、露台、地下室两层,实际使用面积很大,总价预约6200万到1.65亿。
首开28套风貌别墅,总价6000万元起,最贵突破亿元,首开即售罄,并且之后连续加推,依然热度不减,成为上海购房市场新热点。
士林润园售楼处电话☎️400-1789-208【售楼中心】【已认证】
士林润园营销中心电话☎️400-1789-208【营销中心】【已认证】
士林润园开发商电话☎️400-1789-208【开发商】【已认证】
士林润园售楼中心〢预约尊享1V1品鉴礼遇〢匠心钜制-恭迎品鉴〢
士林润园售楼处电话☎️400-1789-208【售楼中心】【已认证】
士林润园营销中心电话☎️400-1789-208【营销中心】【已认证】
士林润园开发商电话☎️400-1789-208【开发商】【已认证】
士林润园售楼中心〢预约尊享1V1品鉴礼遇〢匠心钜制-恭迎品鉴〢
再让我们看看周边全龄配套:项目位于黄浦区核心,左拥新天地、淮海中路,右抱陆家嘴,北倚人广、外滩,南侧是一路连缀的豪宅区。
士林润园售楼处电话☎️400-1789-208【售楼中心】【已认证】
士林润园营销中心电话☎️400-1789-208【营销中心】【已认证】
士林润园开发商电话☎️400-1789-208【开发商】【已认证】
士林润园售楼中心〢预约尊享1V1品鉴礼遇〢匠心钜制-恭迎品鉴〢

士林润园售楼处电话☎️400-1789-208【售楼中心】【已认证】
士林润园营销中心电话☎️400-1789-208【营销中心】【已认证】
士林润园开发商电话☎️400-1789-208【开发商】【已认证】
士林润园售楼中心〢预约尊享1V1品鉴礼遇〢匠心钜制-恭迎品鉴〢
顶尖商圈、潮流文艺街区,甚至上海地标们、未来城市封面都将是士林润园的生活场域。加上豫园这百年来传承的文化底蕴,仅看现有的地段价值,士林润园已足够吸引人。

从地段来说,位于内环内黄浦区的豫园板块,妥妥的城中核心,距离地铁站也不算远,在8/10号线老西门站和9号线小南门站之间。
士林润园售楼处电话☎️400-1789-208【售楼中心】【已认证】
士林润园营销中心电话☎️400-1789-208【营销中心】【已认证】
士林润园开发商电话☎️400-1789-208【开发商】【已认证】
士林润园售楼中心〢预约尊享1V1品鉴礼遇〢匠心钜制-恭迎品鉴〢

士林润园售楼处电话☎️400-1789-208【售楼中心】【已认证】
士林润园营销中心电话☎️400-1789-208【营销中心】【已认证】
士林润园开发商电话☎️400-1789-208【开发商】【已认证】
士林润园售楼中心〢预约尊享1V1品鉴礼遇〢匠心钜制-恭迎品鉴〢
士林润园售楼处电话☎️400-1789-208【售楼中心】【已认证】
士林润园营销中心电话☎️400-1789-208【营销中心】【已认证】
士林润园开发商电话☎️400-1789-208【开发商】【已认证】
士林润园售楼中心〢预约尊享1V1品鉴礼遇〢匠心钜制-恭迎品鉴〢
黄浦区核心老西门板块备受瞩目的【士林华苑】二期「士林润园」已售近60套!在售建面约300-500㎡合院别墅,附赠面积有内外庭院、阳台、露台;地下室两层 实际使用面积很大;总价约:6500万~1.65亿!士林润园地块包含大量历史文化保护建筑,将打造叠拼+合院的产品。
士林润园售楼处电话☎️400-1789-208【售楼中心】【已认证】
士林润园营销中心电话☎️400-1789-208【营销中心】【已认证】
士林润园开发商电话☎️400-1789-208【开发商】【已认证】
士林润园售楼中心〢预约尊享1V1品鉴礼遇〢匠心钜制-恭迎品鉴〢

士林润园售楼处电话☎️400-1789-208【售楼中心】【已认证】
士林润园营销中心电话☎️400-1789-208【营销中心】【已认证】
士林润园开发商电话☎️400-1789-208【开发商】【已认证】
士林润园售楼中心〢预约尊享1V1品鉴礼遇〢匠心钜制-恭迎品鉴〢
L型合院的效果图👇
士林润园售楼处电话☎️400-1789-208【售楼中心】【已认证】
士林润园营销中心电话☎️400-1789-208【营销中心】【已认证】
士林润园开发商电话☎️400-1789-208【开发商】【已认证】
士林润园售楼中心〢预约尊享1V1品鉴礼遇〢匠心钜制-恭迎品鉴〢

士林润园售楼处电话☎️400-1789-208【售楼中心】【已认证】
士林润园营销中心电话☎️400-1789-208【营销中心】【已认证】
士林润园开发商电话☎️400-1789-208【开发商】【已认证】
士林润园售楼中心〢预约尊享1V1品鉴礼遇〢匠心钜制-恭迎品鉴〢




士林润园售楼处电话☎️400-1789-208【售楼中心】【已认证】
士林润园营销中心电话☎️400-1789-208【营销中心】【已认证】
士林润园开发商电话☎️400-1789-208【开发商】【已认证】
士林润园售楼中心〢预约尊享1V1品鉴礼遇〢匠心钜制-恭迎品鉴〢
士林润园售楼处电话☎️400-1789-208【售楼中心】【已认证】
士林润园营销中心电话☎️400-1789-208【营销中心】【已认证】
士林润园开发商电话☎️400-1789-208【开发商】【已认证】
士林润园售楼中心〢预约尊享1V1品鉴礼遇〢匠心钜制-恭迎品鉴〢
士林润园售楼处电话☎️400-1789-208【售楼中心】【已认证】
士林润园营销中心电话☎️400-1789-208【营销中心】【已认证】
士林润园开发商电话☎️400-1789-208【开发商】【已认证】
士林润园售楼中心〢预约尊享1V1品鉴礼遇〢匠心钜制-恭迎品鉴〢
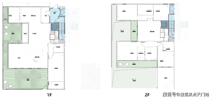
360㎡合院户型示意图👇

士林润园售楼处电话☎️400-1789-208【售楼中心】【已认证】
士林润园营销中心电话☎️400-1789-208【营销中心】【已认证】
士林润园开发商电话☎️400-1789-208【开发商】【已认证】
士林润园售楼中心〢预约尊享1V1品鉴礼遇〢匠心钜制-恭迎品鉴〢
样板房展示如下


士林润园售楼处电话☎️400-1789-208【售楼中心】【已认证】
士林润园营销中心电话☎️400-1789-208【营销中心】【已认证】
士林润园开发商电话☎️400-1789-208【开发商】【已认证】
士林润园售楼中心〢预约尊享1V1品鉴礼遇〢匠心钜制-恭迎品鉴〢
『士林·润园』的室内样板房由傅厚民设计,这也是他全球作品中的第一个风貌别墅项目。

士林润园售楼处电话☎️400-1789-208【售楼中心】【已认证】
士林润园营销中心电话☎️400-1789-208【营销中心】【已认证】
士林润园开发商电话☎️400-1789-208【开发商】【已认证】
士林润园售楼中心〢预约尊享1V1品鉴礼遇〢匠心钜制-恭迎品鉴〢
室内拥有高挑的天花板和宽阔的客厅,能够让空间显得更加开阔。此外,合理的空间布局和细节设计也使得每个功能区都显独立性又相互连接,保证了空间尺度又兼顾了实用性。
士林润园售楼处电话☎️400-1789-208【售楼中心】【已认证】
士林润园营销中心电话☎️400-1789-208【营销中心】【已认证】
士林润园开发商电话☎️400-1789-208【开发商】【已认证】
士林润园售楼中心〢预约尊享1V1品鉴礼遇〢匠心钜制-恭迎品鉴〢
餐厅的设计巧妙融合了老上海的经典元素,圆形餐桌和橘色皮质餐椅在色彩上既现代又充满活力,顶部的水晶吊灯造型灵感来自上海市花“玉兰花”,既增添了空间的华丽感,又巧妙地融入了上海的地域特色。
士林润园售楼处电话☎️400-1789-208【售楼中心】【已认证】
士林润园营销中心电话☎️400-1789-208【营销中心】【已认证】
士林润园开发商电话☎️400-1789-208【开发商】【已认证】
士林润园售楼中心〢预约尊享1V1品鉴礼遇〢匠心钜制-恭迎品鉴〢
士林润园售楼处电话☎️400-1789-208【售楼中心】【已认证】
士林润园营销中心电话☎️400-1789-208【营销中心】【已认证】
士林润园开发商电话☎️400-1789-208【开发商】【已认证】
士林润园售楼中心〢预约尊享1V1品鉴礼遇〢匠心钜制-恭迎品鉴〢
复古简约的家具和细节装饰,在空间中自然融入,同时避免过度繁复。这样的设计既保留了历史的厚重感,又契合现代人的生活需求。


士林润园售楼处电话☎️400-1789-208【售楼中心】【已认证】
士林润园营销中心电话☎️400-1789-208【营销中心】【已认证】
士林润园开发商电话☎️400-1789-208【开发商】【已认证】
士林润园售楼中心〢预约尊享1V1品鉴礼遇〢匠心钜制-恭迎品鉴〢


士林润园售楼处电话☎️400-1789-208【售楼中心】【已认证】
士林润园营销中心电话☎️400-1789-208【营销中心】【已认证】
士林润园开发商电话☎️400-1789-208【开发商】【已认证】
士林润园售楼中心〢预约尊享1V1品鉴礼遇〢匠心钜制-恭迎品鉴〢

从庭园看向别墅,保留的老山墙、砖楣和门头,再加上悬挑阳台和层层露台,这种传统风貌带给人一种重见历史的感慨,又有温馨、宁静的现代舒适感。
士林润园售楼处电话☎️400-1789-208【售楼中心】【已认证】
士林润园营销中心电话☎️400-1789-208【营销中心】【已认证】
士林润园开发商电话☎️400-1789-208【开发商】【已认证】
士林润园售楼中心〢预约尊享1V1品鉴礼遇〢匠心钜制-恭迎品鉴〢

风貌配套会所:士林润园的会所位于项目的核心区域,与整体园区的景观、居住区有良好的联系。
士林润园售楼处电话☎️400-1789-208【售楼中心】【已认证】
士林润园营销中心电话☎️400-1789-208【营销中心】【已认证】
士林润园开发商电话☎️400-1789-208【开发商】【已认证】
士林润园售楼中心〢预约尊享1V1品鉴礼遇〢匠心钜制-恭迎品鉴〢
会所也由傅厚民设计,室内通过诸多细节,展示连接过去与现在的对话。例如,特别设计了一条结合石库门拱门元素的通道,让人们在这里就能感受到一段传承的历史记忆。
士林润园售楼处电话☎️400-1789-208【售楼中心】【已认证】
士林润园营销中心电话☎️400-1789-208【营销中心】【已认证】
士林润园开发商电话☎️400-1789-208【开发商】【已认证】
士林润园售楼中心〢预约尊享1V1品鉴礼遇〢匠心钜制-恭迎品鉴〢
整个会所的布局开放、流畅,动静分明,让人一进门就能感受到宽敞与舒适。
休息区是一个充满私密感的空间,这里摆放着各种款式的复古式组合沙发,仿佛将人带回到了上海的旧时光。
士林润园售楼处电话☎️400-1789-208【售楼中心】【已认证】
士林润园营销中心电话☎️400-1789-208【营销中心】【已认证】
士林润园开发商电话☎️400-1789-208【开发商】【已认证】
士林润园售楼中心〢预约尊享1V1品鉴礼遇〢匠心钜制-恭迎品鉴〢
会所内的泳池上方做流畅且立体的吊顶线条,造型现代且富有层次感。这样的设计不仅提升了空间的视觉效果,更营造出一种轻松、悠闲的度假氛围。
士林润园售楼处电话☎️400-1789-208【售楼中心】【已认证】
士林润园营销中心电话☎️400-1789-208【营销中心】【已认证】
士林润园开发商电话☎️400-1789-208【开发商】【已认证】
士林润园售楼中心〢预约尊享1V1品鉴礼遇〢匠心钜制-恭迎品鉴〢
健身房的设计也同样充满了细节。黑框玻璃门的复古韵味,和现代健身空间的功能性做到了完美结合。
士林润园售楼处电话☎️400-1789-208【售楼中心】【已认证】
士林润园营销中心电话☎️400-1789-208【营销中心】【已认证】
士林润园开发商电话☎️400-1789-208【开发商】【已认证】
士林润园售楼中心〢预约尊享1V1品鉴礼遇〢匠心钜制-恭迎品鉴〢
车库也极具品质,色彩和风格都延续了海派的经典气质。
士林润园借鉴大族院落的设计,打造了一个完美融合历史与现代的院墅社区。103席合院沿袭“一宅一园”的旧时格局,并完整保留 53 处原址构件,建成一座“城市 DNA 库”。
老宅中的历史细节也巧妙融入现代设计,例如张家族宅的界石变成了墙角雕塑,胡氏墨厂的雕纹化作山石屏风。
除了宅院,士林润园还通过“润园八景”的设计,把上海深厚的历史和文化融入每一寸空间。拄颊映、文开园、亭桥街、棹湾处、云间诗、申之华、海上花、小桥头,这些景观设计基于上海历史文化中的典故和逸事。
士林润园售楼处电话☎️400-1789-208【售楼中心】【已认证】
士林润园营销中心电话☎️400-1789-208【营销中心】【已认证】
士林润园开发商电话☎️400-1789-208【开发商】【已认证】
士林润园售楼中心〢预约尊享1V1品鉴礼遇〢匠心钜制-恭迎品鉴〢
项目效果图如下
士林润园售楼处电话☎️400-1789-208【售楼中心】【已认证】
士林润园营销中心电话☎️400-1789-208【营销中心】【已认证】
士林润园开发商电话☎️400-1789-208【开发商】【已认证】
士林润园售楼中心〢预约尊享1V1品鉴礼遇〢匠心钜制-恭迎品鉴〢

士林润园售楼处电话☎️400-1789-208【售楼中心】【已认证】
士林润园营销中心电话☎️400-1789-208【营销中心】【已认证】
士林润园开发商电话☎️400-1789-208【开发商】【已认证】
士林润园售楼中心〢预约尊享1V1品鉴礼遇〢匠心钜制-恭迎品鉴〢

士林润园售楼处电话☎️400-1789-208【售楼中心】【已认证】
士林润园营销中心电话☎️400-1789-208【营销中心】【已认证】
士林润园开发商电话☎️400-1789-208【开发商】【已认证】
士林润园售楼中心〢预约尊享1V1品鉴礼遇〢匠心钜制-恭迎品鉴〢
士林润园售楼处电话☎️400-1789-208【售楼中心】【已认证】
士林润园营销中心电话☎️400-1789-208【营销中心】【已认证】
士林润园开发商电话☎️400-1789-208【开发商】【已认证】
士林润园售楼中心〢预约尊享1V1品鉴礼遇〢匠心钜制-恭迎品鉴〢
士林润园售楼处电话☎️400-1789-208【售楼中心】【已认证】
士林润园营销中心电话☎️400-1789-208【营销中心】【已认证】
士林润园开发商电话☎️400-1789-208【开发商】【已认证】
士林润园售楼中心〢预约尊享1V1品鉴礼遇〢匠心钜制-恭迎品鉴〢
士林润园属于黄浦区老西门街道旧城改造项目,项目一期于2007年竣工,项目北面复兴东路一路之隔就是【复地雅园】和【璞玉one】。

士林润园售楼处电话☎️400-1789-208【售楼中心】【已认证】
士林润园营销中心电话☎️400-1789-208【营销中心】【已认证】
士林润园开发商电话☎️400-1789-208【开发商】【已认证】
士林润园售楼中心〢预约尊享1V1品鉴礼遇〢匠心钜制-恭迎品鉴〢
从1291年元代设县,到2035年规划诞成中央活动区CAZ核芯样本。历时730余载老城厢,始终是上海城市的心脏所在。随着一江一河城市中心战略的帷幄与城市中芯的复苏与更新,更是将成为上海城市的“中芯之芯”。

项目占位于老城厢主轴中芯之上,左手历史,右手繁华,这里既代表上海历史的特质空间,又代表上海现代生活的品质空间。
籍由精研老城厢的历史与风华,活化城市深厚人文底蕴,存续街巷肌理与建筑特质,以当代设计审美对海派建筑风貌的匠心修缮,旨在传承城市文脉、打造卓越人居环境,定制理想人居空间,更将探索、兑现城市之心的恢弘愿景,以城市更新下的人文宅院巨著,予城市更新的未来,著立新的不朽。
士林润园售楼处电话☎️400-1789-208【售楼中心】【已认证】
士林润园营销中心电话☎️400-1789-208【营销中心】【已认证】
士林润园开发商电话☎️400-1789-208【开发商】【已认证】
士林润园售楼中心〢预约尊享1V1品鉴礼遇〢匠心钜制-恭迎品鉴〢

交通方面:周边交通网络成熟,总结起来就是“一桥三环四线五隧道”,其中四线就包括了8号线老西门站、10号线的豫园站、9号线的小南门站及14号线的豫园站,从项目坐地铁出发,畅达上海各个区域。
士林润园售楼处电话☎️400-1789-208【售楼中心】【已认证】
士林润园营销中心电话☎️400-1789-208【营销中心】【已认证】
士林润园开发商电话☎️400-1789-208【开发商】【已认证】
士林润园售楼中心〢预约尊享1V1品鉴礼遇〢匠心钜制-恭迎品鉴〢
老西门地铁站
商业方面:500米的范围内香港名都城、豫园商圈、复兴艺术中心,人民广场、新天地、外滩、南京路步行街都在2km范围,顶级商业环绕。
香港名都城
士林润园售楼处电话☎️400-1789-208【售楼中心】【已认证】
士林润园营销中心电话☎️400-1789-208【营销中心】【已认证】
士林润园开发商电话☎️400-1789-208【开发商】【已认证】
士林润园售楼中心〢预约尊享1V1品鉴礼遇〢匠心钜制-恭迎品鉴〢
教育方面:周边的公立学校有复兴东路三小、上海实验小学、蓬莱路二小等,初中有光明初级中学及市十、市八,康德及永昌两所九年一贯制的民办学校等。
蓬莱路二小
医疗方面:上海九院、瑞金医院、仁济医院西院、黄浦区中西医结合医院、曙光医院西院、复旦大学附属妇产科医院等众多享誉全国的医疗资源。
士林润园售楼处电话☎️400-1789-208【售楼中心】【已认证】
士林润园营销中心电话☎️400-1789-208【营销中心】【已认证】
士林润园开发商电话☎️400-1789-208【开发商】【已认证】
士林润园售楼中心〢预约尊享1V1品鉴礼遇〢匠心钜制-恭迎品鉴〢
复旦大学附属妇产科医院
黄浦核心老西门「士林润园」建面约300-500㎡合院别墅,总价6500万起!
士林润园售楼处电话☎️400-1789-208【售楼中心】【已认证】
士林润园营销中心电话☎️400-1789-208【营销中心】【已认证】
士林润园开发商电话☎️400-1789-208【开发商】【已认证】
士林润园售楼中心〢预约尊享1V1品鉴礼遇〢匠心钜制-恭迎品鉴〢

看房请务必提前致电销售确认时间,只有客户才能享受开发商提供的内部优惠以及专属的老客户推荐奖励!我们提供专业的一对一热情服务,助您以专业视角挑选理想的房产。
营业时间:日常营业时间为9:00-18:30,便于您提前规划到访行程,避免空跑。
预约方式:可提前拨打官方热线✅售楼处电话:400-1789-208✅︎✅︎✅,预约好专属销售及具体到访时间;预约时可同步告知意向户型、置业需求,我们将提前做好服务准备,减少您的等待
声明:本文由入驻焦点开放平台的作者撰写,除焦点官方账号外,观点仅代表作者本人,不代表焦点立场。
