大华梧桐樾官方网站-上海大华梧桐樾售楼处电话–楼盘详情-大华梧桐樾交房时间-地址-最新房价户型图-小区环境-楼盘详情-交房时间-周边配套-售楼处电话

搜狐焦点天门站 2026-01-17 13:20:00
用手机看
扫描到手机,新闻随时看

扫一扫,用手机看文章
更加方便分享给朋友

大华梧桐樾售楼处电话:400-8669-938

大华梧桐樾售楼处电话:400-8669-938

很多购房者发现,昔日的五大新城,如今的价格也变得不那么“友好”了!今年上海第二批次土拍中,嘉定新城诞生了新地王,F03A-4地块楼板价31850元/㎡,未来预计售价 6万+!

产品内卷时代,一匹黑马横空出世。2023-2025年,位于嘉定的「大华梧桐樾|越界」连续三年蝉联板块内 销冠, 占据榜一宝座!

数据来源:克而瑞

迄今为止,项目得到了超越1600+组客户的认可。它凭何能够这么火?

怀着这个问题,深入了解项目就会发现,它不仅是一处居所,更重塑上海人居的时代样本,在安亭的高端圈层之上,现房+学区+片区内更为珍稀的叠加产品,这就是最扎实的底气!

底气一:超能配套,持续升级。 双轨交汇一条黄金地铁线是产品不愁卖的密码,但在「大华梧桐樾|越界」,足足有两条。11号线与14号线西延伸,轻松通勤全上海。商业新增了嘉亭荟和汇智湾邻里中心,享一站式便捷购物。

底气二:拒绝画饼,实打实拥有强势的 教育 资源加持。就在今年,大华梧桐樾|越界 划入同济附中附小学区范围! 作为嘉定区教育的“金字招牌”,在“2024上海百强初中”的榜单中,同济附中位列嘉定区中学TOP1!直线300米的距离,是为孩子铺就的“黄金赛道”!

底气三:产品力登顶。项目12轮 品质升级“内卷”自己, 101项魔鬼细节极致较真,1000+日夜死磕细节,兑现品质交付的承诺, 实景呈现, 口碑封神!

底气四:占位虹桥北拓“咽喉”地段,一方面接收大虹桥总部经济辐射,一方面又是全球领先的汽车研发地,拥有广阔的成长空间, 潜力无限。

同时项目一路之隔,就是 3000亩城市绿肺, 生态资源“独占鳌头”,居住在此的生活配套,方方面面都很成熟!

很难想象在同价位段中,能找到这么全面的项目。二期越界新品,带来六大维度迭代,正在火热销售中,建面约91-101㎡的高层产品,总价300万起,更有 建面约96-136㎡的稀缺叠加产品,需480万起, 抓紧上车!

虹桥北 嘉定芯 同济附小旁

「大华·梧桐樾|越界」

双轨交汇 实景呈现

建面约91-101㎡精装高层

高层首期10万起

建面约96-136㎡的叠加

总价480万起

火热销售中!

1 实景呈现交付,有多震撼?

比起期房,实景 现房 的优势非常明显:所见即所得,即买即住。

1、无虑楼盘烂尾、延期收房等风险,这在当下的市场下,非常非常重要!

2、大华梧桐樾|越界的社区及房源均实景呈现,社区品质、建筑质量、房型体验一目了然,告别货不对板!

3、一般的期房,从购买到交付需要两年,甚至三年的等待期。这段时间,一方面要还房贷,一方面还要支付房租。现房可以省下大量的租金成本和时间成本!更重要的是现在购买,最快6月即可入住!

这一次,大华梧桐樾|越界以惊艳之姿,重新定义了品质交付的标准, 2000余名建设者千余个日夜打磨,以近乎苛刻的工艺标准,1000+日夜死磕细节,12轮品质升级“内卷”自己,101项魔鬼细节极致较真, 让置业者吃下一颗“定心丸”。

这座 约30万㎡ 的高尔夫城市墅区规划,是一座低密的当代高阶生活范本。越界新品做了 六大维度 的迭代——在建筑美学、园林景观、单元大堂、户型设计、户内精装、地库空间等六大方面 共计60+的细节 进行了全面升级。

1、建筑上,20米长、5米高的 星际酒店式超级门庭, 甄选石材、玫瑰金不锈钢和自然景石,独具归家仪式感。美学立面精致升级,提升了建筑的整体性和耐久性,建筑立面视觉更加协调、美观,叠墅单元入口铁艺栏杆升级为玻璃栏板!

2、社区景观上, “交付即享成熟园林” ,“宋风美学”+“四时园境”,成为大型圈粉现场。在这里, 中央景观客厅廊架、坐凳, 地面软硬比优化升级,可以感受到四季主题园境的浪漫。

增加大量 儿童游乐设施, 享受“鲲鹏乐园”主题儿童乐园、鲲鹏书院、老人颐乐空间等全龄共享的活力空间,塑胶软性地坪倒圆角处理,更安全。

宋式美学随处可见——现代建筑邂逅千年风雅,窗棂格栅写满诗意,每一处转角都是 打卡点!

3、入户大堂也做了 立面优化! 仿石砖分缝更加精细,立面铝板铝型材调整为不锈钢,提升了整体的质感和档次。同时,采用2.0 装修标准,更精致,顶部铝板顶改为玻璃顶,更明亮宽敞!细节上,立面格栅、玻璃顶、灯具、排水槽细节调整,使之更加精致、美观!

4、户型上, 空间拓宽赠送增多, 增设阳台,增加赠送面积,增加北向飘窗,增加地下夹层面积赠送,提升采光面面积,增加下叠庭院面积。

5、还有同价位段中难以见到的 星空顶车库, 归家仪式感满满,这次也全部安排上!入口星空顶增加灯带造型,更美观;墙面采用多彩漆,四周增加灯带,更明亮;落客区墙面瓷砖为嘉俊 3.0 标准化瓷砖,更精致!

无论是高层新品还是叠墅产品,都以更高的得房率、更好的 采光 通风和非凡的瞰景视野,满足了不同家庭的居住需求。

6、精装上,提高打造成本细 优化精装细节, 包括厨房橱柜台面优化,升级智能马桶盖、恒温龙头等等,贴心照顾业主的居住体验。

业主在这里还能享受丰富的社区生活。大华梧桐樾社群组织——梧桐荟旗下的跑步社、露营社、羽毛球社、手工社, 四大社团, 围炉煮茶,和邻里从容社交,获得一致好评。

这种“所见即所得”的购房体验,实景现房的稀缺性,加上大华梧桐樾|越界的价值背书和卓越的产品力,使其成为了市场上难得一见的“抢手货”,错过不再有!

2 480万级上车一套叠墅

大尺度&采光充裕的神级户型

俗话说,千金买房,万金买邻!高端居住区的形成不可复制,只能在长久的岁月里渐渐沉淀。大华梧桐樾|越界所在的板块,正是 “安亭的富人区”。

打开链家网不难发现,区域内的别墅项目动辄千万起步,两千万级的总价更是常态,居住体验绝对不是一般小区能够比较的。 高净值人群的集聚, 也汇集了更高端的资源,意味着圈层的跃升,让大华梧桐樾|越界“身价倍增”。

数据来源:链家

产品上,「大华梧桐樾|越界」周围被新开河、苏州河双河环绕,静谧水岸带来天然诗意与自然气息,项目以现代语言演绎海派文化底蕴,就此匠筑约30万方果岭低密住区。

精研出91-101㎡高层&96-136㎡的叠加“神户型”!居住在高层,高尔夫景观便可以一览无余, 户户皆有景, 四季皆有景,真的很震撼!

480万起,在南翔、嘉定新城也许只能买到一个紧凑型的小三房,但在这里,能够直接上车有天有地的叠加别墅!大尺度厅堂、星空露台、地下空间.......尺度进阶一步到位。

1

叠加产品

建面约137㎡下叠, 四房两厅三卫 全能格局,非常适合二娃家庭以及三代同堂。

下叠附带全功能的 地下室, 可以打造成百变储藏室、茶室、会客厅、多功能影厅等。

一层是会客区, 大尺度横厅, 可以打造客餐厅,采光条件优越,还配备了颐养房,方便家中老人居住。二层 双南大套房 +南向阔景飘窗+三卫的设计,空间层层递进,尊崇有序。

👇更多下叠户型图👇

上叠产品都是带有空中花园露台,日常聚餐、烧烤、开party等娱乐活动有大展拳脚的空间,同时客餐厅一体化+U型厨房空间+尊崇主卧套房,户型设计合理,格局方正。

👇全套上叠户型图👇

👇全套中叠户型图👇

2

高层产品

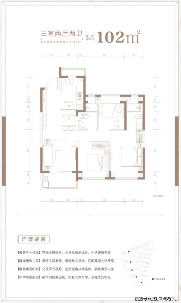
建面约102㎡3房2厅2卫户型,做到了 三开间朝南+双朝南卧室带飘窗+动静分离+卫生间干湿分离, 采光面拉到极致!是一个非常方正的户型。

客餐厅一体化,连接南向的大阳台,室内的通透度和尺度感拉升一个台阶! 2卫的设计 也很人性化,干湿分离,日常上班早高峰,不用排队等待洗漱。这个户型很好地控制了总价,非常适合三口之家或年轻的小夫妻居住!

300万级的价格买到堪比改善的优质低密全新盘——「大华·梧桐樾|越界」,绝对不能错过!

3 嘉定芯 同济附小旁

一路之隔就是约3000亩城市绿肺,

圈层成熟、生活氛围高端

嘉定,作为五大新城中最为宜居的地方,在过去十年间,人口增速约24.68%,稳居全上海第一。它的成功,一是离市区比较近,另外一个就是产业发达。

图源网络

安亭,作为中国汽车第一镇,是嘉定建设世界级汽车产业中心核心承载区、打造世界智能网联汽车创新高地的主战场,嘉定汽车“新四化”布局的重中之重。(信息来源上海市嘉定人民政府官网)

目前,安亭汽车产值已超3000亿元,占上海全市汽车总产值超1/3;汽车“新四化”相关总产值达900亿元;聚集各领域汽车产业链企业1240家;全镇共有汽车产业链从业人员约6.8万人。(信息来源组织人事报官方公众号2024年6月发布)

「大华梧桐樾|越界」,位于嘉定的核芯区位,与虹桥主城区核心距离也只有5km!

此刻正站在时代发展的风口之上。项目毗邻约3000亩城市绿肺—— 汽车博览公园和上海第二大高尔夫球场, 为居者打造了一座“天然氧吧”。

1200亩的汽车博览公园,相当于2个长风公园、4个中山公园的规模;一路之隔的1800亩高尔夫球场,更是为大华梧桐樾|越界增添了独特的“高尔夫墅区”属性,业主的日常生活注定会非常丰富,打球、散步、喝下午茶,与绿色相伴,与运动为邻。

示意图,仅供参考

同时,片区的交通也将迎来大跃升:以安亭北站、安亭西站为核心的安亭枢纽,是打通长三角一体化和虹桥国际开放枢纽的链接通道,在上海2035规划中,宝嘉线、嘉青松线即将启动,嘉安高速延展嘉定向东,与宝山互通。

交通上,项目 拥有11号线与14号线西延伸双线 地铁的加持, 梧桐社区班车 无缝衔接地铁11号线上海汽车城站、安亭站,而14号线西延伸已纳入规划并有望于“十五五”期间开建。

买在这里的业主,70%都是看中了优越的教育资源。 项目直线距离同济附小、附中约300米, 而且还是对口学区,教育方面无疑是得偿所愿。

商业上,嘉亭荟城市生活广场、安亭财富广场、三德广场、中信泰富万达广场、嘉实生活广场汇聚,完全满足日常生活购物所需。

总结一下:首先,大华梧桐樾|越界精装三房300万起,这个价格,无疑是上车错过再无的 历史机遇, 闭眼冲没有问题!

其次,对于自住客户来说,地铁通勤+强势的学区资源同时具备,本就可遇不可求。加上实景现房的优势,宋风雅苑的格调,实打实地能节省很多成本,规避货不对版的风险。

最后,项目坐拥安亭汽车城的产业和大虹桥的辐射利好,规划兑现后,整个板块的地段价值也会迎来质的飞跃!这已经是2025年上海 爆款 项目了,抓紧机会!

虹桥北 嘉定芯 同济附小旁

「大华·梧桐樾|越界」

双轨交汇 实景呈现

建面约91-101㎡精装高层

高层首期10万起

建面约96-136㎡的叠加

总价480万起

火热销售中!

大华梧桐樾售楼处电话:400-8669-938

声明:本文由入驻焦点开放平台的作者撰写,除焦点官方账号外,观点仅代表作者本人,不代表焦点立场。