天潼里(天潼里售楼处) - 销售中心 - 环境 - 户型 - 价格 - 地址 - 楼盘详情 - 配套 - 电话 - 交房时间 - 配套 - 电话 - 交房时间
扫描到手机,新闻随时看
扫一扫,用手机看文章
更加方便分享给朋友
⛩项目名称:「天潼里」二期
👑项目简介:虹口北外滩 高品质住宅
🗣最新动态:前期正在热销中
📍区域板块:虹口北外滩
🏠产品介绍:加推建面约408㎡洋房&247-330㎡叠加&520-700㎡合院
🏫周边学校:1公里左右,有7所幼儿园、5所小学、5所中学
🚇交通配套:附近有地铁2号线、10号线和12号线
🏥医疗配套:3公里左右,有7所三甲医院
🍃生态配套:2公里左右,有9座公园
1地段
项目位于虹口北外滩,毗邻外滩历史文化风貌区,距上海外白渡桥约300米,是黄浦江和苏州河“源流汇聚”之处。周边密布上海大厦、浦江饭店和俄罗斯领事馆等历史建筑,步行可达外滩源,对望“陆家嘴三件套”。
该地块是豪景出让给新湖,并由商业属性改为住宅,对面就是外滩豪景苑。地块东至吴淞路、南至天潼路、西至乍浦路、北至武昌路,旨在打造成有国际品质同时又有上海特质的高档住宅建筑。

交通方面,附近有地铁2号线、10号线和12号线,出行十分便捷。

教育方面,1公里左右,有7所幼儿园、5所小学、5所中学,教育资源丰富,文化氛围浓厚。
医疗方面,3公里左右,有7所三甲医院,为住户的健康生活保驾护航。
生活方面,2公里左右,有9座公园,完全可以满足老人的社交及娱乐需要。
该项目还可以步行至外滩,享受外滩的夜晚美景和顶级配套。
上海时尚新地标——外滩源,可以说是在项目门口。圆明园路上的真光大楼、兰心大楼、青年协会大楼等14幢历史保护建筑,都是人文底蕴深厚且不可复制的!
在保留原始风貌的前提下,外滩源将融入时尚现代元素,打造成多功能的高雅文化与时尚生活的中心。
当然,最值得关注的还是北外滩的政策规划。2020年2月20日公示了关于《虹口区北外滩街道控制详细规划修编(公示参与草案)》。规划要将北外滩建设具有全球资源配置能力和国际竞争力的顶级中央活动区!
根据规划,北外滩地区是黄浦江世界级滨水区的重要组成部分,将对标伦敦、纽约、东京等全球城市经验,综合区位条件及资源禀赋,建设成为:
1、与外滩和陆家嘴错位联动,居职相融、孵化创新思维的新时代顶级中央活动区;
2、汇聚现代化国际大都市核心发展要素的世界级会客厅闪亮的一幅画卷;
3、全球超大城市精细化管理的典型示范区!

2产品
项目由GOA大象设计操刀,汲取外滩西式古典建筑风格。以红砖为主材,复刻老石库门的浪漫风貌,力求打造为一处“新时代里弄住宅”。
示意图,仅供参考
材质上,选取的清水红砖外墙在19世纪中叶的上海,是时髦与洋派的代名词。
在砖的生产过程中,项目不计成本地增加了手工敲打环节,连接出大量带有圆润弧度的线条,结合六色混色砌筑手法,创造出丰富的墙面纹理,美感全面焕新,再一次著新百年外滩的美学叙事。
实拍图,仅供参考
工法上,不同于大多数风貌项目,「外滩天潼里」的清水红砖全都采用了干挂外墙工艺。这种做法即能避免了多年之后红砖脱落的可能性,也会有更好的隔热保温效果,让项目更契合当代生活需求。
实拍图,仅供参考
实拍图,仅供参考
在合院的景墙,采用了独特的干挂技法。夏日里阳光的照射下,会显出独特的光影效果;到了雨季,雨水从一块块凸起砖处淅淅沥沥蹚下,更是充满了美感。
石材也是外滩建筑的标志。「外滩天潼里」对于这种昂贵用材同样满级!项目团队跨越19200公里,采购了巴西的波多尔红石作为入户门仪的主要材料,通过工艺极为复杂的内凹式琢刻,呈现出奢华内敛的格调。
示意图,仅供参考
风貌平层的主体,源自巴西进口的紫点金麻石材。阳光照射之下,会有紫色光彩点缀于金色奢石之上,构建出一种恬静优雅的美感。
示意图,仅供参考
合院的门头拱券,选自保加利亚最高等级的沉香米黄石材。为了减少石材加工缝隙,项目不惜成本地选择了整石雕刻的工艺手法,最终呈现出犹如艺术珍品一般的高雅质感。
实拍图,仅供参考
景观方面,为了凸显艺术高定气质,「外滩天潼里」重现了莫奈《睡莲》与梵高《花园》两大大师代表作的生活场景,构造了隐居于外滩的独特体验。
梵高花园示意图,仅供参考
莫奈池塘示意图,仅供参考
会所方面,这个仅有120多户的超级豪宅,竟然做了个约3000㎡的私属会所!这个体量在整个上海风貌项目中都是首屈一指!
会所涵盖半标泳池、SPA、儿童乐园、健身、室内高尔夫、网球训练室、雪茄室、红酒室、私宴、德扑等,集萃一站式高阶生活服务空间礼遇,为业主营造丰盈的生活方式,触达精神共鸣。
精装方面,「外滩天潼里」选用了多款欧洲系的顶级品牌,厨电选择了GAGGENAU嘉格纳9件套,而且它的九件套选择的是嘉格纳高端400系列!再配上德国schueller旭勒橱柜、源自荷兰的Reginox荷兰皇冠水槽龙头等进口高端品牌。
二期的7层风貌平层仅有10套。它的户型与市面上的平层豪宅相比,已经是完全不在同一维度的物种,直接封神!
据爆料,得益于风貌平层建筑形态的先天优势,「外滩天潼里」二期风貌平层得房率做到惊人的86-87%!
近期将有入市的两个7000万级超高层项目,网传得房率仅有70-75%。这也意味着「天潼里」约400㎡风貌平层实际面积,与其他超高层近500㎡左右的户型是一样的。
而其他超高层为这增加的近百平面积,需要支付约1300-1900万的额外成本(以单价20万/㎡估算)。
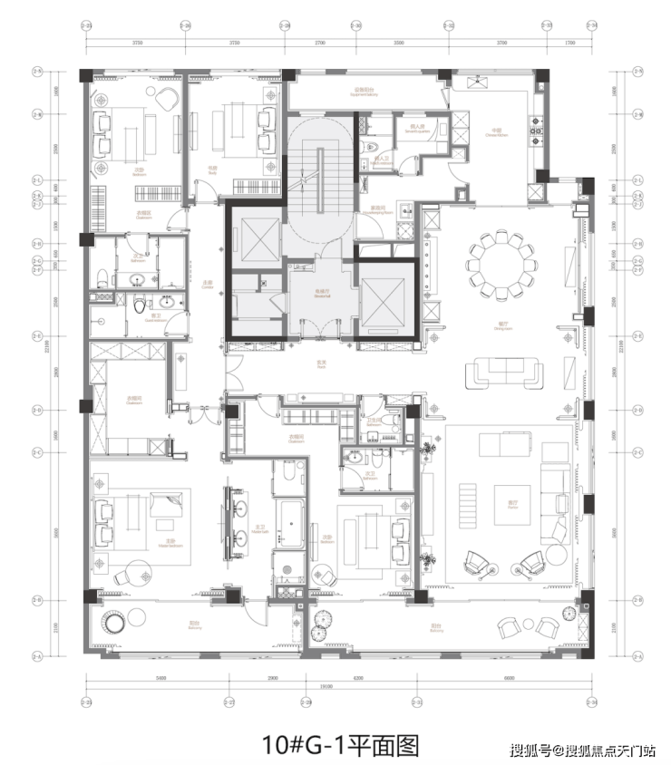
在此次首发公开的408㎡主力户型图上可以看到,它的南向面宽27米(太牛了,小编看到户型真是震住了,)做了足足6个南向开间!dream house,莫过于此。

户型图仅供参考,以实际发布为准

户型图仅供参考,以实际发布为准


户型图仅供参考,以实际发布为准
据爆料,此次二期风貌平层的样板房由召禾设计的CHRIS SHAO亲自设计,即将在近期公开。做为当今上海豪宅届当红头牌,效果令人期待。
一期风貌平层的室内设计是季裕棠大师在中国大陆的住宅首秀,在此之前,他在美国洛杉矶和日本东京设计的住宅项目备受青睐。从已经开放的样板间可以感受到,天潼198整个项目充满高级的私人定制感。
样板房实拍图,仅供参考
天潼里售楼处电话:400-118-3159(已认证)天潼里营销中心热线:400-118-3159(欢迎致电)天潼里售楼处预约电话:400-118-3159☎☎☎如有问题可来电咨询,预约销售专员,一对一为您服务!
声明:本文由入驻焦点开放平台的作者撰写,除焦点官方账号外,观点仅代表作者本人,不代表焦点立场。
