速来了解!2025 信达信安里楼盘详情,上海 信达信安里售楼处电话,深挖房价、户型,细探容积率与小区环境
扫描到手机,新闻随时看
扫一扫,用手机看文章
更加方便分享给朋友

如有问题欢迎来电咨询,专业一对一热情服务,让您用专业眼光去买房。

最新消息:老静安核心区,曹家渡板块【信达·信安里】推出127套建面约275-540㎡风貌别墅,均价19.98万/㎡ ,总价约5686万起!样板房已开放!线上提前预约!

效果图/最终交付为准
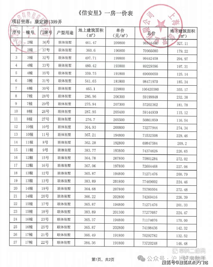
项目一房一价👇
«上下滑动查看»
高层一房一价👇





别墅一房一价👇


项目基本信息
项目名
信达•信安里
开发商
上海信瓴置业有限公司(信达地产)
板块
老静安曹家渡板块
在售面积
高层住宅:
90㎡1房2厅1卫;100㎡2房2厅1卫
别墅(双拼):
275-287平:5686-5920(3套)4房4厅7卫
360-384平:6900-7747万(18套)5房5厅8卫
460-541平:8923-9847万(4套)5房5厅8卫
别墅(类独栋):
463平-1.06亿(1套)5房5厅10卫
均价
高层住宅:13.6万
别 墅:19.98万
总价
高层住宅:90㎡1059-1200万;100㎡1250-1584万
别 墅:5686-10600万
总体量
高层住宅:140套
别 墅:27套
总层数
高层住宅:7层/18层
别 墅:地上3层+地下2层
层高
高层住宅:2.97m
别 墅:2.2-3.6m
交房时间
2026年12月
交付标准
高层住宅:精装交付(中央空调、新风、地暖)
别 墅:毛坯交付
物业公司
信达自持物业(委托绿城物业管理)
物业费
高层住宅:12元/平/月
别 墅:20元/平/月
总用地面积
约10348.10㎡
总建筑面积
约27054.13㎡
容积率
2.5
车位配比
1:1.17
【信达·信安里】项目高层均价13.6万/㎡,推出140套建筑面积约90-100平户型,目前已售罄!风貌别墅19.98万/㎡,推出27套建筑面积约280-540平的稀缺房源。总价5686万起!
稀缺的产品类型
风貌别墅的百平高层
风貌别墅之于上海,可以说终归将是最稀缺的存在,卖一套少一套。
风貌别墅里的高层项目,一方面,延续了风貌别墅文化感、高级感,项目自带底蕴;另一方面,综合了风貌项目的低密度,整体容积率相对较低。
而【信达·信安里】27套风貌别墅,更是老静安目前唯一的稀缺之作!
【信达·信安里】风貌别墅的内部空间突破了许多风貌别墅“窄开间”的瓶颈,打造出奢阔舒适的现代居住空间。这在市面上极其少见!

风貌别墅效果图/最终交付为准
主力户型建面约360㎡风貌别墅,整体4开间朝南,地上两层+阁楼,屋顶用“老虎窗”的形式,既保留了海派原味,也提升了空间的舒适度。

建面约540㎡的类独栋,不仅最大做到了惊人的约19.5m开间,约7.2m挑高设计更让业主获得了奢华私人会所般的体验。
即便是双拼项目,也是大横厅加上庭院,宽敞明亮,阳光洒满每个角落。双拼项目间更是打造了双层墙面,增强了隔音效果。
在老静安核心,占据稀缺顶级资源,又是稀缺的墅区百平户型,再加上稀缺的产品用心,信达·信安里就是能穿越任何周期的硬核恒产!
“2+3”的空间格局!
地下两层+夹层、地上两层加阁楼的空间格局,多么丰盛的生活都容纳得下。
一层:一、二层层高3.3米,一层是大尺度的派对、活动空间,朋友小聚、亲子游戏,随心所欲。
二层:是主人的私密空间,起居室、卧室、书房、衣帽间,大宅的空间尺度,阔绰舒适。
三层阁楼:搭配上梦莎式屋顶和老虎窗,空间通透明亮,阳光随时洒入室内。
夹层:私宴庭,可聚餐,会客
地下室:地下两层,一层灵动空间,二层别墅停车位,功能更强大。
地下独立车库:可极大的提升别墅的防潮性。
并且,别墅采用双层分户墙做法,每户之间没有共用墙。加厚外墙、楼板,做到200mm厚度,避免邻里的相互影响,带来舒适静谧的居住感受。
更通透、更开放的花园生活!
更通透、更趋于开放,这是老式石库门向花园里弄的转变中所呈现出的清晰变化。
信安里每户南侧带约30-100㎡私家庭院,提供私密的活动空间,是一个种花养宠、放空心情的自有天地。
厚重而封闭的黑色木门消失了,取而代之的是通透的格栅。四时变化,时光流转,归家的人在光影和芳香的陪伴中进入庭院。
南侧设计有雅集花园,以精巧的景观设计和灵活多变的布局为社区提供开放式公共空间,二者之间以高层住宅的架空层实现过渡。
同时,建筑师还利用车行主入口的空间,结合水景、景墙和绿化打造出别具风格的开放式景观节点,并在风貌保护区的巷弄内设置端头对景,宅间花园等。

效果图/最终交付为准
让街道拥有多样性,让石库门里弄“呼吸”。
在封闭与开放之间,在独处与社交之间,21世纪的石库门别墅找到了它平衡的基调。
【信达·信安里】除27套风貌别墅,还有140套高层建面约90-100平户型,都是极其稀缺的存在!
老静安罕见的2.5容积率
仅一栋高层,最高18层,得房率高,私密性好,资源均好性强!

效果图/最终交付为准
稀缺的景观和日照条件
信安里高层项目的北面,是老牌别墅区静鼎安邦府邸,南面是自己的风貌别墅,南北无遮挡,视野非常开阔,部分高区还能看到陆家嘴三件套。

沙盘实景图
在寸土寸金的老静安,日照也是金贵资源。信安里的高层,即使是在一年中日照最差的冬至日,所有房源都能拥有至少大半天以上的太阳,绝大部分房源几乎能享受全天日照!
建面约90m²尊享1房户型,在100m²的基础上,进一步降低总价门槛的同时,也带来了设计上针对实用性的小巧思。

在保留南北通透、客餐厅一体化的同时,厨房空间迎来升级,U型大厨房不仅提供了更富裕的操作台面空间,也避免了烹饪过程中频繁转身移动传菜带来的不便。
而另一大亮点就是大面宽的南侧套房主卧,私享独立卫浴空间以及更宽敞的衣帽间和储物空间,这些都是最能增加主人舒适度体验的设计。
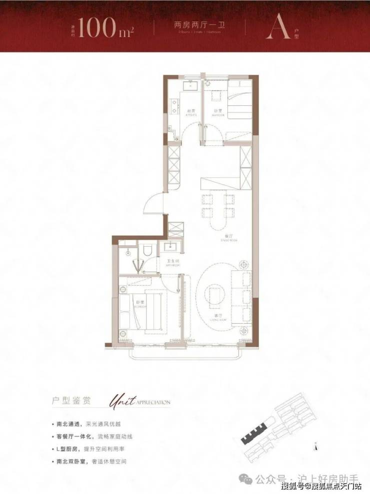
建面约100m²大2房户型,带来的不仅是方正的布局,也为购房者带来了体验感超绝的视野和采光。
经典的南北通透房型,卧室客厅采光皆丰沛,一体化客餐厅带来的不仅是最便捷的烹饪动线,也为家庭成员之间的互动和交流日常提供了舒适空间,再加之南北双卧设计,也保证了足够的温馨休息场地。
数据统计,上海内环内新房成交均价近17万,成交面积套均近200平。
也就是说,内环内大平层当道,小户型极其稀缺。
一个项目到底有多用心,最终还得看交付标准。
信达·信安里,一切以客户的切实体验为核心,总是想着“多给一点“,甚至会把钱花在一些不容易被看见的地方。
比如外立面的弧形,看着只是一个小小的变化,但是这样的曲面,其实是源自武康大楼的灵感,让项目更有海派气息,不过就这小小的弧形,可能并不显眼,对于开发商来说却要花更高的成本。
来到交付样板间,所见即所得。
整个空间低饱和,以灰白为主色调,高级优雅。


建面约100平样板房实景图/最终交付为准
玄关柜比别人更多一点,进门口的玄关,左右两边都打造了玄关柜,功能性十足。

建面约100平样板房实景图/最终交付为准
背景墙比别人更多一点。天然石材的电视背景墙,高级大气;编织皮革的客厅背景墙,充满质感;过度用的是白色木饰纹的背景墙,简约耐看;餐厅处又是白色皮革背景墙,大方优雅。整个空间过渡自然,增加了层次感和高级感。
比别人更多的厨电交付。别人可能交付三件套、五件套,信安里交付七件套,还都是德系博世产品。博世两台嵌入式冰箱、洗衣机、烘干机、灶具、油烟机、蒸烤一体机等等,可以说诚意十足了。
建面约100平样板房实景图/最终交付为准

比别人更多的卫生间独立空调。卫生间干湿分离,配备了日立专用空调,让卫生间的体感更舒适。还有唯宝台盆、智能马桶、恒温花洒等,都是国际一线品牌。

建面约100平样板房实景图/最终交付为准

建面约100平样板房实景图/最终交付为准
比别人更多的灵动空间。由于建面约100平两房的客餐厅尺度较大,在次卧和客厅餐厅之间,完全可以打造一个“灵动空间”。可以用作主人的书房,孩子的阅读空间,亲子游戏空间……随心所欲。

建面约100平样板房实景图/最终交付为准
从交付样板间可以看出信达“比别人多一点”的用心,而公区的打造,则是“更好更奢”的存在。
更好更奢的归家门庭,嘉佩乐酒店风格,海派元素充满空间的每一个角落,地面的复古花纹,金属镂空装饰墙,普拉达绿的奢石点缀,仿佛穿越到了摩登时代。
首层架空层接待区效果图/最终交付为准
更好更奢的入户大堂,从地下到地上,三层空间,都充满了仪式感。普拉达绿石材、温哥华海石材、东方白石材、莫奈灰石材,特殊玻璃等,大手笔低营造调奢华的空间气场。
地下三层入户大堂效果图/最终交付为准
更好更奢的架空层休闲空间,打造海派生活泛会所,健身区,阅读区,会客厅等多元场景共融,营造社交、亲子、休闲的多功能空间。

效果图/最终交付为准
而随着7090的政策变化,百平房源供应量更是越来越少。据统计,内环内110㎡以内的户型,仅占17%!在缩小到老静安,就更加稀缺!

可以说,内环100平房源,已经濒临绝版!
信安里旁边300米招商的新地块,静安新地王,楼板价已经来到16.23万/㎡!入市价预计18万+!也就是说,老静安15万以内单价的新房,已经再也不会有!
而且,招商地块对于“中小户型占比”的要求只有40%。在”中小套型“标准的认定放宽后,该开发商新入市的徐汇项目中,最小户型建筑面积就提高到了112㎡。
明年,就在信安里旁300米,入住老静安的门槛价可能就要在1900万以上!
【信达·信安里】140套建面约90-100平房源,均价13.6万,其中建面约90㎡户型,最低总价1060万起!
1000万级就能入住老静安,这样的稀缺产品,绝版中的绝版!绝对是保值增值的利器!
稀缺地段 无可超越的资源能级
稀缺的地段,归根结底是对资源的占有。
老静安,上海内环内资源最密集的地段之一,其能级可以说是无可超越!
老静安的基建大手笔大投入
根据规划,老静安全域CAZ(中央活动区),这意味着这里是中心的中心,政府将投入大量资源进行城市更新和基础设施建设,用来提升该区域的商业、金融、文化和旅游功能,使其成为城市的核心和经济增长的引擎,进一步提升其在全球城市中的地位和影响力。
2035规划 静安区战略指引图
今年1-7月的数据显示,静安192.87亿元的财政收入,排在全市第5;截至2024年,区级一般公共预算收入总量,静安连续第九年位列上海中心城区第一!
静安有钱,更重要的是静安愿意把钱都花在公共建设上。看看每年路边的时令花圃就知道,郁金香、朱顶红、北美冬青……绝对都是大手笔。
无法复制的顶级生活资源
对于老静安来说,面积不大,只有7.62平方公里,但是这么点面积内,却集中了众多顶级资源。
示意图
以千年古刹静安寺为核心的静安寺商圈,嘉里中心、久光百货、芮欧百货等高端商业体齐聚;
不断蜕变的南京西路商圈,顶奢商业恒隆广场、中信泰富,潮奢商业兴业太古汇,还有重奢最爱的张园等等;

商业实景图
除了商业综合体,名人故居、各种老建筑更是静安的一张名片。张爱玲故居、胡适故居、小白楼、徐园旧址等等,像是走进了历史书。
而这些顶级资源,对于信达·信安里来说,就是一个“15分钟生活圈”,资源密集度其他项目难以匹敌!
信安里高奢与烟火气兼具的高浓度生活圈
【信达·信安里】位于老静安核心的康定路余姚路交汇口南侧,与经典的市中心别墅豪宅静鼎安邦府邸仅一条康定路之隔。
商业配套方面:步行大约两个路口,KING88购物中心、星方汇、889广场、开开广场、七彩里5个商场任君选择。

交通配套方面:项目还有着高效的出行系统,增强了通达性。13、14号线都步行可达,武宁路站和武定路站都步行约500米左右。1公里范围内,地铁线路就更丰富了,2号线、7号线的昌平路、隆德路、江苏路、静安寺等市中心地铁站都可步行到达。

示意图
教育资源方面:南西幼儿园(市示范园)、诗意久幼儿园等优质的学龄前教育;万航渡路小学、市西小学、一师附小、市西中学等中小学就在周边,甚至还有华东政法大学(原圣约翰大学)、上海戏剧学院等高等学府,全龄教育资源覆盖。
免责声明:以上教育资源整理仅代表楼盘与学校的距离,该房屋所在项目暂未划分学区,开发商不对项目交房后所属学区、学校做任何承诺。教育资源分配或学校/学区划分以及学校的具体招生规则等请以政府相关主管部门、教育机构公开的最新信息为准。
上海第一师范附属小学实景图
市西中学实景图
医疗资源方面:华山医院、上海市儿童医院、第一妇幼保健院、华东医院等一流的医疗资源,都在信达·信安里周围。
华山医院实景图
生态休闲资源方面:曹家渡口袋花园、静安公园、美琪大剧院、上海展览中心等,为生活增添乐趣。
这样高浓度的高质量配套资源,只有内环核心项目才可能拥有。而信达·信安里这样能级的顶级资源,只有老静安核心!

如有问题欢迎来电咨询,专业一对一热情服务,让您用专业眼光去买房。
声明:本文由入驻焦点开放平台的作者撰写,除焦点官方账号外,观点仅代表作者本人,不代表焦点立场。
