华润中环置地中心望云首页网站-2025华润中环置地中心望云房价_楼盘评测丨地址丨详情丨售楼处电话丨交房时间
扫描到手机,新闻随时看
扫一扫,用手机看文章
更加方便分享给朋友
上半年的上海楼市,有这样一个“神盘”,六开六捷,同时以住宅套数销售TOP1、销售面积TOP2的断层级领先优势,问鼎楼市天花板!
去年10月25日,上海第六批次土拍,华润置地以46亿总价拿下宝山南大W12-1301单元32-04 、11-01地块,打造润府二期!
迭代到二期,中環置地中心·望雲的审美又得到了再度突破和提升。
据悉将融入“华润·D-MONDE”的设计理念,呈现“秩序”和“经典”的建筑灵感,以框架感、构成感、群落感形成独特的城市天际线,为中环呈鉴极具美感的城市封面;融合“经典、华丽、松弛”的设计风格,借鉴新加坡高端住宅景观理念,引入度假式生活体验,实现建筑、生活和自然三者和谐共存。

项目本次的边套设计了大量的飘窗、转角飘窗、主卧270度落地窗等设计,所以整个立面运用了大量的玻璃,构建出了非常极致的窗墙比。
单看华润置地给出的资料和由GAD设计的外立面效果图,可以看到,是铜色铝板搭配浅白色陶瓷板,和超大比例类似玫瑰金色系的玻璃幕墙,这种海派雅奢的腔调和质感,一下就拿捏住上海人的心巴。

景观:城市中央的国际海派社区,归家即是度假!
项目由翊象设计主创设计团队操刀设计。
整个社区以主景花园联动自然教室、休闲交谊与艺术空间,形成婉转游园的酒店式迎宾水院。
效果图仅供参考,具体以实际交付为准
同时,以超奢戏水池与尊享休闲会所为核心,联动架空层,串联休憩廊架与横向端景,打造核心奢享场景。
效果图仅供参考,具体以实际交付为准
另外,整个项目拥有包括泛会所(戏水池、健身场所)、场景化网红架空层泛会所等全维社交场景。
效果图仅供参考,具体以实际交付为准
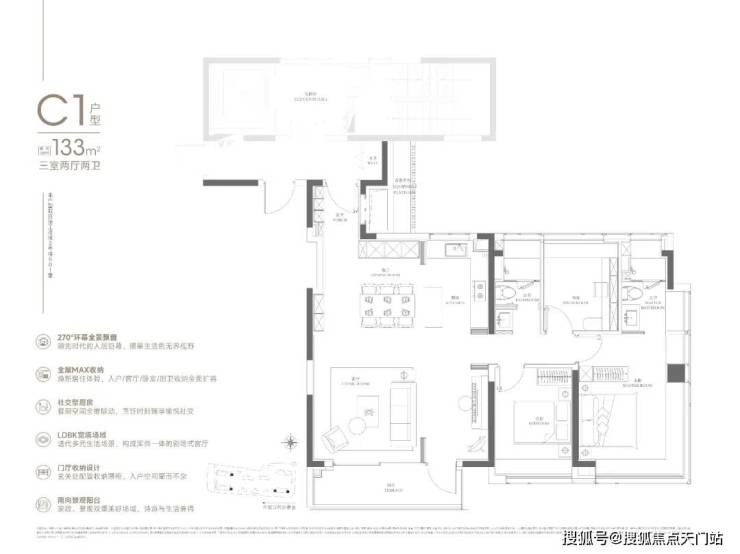
产品方面,相比一期润府,望雲的户型设计可谓一脉相承,切中购房者“痛点”;在室内装修上的品质呈现,其审美也得到了进一步提升。
108㎡的入门级三房,起步门槛相比润府提高不少。
这个户型,入户玄关收纳、双开间的阳台、宽大的U型厨房,和套房主卧带步入式衣帽间+全景式飘窗,是比较突出的亮点;
133㎡可以说是108㎡的进阶款,同样的三房两厅两卫,大面宽横厅、半开放式厨房设置岛台,加上主卧L型飘窗,再一次验证了华润置地豪宅化的产品思路。
来到165㎡个户型,已经上升到上海主流的大户型改善面积段,但看设计思路,可以看出是为满足多胎家庭成长而服务的。
近日中寰置地中心·望雲开放了165㎡样板间,楼典实地参观感受一番下来,整个户型动静分区的布局空间感很出众,人性化收纳设计细节很多,几乎每个房间都做了开窗面极大的飘窗,另外,装标也在润府的基础上升级了不少。
首先推开入户门,映入视线的是LDKB一体化客餐厅,家庭的核心活动区域,整个户型动静分区的布局一览无余,无走廊设计,空间利用率极高,走下来显得十分敞阔。
其次是收纳空间非常丰富,玄关、餐边柜、厨房、卫浴、主卧、阳台六大功能空间,随处可见。
比如,厨房配了珍珠白吊柜、三组抽屉式拉篮合理搭配,调料架收纳、大容量踢脚抽、清洁用品收纳区,米面粮油、碗碟刀叉都可完美隐身。
下图蓝色为收纳区域,绿色部分即飘窗区域:

入户门厅也非常讲究,定制级的玄关柜,包括鞋柜+收纳柜+卡座+衣帽区,整齐有序。
此外,像私享的入户梯厅可以做家庭小型储藏库;沙发后面的空间可以摆放大体量壁柜;大面宽阳台两侧也可作为定制储藏空间;
整个户型的飘窗面积总和达到了约14.3㎡。
其中主卧的270°转角飘窗就有约5.7m²,通过与外立面的结合,直接做了梳妆台和储物柜,拓展了飘窗的实用性。

同时室内精装交付标准上,也再度升级,从墙面、地板到厨卫品牌,都是国内外一线品牌。


188户型2梯2户,有独立的电梯厅。4房3卫设计,还是3明卫,这两点还是不错的。
客餐厅净面宽约5.45m、进深约6.85m左右。北侧是厨房和家政间,南侧是净面宽约5m的阳台。
南次卧也是套间设计,而且也是明卫,设计上还是用了心思的。卧室部分净面宽约2.9m、进深约3.7m。根据测算,可以放置6尺的床(宽度约1.8m)+2个床头柜(宽度约45cm/个)+衣柜(深约60cm)是可以的。
主卧转角落地窗+飘窗,也算是非常少见的了。净面宽约3.6m,不算进门的衣柜,进深大约5.7m左右。根据测算,可以放置宽约2m的床+2个床头柜(宽度约45cm/个)是可以的。
交通配套方面:北侧丰翔路、西侧祁健路、东侧汇丰路已建成通车,07-01地块南侧丰皓路(祁健路-工学路)计划2024年开工建设。项目距离15号线丰翔路站步行可达,日常出行非常方便。
商业配套方面:项目本身就是一个自带商业的TOD,华润置地规划以万象系列融汇轻奢时尚、休闲生活、运动潮流等多元业态,打造北中环“都市商业新旗舰。除了未来的万象系商业(规划中),周边还有经纬汇、聚丰购物广场、上坤城市广场、山姆会员店等,购物还是比较方便的。
医疗资源方面:项目周边有两大三甲级医院为健康保驾护航,本别是:仁济医院宝山分院和华山医院(宝山院区)。
教育资源方面:周边荟萃南大实验幼儿园、宝山区南大实验学校、上大附小、上大附中、上海大学附属学校、上海大学等全龄化教育资源。
上海宝山作为上海服务辐射长三角北翼的重要节点和北部经济发展新增长极,正以“活力宝山 科创新城”为发展主线,在交通、产业、商业、空间规划等多维度实现转型突破,以下是核心板块分析:
一、交通优势:构建综合枢纽格局
宝山彻底摆脱交通末端定位,形成“高铁+轨交+高快速路+邮轮”的多层次一体化交通体系:
- 对外辐射通道:S16蕰川高速作为北上出省关键通道,采用“客货分离”设计,串联罗店城镇圈、宝山工业园区等重点区域,使北部地区半小时接入高速路网,罗泾港区货物运输效率提升40%,上海北部至江苏南部行车时间减少30%以上。
- 市域联动干线:军工路快速路预计2025年内全线通车,将与逸仙路高架、中环东段构成中心城东部南北向快速通道,直达高铁上海宝山站和浦东机场;S5沪嘉高速功能提升工程启动建设,将缩短南大智慧城至中心城区时间,强化与嘉定、普陀的交通联系。
- 区域微循环优化:逸仙路高架长逸路下匝道提前通车,缓解殷高西路拥堵,为高境、淞南区域提供不受铁路影响的南北通道。
- 特色交通枢纽:上海吴淞口国际邮轮港实现“四船同靠”,2024年接靠邮轮205艘次、接待旅客150万人次,占全国50%、70%以上,成为亚洲最大邮轮母港[__LINK_ICON]。
二、产业布局:六大产业集群赋能
宝山聚焦“六大产业”构建现代化产业体系,多个领域形成全国领先优势[__LINK_ICON]:
- 龙头产业引领:高端新材料、机器人及高端装备入选上海首批“市区协同”千亿级产业集群。其中机器人产业集聚近300家上下游企业,占据上海三分之一的产业份额;绿色低碳产业2024年跻身“千亿俱乐部”,建成碳中和产业园,推出国内首个国际互认的LCA碳足迹量化工业软件。
- 特色产业升级:邮轮旅游作为核心优势产业,延伸形成邮轮旅游度假区,联动海关、海事等部门优化免签政策,争取国际邮轮公司加大运力布局,同时培育邮轮总部经济和物资供应、船员派遣等延伸产业。
- 科创动能支撑:新增10家国家级专精特新“小巨人”企业、147家高新技术企业,院士(专家)工作站达40家,吴淞材料实验室、环复旦国家大学科技园等平台落地,推动科技成果转化与产业化。
三、商业与文旅:消费场景多元升级
宝山以产业与文旅、消费融合为抓手,打造多个热门打卡地:
- 商业综合体扩容:上海·海上世界(24万㎡邮轮主题滨江商业)、中集美兰湖金地广场、大华虎城中心等大型综合体相继开业,涵盖潮流购物、亲子休闲、全球美食等多元业态,其中海上世界开业及跨年活动吸引客流近10万人次。
- 文旅品牌打造:推出“宝山滨江第一缕阳光”“吴淞口日出指数”等特色IP,命名“日出广场”并引入文化活动;争取世界F1H2O摩托艇锦标赛永久落户,举办品牌论坛、烟花秀、无人机表演等活动,形成“在上海、看长江”的文旅名片。
四、空间规划:“三箭齐发”重塑格局
宝山聚焦吴淞、南大、滨江“三箭齐发”,推动重点板块开发建设,构建“一核两翼”发展格局[__LINK_ICON]:
- 吴淞新城:衔接“大吴淞”规划,深化“一带三星”城市设计,推进江杨南路TOD、轨交19号线车辆基地等项目,打造水绿交织、文商交互的“十里画卷”。
- 南大智慧城:打造高端商业商务新地标,推动宇树亚太研究中心等平台实体化运行,抢占前沿科技和未来产业先机。
- 滨江区域:提升长滩沿线环境品质,推进18万平方米长滩中免海港城招商,实现长滩观光塔开业运营,构建江景与产业融合的滨水空间。
五、居住价值:板块定位差异化明显
宝山各居住板块根据配套、定位形成差异化优势,覆盖刚需至改善需求:
- 大华板块:中高端改善首选,靠近静安、普陀,双轨交覆盖,商业体密集,教育资源丰富,是宝山最成熟的宜居社区。
- 共康板块:中产刚需+改善洼地,1号线直达人民广场,临近三甲华山医院北院,次新房价格4-6万/㎡。
- 顾村板块:刚需+生态宜居,7号线通勤便利,依托顾村公园(上海最大樱花公园),商业有龙湖宝山天街等综合体,房价友好。
- 杨行板块:刚需+未来潜力股,1号线直达市区,受益于吴淞创新城规划带来的产业升级,次新房价格4-5万/㎡。
六、发展潜力:转型成效与未来机遇
宝山作为上海科技创新中心主阵地,2025年迎来“十四五”收官,转型成效显著:产业能级持续提升,科创活力不断释放,交通枢纽功能强化,人口吸引力增强(常住人口227.19万人)[__LINK_ICON]。未来将持续深化“一地两区”建设,聚焦“数字经济+人形机器人+生命科学”三大主导产业,依托长三角一体化红利和综合交通优势,进一步巩固上海北部经济增长极地位,打造新时代现代化转型样本。
声明:本文由入驻焦点开放平台的作者撰写,除焦点官方账号外,观点仅代表作者本人,不代表焦点立场。
