越秀外滩樾外滩瑞府售楼处官方预约热线:400-1189-515(欢迎致电)

点击输入图片描述(最多30字)
虹口区北外滩
由越秀地产+临港集团联合打造
越秀临港虹口156街坊项目
案名已经发布——越秀·外滩樾
容积率仅约1.3
房源共49套风貌住宅
主力户型建面约238-338㎡
预计总价4500-9000万
项目示范区已开放
ps:验资预约参观样板间!

点击输入图片描述(最多30字)

点击输入图片描述(最多30字)

点击输入图片描述(最多30字)

点击输入图片描述(最多30字)
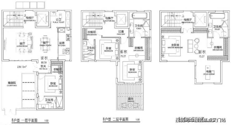
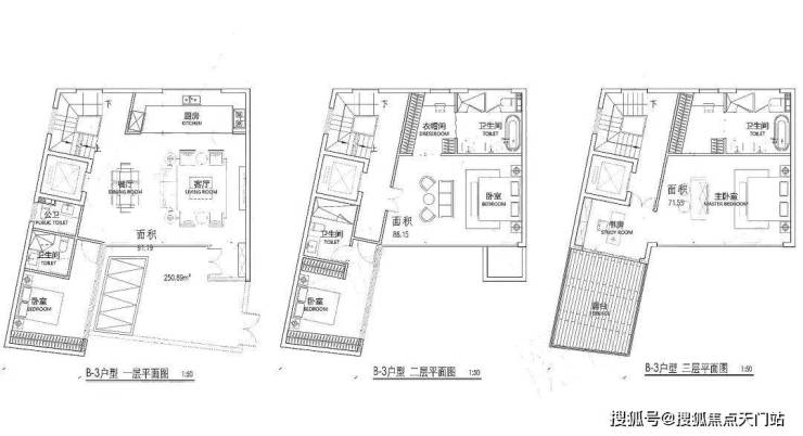
过程稿户型图曝光 (户型最终以开发商公示为准) :
236.25㎡A户型:

点击输入图片描述(最多30字)
239.13㎡B户型

点击输入图片描述(最多30字)
250.89㎡B-3户型

点击输入图片描述(最多30字)
C户型

点击输入图片描述(最多30字)
291.42㎡D户型

点击输入图片描述(最多30字)

点击输入图片描述(最多30字)

点击输入图片描述(最多30字)

点击输入图片描述(最多30字)
拿地回顾

点击输入图片描述(最多30字)
2023年10月24日,虹口区嘉兴路街道hk270B-04地块历史风貌保护项目,即156街坊实施主体遴选结果出炉——越秀&临港集团拿下。

点击输入图片描述(最多30字)
156街坊东至梧州路、南至周家嘴路、西至hk270B-02地块、北至柘皋路,土地面积约10790平方米,建筑面积14027平方米,规划为一类住宅组团用地,容积率仅1.3。

点击输入图片描述(最多30字)

点击输入图片描述(最多30字)
周边配套
这个地块位置也不错,位于1933老场坊隔壁,早前这里是上海工部局宰牲场;而如今,成为了虹口的网红打卡地;此次越秀联合体拿地也被要求保留工部局宰牲场旧址建面约1800㎡。

点击输入图片描述(最多30字)

点击输入图片描述(最多30字)
交通方面: 地块距离地铁4、10、19号线换乘站海伦路站直线距离约600米,交通十分便捷。

点击输入图片描述(最多30字)
教育方面: 华东师大一附中实验小学、虹口区第二中心小学、华东师大一附初中等优质配套;

点击输入图片描述(最多30字)
商业方面: 1km左右就有集购物、餐饮、娱乐休闲、办公及服务式公寓为一体的综合商业体——瑞虹天地,商业面积55万方,包括太阳宫、月亮湾、星星堂、瑞虹坊四个部分。

点击输入图片描述(最多30字)
医疗方面: 地块紧邻上海第一人民医院(三甲)

点击输入图片描述(最多30字)
越秀外滩樾外滩瑞府售楼处官方预约热线:400-1189-515(欢迎致电)

点击输入图片描述(最多30字)