美兰金色宝邸首页网站/售楼处电话/地址/在售户型/营销中心/最新价格/周边配套/容积率/楼盘小区详情/房源情况/最新折扣补贴/交房时间/户型测评/轨交

搜狐焦点天门站 2025-12-30 16:41:00
用手机看
扫描到手机,新闻随时看

扫一扫,用手机看文章
更加方便分享给朋友

美兰金色宝邸售楼处官方预约热线:400-1189-515(欢迎致电)

美兰金色宝邸售楼处官方预约热线:400-1189-515(欢迎致电)

点击输入图片描述(最多30字)

上海“2035规划”明确提出, 上海要主动服务“一带一路”建设、长江经济带发展,主动融入长三角区域协同发展。 宝山作为长三角枢纽存在,被纳入主城区,开启新一轮时代红利,以北郊未来产业园为转型驱动,致力打造北上海新兴产城中心,城市资源全面升级。

点击输入图片描述(最多30字)

(示意图)

(示意图)

随着“2035”战略规划定调,北郊迎来交通焕新, 形成“二纵一轨”立体交通。 S7沪崇高速的一期在建、沪太路快速化将促进交通路网的焕新升级;规划中运量交通接驳轨道交通7号线,实现快速通达市区。

点击输入图片描述(最多30字)

上海北郊未来产业园是浦东金桥股份与宝山工业园区合作的科技产业园项目,承载区域产业转型任务, 助力打造“上海制造”品牌,着力推动机器人、高端装备、关键智能部件等领域的研发和产业化 。智能制造、新材料、移动互联网和健康产业等四大产业将成为支柱产业。

点击输入图片描述(最多30字)

罗泾处于上海市北部,是宝山区城市建设区及上海国际航运中心的组成部分, 规划以一核:罗泾公园为生态核心,二轴:以陈功路、罗宁路为城镇发展轴,三带:荻泾河、小川沙河、陶家河绿化景观带 环绕,建设成为以中高档居住为主体,融行政办公、商业服务、文化教育、休闲娱乐等多元功能为一体的水韵生态城。美兰金色宝邸,正处于一核、二轴、三带的核心交集,中心区位天然优越,尽享城市发展黄金轴线带来的便捷生活及无限价值。而 【美兰金色宝邸】 位于宝山区罗泾。

点击输入图片描述(最多30字)

项目基本参数

物业类别:别墅

单 价:均价34000元/㎡

总 价:1000万起

户 型:联排 (330-500㎡)

占地面积:47,442平方米

建筑面积:91,899平方米

装修状况:毛坯、精装修

在售套数:55套

交房时间:现房

绿 化 率:40.5%

容 积 率:1.3

车 位 数:516个

车 位 比:1:0.9

产权年限:住宅70年

物 业 费:住宅:2.2元/m²/月

别墅:3.5元/m²/月

物业公司:上海顾村物业管理有限公司

开 发 商:上海顾村房地产开发(集团)有限公司

销售证号:宝山房管(2013)预字0479号

楼盘特色:轨道沿线,低密居所

点击输入图片描述(最多30字)

【美兰金色宝邸】 由上海顾村房地产开发(集团)有限公司开发的罗泾B1-4地块居住小区(金色宝邸), 小区由4幢小高层和55栋联排住宅构成。房源建面约300㎡~398㎡,总价约1000万起/套。

点击输入图片描述(最多30字)

小区建筑采用经典优雅英伦风格, 近邻115亩罗泾公园仅500米 ,不仅饱览自然风光,更如同拥有一个天然大氧吧,时时刻刻空气清新。

点击输入图片描述(最多30字)

点击输入图片描述(最多30字)

点击输入图片描述(最多30字)

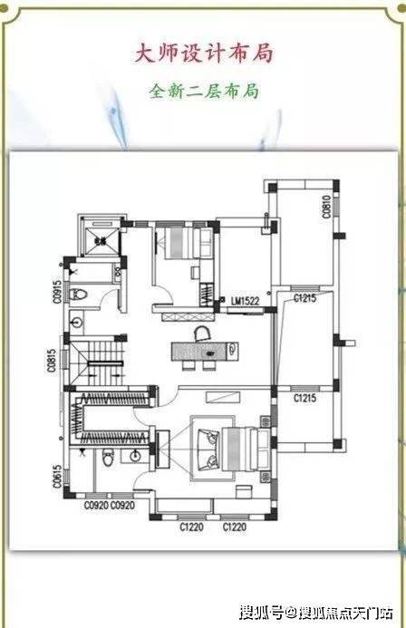
项目在售户型图

点击输入图片描述(最多30字)

点击输入图片描述(最多30字)

点击输入图片描述(最多30字)

点击输入图片描述(最多30字)

项目样板间实景照

点击输入图片描述(最多30字)

点击输入图片描述(最多30字)

点击输入图片描述(最多30字)

点击输入图片描述(最多30字)

点击输入图片描述(最多30字)

点击输入图片描述(最多30字)

点击输入图片描述(最多30字)

点击输入图片描述(最多30字)

点击输入图片描述(最多30字)

项目周边配套

项目位于罗泾镇中心区,周边配套成熟,罗泾中学、罗泾镇卫生服务中心仅一河之隔,周边成熟小区林立,项目西侧地块系规划商业地块,坐享城市便捷生活。 10分钟内接驳轨道交通7号线美兰湖站及1号线富锦路站,尽享成熟便捷交通,出行无忧。

美兰金色宝邸售楼处官方预约热线:400-1189-515(欢迎致电)

点击输入图片描述(最多30字)

公共交通: 潘沪路罗宁路 (281米) 、潘泾路潘沪路 (330米) 、罗宁路潘沪路 (400米) 、宝虹家园 (464米) 、潘泾路陈川路 (507米) 、罗宁路陈川路 (589米)

点击输入图片描述(最多30字)

教育资源: 罗泾中学(234米) 、宝山区罗泾镇第二幼儿园(461米) 、罗泾镇中心幼儿园(925米) 、上海市宝山区罗泾中心校(947米) 、罗泾中心小学(949米) 、罗泾镇中心幼儿园(993米)

点击输入图片描述(最多30字)

商业配套: 世纪华联潘沪店NO.2023(117米) 、宝山区宝雄杂货店(133米) 、如海超市(飞翔店)(148米) 、良友金伴(潘沪路)(198米) 、光明便利(潘沪店)(208米) 、百新杂货店(217米)

点击输入图片描述(最多30字)

医疗资源: 罗泾镇社区卫生宝丰站(3053米) 、罗泾镇社区卫生服务中心(272米)

银行配套: 上海农商银行陈行分理处(969米) 、上海农村商业银行(罗泾支行)(973米) 、上海农商银行ATM(973米) 、上海农村商业银行ATM(罗泾支行)(974米) 、中国邮政储蓄银行(罗泾支行)(986米)

点击输入图片描述(最多30字)

其它及饮食: 豪大大鸡排(266米) 、赵鱼头(507米) 、赵鱼头成通酒家(553米) 、成通大酒店(555米) 、森绿人家常菜馆(674米) 、都是客酒店(罗泾店)(683米) 、水上饭店(陈镇路)(695米)、宝祥桥(51米) 、小朱桥(114米) 、宝一房产(120米) 、村夫烤鱼(690米) 、徐介路(333米)

点击输入图片描述(最多30字)

休闲娱乐: 罗泾公园(东南门)(441米) 、罗泾公园(451米)

点击输入图片描述(最多30字)

附一房一价表:

(部分房源已售,以售楼处案场为准)

点击输入图片描述(最多30字)

点击输入图片描述(最多30字)

美兰金色宝邸售楼处官方预约热线:400-1189-515(欢迎致电)

点击输入图片描述(最多30字)

声明:本文由入驻焦点开放平台的作者撰写,除焦点官方账号外,观点仅代表作者本人,不代表焦点立场。