招商云澜湾首页网站 - 招商云澜湾销售中心 (营销中心) 招商云澜湾楼盘欢迎您 - 小区环境 - 户型 - 价格 - 地址 - 楼盘详情 - 周边配套 - 楼盘欢迎您

搜狐焦点天门站 2025-11-11 10:07:14
用手机看
扫描到手机,新闻随时看

扫一扫,用手机看文章
更加方便分享给朋友

售楼处电话:400-118-3159(已认证) 营销中心热线:400-118-3159(欢迎致电) 售楼处预约电话:400-118-3159☎☎☎如有问题可来电咨询,预约销售专员,一对一为您服务!

招商云澜湾售楼处电话:400-118-3159(已认证)

营销中心热线:400-118-3159(欢迎致电)

售楼处预约电话:400-118-3159☎☎☎如有问题可来电咨询,预约销售专员,一对一为您服务!

1地段

项目地处松江新城永丰街道。松江新城板块位于松江区中心位置,成熟的配套和交通已成为松江的核心。

加快建成松江枢纽,规划中地铁9号线和23号线,快线东西联络线和嘉青松金线,共计4条轨交在此交汇。再加上12号线西延伸段将也将于今年开始动工。据悉,松江未来有望在嘉松公路以35号线将9号线与17号线南北贯通,届时将有可能升级为六轨交汇的松江新城。

永丰是松江主城区的核心位置,而项目地块更是主城区最后一块优质土地。

交通配套:小区门口50m配有有轨电车T1、T2线、长途汽车客运站;4km到9号线醉白池站,自驾沪昆高速,转换沪闵高架、中环、南北高架、内环高架等,可快速到达上海市区,也可通过S32申嘉湖高速,可以快速到达浦东机场;

教育配套:七大高校+上海师范大学附属外国语中学、松江区仓桥学校、上海对外经贸大学附属松江实交通验学校、第三实验小学、华亭第二幼儿园;私立学校或者国际学校有包玉刚实验学校、松江西外外国语学校、赫德国际学校。

商业配套:家门口新理想广场、2km泰晤士小镇、2km飞航广场,开车约20分钟可到万达、印象城等大型商圈。

医疗配套:松江区中心医院、上海市第一人民医院南院(三级甲等)、永丰街道社区卫生服务中心、方塔中医院、松江妇幼保健院(二级甲等)

休闲配套:永丰城市公园、三新体育场、永丰社区文体中心(在建)、仓城历史文化风貌保护区。

2产品

招商·云澜湾统一考究建筑、景观、生活的融会关系,把“城芯谧境”舒适、松弛、慢调的生活体验,融入到每个空间的规划中

在产品设计中,将建筑化作自然与城市的一部分,成就建筑历久弥新的魅力。

呼应地势西河东路的特征,尊重土地原生自然形态,叠墅、高层由低向高有序布局,让向上与在地形成各自的景致。

柔和的浅米色,辅以温暖的金属色,还原城市骨子里的人文记忆;圆角与曲线的处理,形成具有辨识度的塔冠,开篇专属于松江的生活美学样本。

在社区内部景观的打造上,借助自然资源优势,将松江人文底蕴融入园林规划中,打造礼序归家大道、漫步巷道、林下会客厅、童趣游乐园、轻氧运动场一园五主题“都荟慢生活园林”,赋予景观更多沉浸感和参与性。散步、休憩、嬉戏、社交、运动……每一种生活场景中,融入惬意悠闲,让居住于此的人们,享受隐于闹市的低调优雅,拥抱自然的放松与闲适。

在松江正脉的繁盛烟火中,招商·云澜湾以自然为设计语言,营造“大隐于市”的都荟林屿,以自然的笔触勾画空间的雅致景象。在此间无需多言,慢下来,就是心有灵犀的生活默契。

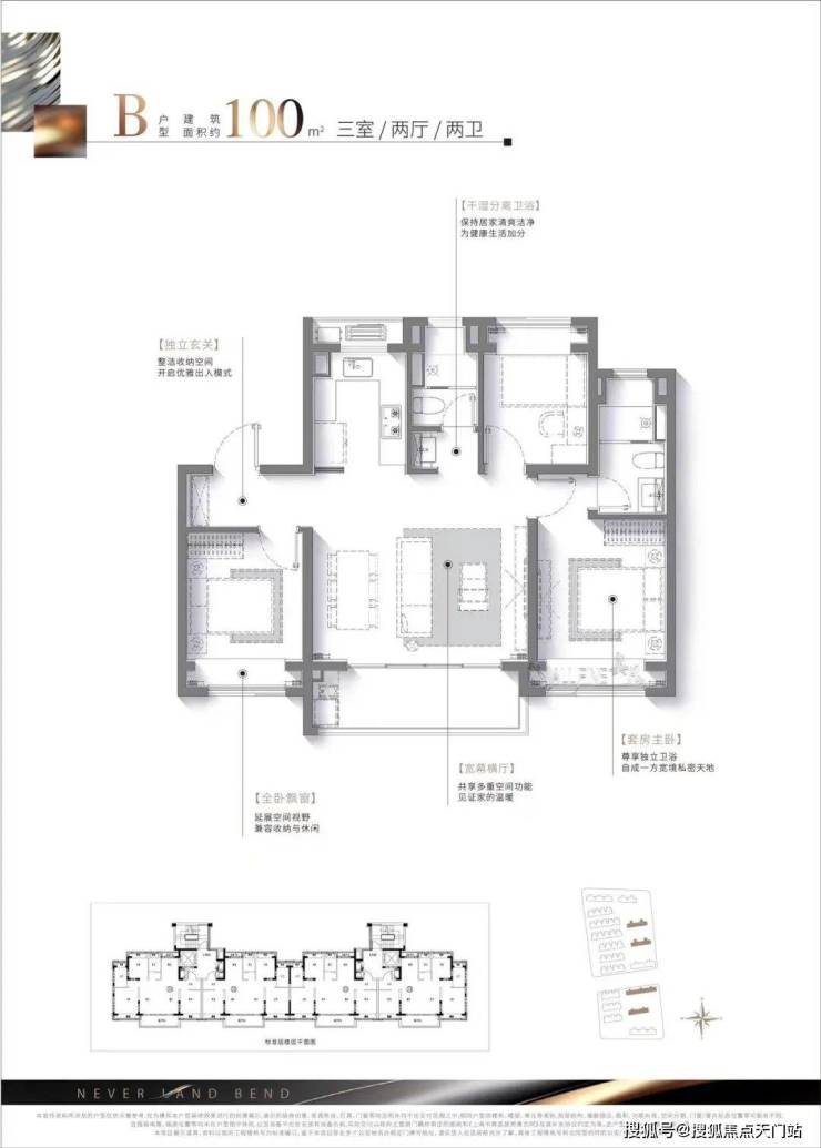
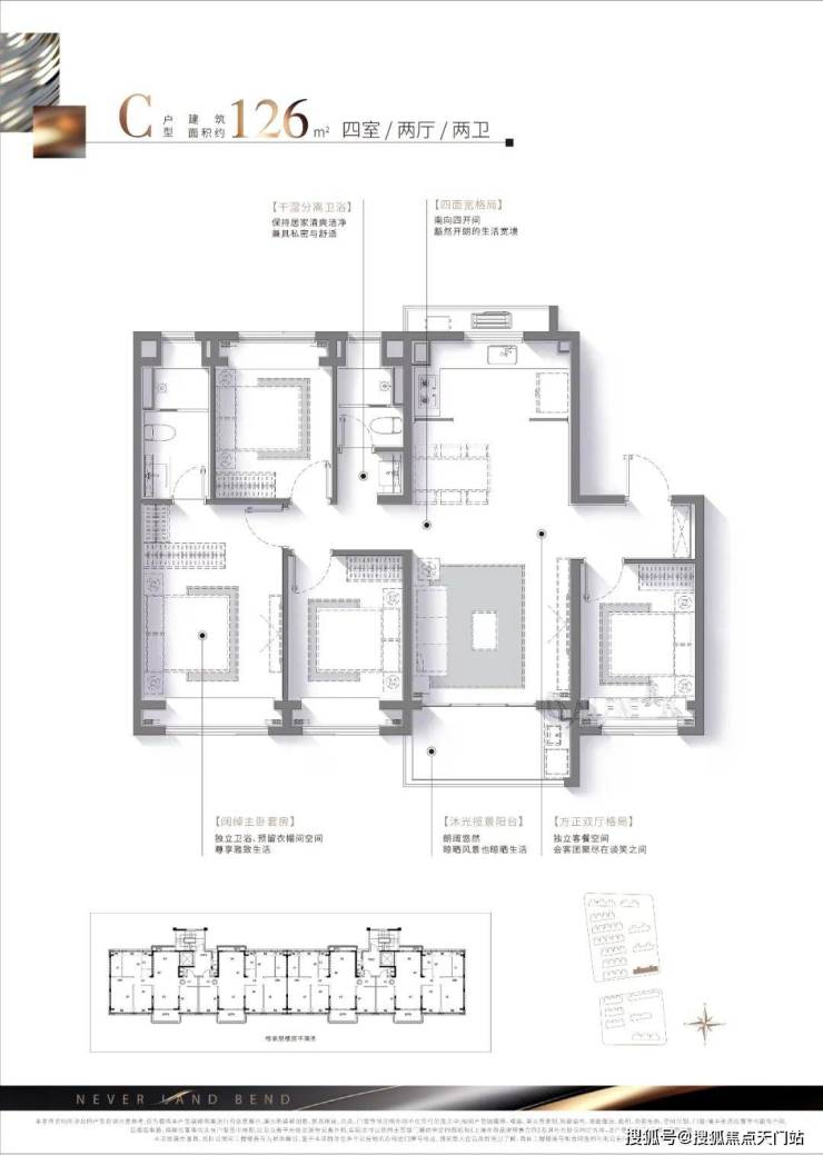
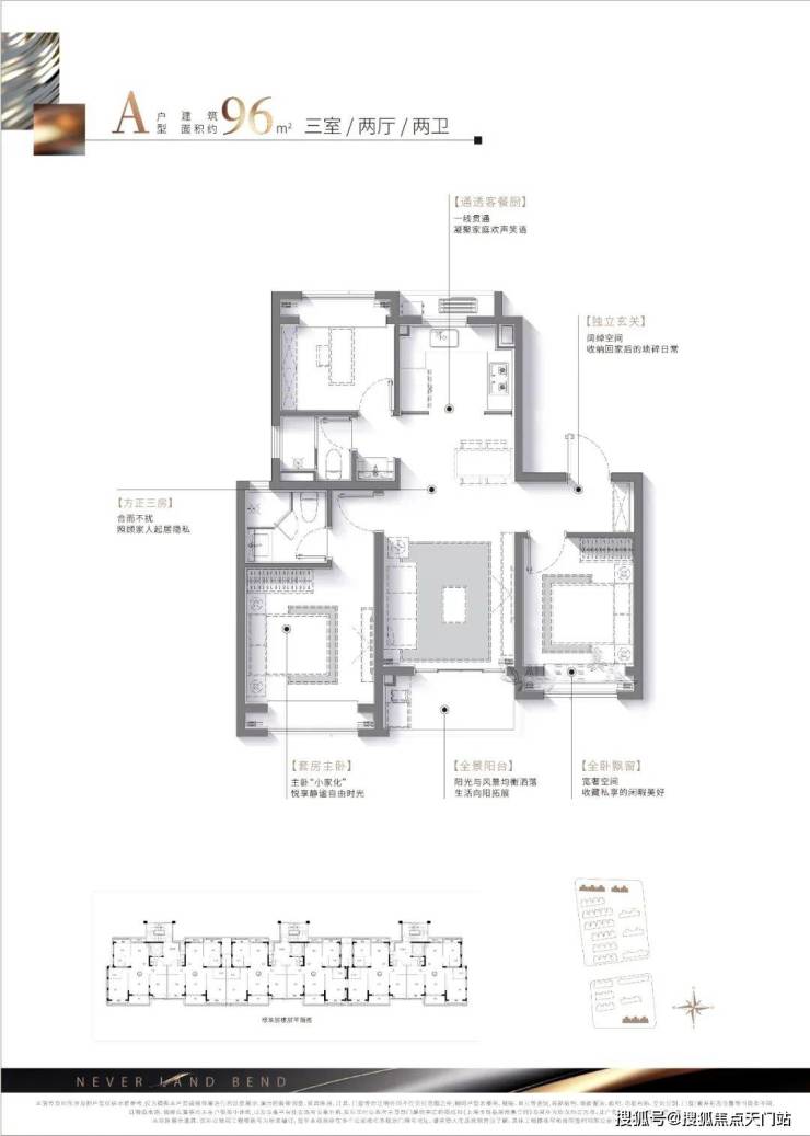
招商·云澜湾首推建面约96-126㎡小高层&约135-140㎡叠加户型!满足低总价上车到终极改善各类置业需求。

户型图如下:

(过程稿仅供参考,最终以实际为准)

叠加户型图:

样板间图片:

项目最新实拍图如下:

一房一价表如下:

声明:本文由入驻焦点开放平台的作者撰写,除焦点官方账号外,观点仅代表作者本人,不代表焦点立场。