招商时代乐章售楼处电话:400-8669-938

宝山顾村:7号线潘广路直线约300米
北上海在建TOD项目
建面约89-126㎡全3房户型
房地联动价:约49400元/㎡ 总价380-600万
交付标准:中央空调+新风系统+地暖(2000以上装标)


◼ 1.项目基本信息
2023年年底,上海第四批集中供地结束。其中,潘广路TOD地块被招商蛇口以约46亿高价拿下,三块地累计建筑面积约38万方。建成后的TOD综合体毫无疑问将成为宝山顾村区域重要的商业中心和城市生活中心,成为北上海极具活力的特色商业街区和大型品质住区。
项目整体由三幅地块组成:2幅普通商品房+1幅商业用地。整个地块中商业占比53%,约17.48万㎡,住宅占比47%,约15.49万㎡,本次全新升级花园城商业,为招商蛇口在上海打造的第四座花园城,将延续商业X+的模式。


【0303-02地块】
普通商品房用地,用地面积约39769㎡,容积率2.2,限高60米;据规划显示,规划12栋可售住宅,总高17-18层,总户数约901套,容积率2.2,非人车分流,车位比约1:1.2。

【0309-04地块】
普通商品房用地,用地面积约29337㎡,容积率2.3,限高60米,含商业建筑面积5100㎡。拟建8栋可售住宅,总高18层,总户数约645套(含保障房),容积率约2.3,车位比约1:1.2。

【0304-06地块】
商业用地,用地面积约60299㎡,容积率2.9,限高80米,含文化建面1万方。
招商时代乐章(商业部分)规划约17.5万⽅新一代“花园城X+商业”,力邀全球TOD综合设计大师Beony操刀设计,以解构主义的体块穿插设计手法,以及赋予故事性的设计表达,打造成为北上海具有活力的高品质特色商业聚集地。

预计引入主力店品牌20+,以“潮流X热力、人文X生态、亲子X科技”全新组合,开启城市奇幻之旅。
以“在地⽂化基因+异域度假风情+主题场景”融合形式,打造“时空晶球、梦幻森林、云境千屿、踏梦繁花、时光之门”五大灵感空间,为城市生活注入鲜活能量。

招商商管总部联发国内外品牌涵盖350+,包含餐饮、健康、亲子、休闲等全品类,一站式满足高品质生活设施和休闲娱乐体验。

通过两横三纵⼀贯通设计,紧密链接街区与社区,打造block式漫步街区,下楼即享花园商业街区、城市公共客厅,从顾村公园到热店打卡再到网红餐饮,享受全天候的微度假体验感。

◼ 2.小区规划建设

项目联通城市轨交、快速直达主干道和开放街区步道,打造三重立体路网体系,构筑组织多样性,实现快耍慢活的生活节奏,并借此串联起TOD大城里的商业、公园、街区、广场、地铁、酒店,六大场景。
让社区即城市,以多样业态构建生活底色,用更极致的便捷,来实现生活更自由的节奏,营造城市Chill基调。不同的商业形态拥有着不同的生活感受,更在这里扮演着不同的角色,满足不同心情、不同季候下人们对城市商业的需求。

中央商业、街区商业、社区商业三重商业体系不止满足人们购物休闲和日常生活的需求,外摆和露台空间,丰富的城市公共空间,更让现代人所向往的早C晚A的生活更好实现。不同时段下呈现不同内容形态,引导人们离开建筑内部,来到城市中,与周边的人、自然与建筑发生更多关联。我们深知生活才是城市的核心,情绪是生活的外显。多样业态带来的是生活节奏的Chill,与此同时,建筑和场景也要回应着如此的情绪,成为生活情绪的载体和容器,创造、引导生活的松弛感。Chill生活提案是松弛的,并非刻意的。项目通过类公建的建筑美学,让建筑从城市中自然生长出来,并在社区与街区的交界处和社区中分别打造7大生活场景和4重酒店式归家场景,让情绪从商业的热烈中逐渐沉淀,凸显出家这一场景的松弛与温馨。项目采用顶塔冠造型,流光美学的外立面,既有辨识度又有质感,是未来业主身份的象征。阳光倾泻而下,在不同光影与环境下,让家成为一件艺术品。立面部分非对称线条勾勒经典比例建筑体量,消解了建筑的庄严和冷峻,赋予更强的立体感,犹如画框一般,多了一份艺术沉淀。




既形成“层次感品质住宅”的认知,又创造出城市里的“美学灯塔”。

社区入口对标慢奢酒店风格打造,融入高定细节,诸如酒店感仪式门头+环岛式尊崇落客+迎宾式花园设计+精装地库等。
归家门厅设计为弧形顶棚,非对称构图,圆润的形式提供给业主放松的情绪价值。可以说是处处体现人居的松弛感和舒适度。

整个社区被水系环绕,繁星式楼栋布局,充满仪式感的景观与浓绿自然的植被,无论是精心设计的景观小品,还是那郁郁葱葱的树木花草,都让你在繁忙的生活中找到一份心灵的慰藉与安宁。

被水系环绕的社区,繁星式的楼栋布局,充满仪式感的景观与浓绿自然的植被,无论是精心设计的景观小品,还是那郁郁葱葱的树木花草,都让你在繁忙的生活中找到一份心灵的慰藉与安宁。同时将四季植物与多层景观巧妙融合,构建出一幅如诗如画的自然画卷,植入其中的主题架空层成为邻里之间的聚场,让人们能够在林下相遇,在自然中被治愈。



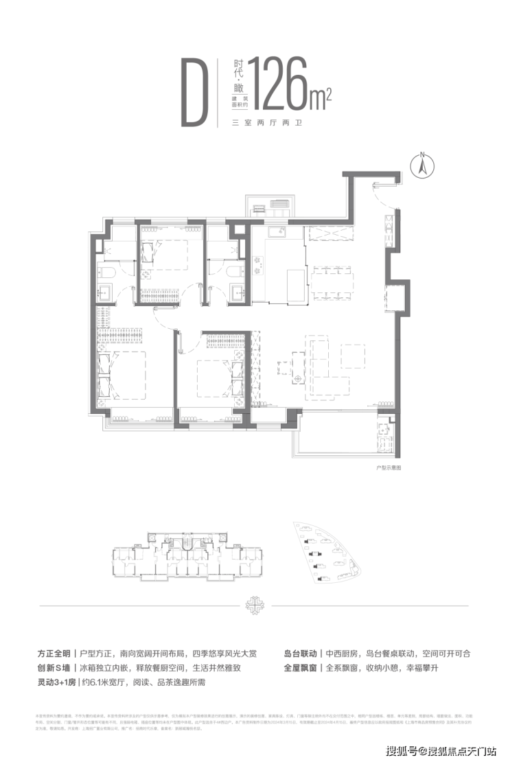
这次项目即将推出建面约89㎡-126㎡的3房产品,每一款户型做的都很”神“,每个户型都有一个共性--S形墙体。
◼ 3.户型及样板间鉴赏
本期加推位置:






样板间展示
精装入户,大幅提升居住尊贵感!
作为一个起步总价仅约380万+的TOD地铁盘,项目可谓是把精装品质和人性化细节刻在了基因里。
入户后,第一眼就可以看到玄关柜采用石材台面,下至标配鞋柜精灵,在S墙创新设计后,首批次房源更是额外赠送西门子双开门冰箱,这在以往可是上海千万级新房的交付标准:

展示间,非交付标准
厨房配置方太厨电厨电三件套和末端净水器、嵌入式洗碗机:

展示间,非交付标准
客厅空间也同样运用了更加舒展视觉的圆弧形吊顶和当下最受欢迎的LDBK一体化设计:

展示间,非交付标准
卫生间:台盆/台盆龙头采用科勒(或同等品牌)、马桶采用科勒或高仪品牌(或同等品牌),淋浴龙头采用高仪或者汉斯格雅(或同等品牌)、地面、墙面或顶面全部定制,这在千万级新房中也并不多见:
当然,超出我们预期的是,在约126㎡的户型中,装标再次升级:入户玄关采用海派风格中常见的整块艺术拼花设计+金属包边,仪式感更加突出:

展示间,非交付标准
另外,厨房在四件套基础上部分额外加配西门子蒸烤一体箱,相当于配齐了厨电五件套。

展示间,非交付标准
在新房普遍降标的当下,不仅能做到考虑到生活的方方面面,而且还用了更高标准的交付,在交付真正的生 活。
◼ 4.板块能级未来可期
地段方面:位于上海主城区内。
主城区的地段能级、规划定位、配套资源浓度,肯定是都要强于非主城区。这是一切判断地段优劣的大前提!
新顾城定位为上海北部产城相融合、配套高标准、宜居多元化的大型居住社区,以“一核一带四区两园”为框架,打造北上海宜居中心。

当然,这样的站位优势,当然也体现在房价上:

虹桥、高行、紫竹等区域,起码都是6万+。就连顾村也已经出现了均价约6.38万/㎡的新房。
而招商项目约450万级的总价在主城区内,只能说是或许错过不再。
距离人民广场直线约18km,距离人民广场直线约18km是什么概念呢?

与之同纬度的板块,全线突破6万+,像唐镇、颛桥等成熟的置业地,价格甚至突破
了7万大关。 而项目总价仅约450万级。

约450万级的TOD真轨交盘
地铁房,只有实现步行进站才有意义。直线距离500米,是步行进站的准线。
按此标准,2023年12个批次216个新房(去重后),只有49个能称得上步行
进站的地铁房,占比仅约五分之一,臻稀程度可见一斑!
而招商潘广路的TOD新房,真正的步行直达地铁站。

值得一提,在7号线潘广路站坐2站就能到顾村公园站,换乘15号线能便捷到达
长风、长宁、漕河泾,甚至紫竹高新区等多个沪上高能级商务区。
同时,在远期规划中,宝嘉线也会在潘广路站设置站点。
换句话说,项目出门两站后就有三轨交,通勤覆盖市区的范围很广。
除了通勤效率翻倍,作为市区的延伸,主城区已经少有地铁口红盘,但只要出现,往往是新中心枢纽的原始股,比如华泾、梅陇、华漕等板块。
◼ 5.周边配套
交通配套: 项目距7号线潘广路站直线约300米,2站换乘15号线。无缝直达普陀长风、静安寺、古北、上海南站、徐汇滨江以及紫竹高新等多个市区核芯板块。
同时,在远期规划中,宝嘉线也会在潘广路站设置站点。可以说,未来业主出门两站后就有三轨交环伺,通勤覆盖市区的范围很广。自驾方面可上外环,出行便利。

商业配套:项目 自带约17.5万方大体量商业,作为7号线潘广路TOD综合体项目,沿线还聚集了多个商业综合体——龙湖北城天街、绿地正大缤纷城等,商业体量超过35万方。加之龙湖宝山天街对面一大块的待开发商办用地。未来整个区域的高端商业体量,甚至可以比肩市区的CBD。
教育配套:项目一路之隔则是一块教育用地。同时,周边配套有上海民办华二宝山实验学校、宝山世界外国语学校、上海世外云尚欧莱幼儿园等多个民办教育资源。(新房不承诺学区,仅作为周边教育资源参考)

招商商业部分规划约17.5万⽅新一代“花园城X+商业”,力邀全球TOD综合设计大师Beony操刀设计,以解构主义的体块穿插设计手法,以及赋予故事性的设计表达,打造成为北上海具有活力的高品质特色商业聚集地。

预计引入主力店品牌20+,以“潮流X热力、人文X生态、亲子X科技”全新组合,开启城市奇幻之旅。
以“在地⽂化基因+异域度假风情+主题场景”融合形式,打造“时空晶球、梦幻森林、云境千屿、踏梦繁花、时光之门”五大灵感空间,为城市生活注入鲜活能量。
招商商管总部联发国内外品牌涵盖350+,包含餐饮、健康、亲子、休闲等全品类,一站式满足高品质生活设施和休闲娱乐体验。

通过两横三纵⼀贯通设计,紧密链接街区与社区,打造block式漫步街区,下楼即享花园商业街区、城市公共客厅,从顾村公园到热店打卡再到网红餐饮,享受全天候的微度假体验感。

招商时代乐章售楼处电话:400-8669-938
