6 站前滩 + 8 号线枢纽 TOD!「象屿・天宸雅颂」全臻装公园墅区,89-139㎡高层 & 143-213㎡叠墅联排热销!
扫描到手机,新闻随时看
扫一扫,用手机看文章
更加方便分享给朋友
当楼市进入深水区。购房者更加珍惜手中的房票,去投给更加出色的作品!
在浦锦,有这样一个项目,在600万级的价位段中杀出重围,脱颖而出,成为好房子的全新代名词。它,就是「象屿天宸雅颂」。
项目首开去化率91.9%,总销售金额达10.2亿!这场开盘盛典,不仅彰显了项目的强大吸引力,更让它成为南上海楼市焦点,开启品质人居新篇。
这不是偶然,而是轨交+产品+价值的多重震撼——直线距离8号线约200米,6站直抵前滩商务核芯,约5500㎡高阶会所叫板顶豪配置,唯美的外立面公区,超乎所想的户型设计......每一组数据都在撕碎传统定价逻辑。但是它的优秀,还远不止于此!
效果图,仅供参考
直线距离8号线约200米,6站前滩
首开劲销约10.2亿
上海现象级红盘「象屿·天宸雅颂」
1 “好房子”的标准答案
三大迭代设计 钜制一生之宅!
为什么说当下的购房者是幸福的?因为真正意义上的好房子时代已经到来。
在过去,购房者的买房逻辑是从刚需-地段-产品面积的层层升级,可能过个几年就要面临置换的问题;如今,许多人追求“一生之宅”,无论是刚需+改善,从品质端口开启全新的住房逻辑,一步到位。
二批次加推48套房源,建面约89㎡三房、约107㎡三房、约129㎡四房三种户型。
左右滑动查看户型图
叠墅户型图
这一次,象屿升级了户型设计:实现飘窗、厨房、S墙 三大场景迭代。很难想象,600万级的房子能做到如此深度的革新!
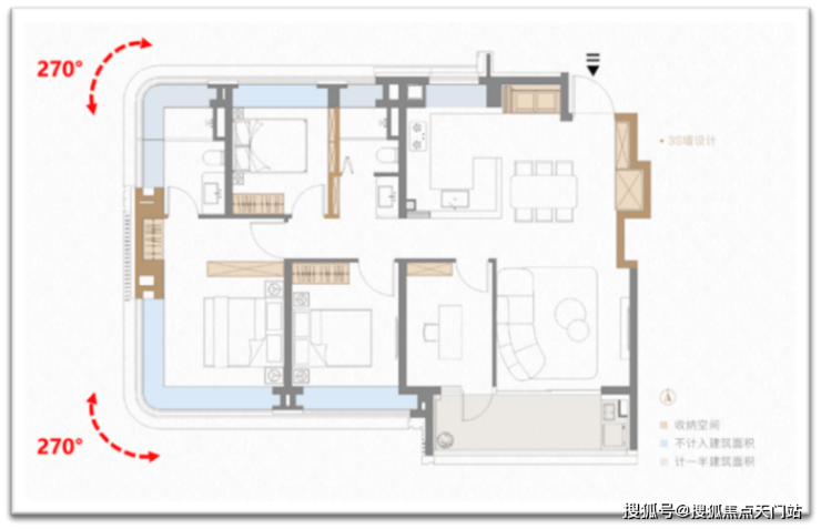
1、收纳大迭代——3s墙设计,史无前例
众所周知,s墙的出现,一开始是为了解决户型收纳问题,两者息息相关。
在普通项目中,s墙能很好地解决玄关处的800库的空间问题,或者厨房冰箱的放置问题。但是鱼和熊掌不可兼得,两者只能取其一,另外一个往往会占据空间。
直到象屿天宸雅颂的出现,终于出现兼容。以129㎡户型为例,分户s墙、卫浴s墙、山墙s墙,三s墙的设计,完美解决玄关、厨房冰箱的摆放空间问题!
分户s墙凹位,把800库嵌入其中,关上门,厚重的体量就消失了。
——这是最优雅、最美丽的分户s墙。
生活示范空间仅为展示,里面的布局及装饰均为第三方装修提供,仅作为展示效果使用,如有更改敬请留意最新资料,具体以合同实际交付为准。
第二处卫浴s墙,大概一掌深,但是立面面积足足多了2平方米!超薄柜收纳有多强?一打开所有的东西琳琅满目,整整齐齐。而且另一侧的凹位也能得到很好的利用。

第三处山墙s墙的技术含量更高,直接让户型拥有两个大转角飘窗(主卧+主卫均双270°弧形转角飘窗)。凹处填放一个衣柜,视觉效果舒适,业主第一眼无知无觉,殊不知背后大有玄妙。

2、飘窗大迭代——环形飘带,大大增加采光面和实用面积
飘窗如何利用,象屿足够全面,已经到了next level!
“不是飘窗,更像是飘带。”采光周长惊人,以129㎡户型为例,7个飘窗,环楼超半圈,宛若飘带。
约107㎡边户全屋设计了5个飘窗,而139㎡户型的飘窗总体线长约23m,还不算阳台。飘窗面积折合下来,就是约15平米的赠送面积,价值小100万!
同时,它不再是装饰性飘窗、而是功能性飘窗。
比如厨房的一圈橱柜都是飘窗,水槽也是。这样还能多出一个岛台空间,做饭的时候能和家人交流,象屿天宸雅颂,打造更有交流感的餐厨区域。
主卧飘窗无立柱遮挡视野,尤其是靠近衣柜的部分可作为创新次净衣柜,平时回家脱掉的外套可以挂在这里。

在主卫中,它的功能划分成为三个区域。1区适合改造成抽拉式的梳妆台,侧面放满各种各样的护肤品。2区在淋浴区转角的地方,放置浴盆。3区放置了一个浴凳,坐着洗澡,壁龛里的淋浴用品,触手可及!

而且主卫的飘窗,采光面与视觉效果暴增,比起传统带窗户的卫浴,使采光面积从原先0.7㎡增至约7㎡,视觉感受增加了近乎2倍!
3、厨房大迭代——从家庭孤岛到交互中心
中式厨房中,油烟机是一大痛点。能不能把油烟吸干净,成为最关键的一个衡量标准。在这里,有三个指标很关键:45cm出烟口,20立方米的风量,以及1000帕最大静压。很多西式品牌,造价虽然高昂,但是对于油烟问题,并没有表现出很好的解决效果。
象屿天宸雅颂,选用方太最黑科技的油烟机,新一代方太油烟机28立方米的风量,有效排出烟体。更有方太的集成烹饪中心,集成净洗中心,包括全隐洗碗机、19件套超大容量(除89平米户型),保驾护航!
生活示范空间仅为展示,里面的布局及装饰均为第三方装修提供,仅作为展示效果使用,如有更改敬请留意最新资料,具体以合同实际交付为准。
同时在厨房模式上,建面约129㎡户型更是别出心裁,采用G型高效厨房设计!嵌入式隐形冰箱+附加的大飘窗橱柜+大岛台,更有宽度2CM的超窄凉霸,居住性能实际与普通产品已经拉开了距离。
这不是隔绝内外的孤岛,而是一个具有交互性质的厨房,做菜的时候可以和家人进行亲密交流,也是真正意义的好房子。
此外,项目做了更人性化的装标和定制的细节,更能感受它的满满诚意——
比如入户门选用了定制化的仿铜铸铝门,嵌入普拉达绿奢石中古铜色门牌号,高级酒店般的质感营造的非常细腻。
进门玄关柜采用双面科技木皮包裹,玄关地面的海派拼花。
生活示范空间仅为展示,里面的布局及装饰均为第三方装修提供,仅作为展示效果使用,如有更改敬请留意最新资料,具体以合同实际交付为准。
客厅电视背景墙夸张的选用了大面整块的梦幻臻玉岩板;餐客厅地面使用了900*1800mm的超大尺寸密缝岩板砖……各类高定艺术型材,于无声之中将艺术格调拉满。
装标上也是一绝,有方太高端版本的智能厨房四件套、博世双开门冰箱、海德泰克(或同等档次品牌)的末端净水器、日立的中央空调、唯宝龙头花洒等。

生活示范空间仅为展示,里面的布局及装饰均为第三方装修提供,仅作为展示效果使用,如有更改敬请留意最新资料,具体以合同实际交付为准。
当下600万级中的市场不乏好产品,但是非要挑选一个足够惊艳的项目,我投象屿·天宸雅颂一票。
从“户型全面迭新+场景革新性+装修奢享性”三重突破,到真正诠释“一生之宅”的好房子作品。让全上海的购房者叹为观止,真金白银为之投票!
2 卷破天际的产品力
约5500㎡超大会所+美学社区
浦江终于迎来限量版豪宅!
六批次加推新品,匠心荟萃:23#、33#、37#央景臻品,主打建面约101-128㎡墅质园境高层。创新3S墙(部分)设计、270°全景双舱(仅边户),视野与功能双重升级,以现代雅奢理念重塑园境生活美学。
同步推出2#、6#颂墅新品,姚家浜与大寨河双河环抱,围合城市稀缺半岛谧境。容积率仅约1.2,全区限量打造166席,涵盖建面约143-154㎡墅境叠拼及建面约186-232㎡宋风联排。
项目溯源《营造法式》,以“3归7制12境”为纲,全系臻装交付,配备博世厨电、唯宝卫浴等国际品牌,让传统东方美学焕新当代墅居。联排产品更直面浦江郊野公园,推窗见景,静享自然与建筑相融的和谐意境。
此外,社区南北双区共享约2500㎡莫奈花园会所,内含恒温泳池、健身房、瑜伽室、私宴厅与水吧台等多功能空间,既是业主日常休闲社交的高端场所,亦是圈层雅聚的理想之地。
示意图,仅供参考
1、造价不菲的实景示范区
在产品把控上,象屿·天宸雅颂以超越同价位段的标准,打造经得起时间考验的品质住区。光是第一眼见到的门头就造价不菲,顶部做了500多片的镂空透光铝板雕花花瓣,全都是从项目LOGO的形状演化而来。

现场实景图
摩登旋转楼梯。楼梯已经贴上了定制的叶片状玻璃栏杆,朦朦胧胧的透光感,将会所旋梯的审美力,又拉上一个全新的高度。
实景图
2、美学意义的外立面。
外立面上,弧形设计贯穿始终。采用精致铝板装饰+通透大窗的美学立面设计,打造弧面窄框艺术之境;创新270°的弧面转角建筑美学,全景视野,豪宅风范。
示意图,仅供参考
3、比肩两三千万级豪宅才有的会所
约2500㎡莫奈花园会所,预计包含泳池、健身房、瑜伽室、水吧台、私宴厅等功能,其设计灵感源自印象派大师莫奈的花园美学;
售楼处示范区实景图
约3000㎡架空层泛会所:以“一栋一聚场”(部分)为理念,最高层高达4.5米,打造社区里的泛会所空间。

示意图,仅供参考

还有浮岛美学园林:以“林岛漫步-循水归岸-闲庭雅致”三重动线,将浦锦水岸的奔涌韵律与郊野公园的森氧秘境,营造移步换景的归家仪式.......

示意图,仅供参考
风雨连廊覆盖约三分之二楼栋,巧妙连接着高层核心景观节点和功能空间,即使是雨天,业主也能从容漫步至单元门或会所。

示意图,仅供参考
这样的大手笔,整个板块中找不到第二个同类项目。这些不仅是项目未来流通的价值基础,也让业内人产生惊叹:这是一个不太像象屿打造的产品,集“松弛、年轻、奢宅”风格于一身,极具颠覆性!
同样的,它的价格也令人惊喜!象屿·天宸雅颂与前滩仅6站地铁,二批次价格约6万/㎡,只有前滩的一半不到。相当于是用浦锦的价格,享受到前滩的品质!
核心区前滩板块,新房虽断供,但次新二手房价格迅速回暖,甚至跳涨。
如中粮前滩海景壹号,成交价在15万以上;晶耀名邸,117㎡中高区,最新单价也来到了15.72万。前滩东方惠礼,最近的一室户成交单价15.3万/平,对比一个月前,单价上涨了近2万!
好项目从来不缺好买家。当下,越来越多购房者愿意为品质买单,无论是中环南大、新杨思,还是杨浦滨江,高品质已成为楼盘的热销密码。浦锦好久没有出现过以品质著称的标杆作品,谁看了能不心动?
3 前滩辐射+闵行规划的新浦江中心
潜力超预期爆发
在最新的上海2035规划中,要将闵行建设成为上海卓越的全球城市、具有世界影响力的社会主义现代化国际大都市的重要战略支撑区,品质卓越、生态宜居的现代化新城区。
而浦江镇作为上海顶级战略规划“一江一河”的重要组成部分,承载着“生态居住”的重要地位。象屿·天宸雅颂所在的浦锦新中心,已被纳入市级战略储备用地,未来将承接国际会议中心、滨江艺术馆等重大配套,区域能级跃升潜力巨大。

浦江新市镇,未来将构建一廊三带,一主两副多点的空间战略布局。总规约773万㎡巨幅生态绿地面积,蓝绿空间约57% ,人均不低于约22㎡的绿地享受!
板块内的桃花源、华侨城、一品漫城等高端别墅,构成了浦锦低密国际住区的浓厚居住氛围,正是前滩、漕河泾产业园、张江高净值客户所寻求的墅区净地。
当然,自身的产业实力也不容小觑。东面是浦江镇的产业园区,包括浦江智谷、国家863软件专业孵化基地,以及漕河泾浦江高科技园,也就是临港浦江国际科技城。
产业红利:千亿级科创走廊,锁定未来十年增长极
作为“大零号湾”、上海南部科创中心重要承载区,浦江与吴泾产业园区相联,共同构筑闵行滨江产业轴,以“3+3”现代产业体系,先进制造业:新一代信息技术、生物医药、高端装备;现代服务:文化创意、科技服务、总部经济,打造上海南部科创中心“智造”基地,驱动浦锦价值跃级。随着前滩产业外溢加速,浦锦新中心已纳入上海“五大新城”联动规划,未来将形成“产城融合黄金走廊”,区域价值跃升指日可待。

新浦锦中心沿袭闵东文创中心定位,以蓝绿环绕为基底,历史人文为内涵,产业更新为驱动,新浦锦中心将衔接闵行与浦东新区,打造黄浦锦沿岸崭新的生态交织、文化自信、产城融合能量聚集地。
新浦锦新中心将围绕沈杜公路TOD打造创智总部湾、大型商业、艺术街区、文化展览、滨水码头、高端住宅等,以世界前沿Live-Work-PlayShop模式,为上海打造高度复合等职住平衡10分钟生活圈。
交通便捷:8号线TOD枢纽(规划中),快抵前滩CBD
项目距8号线沈杜公路站仅200米(直线距离),作为市中心唯三经过人民广场的轨交线,8号线直接串联前滩、徐汇滨江、陆家嘴三大黄金三角,形成“一站换乘、多核联动”的超级交通网络。
还可以换乘浦锦线,通达上海南部。从项目出发前滩直达仅6站,通过东方体育中心站换乘6/11/19号线(在建),可快速触达徐汇滨江及陆家嘴。

商业方面,项目高层东侧规划约15万方的商业,该商业地块应于住宅一并打包出让,共同组成真正的TOD项目!

前滩商业集群实景图
另外距离项目约3.3公里有浦江城市生活广场、绿地乐和城,约3.9公里有万达广场、4.4公里有浦锦欢乐颂等商业。
教育方面,项目周边规划有一幅幼儿园用地,参考周边,未来项目对口浦锦镇第二小学。(新房不承诺学区)
另外在项目北侧规划有一所民办学校,该校舍建成后,将迁入上海市民办协和尚音学校(九年一贯制)、上海闵行协和海富幼儿园,由协和教育中心举办。医疗方面,距离项目约3公里有仁济医院南院以及复旦大学附属眼耳鼻喉科医院。

生态方面,象屿·天宸雅颂项目西侧与南侧紧邻上海第一个4A级郊野公园——浦江郊野公园,约15.29平方公里的超大公园就在家门口,畅享四季皆景的生态资源。

写在最后:作为整个上海600万级价格段的黑马,其一批次热度证明了它的价值。并且,随着市场高溢价土地的出让,未来新房越来越贵。
在这样的市场下,象屿天宸雅颂这个更靠近前滩、更适合通勤、更具产品力的新房,仅约600万级,这个质价比可想而知。这已经预定了2025年的爆款项目了,抓紧机会!
象屿天宸雅颂售楼处电话:400-1789-208
声明:本文由入驻焦点开放平台的作者撰写,除焦点官方账号外,观点仅代表作者本人,不代表焦点立场。
