招商中旅观境营销中心热线:400-8669-938
编辑

最新消息,「招商中旅·观境」347万起!北上海TOD精奢人居标杆!将推建面约110-144㎡3-4房!
北上海TOD精奢人居标杆
7号线潘广路站66万方TOD大城全面进阶
招商中旅·观境
加推89-110㎡产品 共计142套
89㎡户型首次推出
过会均价47466元/㎡ 比前期便宜3000
前期少量110-144㎡3-4房在售
同内环豪宅同级别的精装标准
超配酒廊,泳池,健身等功能的星级会所
下沉庭院、架空层、酒店式入口、奢华公区···
兴趣的小伙伴可扫码对接销售预约咨询
最新一房一价表:
编辑

认购时间:8.22-8.24中午
编辑

最新一房一价表:
编辑

01、基本信息
2024年7月9日,招商蛇口&中旅投资拿下宝山顾村7号线潘广路站旁地块。
楼板价:约22252元/㎡,地块四至范围:东至0314-06 地块(公共绿地),南至0314-06 地块(公共绿地),西至0308-01 地块(公共绿地),北至言观路。
编辑

流体美学:以设计艺术品的态度来建造房子
项目采用 鎏金塔冠造型,灵感来源于国际邮轮港的曲线,流光美学的外立面,既有辨识度又有质感,是未来业主身份的象征。阳光倾泻而下,在不同光影与环境下,让家成为一件艺术品。
编辑

镜面美学:不仅美观还很实用
整个建筑立面,被大面积的镜面玻璃覆盖,于外赋予建筑如同钻石一般的光感,于内极大地拓宽了室内的视野,让自然光线无拘无束地洒入每一个空间。
编辑

立面部分,微弧造型,配置超大窗墙比, 非对称线条勾勒经典比例建筑体量,消解了建筑的庄严和冷峻,赋予更强的立体感,犹如画框一般,多了一份艺术沉淀。
编辑

同时,将轻法雅奢的圆润线条贯彻于大门雨棚、入户门头之间,赋予建筑艺术灵动之意,重塑大城人居美学。
编辑

社区上, 项目享四重酒店式归家
第一重:约70⽶超⼤尺度酒店感门庭,打造酒店般的港湾式落客。
第⼆重:酒店式礼品⼤堂,以星级酒店审美融合⾮遗技艺,每次回家宛如⼊住酒店的check in。
第三重:浮岛⽔庭,下沉式中庭花园,以⽔境、浮岛、密林,构建都市中的谧境。
第四重:⼊户单元门头延续奢华酒店的美学质感。
编辑

招商中旅·观境,带来的不仅仅是美学体验上的升级,本次地块更是配置了约2000㎡的无边际高定会所,带来全方位的奢享升级。
据悉,未来该会所,将成为业主日常休闲的好去处,配置了行政酒廊、无边泳池、健身房和私宴厅等功能。
编辑

想象一下,未来业主下楼即可运动休闲,高端的健身器材,丰富的健身配套,都可以满足业主日常的健康所需;亦或是接纳来客,喝杯咖啡洽谈商务;或者年末预定晚宴等等……
编辑

多功能场景,足以满足业主的各类需求。要知道,在外环,配置泳池会所的商品房项目,屈指可数,上海星河湾、颛桥紫薇花园……虽然在外环,但这些 配备了泳池会所的楼盘,都是一线豪宅标准。
编辑

酒店级礼序,塑造度假园林生活
酒店级礼序,绝不仅仅是简单说说。招商中旅·观境所做的,是 归家礼制、社区景观等方方面面的全面奢享高定。
先说归家礼制,四重酒店式归家:
第一重,配置约70米宽酒店感门厅,回家的第一眼,就有强烈视觉冲击,港湾式落客,尊贵感油然而生;
编辑

编辑

第二重,星级酒店式的礼宾大堂,挑高带来的庄重感,每次回家都像来到五星级酒店check in;
编辑

未来业主出行等车,也完全可以在此稍作等候,奢石的奢华感,辅以温润的灯光,宁静安逸。
编辑

第三重,下沉式的中庭花园,⽔境、浮岛、密林,构建都市中的谧境,摩登的水院,华灯映入水池,映出池底的金光色,雍容华贵,畅享宁静;
第四重,来到入户门厅,奢石铝板塑造厚重感,弧形的屋檐,带来流线型的美感。
编辑

整一套归家仪式下来,生活的烦忧,统统抛诸脑后,只剩下家的温馨。
02、推售信息
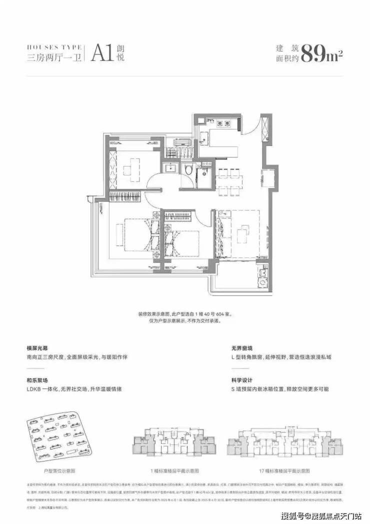
招商中旅·观境加推89-110㎡3房,过会均价47466元/㎡,共计142套,89㎡户型首次推出,前期建面约110-144㎡少量房源在售。
编辑

编辑

编辑

编辑

编辑

大横厅+约5.5米面宽的阳台,尺度感惊人。
并且,在撑起气场的同时,也能为生活增添更多的场景想象。
编辑

3房4飘窗1阳台的设计,更是延伸了套内的视野,也增加了实际的居住空间。
尤其是 边套约270度的无柱飘窗,更是尺度感和实用性拉满。
编辑

编辑

整个户型是四开间朝南+南北通透的飞机户型。
编辑

编辑

在传统的四房领域,2房朝北几乎是逃不掉的问题,但在招商中旅·观境,做到了三间卧室朝南,并且主卧拥有一个约270度的主卧无柱转角飘窗。
编辑

整个户型的采光、通风、实际使用空间拉满。
细节方面,主卧套房设计,保证了私密性。主卫的双台盆设计更是相当贴心。能实现男女主人共同洗漱的温馨场景。
编辑

总的来说,从格调、定位、风格、用料、宜居性、社区配套的丰富性..各个角度来看,招商中旅·观境都能称得上是北境的TOP1。
03、区域版块
北上海能级兑现 新顾城开启中心时代
❍上海南北转型战略 宝山树立北上海门户定位
宝山作为上海链接长三角北翼门户,打造现代化、创新型、⽣态化国际⼤都市主城区和绿⾊低碳转型样板区,在上海南北转型契机之下, 融入沿海沿江经济带,能级再度提升。
❍6大TOD+超级目的地 宝山主城规划加速兑现
宝山汇聚了招商等众多最具实力的开发力量,筹划丰翔路,潘广路、南大路、宝山站、通南路、呼兰路6大TOD,在上海各区中遥遥领先。
❍新顾城 北上海崛起的必然节点
新顾城定位为上海北部产城相融合、配套高标准、宜居多元化的大型居住社区,必然承接宝山产业升级转型和创新发展的海量人才居住需求,成为北上海宜居核心。 简单说一下项目, 招商中旅·观境毗邻7号线潘广路站,2站顾村公园,并途经上大、长寿路,直达静安寺。
编辑

大家知道,这里规划了招商花园城X,招商时代乐章也在隔壁,可以说共筑潘广路TOD大城。
上一个招商花园城X项目位于浦东曹路,秉持“X+商业”差异化策略,打造了曹路市集、室外36米的“天环飞瀑”、屋顶星际跑道等特色场景,并以超200个的全业态品牌数量,超50%的区域首店,成功点燃区域消费热情。
开业当日,曹路招商花园城客流破10万人次(工作日),开业前4天总客流超58万人次、总销售额逾3500万元。而这一次潘广路的招商花园城X商业会比曹路更高能级、更大体量。 【20+主次力店 共创城市奇幻之旅】
编辑

编辑

预计引入20+主次力店,在X+商业理念,塑造缤纷场景,创造多元体验,带你开启城市中的奇幻之旅。
编辑

❍人文x生态:超级场景 打卡多元体验
家附近的微度假。引入海洋馆、冰雪世界、恐龙园等IP场景赋能,打造沉浸式空间,北上海城市微度假的一道靓丽名片。
编辑

商业上,附近还有龙湖天街商业中⼼、正⼤乐城、宝龙⼴场、旭辉U天地。
北上海TOD精奢人居标杆
7号线潘广路站66万方TOD大城全面进阶
招商中旅·观境
加推89-110㎡产品 共计142套
89㎡户型首次推出
过会均价47466元/㎡ 比前期便宜3000
前期少量110-144㎡3-4房在售
同内环豪宅同级别的精装标准
超配酒廊,泳池,健身等功能的星级会所
下沉庭院、架空层、酒店式入口、奢华公区···
招商中旅观境营销中心热线:400-8669-938
编辑
