总价 370 万起入宝山 TOD!「招商时代乐章」红盘热销,名校加持 + 地铁上盖,约 89-126㎡三房,附线上预约通道!
扫描到手机,新闻随时看
扫一扫,用手机看文章
更加方便分享给朋友
7号线潘广路TOD招商时代乐章
与南翔、华漕、徐泾同为外环外第一梯队板块
区域唯一TOD、距离轨交更近的新房
自带地上地下总体量约25万方商业
还有断层领先的产品力
二期少量建面99-128㎡3房热销中
「招商时代乐章」占位上海主城区,与它同维度的板块新房,价位近乎全面突破6万+,像唐镇、颛桥等成熟的置业地,价格甚至突破了7万大关。
同时,项目所在的区域,还属于顾村板块中“大力发展”的重点:新顾城板块!
在2035规划中,这里被明确点出将成为上海主城又一新兴的城市重点板块!项目将享受到更为重磅的利好!
新顾城以“改善民生、促进城市更新”为导向,将集聚城市功能,建设成为一个宜居、宜业、宜商、产城高度融合的新一代大型居住社区!规划总建筑面积638万平方米,规划人口14.2万。
新顾城规划总示意图
尤其是总投资为17亿元的新顾城“智慧方洲”产业园,将给板块内带来更旺盛的“生命力”!
上海从来不缺产城融合的例子,漕河泾、张江甚至大虹桥都是如此,新顾城也将“踩上”产城融合的热潮!
新顾城“智慧方洲”产业园效果图
还有,项目周边直线距离约500m范围内的规划,涵盖教育、商业、生态,无一不是贴合日常所需,未来的生活质量可想而知。
(具体地块用途来源:新顾城控制性详细规划图)
本身已经成熟的核心资源+愈加完善的周边配套+重磅定位的产城融合,这些都是招商时代乐章位于主城区内的核心优势!
要知道,同纬度的新盘,哪怕不是主城区内,基本都已经达到了6w+的单价!
示意图
2024年一批次土拍中,顾村板块内新地块联动价格为5.1万/㎡,上调了3000元/㎡!而该地块距离地铁商业均在3KM左右!
示意图
显然主城区内的「招商时代乐章」性价比更凸出!未来的可能性更加广阔!更值得优先选择!现在买入也是更好的时机!
小区规划建设
项目联通城市轨交、快速直达主干道和开放街区步道,打造三重立体路网体系,构筑组织多样性,实现快耍慢活的生活节奏,并借此串联起TOD大城里的商业、公园、街区、广场、地铁、酒店,六大场景。
让社区即城市,以多样业态构建生活底色,用更极致的便捷,来实现生活更自由的节奏,营造城市Chill基调。
中央商业、街区商业、社区商业三重商业体系不止满足人们购物休闲和日常生活的需求,外摆和露台空间,丰富的城市公共空间,更让现代人所向往的早C晚A的生活更好实现。不同时段下呈现不同内容形态,引导人们离开建筑内部,来到城市中,与周边的人、自然与建筑发生更多关联。
既形成“层次感品质住宅”的认知,又创造出城市里的“美学灯塔”。
社区入口对标慢奢酒店风格打造,融入高定细节,诸如酒店感仪式门头+环岛式尊崇落客+迎宾式花园设计+精装地库等。
归家门厅设计为弧形顶棚,非对称构图,圆润的形式提供给业主放松的情绪价值。可以说是处处体现人居的松弛感和舒适度。
整个社区被水系环绕,繁星式楼栋布局,充满仪式感的景观与浓绿自然的植被,无论是精心设计的景观小品,还是那郁郁葱葱的树木花草,都让你在繁忙的生活中找到一份心灵的慰藉与安宁。
被水系环绕的社区,繁星式的楼栋布局,充满仪式感的景观与浓绿自然的植被,无论是精心设计的景观小品,还是那郁郁葱葱的树木花草,都让你在繁忙的生活中找到一份心灵的慰藉与安宁。
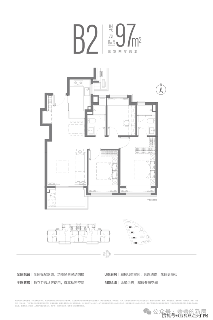
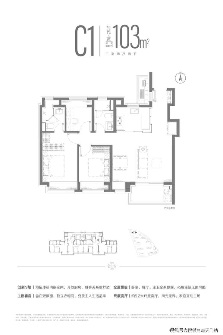
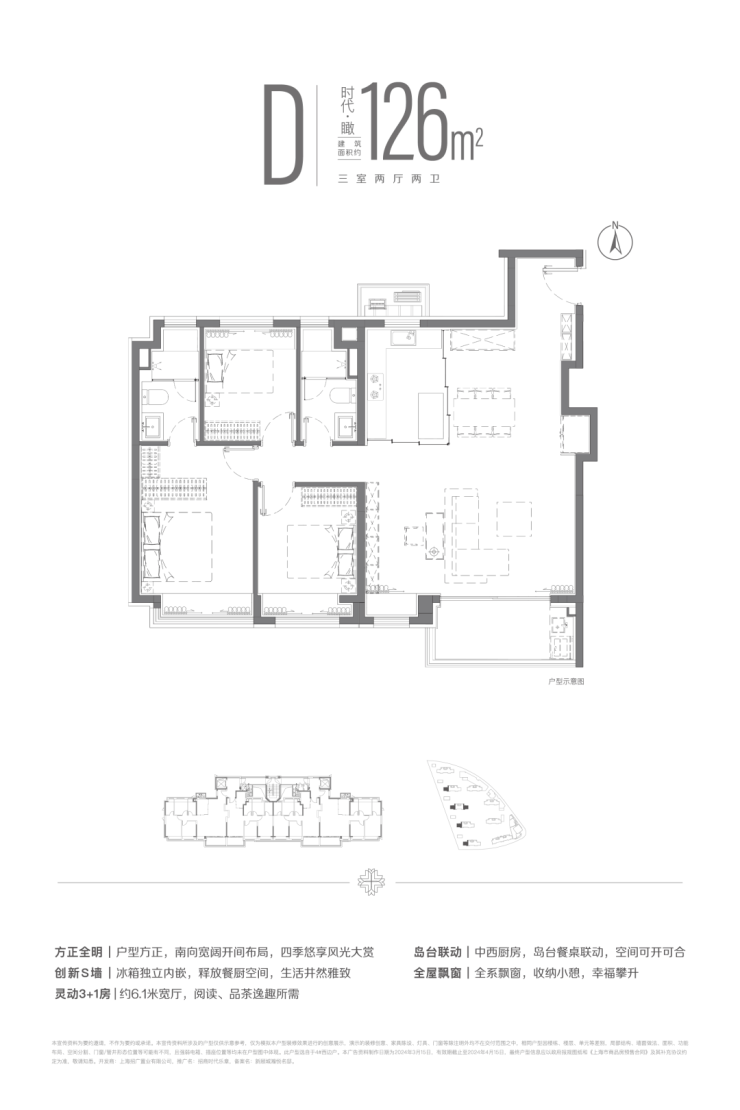
这次项目即将推出建面约89㎡-126㎡的3房产品,每一款户型做的都很”神“,每个户型都有一个共性--S形墙体。
项目是7号线潘广路地铁上盖的TOD新房,都不用说步行多少米到地铁了,「下楼就是地铁」可能是这里最大的标签。

值得一提,在7号线潘广路站坐2站就能到顾村公园站,换乘15号线能便捷到达长风、长宁、漕河泾,甚至紫竹高新区等多个沪上高能级商务区。同时,在远期规划中,宝嘉线也会在潘广路站设置站点。
招商时代乐章出门两站后就有三轨交,通勤覆盖市区的范围很广。
除了通勤效率翻倍,作为市区的延伸,主城区已经少有地铁口红盘,但只要出现,往往是新中心枢纽的原始股,比如华泾、梅陇、华漕等板块。

地铁房的优势之外,招商时代乐章的配套TOD商业北城招商花园城X是值得期待的大型商业体——
上一个招商曹路花园城位于浦东曹路,项目秉持“X+商业”差异化策略,打造了曹路市集、室外36米的“天环飞瀑”、屋顶星际跑道等特色场景,并以超200个的全业态品牌数量、超50%的区域首店成功点燃区域消费热情。
开业当日,曹路招商花园城客流破10万人次(工作日),开业前4天总客流超58万人次、销售额超3500万元。

而这一次潘广路的招商花园城X商业会比曹路更高能级、更大体量,具体信息大家可以到售楼处具体了解:
我们来看一下目前的招商进展,这样的商业配置可能也是整个北上海的更高标准——
在6楼屋顶花园,花园城将引进常州恐龙园的合作方,以经久不衰的侏罗纪世界级IP为背景,打造科技互动探索基地,通过数字孪生科技+ 沉浸式场景塑造让人身临其境感受亿年前的“真实世界”,面积高达15000平;

意向图,仅供参考
另外花园城预计还将引入冰雪世界,将冰雪、娱雪植入购物中心,集合一众衍生业态(如雪地户外、雪山攀登等),与地块内酒店形成异业联动,创造最具话题性、距离市区 最近的冰雪玩乐体验圣地。

意向图,仅供参考
预计引进面积高达4500平的电影院,预计标配高12米的中国巨幕;还有奈尔宝科技体验旗舰店;(信息来源于网络,招商以实际落地为准)

意向图,仅供参考
放眼全上海,能够在级总价段兼顾「地铁上盖+配套商业」的项目几乎绝版,而可以配备这样高品质商业综合体的项目更是少之又少!「招商时代乐章」可谓是独一份!
占据上海主城区——顾村板块核心地带,是宜居、宜业、宜商、产城高度融合的新一代大型居住社区;
真正的地铁房!自带地上地下总体量约25万方商业,其中纯商业体量位列全市TOP3;
更重要的是,由央企招商打造、拥有“超配”精装,产品力碾压同级!
「招商时代乐章」可以说是全能型多边形战士!
【招商·时代乐章】项目将推出建面约89㎡-126㎡的3房产品,每一款户型做的都很”神“,每个户型都有一个共性--S形墙体。
四期一房一价表:

四期首开楼栋:

样板房最新视频介绍:
01.项目官宣户型如下







招商时代乐章售楼处电话:400-1789-208
声明:本文由入驻焦点开放平台的作者撰写,除焦点官方账号外,观点仅代表作者本人,不代表焦点立场。
