上海闵行《聚仁虹桥九境》—大家千万别踩坑了,进来聊聊
扫描到手机,新闻随时看
扫一扫,用手机看文章
更加方便分享给朋友
上海闵行《聚仁虹桥九境》
售楼处电话:400-101-9071接通后输入333
提前来电预约,可享内部房源折上折,当天下定可享砸金蛋活动,签约送礼品家电一台。
自驾看房,提前来电确定路线,可报销油费、过路费,班车免费接送。
【聚仁.虹桥九境小面积商办独栋别墅】
本项目位于闵行区七宝古镇板块,周边紧邻上海西部较大的虹桥枢纽和上海南站,同时本案处于虹桥商务区、漕河泾开发区、上海会展中心、与七宝较大商圈的核心位置,毗邻七宝最为密集的居住区域 13万常驻入口。
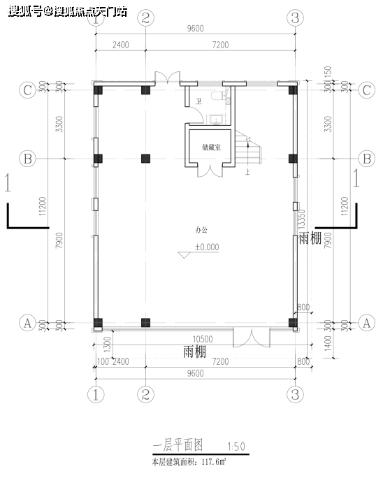
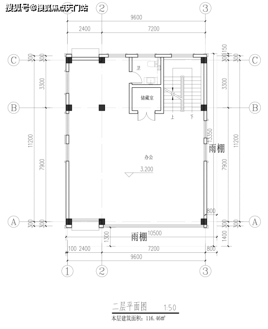
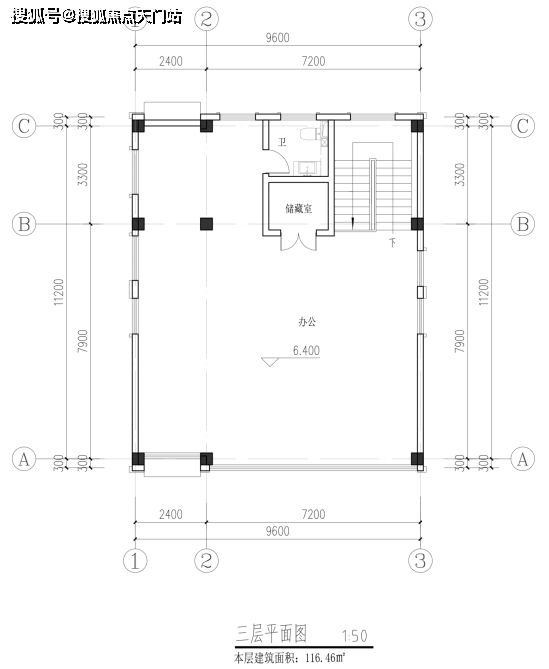
独栋面积:356平、大平层1000平
总价:约2000万
交房:2021年底
产品类型:小独栋、底商
电费:1元/度
水费:6元/吨
物业费:15元/平
层高:约3.3米
1.不限购不限贷、独立空间、私密性强
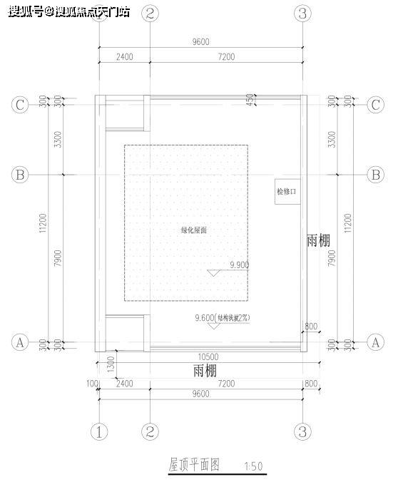
2.小独栋,地上三层、屋顶花园
3.大虹桥枢纽、商务、会展中心辐射圈
4.距离项目500米五所高端及国际学校
5.距离机场火车站3公里自驾五分钟
6.紧邻七宝古镇最为繁华密集的大型商圈
7.得房率高、落地玻璃幕墙
8.骑行十分钟到达地铁9号线、10号线
9.自驾3-10分钟7个高速3个高架闸道口
10.综合交通,五维立体交通体系,通往世界的“登机口”,世界近在咫尺。
项目西七莘路 机场火车站必经之路
沪星路往西500米即可到达G50高速
本案仅有9栋小面积办公独栋
屋顶绿化处理,打造多维复合体、丰富滨水景观 与建筑融为一体、增加人气。
周边紧邻虹桥枢纽、虹桥商务区、七宝商圈、千年古镇、上海会展中心、漕河泾开发区,地理位置得天独厚
七宝最繁华商圈近在咫尺,家乐福,华夏茶城,万科广场,汇宝购物广场,深海鱼港城及购物中心
万科双语学校距离项目仅200米、周边吃喝玩乐一应俱全……




上海闵行【聚仁.虹桥九境】
售楼处电话:400-101-9071接通后输入333
提前来电预约,可享内部房源折上折,当天下定可享砸金蛋活动,签约送礼品家电一台。
自驾看房,提前来电确定路线,可报销油费、过路费,班车免费接送。
声明:本文由入驻焦点开放平台的作者撰写,除焦点官方账号外,观点仅代表作者本人,不代表焦点立场。
