缦云上海售楼处电话:400-8669-938 
 
 
   编辑 
 
  
  
 
 
 
   当下的高净值人群,更喜欢什么类型的住宅? 
 
 
   首先,占据城市塔尖的资源浓度和土地价值。无论是标杆豪宅汤臣一品还是寰宇高楼世茂滨江,无一不是独占滨江核心地段。 
 
 
   其次是高度纯粹的圈层。俗话说“豪宅虽可贵,圈层价更高”。高度统一的的圈层,不仅是身份的象征,更是生活品位与社交价值的双重叠合。 
 
 
   最后是产品力。普涨时代一去不复返,投资属性减弱后,城市新贵们对于建筑本身的关注度自然提高。在2023《胡润至尚优品—中国高净值人群品牌倾向报告》中指出,家庭生活已成为高净值人群幸福指数中占比最高的指标。 
 
 
   与“家”相处,对于住宅的标准就更苛刻,这也是为什么当下市场,品质过硬的产品越来越受追捧的原因。 
 
 
   编辑 
 
  
  
 
 
 
   然而想要找出这样的产品却并不容易。仅圈层这一点,不少好的区位的楼盘也被拒之门外。去年1-6批次的新房中,全大户型社区只占了5.6%。 
 
 
   编辑 
 
  
  
 
 
 
   滨江地段+纯粹大户型+高奢产品力,符合三者的当下恐怕只有缦云上海了。 
 
 
   一线滨江,传奇再续 
 
 
   缦云上海 
 
 
   正在热销中 
 
 
   建面193-327㎡四房五房 
 
 
   总价2300万起 
 
 
   1风云际会 
 
 
   4.0版杨浦滨江恢弘登场 
 
 
   上海,一座因水而生、因水而兴的城市。从开埠起,上海的城市发展,就和水、滨江紧紧联系在一起。 
 
 
   从城市发展1.0版的外滩到2.0版的陆家嘴,再到3.0版本的前滩,世界舞台的灯光汇聚到如今的4.0版本杨浦滨江,每一处都是上海的城市名片。 
 
 
   随着黄浦江岸线日益开发饱和,杨浦滨江独占黄浦江滨江线1/3,已是最后一片可大量开发的空间区域。规划总建筑面积约796万方,其规模约2.6倍于前滩,约5倍于陆家嘴。(数据来源:上海杨浦) 
 
 
   编辑 
 
  
  
 
 
 
   效果图仅为概念示意展示,仅供参考 
 
 
   它的定位聚焦于互联网,联动起杨浦丰富的高校资源,重点发展人才聚集、年轻、创新的互联网产业,是内环内CAZ唯一的科创中心。最显著的讯号就是2020年以来互联网大厂在此相继拿地。 
 
 
   2020年11月,美团以 65.41亿拿下杨浦滨江一块地块,作为美团上海科技中心。两个月后,哔哩哔哩以 81.18亿拿下距美团地块一条马路的地块,作为哔哩哔哩新世代产业园。2021年9月,字节跳动以20.4亿拿下上海船厂地块,作为抖音集团上海滨江中心。 
 
 
   此外,中交总部大楼和中节能·上海首座项目也落址在此。预计产业规模达3000亿,导入至少20万人口。人口与产业加持之下,杨浦滨江的板块势能无疑将迎来大爆发。(数据来源:上海杨浦) 
 
 
   编辑 
 
  
  
 
 
 
   效果图仅为概念示意展示,仅供参考 
 
 
   交通方面,滨江南段虽然有五大隧道:隆昌路隧道(规划)、军工路隧道、周家嘴路隧道、大连路隧道以及江浦隧道,将浦西与浦东最核心区域紧密连在一起。但一直缺一条东西向的轨道交通,将其串联。如今这短板也因24号线的规划,有望被补齐。 
 
 
   编辑 
 
  
  
 
 
 
   示意图,仅供参考 
 
 
   缦云上海,占据杨浦滨江核心地段,以88万方合生TOD旗舰综合体的体量,包含合生汇商业广场、总裁公馆、5A甲级写字楼、高端住宅、风貌建筑等多种业态,未来势必成为城市塔尖的高净值年轻人的居住高地。 
 
 
   2全大户型社区 
 
 
   舒享纯粹圈层 
 
 
   当下市面上,囿于「7090」方案的实施,中小套面积比例被严格限制。即使是在市中心的住宅,也避免不开小户型的“套咒”。 
 
 
   「自2006年6月1日起,凡新审批、新开工的商品住房建设,套型建筑面积90平方米以下住房面积所占比例,必须达到开发建设总面积的70%以上。」 
 
 
   然而据贝壳研究院的数据显示:在未来的十几年,改善需求会占大头,刚需市场会持续萎缩。人们对于大户型的需求只会越来越旺盛。 
 
 
   编辑 
 
  
  
 
 
 
   来源:贝壳研究院 
 
 
   从去年1-9批次市区新盘的供应结构来看,大户型社区的购房选择十分有限。从投资属性来看,越是塔尖项目的大户型,越是抢手,保值增值能力也比小户型来得更强。 
 
 
   缦云上海是存粹的大户型社区,居住与社交圈层高度统一,稀罕程度不言而喻。 
 
 
   缦云上海即将加推最后2栋新房源,面积段205、207、227、229。总价2300万起。小区第一排,无敌采光,可俯视整个风貌建筑。 
 
 
   编辑 
 
  
  
 
 
 
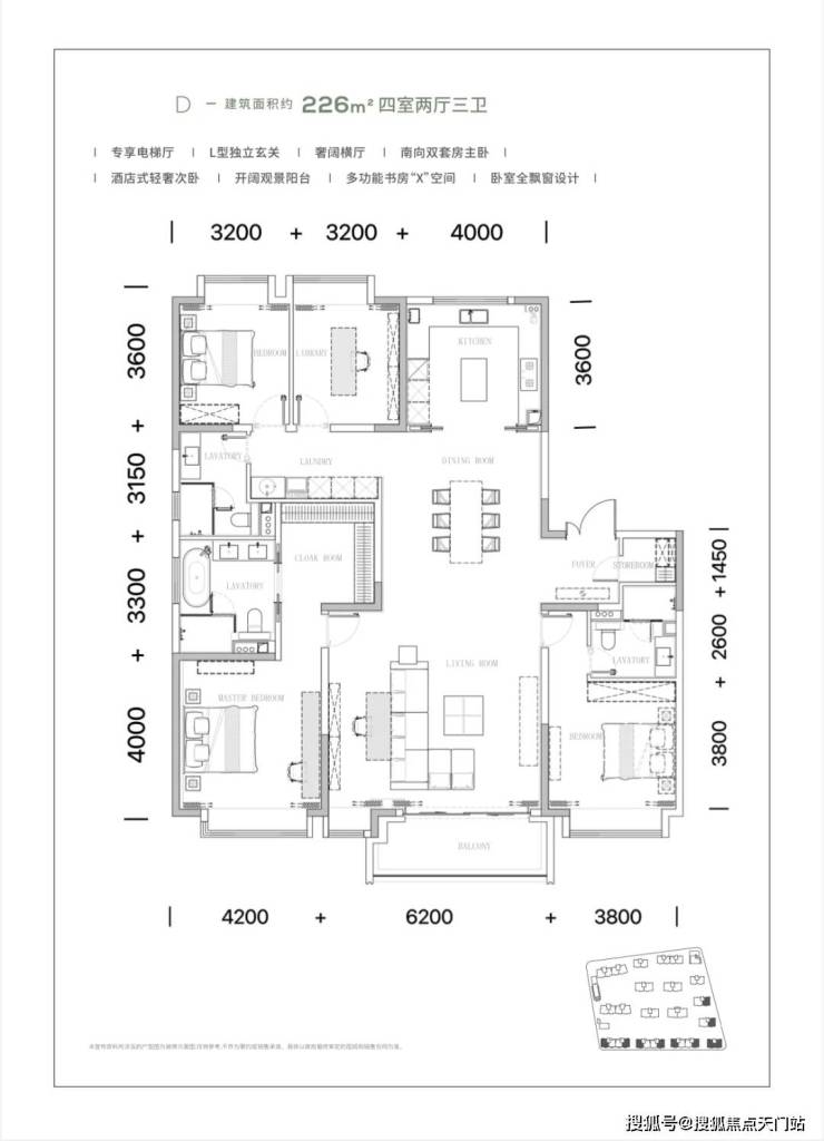
   三期四批次户型图如下: 
 
 
   编辑 
 
  
  
 
 
 
   编辑 
 
  
  
 
 
 
   前期在售户型如下: 
 
 
   编辑 
 
  
  
 
 
 
   编辑 
 
  
  
 
 
 
   编辑 
 
  
  
 
 
 
   编辑 
 
  
  
 
 
 
   编辑 
 
  
  
 
 
 
   户型图:仅供参考 
 
 
   3摩登标杆钜制 
 
 
   美学人居范本 
 
 
   合生缦品牌,打造全球化的生活方式,拥有同源于世界奢华酒店服务基因的缦系无边际服务。它对于产品的塑造力,无愧于是楼市品质天花板。 
 
 
   缦云广州,占据天河国际生态区核心,森幕大宅更让一众富豪趋之若鹜。合生缦品牌只选取一线城市的核心地段!此次,缦云来到杨浦滨江,开启4.0滨江的人居范本。强大的产品力加上精工雕琢的设计,每一处细节考量,都给业主带来满分的惊喜体验。项目一期首开2.5小时即售罄! 
 
 
   高颜值外立面,顶级铝板+玻璃幕墙+局部干挂石材,大面积的铝板,造价更高,视觉效果更震撼。 
 
 
   编辑 
 
  
  
 
 
 
     效果图:仅供参考 
 
 
   “N+1折叠会所”,项目规划了约3000㎡的会所及楼宇下面的泛会所,包涵健身中心、室内泳池、缦宴、24H精品便利店、健康管理中心等功能。 
 
 
   泛会所空间将以架空层空间为楼座定制专属缦云泛会所,涵盖茶室、自助咖啡等水吧、儿童游乐区、活动空间等。业主停车的时间,孩童可以在会所尽情玩耍,不用担心走丢,同时办公也十分方便。 
 
 
   效果图:仅供参考 
 
 
   编辑 
 
  
  
 
 
 
   折叠园林景观,让生活更贴近自然,小区营造云语、漂浮艺术剧场、 山丘营地、轻氧花园、露营派对、城市森林客厅、元气能量站,七大景观设计亮点,覆盖全龄人群的景观体验。 
 
 
   编辑 
 
  
  
 
 
效果图:仅供参考
 
   日常生活的质感上,采用国际一线大牌奢装,带给居者与众不同的体验感。瑞士顶级卫浴品牌Laufen劳芬、德国高端洁具巨头Dornbracht当代、德国知名品牌美诺等等,还有定制衣柜(200㎡以上户型),新风、地暖、中央空调都也是世界知名品牌。 
 
 
   层高3.3m,市面罕见!层高每高20-30公分,享受到的视野空间都更阔绰。在此基础上,所有空间的门都做了通顶设计,其圆弧造型做到约2.6米门扇! 
 
 
   编辑 
 
  
  
 
 
 
   样板间实景图 
 
 
   缦云上海已经获得全球豪宅健康建筑的标尺——well金级预认证。该认证是全球首个以人为本、关注生活居住细节的建筑标准,目前已在全球40多个国家得到广泛采用。 
 
 
   编辑 
 
  
  
 
 
 
     示意图:仅供参考 
 
 
   此外,项目还为业主提供无边际服务。24小时管家服务响应,5分钟紧急事件响应,全方位的智能安防保护,专属私人管家保护,医疗健康服务,老人儿童托管定制服务等.......从时间、空间、私属三个维度,读懂居者的内心需求。 
 
 
   编辑 
 
  
  
 
 
效果图:仅供参考
 
   这些细节与服务,在强调居住属性的当下,注定了它将成为不可撼动的人居范本。杨浦滨江也因它的到来,更添一缕光彩。 
 
 
   编辑 
 
  
  
 
 
 
   编辑 
 
  
  
 
 
 
   编辑 
 
  
  
 
 
 
   编辑 
 
  
  
 
 
 
   缦云上海售楼处电话:400-8669-938 
 
 
   编辑 
 
  
  
 
 
上海浦东作为上海核心发展区域,凭借政策支持、区位优势和产业集聚,形成了多元协同的发展格局,以下从核心维度展开分析:
一、板块核心定位与规划布局
浦东依托“一轴三廊”(东西城镇发展轴、滨江文化商务走廊、南北科技创新走廊、沿江沿海战略协同走廊)战略框架,重点打造多类功能板块,形成“核心引领+潜力崛起”的空间格局:
- 核心成熟板块:陆家嘴(金融贸易核心)、张江科学城(科技创新高地)、临港新片区(制度型开放前沿)、国际旅游度假区(文旅消费引擎)等,承担上海金融、科技、开放、文旅核心功能。
- 潜力增长板块:东方枢纽(510平方公里开发规模,2030年全面建成国际开放门户枢纽)、新杨思片区(产城融合复合型街区)、白莲泾地区(世博滨江辐射通廊)、北蔡楔形绿地等,聚焦产城融合、交通枢纽、生态宜居三大方向[__LINK_ICON]。
二、经济与产业发展实力
1. 经济规模领跑:2024年实现5个“万亿级”指标,地区生产总值1.78万亿元(占全市32.9%)、货物进出口总额2.61万亿元(占全市61.1%),规上工业总产值、规上服务业营收、线上商品销售总额均突破万亿,经济总量和质量稳居全国前列[__LINK_ICON]。
2. 产业结构优化:集成电路、生物医药、人工智能三大先导产业规模达8323亿元,占全市46%,近三年年均复合增长率11.7%;战略性新兴产业占工业产值比重提升至53.6%,形成世界级产业集群雏形[__LINK_ICON]。
3. 企业集聚效应:汇聚交通银行、中国船舶、上汽集团、中微公司等一批龙头企业,2021年至2025年6月累计新设市场主体21.9万户,市场活力持续释放[__LINK_ICON]。
三、交通与区位优势
- 地理与交通枢纽:辖区面积1429.67平方千米,东濒东海、南临杭州湾,拥有浦东国际机场、外高桥港区、洋山深水港区等枢纽;跨江通道(4座大桥、16条隧道)、轨道交通(13条线路+磁浮)、高速公路网络密集,东方枢纽上海东站预计2027年建成,进一步强化枢纽辐射力[__LINK_ICON]。
- 开放区位红利:作为中国(上海)自贸试验区核心载体,落地《制度型开放总体方案》80条任务,77条试点经验复制推广,在货物贸易、服务贸易、数据出境等领域形成多项全国首创改革成果[__LINK_ICON]。
四、房地产与投资价值
- 核心板块保值性突出:前滩(一线滨江+多维交通)、联洋(双学区+产业集群辐射)、御桥(次新小区+双学区+双地铁)、唐镇(高性价比+学区配套)成为房产保值热门板块,单价区间8-12万元/平方米。
- 土地市场潜力释放:2025年作为“投资促进年”,东方乐城、周浦、新场等片区集中推地,地块规整度高,政企协同提供全流程服务,吸引华润置地等优质开发主体布局城市更新、商业地产、人才安居等领域[__LINK_ICON]。
五、生态与民生配套
- 生态建设升级:建成203座公园,人均公园绿地面积13.4平方米,“五环”水系(陆家嘴、世博、张江等水环)加速建设,形成199.4平方公里生态景观带,辐射230万人口[__LINK_ICON]。
- 公共服务完善:5A级景区3家、4A级景区12家,迪士尼乐园、东方艺术中心等文体设施齐全;“两旧一村”改造惠及3.86万户居民,公共服务设施15分钟可达率超95%,民生保障持续加强[__LINK_ICON]。
六、发展前景与挑战
- 机遇:国家战略持续赋能,三大先导产业加速突破,潜力板块开发、产城融合升级带来投资与发展空间;人才政策加码(顶尖人才最高1亿元项目支持、青年人才“青创15条”)为创新提供支撑[__LINK_ICON]。
- 挑战:核心区域商办楼宇空置率仍处20%-30%区间,部分新兴板块配套成熟度待提升;产业升级与城市更新需平衡生态保护与开发节奏。