南翔大华星屿@官方聚焦嘉定南翔大华星屿2026新盘南翔大华星屿售楼处!南翔大华星屿户型价格地址电话交房配套详情解析

搜狐焦点天门站 2026-03-21 14:39:00
用手机看
扫描到手机,新闻随时看

扫一扫,用手机看文章
更加方便分享给朋友

大华星屿售楼处电话:400-118-3159(已认证) 大华星屿营销中心热线:400-118-3159(欢迎致电) 大华星屿售楼处预约电话:400-118-3159☎☎☎如有问题可来电咨询,预约销售专员,一对一为您服务!

大华星屿 售楼处电话:400-118-3159(已认证)

大华星屿 营销中心热线:400-118-3159(欢迎致电)

大华星屿 售楼处预约电话:400-118-3159☎☎☎如有问题可来电咨询,预约销售专员,一对一为您服务!

上海外环之王,为何被在这个盘出现后 连夜打出折扣,甚至不惜 得罪老业主?

外环顶流板块南翔的 时代之城,自从2024年6月以来 累计销售超1600套,是上海住宅套数销冠。

但最近隔壁 大华星屿面世,前所未有的危机感骤然来袭, 更好位置+更高实得率+价格屠夫大华,这一次南翔的竞争格局彻底变了!

小房弟为大家带来实地探房, 揭秘大华星屿的楼盘真相。

大华星屿位于嘉定南翔的云翔中央生活区,是陈翔公路轴线上最后一块宅地,西侧紧贴着时代之城,东侧是自然水系景观。

这几年南翔西社区发展速度很快,大华星屿被山姆会员店、南翔印象城MEGA、复旦系学校包围, 目前居住氛围已经非常成熟,更关键的是, 住宅新规后的产品迭代,让后发制人的大华星屿,有了超越时代之城的十足底气。

产品方面, 大华星屿容积率2.0,规划了8栋6层叠墅,4栋17层高层,一共432套房源,高层层高达到3.05米至3.1米。

外立面采用铝板和玻璃幕墙为主,没有做会所规划,不过说实话去隔壁时代之城也行,毕竟郊区会所的最终宿命都是社区健身房。

这次大华发力的重点是样板间,你可以说大华做豪宅是痴人说梦, 但他们搞郊区产品还是有一套的,抓住了空间感的核心需求。

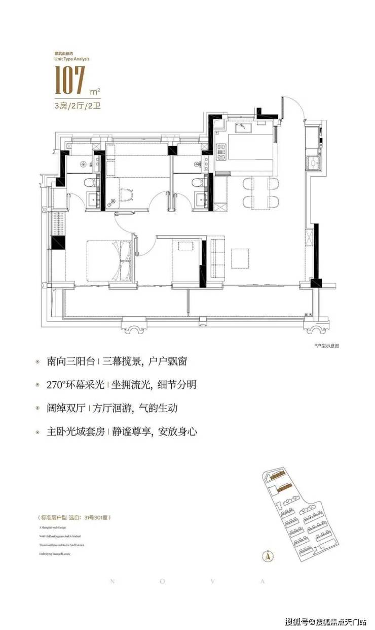
107平3房2卫,开发商号称实得率接近100%,做出了这个面积段罕见的5米面宽、9米纵深的客餐厅。

U型动线厨房可以完全打开,两个南向次卧都把阳台包进了室内,全部可以放下标准双人床。

主卧还是一个罕见的落地窗设计,直接把飘窗给干没了,这让隔壁时代之城陷入尴尬。

123平4房2卫,采用类一梯一户设计,非常少见的4开间朝南+4房南北通透户型。

亮点是拓展面积超过17平,规划了独立八百库储藏室,主卧自带独立衣帽间区域,样板间去掉了一个房间做大横厅, 整体空间感可能媲美板块150平左右二手房。

交付标准方面,大华一向主打实用主义,厨房配置西门子灶具油烟机洗碗机,进门玄关柜预留了洗衣机家政空间。

总结

大华星屿是南翔今年唯一住宅新规产品,虽然很多客户对大华避之不及, 但不得不承认他们做刚需和刚改产品还是很猛,再加上价格屠夫的名声, 如果定价低于预期,那么隔壁得房率更低、客户正在WQ的时代之城,可能就非常尴尬了。

大华星屿 售楼处电话:400-118-3159(已认证)

大华星屿 营销中心热线:400-118-3159(欢迎致电)

大华星屿 售楼处预约电话:400-118-3159☎☎☎如有问题可来电咨询,预约销售专员,一对一为您服务!

声明:本文由入驻焦点开放平台的作者撰写,除焦点官方账号外,观点仅代表作者本人,不代表焦点立场。