越秀·向东岛售楼处电话:400-163-9938
太仓越秀·向东岛售楼处地址电话:400-163-9938
【 越秀·向东岛】
越秀·向东岛五期
心归森岛 长三角城市住假范本
建面约143-265㎡瞰景平层 滨水叠墅

NO.1 项目简介
-------------------------------
【开 发 商】越秀地产
【区域板块】沪太双核中轴
【项目地址】上海市嘉定区新和路1558号 | 苏州太仓市富达路1号(双城门牌号)
【占地面积】约125470㎡(五期总占地)
【建筑面积】约313497.09㎡(五期总建面)
【建筑密度】约30%(五期)
【绿 地 率】约40%(五期)
【外 立 面】真石漆+金属漆
【户型面积】建面约143-265㎡瞰景平层 滨水叠墅
【 物 业 】越秀物业
越秀·向东岛售楼处电话:400-163-9938
太仓越秀·向东岛售楼处地址电话:400-163-9938
NO.2 品牌价值
-------------------------------
越秀地产,成立于1983年,1992年在香港上市,是中国第一家拥有香港房地产投资信托基金的内地房企;开创“开发+运营+金融”独特商业模式。截至2023年底,公司总资产超4010亿,总土地储备超2560万平方米,服务业主100万位。

越秀地产母公司——越秀集团,是广州市属龙头国企,拥有以房地产、金融、交通基建、现代农业为核心的“4+X”现代产业体系,控有境内外6家上市公司,截至2023年底,集团统计口径总资产超万亿元,中国跨国公司15强企业。
NO.3 区位价值
-------------------------------
【南门即上海】
越秀·向东岛位于上海嘉定区与太仓市交界处,南门为上海嘉定区、北门为太仓娄江新城,拥有上海新和路1558号和太仓富达路1号双城门牌号,生活半径归于上海。

(示意图)
NO.4 社区价值
-------------------------------
【滨水宜居岛 从度假到住假】
从世界一线城市的国际化生活方式中获取灵感,以全新的设计理念,打造越秀·向东岛,南侧为老浏河、北侧为新浏河,四面环水,整岛综合容积率约0.85,约1525亩森海岛居,长三角城市住假范本。

(实景图)
越秀·向东岛售楼处电话:400-163-9938
太仓越秀·向东岛售楼处地址电话:400-163-9938
【园林臻境 滨水八景】
以“岛居自然”的设计概念,打造约13.5万㎡滨河景观公园、约5000㎡岛心湖、约1KM滨河绿化景观带、约2.2KM樱花跑道及四季组团景观等。
凭借四面环水的优势,围绕新老浏河滨水带,形成森屿步道、春生草坪、岛上冒险家、清风草坪、林荫河畔、滨江花径、森溪谷、云谷花园、派对草坪等十余个四季景观组团。

(实景图)
越秀·向东岛售楼处电话:400-163-9938
太仓越秀·向东岛售楼处地址电话:400-163-9938
【全维社区配套】
越秀·向东岛,约6000㎡定制生活馆,包含高定健身会所、浮光恒温泳池、太仓图书馆分馆、森岛咖啡吧、亲子童趣乐园 ,岛内配套酒店(规划中)、风情商业街(规划中)、邻里中心(规划中)、学校(规划中)等多元生活场景,恢弘承载城市美好人居理想。

【丰富社群活动】
趣岛上,乐享生活。生活最好的样子不是一个人精致,而是一家人的精彩,岛上享有一站式配套社群活动,让业主轻松乐享100种生活。



越秀·向东岛售楼处电话:400-163-9938
太仓越秀·向东岛售楼处地址电话:400-163-9938
NO.5 配套价值
-------------------------------
【坐拥沪太双核中轴繁华】
越秀·向东岛,地处“嘉定北”发展腹地,紧邻连接太仓融沪桥头堡“娄江新城”,坐享上海嘉定与娄江新城双核中轴,一揽双区利好。

(示意图)
越秀·向东岛售楼处电话:400-163-9938
太仓越秀·向东岛售楼处地址电话:400-163-9938
【娄江新城——太仓城市的未来】
娄江新城位于太仓市东南部,规划总面积约50平方公里,以“上海下一站,下一站上海”的发展概念,是太仓深度融入虹桥国际开放枢纽建设的主阵地,聚揽一城丰盛配套。

(示意图)
越秀·向东岛售楼处电话:400-163-9938
太仓越秀·向东岛售楼处地址电话:400-163-9938
【多维立体交通】
打造“5+5”轨道交通体系,项目全面融入上海嘉定,快速通达嘉定与上海各区。
● 轨道交通∶通沪铁路一期、二期(建设中)、南沿江城际铁路(建设中)、北沿江高铁(建设中)、苏锡常城际铁路(规划中)、嘉闵线北延太仓段(规划中),可以直达上海、杭州以及全国各地。
● 公路交通∶嘉定7路始末站设置在项目南门,可沿城北路,直达嘉定北站,无缝连接上海地铁11号线;巴士有沪太快线从太仓朝阳路站直达嘉定西。

(太仓站TOD示意图)
越秀·向东岛售楼处电话:400-163-9938
太仓越秀·向东岛售楼处地址电话:400-163-9938
【毗邻嘉闵线 出行加速度】
越秀·向东岛距嘉闵线太仓首站十八港路站点(规划中)直线距离仅约800米,尽享地铁便捷出行,按照规划,嘉闵线可以串联起上海11号线,13号线,2号线,10号线等10条轻轨、地铁线,实现真正意义上的沪太同城,未来将实现约35分钟直抵虹桥、约1小时畅通上海市中心。

(示意图)
【医疗配套】
直线距离约3km达瑞金医院太仓分院(在建),以三级甲等综合医院标准建设,计划于2025年建成投入使用,为家人健康保驾护航。

(瑞金医院太仓分院效果图)
【商圈价值】
项目约20分钟直达嘉定北商圈(约8km)、约25分钟直达嘉定新城核芯(约14km),日月光中心、罗宾森广场、欧尚广场等触手可及;近享娄江新城约6万㎡邻里中心;更有华润万象汇(已签约)在侧,配套落地加速,未来可期。
【教育配套】
项目周边教育配套丰富,幼儿园/小学到中学一体化公办9年制教育直线距离约2km即达,项目内部规划学校,此外,太仓用地规划方案中,明确在项目北侧约500m范围内及2.5 km处规划2所九年制义务教育中小学、4所幼儿园,护航孩子无忧未来。
1、西交利物浦大学附属实验学校,距离项目直线距离约7公里(含幼儿园到高中全教育链),已投入使用;
2、西北工业大学太仓校区,已于2022年投入使用;
3、2021年太仓市引入均瑶世外国际融合教育项目,作为太仓引进的上海顶级国际教育资源,已于2023年6月竣工;
4、娄江新城已引入娄江新城高中项目也已于2023年5月9日开工建设,计划于2025年建成投用;
5、上海外国语大学附属学校已签约,优教护航。
(教育类信息输出具体参照政府相关网站公布信息为准)

NO.6 产品价值
-------------------------------
【低的姿态】
土地最大限度让与自然,让绿意与住宅无缝连接
● 约40%绿化率
● 约1.74容积率
● 阔绰的楼间距

(效果图)
越秀·向东岛售楼处电话:400-163-9938
太仓越秀·向东岛售楼处地址电话:400-163-9938
【宽的格局】
以无处不在的贴心考量,带来最大化的奢居体验
● 全明设计,动静分离,全屋动线合理
● 四叶草式户型设计,隐私性极佳
● 餐客厅分离式设计,功能划分更完整
● 全屋无过道设计,浪费面积小

【大的境界】
雕琢通透宽境,以大尺度彰显居者大家风范
● 全屋超大窗墙比,采光通风好
● 约11m面宽景双阳台,超大采光面
● 三开间朝南,约20m大面宽
● 主卧面宽约3.35米,进深约4.15米

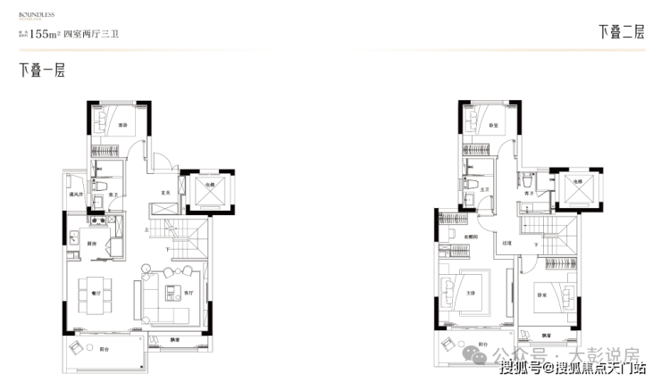
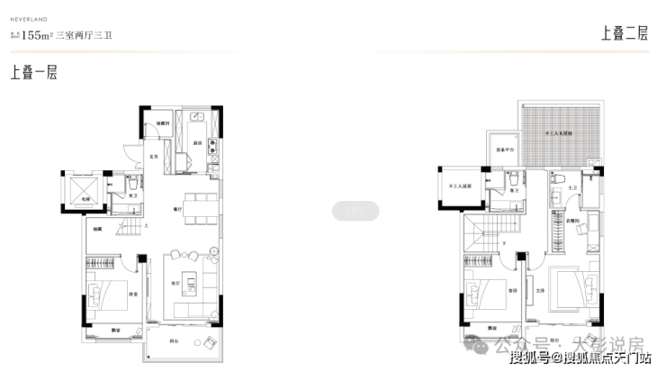
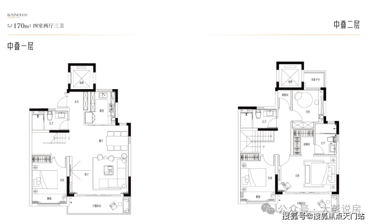
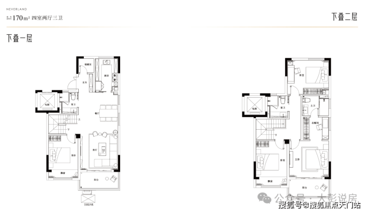
【户型鉴赏】









越秀·向东岛售楼处电话:400-163-9938
太仓越秀·向东岛售楼处地址电话:400-163-9938