欢迎回访!华润澐启滨江@最新动态:上海 华润澐启滨江售楼处首页呈现售楼处电话、开盘 / 交房时间、房价、户型、楼盘详情等信息
扫描到手机,新闻随时看
扫一扫,用手机看文章
更加方便分享给朋友

如有问题欢迎来电咨询,专业一对一热情服务,让您用专业眼光去买房。
《楼市独家》最新消息:
世博九宫格,上海的顶流江景红盘又爆出新料!华润澐启滨江效果图正式曝光,项目将推123-286㎡高层,预计今年11月左右入市。
不知道最近你朋友圈被“华润后滩”这四个字刷屏了没?反正独家君的各种粉丝交流群、朋友圈都快被它霸榜了,它仿佛自带热搜体质,从规划出炉到展厅开放(预计9月中下旬),每一个动作都牵动着市场神经,成为大家口中“必须去看看”的神盘。
但问题是,人人都说好,那么这个项目好在哪里?究竟有哪些吸引人的亮点?
今天,这篇“预热”版选房攻略,就是专门来给你划重点的,从项目的总图解析,到视野模拟,再到最新的户型以及效果图曝光,可以说应有尽有!一起来看!(本文相关模拟分析数据仅供参考,具体以交房之后实测为准)
Part.1
总图详解
据了解,项目的07-01地块或将率先入市,目前该地块设计方案已公示!
根据公示的设计方案,华润后滩项目主要由九栋25-32F住宅楼、若干社区配套用房以及部分商业用房组成,共计规划约794户!
仔细来看,项目总图上的亮点还是比较多的:
1.楼栋转角布局
由于地块西南侧即是黄浦江景,所以地块西部以及中部能够看到黄浦江景的楼栋都进行了转角处理,使得瞰江视野更佳,将稀缺江景的价值利用率提到最大化!
地块以西的几个商办地块规划高度为50米,因此理论上在50米以上的高度才有可能看到相对完整的江景视野,不过鉴于07-01地块西边楼栋和楼王都做一点的南偏西转向,因此50米以下的住户,有没有机会“夹缝里看江”还得看前排商办具体的设计方案。
世博江景如何?独家君专门去实地进行了航拍,分别从60米-80米-100米的高度瞰江视野模拟,以2幢楼位置为例,基本在建筑高度60米的位置就可以很好地观赏黄浦江风景。
当建筑高度来到80米时,瞰江视野会进一步得到提升,并会随着高度的不断增加,瞰江视野会越来越壮阔。
建筑高度来到最高的100米时,瞰江感受是这样的:
2.下沉庭院极其庞大
从公示总图上可以看到,项目的下沉庭院范围极其庞大,几乎占据了一半的社区景观位置,还有各种形状小型下沉庭院分散布置,可以说是独家君近年来所看项目中最大的!
3.全盘两梯两户+三梯四户配置
大户型2梯2户,小户型3梯4户设计,其中值得注意的是123㎡小户型在此玩了一个高明的“空间魔法”:用3梯4户的配置,给123㎡的边套也变出了“一梯一户”的尊贵感。这让南向两面宽的短板,瞬间被极强的入户私密性和仪式感所弥补。
3.社区全架空层设计
华润是搞架空层的“老司机”了,之前在中环置地中心就搞过十几个功能不同的架空层。这次在后滩项目上更夸张!社区住宅首层全架空!预估基底面积,加起来差不多得有4000+㎡的架空层!
4.全社区人车分流,归家流线风雨无阻
地面零车位且地库出入口皆位于机动车出入口附近,机动车一进社区即可下地库,真正实现人车分流;风雨连廊(景观构架)更是贴心连接大部分楼栋入户门,归家仪式感拉满。
5.层高条件十分优越
综合各个楼栋层数以及建筑高度,再刨去女儿墙及架空层,独家君初步预估:大户型楼栋的层高基本在3.3-3.4米左右,小户型楼栋的层高基本在3.05-3.1米之间。
6.服务配套设置集中,不利配套远离住宅且位置隐蔽
社区的配套用房主要分布于地块东南部的沿街建筑中,还有一个便利店位于社区中心;垃圾房、燃气调压站、K站以及配电设施等一系列不利配套均被隐藏在了沿街配套中或设置在地块边缘角落中,将对住宅建筑的不利影响减至最小化!
7.社区注重城市沿街面的打造
华润这次在社区沿街面的打造上也是下足了功夫,可以看到独家君用红线圈出来的地方,就是本次华润打造的超绝城市界面,范围几乎覆盖了地块的南面以及东面,充斥着大量的景观构架以及玻璃幕墙,再结合本身的楼栋+商业+巨大的人行主门头+车行门头+配套,豪宅逼格算是拉满了。

Part.2
户型及效果图
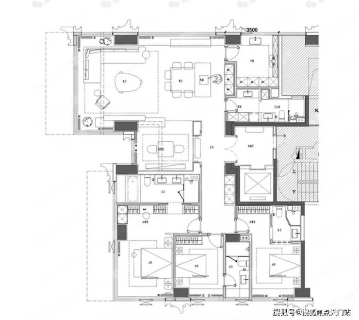
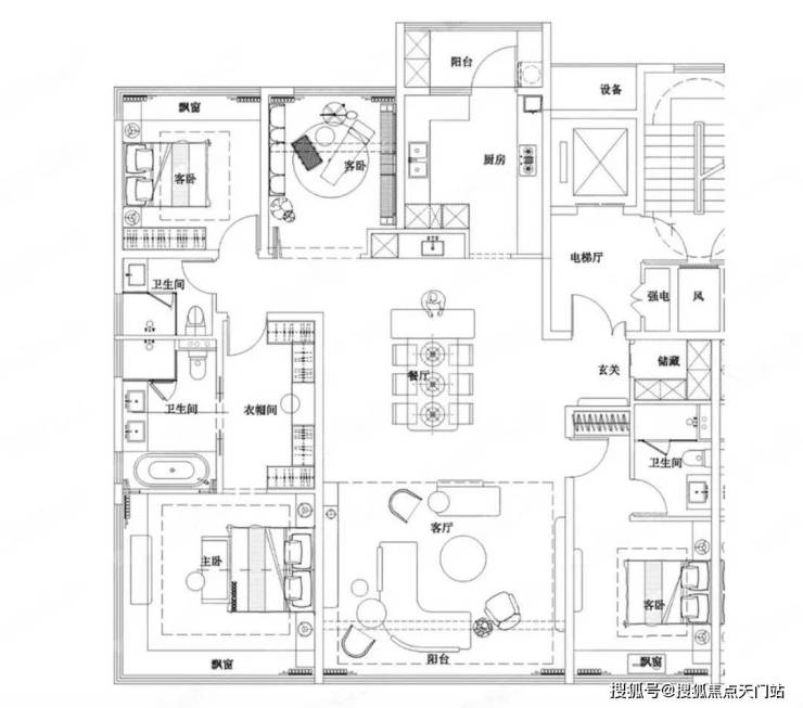
根据爆料,华润后滩项目将推123-286㎡高层,预计今年11月左右入市。户型分布图如下:
户型最新过程稿也已经曝光:


Part.3
区位与总结
项目地理位置优势明显,后滩九宫格地处浦东内中环,属于上海中央活动区(CAZ)范围,比前滩更靠近内环。该区域正从过去的工业遗址转型为高端住宅区,规划了集高端商务区、品质住宅、优质教育于一体的综合性社区。
政府规划支持力度大 政府调整了规划,住宅占比升至59%,显示了从"造楼"到"造城"的战略转变,旨在打造一个产城融合的超级生活体。这种政府背书的发展规划,为区域长期价值提供了保障。
交通方面,项目紧邻轨交19号线德州路站,可与8号线、11号线换乘于东方体育中心站,与7号线换乘于后滩站,周边多条快速路、高架路纵横交错,交通出行便捷。

休闲方面,项目距离上海世博文化公园,东方体育中心等大型公共休闲配套均不到1公里!

商业方面,2公里范围内可享前滩太古里、晶耀前滩、森宏购物广场、世博源等大型商业中心;
教育方面,上南实验小学、德州一村小学、历城中学、洪山中学以及一众民办学校等教育资源环伺。
后滩这块地,说实话,真的是浦东目前数一数二的宝地——在滨江板块、地铁口、城市界面新,再加上是华润这种级别的开发商来做,旁边还有前滩、徐滨和世博的配套,新学校也在建……几乎每个点,都精准命中想在上海浦东买房人的心思。
再加上,这个项目几乎可以确定属于华润顶级产品线——“瑞系”。跟几年前的前滩项目比,这是完全不同时代的产品,居住体验根本不在一个层面。
毫无疑问,这个项目基本已经预定了年度热门楼盘

如有问题欢迎来电咨询,专业一对一热情服务,让您用专业眼光去买房。
声明:本文由入驻焦点开放平台的作者撰写,除焦点官方账号外,观点仅代表作者本人,不代表焦点立场。
