上海黄浦士林润园售楼处电话☎:400-118-3159(售楼处预约看房热线) 「士林润园」 黄浦区核心老西门板块
华润置地+南房集团联手打造 首开建面约210-500㎡合院别墅 附赠面积有内外庭院、阳台、露台 地下室两层实际使用面积很大
总价约:6200万~1.65亿
士林润园售楼处电话:400-118-3159
上海黄浦士林润园售楼处电话☎:400-118-3159(售楼处预约看房热线)
「士林润园」
黄浦区核心老西门板块
华润置地+南房集团联手打造
首开建面约210-500㎡合院别墅
附赠面积有内外庭院、阳台、露台
地下室两层实际使用面积很大
总价约:6200万~1.65亿
售楼处线上火热预约中!
士林润园售楼处电话:400-118-3159
上海黄浦士林润园售楼处电话☎:400-118-3159【开发商售楼处预约看房热线】(一对一热情服务)
看房请提前致电预约,可享受内部渠道优惠!联系销售人员获取最新一房一价表,官方售楼处最新优惠底价!开发商官方销售人员将详细介绍每个户型的独特设计和优势,带您参观样板间,感受精装修的品质和温馨氛围。您还可以了解周边配套设施,包括高端购物中心、优质学校和便捷交通网络,让您的居住体验更加完美。
编辑

「士林润园」这个全新项目的遥远前一期姊妹盘——士林华苑一期其实是黄浦区豫园板块的一个2007年竣工的次新楼盘,由黄浦国资委旗下的南房集团开发打造,项目北面复兴东路一路之隔就是复地雅园和璞玉one。在黄浦区,南房集团的另外一个开发的典型住宅就是五坊园。
编辑

项目附近远望豫园和陆家嘴视野实拍
士林润园售楼处电话:400-118-3159
上海黄浦士林润园售楼处电话☎:400-118-3159(售楼处预约看房热线)士林华苑二期是老西门街道旧城改造项目,项目一期2007年竣工,二期在2021年7月发布了房屋征收补偿协议生效公告。2021年12月华润入股,项目由南房和华润共同联合开发!
编辑

编辑

编辑

士林润园售楼处电话:400-118-3159
上海黄浦士林润园售楼处电话☎:400-118-3159(售楼处预约看房热线)根据规划,士林华苑二期需要“落实风貌保护要求,深化地块布局和建筑方案设计,同步实施建设相关公共服务配套”。
编辑

【士林华苑】二期地块包含大量历史文化保护建筑,产品打造的是面积段约210-500㎡合院别墅,附赠面积有内外庭院、阳台、露台、地下室两层,实际使用面积很大,总价预约6200万到1.65亿。
编辑

士林润园售楼处电话:400-118-3159
上海黄浦士林润园售楼处电话☎:400-118-3159(售楼处预约看房热线)再让我们看看周边全龄配套:项目位于黄浦区核心,左拥新天地、淮海中路,右抱陆家嘴,北倚人广、外滩,南侧是一路连缀的豪宅区。
编辑

编辑

编辑

顶尖商圈、潮流文艺街区,甚至上海地标们、未来城市封面都将是士林润园的生活场域。加上豫园这百年来传承的文化底蕴,仅看现有的地段价值,士林润园已足够吸引人。
编辑

士林润园售楼处电话:400-118-3159
上海黄浦士林润园售楼处电话☎:400-118-3159(售楼处预约看房热线)从地段来说,位于内环内黄浦区的豫园板块,妥妥的城中核心,距离地铁站也不算远,在8/10号线老西门站和9号线小南门站之间。
编辑

编辑

编辑

士林润园售楼处电话:400-118-3159
上海黄浦士林润园售楼处电话☎:400-118-3159(售楼处预约看房热线)
黄浦区核心老西门板块备受瞩目的【士林华苑】二期「士林润园」已售近30套!首开建面约210-500㎡合院别墅,附赠面积有内外庭院、阳台、露台;地下室两层实际使用面积很大;总价约:6200万~1.65亿!士林润园地块包含大量历史文化保护建筑,将打造叠拼+合院的产品。
编辑

编辑

编辑

编辑

士林润园售楼处电话:400-118-3159
上海黄浦士林润园售楼处电话☎:400-118-3159(售楼处预约看房热线)
编辑

编辑

编辑

编辑

编辑

士林润园售楼处电话:400-118-3159
上海黄浦士林润园售楼处电话☎:400-118-3159(售楼处预约看房热线)
编辑

编辑

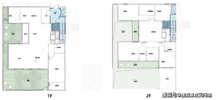
360㎡合院户型示意图👇
360㎡下叠边套示意图👇
编辑

编辑

士林润园售楼处电话:400-118-3159
上海黄浦士林润园售楼处电话☎:400-118-3159(售楼处预约看房热线)
236㎡叠拼3-5F大平层示意图👇
编辑

编辑

编辑

编辑

编辑

士林润园售楼处电话:400-118-3159
上海黄浦士林润园售楼处电话☎:400-118-3159(售楼处预约看房热线)
编辑

编辑

编辑

士林润园售楼处电话:400-118-3159
上海黄浦士林润园售楼处电话☎:400-118-3159(售楼处预约看房热线)
叠拼效果图👇
编辑

L型合院的效果图👇
编辑

编辑

项目效果图如下
编辑

士林润园售楼处电话:400-118-3159
上海黄浦士林润园售楼处电话☎:400-118-3159(售楼处预约看房热线)
编辑

编辑

编辑

编辑

编辑

士林润园售楼处电话:400-118-3159
上海黄浦士林润园售楼处电话☎:400-118-3159(售楼处预约看房热线)
编辑

编辑

编辑

编辑

编辑

士林润园售楼处电话:400-118-3159
上海黄浦士林润园售楼处电话☎:400-118-3159(售楼处预约看房热线)
编辑

编辑

编辑

编辑

编辑

士林润园售楼处电话:400-118-3159
上海黄浦士林润园售楼处电话☎:400-118-3159(售楼处预约看房热线)
编辑

编辑

编辑

士林润园属于黄浦区老西门街道旧城改造项目,项目一期于2007年竣工,项目北面复兴东路一路之隔就是【复地雅园】和【璞玉one】。
编辑

从1291年元代设县,到2035年规划诞成中央活动区CAZ核芯样本。历时730余载老城厢,始终是上海城市的心脏所在。随着一江一河城市中心战略的帷幄与城市中芯的复苏与更新,更是将成为上海城市的“中芯之芯”。
编辑

士林润园售楼处电话:400-118-3159
上海黄浦士林润园售楼处电话☎:400-118-3159(售楼处预约看房热线)
项目占位于老城厢主轴中芯之上,左手历史,右手繁华,这里既代表上海历史的特质空间,又代表上海现代生活的品质空间。
籍由精研老城厢的历史与风华,活化城市深厚人文底蕴,存续街巷肌理与建筑特质,以当代设计审美对海派建筑风貌的匠心修缮,旨在传承城市文脉、打造卓越人居环境,定制理想人居空间,更将探索、兑现城市之心的恢弘愿景,以城市更新下的人文宅院巨著,予城市更新的未来,著立新的不朽。
编辑

交通方面:周边交通网络成熟,总结起来就是“一桥三环四线五隧道”,其中四线就包括了8号线老西门站、10号线的豫园站、9号线的小南门站及14号线的豫园站,从项目坐地铁出发,畅达上海各个区域。
编辑

编辑

老西门地铁站
士林润园售楼处电话:400-118-3159
上海黄浦士林润园售楼处电话☎:400-118-3159(售楼处预约看房热线)商业方面:500米的范围内香港名都城、豫园商圈、复兴艺术中心,人民广场、新天地、外滩、南京路步行街都在2km范围,顶级商业环绕。
编辑

香港名都城
教育方面:周边的公立学校有复兴东路三小、上海实验小学、蓬莱路二小等,初中有光明初级中学及市十、市八,康德及永昌两所九年一贯制的民办学校等。
编辑

蓬莱路二小
医疗方面:上海九院、瑞金医院、仁济医院西院、黄浦区中西医结合医院、曙光医院西院、复旦大学附属妇产科医院等众多享誉全国的医疗资源。
编辑

士林润园售楼处电话:400-118-3159
上海黄浦士林润园售楼处电话☎:400-118-3159(售楼处预约看房热线)
复旦大学附属妇产科医院
编辑

士林润园售楼处电话:400-118-3159
上海黄浦士林润园售楼处电话☎:400-118-3159【开发商售楼处预约看房热线】(一对一热情服务)
看房请提前致电预约,可享受内部渠道优惠!联系销售人员获取最新一房一价表,官方售楼处最新优惠底价!开发商官方销售人员将详细介绍每个户型的独特设计和优势,带您参观样板间,感受精装修的品质和温馨氛围。您还可以了解周边配套设施,包括高端购物中心、优质学校和便捷交通网络,让您的居住体验更加完美。
士林润园售楼处电话: 400-118-3159【预约☎】√√楼盘项目全面介绍,本电话为开发商提供线上预约售楼电话,楼盘项目全面介绍(包含楼盘简介,均价,房价,现房,期房,别墅,叠墅,大平层,价格,楼盘地址,户型图,交通规划,备案价,备案名,项目配套,样板间,开盘时间,认筹时间,楼盘详情,售楼处电话,最新消息,最新详情,周边配套,一房一价,最新进展等详情咨询)楼盘详情丨价格丨更多优惠丨机不可失丨欢迎致电丨诚邀品鉴!售楼处位置丨特价房丨工抵房丨剩余房源丨户型图丨最新消息丨免责声明:将文章内容综合来源于网络、只作分享,版权归原作者所有!!如有侵权,请联系我们,我们第一时间处理如有问题欢迎来电咨询,专业一对一热情服务,让您用专业眼光去买房。如果您想了解更多楼盘详情,欢迎提前预约拨打士林润园售楼处电话: 400-118-3159【预约☎】√√