2025年·(信达海上院子售楼处) 首页网站 - 销售中心 -环境 - 户型 - 价格 - 地址 - 楼盘详情 - 配套 - 电话 - 交房时间 - 配套 - 电话 - 交房时间
扫描到手机,新闻随时看
扫一扫,用手机看文章
更加方便分享给朋友
信达海上院子售楼处电话:400-1789-138(已认证) 有问题可来电咨询,预约销售专员,一对一为您服务!
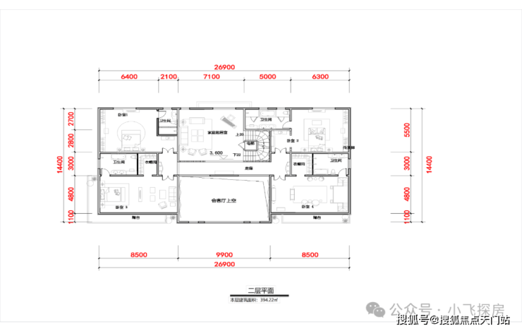
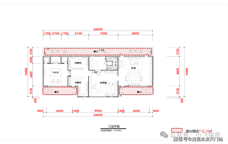
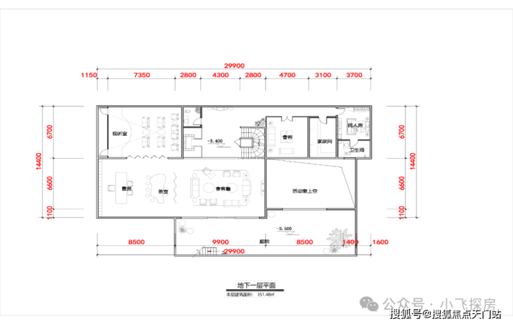
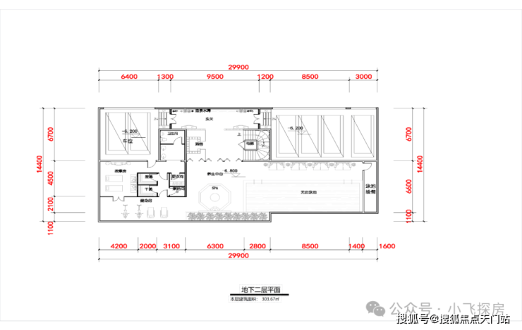
杨浦区/中外环/信达泰禾上海院子/989.55㎡+地下663.52㎡,8915万
新江湾是上海传统豪宅区,毗邻五角场城市副中心,拥有9.45平方公里的原生湿地以及约15万㎡的新江湾湿地公园生态稀缺资源。信达泰禾·上海院子位于新江湾城核心位置,家门口就是10号线殷高东路站,步行可达。

「上海院子」独特的院落式社区打造,融合了“院子系”特点、福州三坊七巷和上海弄堂形制,规划了“三街九坊十八巷”。且以“大门、坊门、院门、宅门”四进系统层层递进。项目精益求精,如吊顶天花雕刻的是龙纹和祥云的图案,寓意吉祥安康。







信达海上院子售楼处电话:400-1789-138(已认证)有问题可来电咨询,预约销售专员,一对一为您服务!
声明:本文由入驻焦点开放平台的作者撰写,除焦点官方账号外,观点仅代表作者本人,不代表焦点立场。
