华润澐启滨江售楼处电话:400-8669-938

华润置地
中国江河1号作品
「澐启滨江」
推出约120-150-185-225-235㎡3-4房
以及少量建面约380㎡顶复
预计均价在14-15万/㎡
门槛总价在1600万左右
有望11月入市!




以下为户型过程稿,仅供参考:
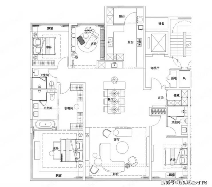
123㎡3房2厅2卫

150㎡3房2厅2卫

185㎡4房2厅2卫

200㎡4房2厅3卫

227㎡4房2厅3卫

235㎡4房2厅3卫

238㎡4房2厅3卫


8月1日,华润置地联合南房集团以股权转让的形式,成功拿下了后滩07-01、04-01以及黄浦余庆里地块,总成交价244.7亿元,其中后滩地块目前关注度很高!

浦东新区耀华组合地块
浦东后滩板块为上钢社区Z000101单元04-1地块、07-1地块;
07-01地块,三类住宅用地,占地面积约3.96万方,容积率3.2,限高100米,计容面积约12.66万方;
04-01地块,三类住宅用地,占地面积约4.19万方,容积率2.9,限高80米,计容面积约12.15万方;
两宗均为纯住宅用地,而且体量最大,合计房源数在2060套;
紧邻在建中的19号线德州路站。

据了解,07-01地块或将率先入市。
目前该地块设计方案已公示,拟建9幢25-32F的高层住宅、若干社区配套用房以及部分商业设施,共计规划约794户!

项目地面无车位,全人车分流,主要出入口位于南侧德州路,车行出入口分别位于德州路、济明路、德恒路;所有住宅楼栋首层全架空,设置有大面积的下沉式庭院、地下会所以及风雨连廊!

地块距离上海世博文化公园,东方体育中心等大型公共休闲配套均不到1公里,2公里范围内可享前滩太古里、晶耀前滩、森宏购物广场、世博源等大型商业中心。



标的涉及地块分别是浦东新区上钢社区Z000101单元04-1地块、和浦东新区上钢社区Z000101单元07-1地块,由上海城市更新建设发展有限公司通过协议出让方式拿下。
07-1地块出让时间2024年12月25日,总价886896万元,楼面价69989元/㎡。
04-1地块出让时间2025年5月24日,总价854041万元,楼面价70300元/㎡。

两宗地块位置相邻,紧邻轨交19号线德州路站,可与8号线、11号线换乘于东方体育中心站,与7号线换乘于后滩站,周边多条快速路、高架路纵横交错,交通出行便捷。
地块距离上海世博文化公园,东方体育中心等大型公共休闲配套均不到1公里,2公里范围内可享前滩太古里、晶耀前滩、森宏购物广场、世博源等大型商业中心;上南实验小学、德州一村小学、历城中学、洪山中学以及一众民办学校,等教育资源环伺。
华润置地
中国江河1号作品
「澐启滨江」
推出约120-150-185-225-235㎡3-4房
以及少量建面约380㎡顶复
预计均价在14-15万/㎡
门槛总价在1600万左右
有望11月入市!
华润澐启滨江售楼处电话:400-8669-938
