苏州吴中璟萃雅园—在哪里,怎么样,好不好,适合投资吗?
扫描到手机,新闻随时看
扫一扫,用手机看文章
更加方便分享给朋友
【苏州吴中招商蛇口|建发国际—璟萃雅园】
南狮山品质改善标杆巨作,理想生活社区:
VIP售楼部电话TEL:400-101-9071转接666『营销中心』
★★网上售楼中心——欢迎来电预约尊享Vip一对一销售专业讲解服务!
VIP售楼部电话TEL:400-101-9071转666『营销中心』
▼▼Vip贵宾置业====欢迎来电预约尊享内部折扣====匠心钜制恭迎品鉴!
【项目地址】苏州市吴中区金枫路和花苑路交汇处
【开 发 商】招商蛇口、建发国际
【产品类型】住宅70年
【均 价】28000
【产品】
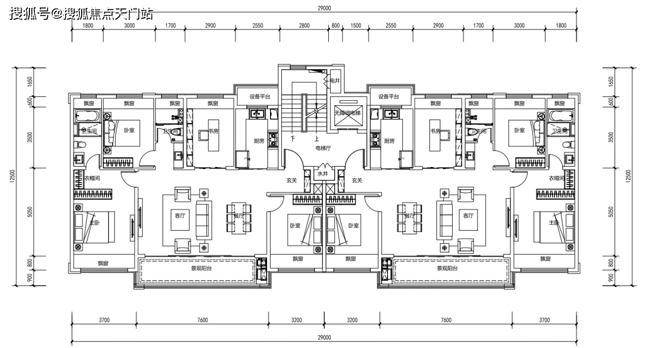
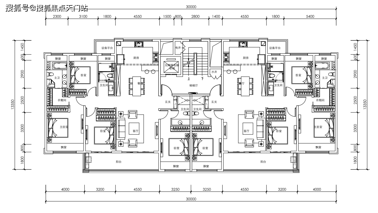
两梯四户,三房两厅两卫(106平、116平)
两梯两户,四房两厅两卫(7.6米超大横厅142平)
一梯两户,四房两厅两卫(南北通透,竖厅142平)
一梯两户,四房两厅三卫(171平)
【总 层 高】8-11层,18层,25层,27层
【交付时间】(2023年12月31号之前)
【交付标准】精装交付,含三大件
【得 房 率】83%
【绿 化 率】38.9%
【容 积 率】2.2
【建筑密度】21.44
【车 位】1:1.2(车位总计1630个,人防车位318个,非人防车位1105个。
【总 体 量】19栋1046户
【物 业】建发物业
【物 业 费】2.82元
【占地面积】 6.4万
【建筑面积】18.3万
【住宅面积】13万方
【整体景观】4000方
苏州一建( 苏州博物馆 地铁)属于国家特级建筑
核心卖点:
1、南狮山核心,5公里内三大商圈,狮山商圈,金枫商圈,南狮山商圈。
2、双高架(苏福快速路,中环西线)
3、双地铁,地铁一号线距离项目1公里左右,地铁5号线大治桥站,距离项目步行600米左右。
4、8-11层稀缺洋房+18层小高层+27层高层组成。
5、高端标志建发国际,和实力央企招商蛇口联袂作品,打造木渎标杆产品系
NO.2】
纵横交通,成熟商圈
1.双高架:苏福快速路,中环西线,半小时可抵达苏州各核心区。
2.地铁:地铁五号线-大治桥站,距离本项目600米步行距离,地铁1号线距离项目1公里左右。
3.公交:615路、665路、665路支线
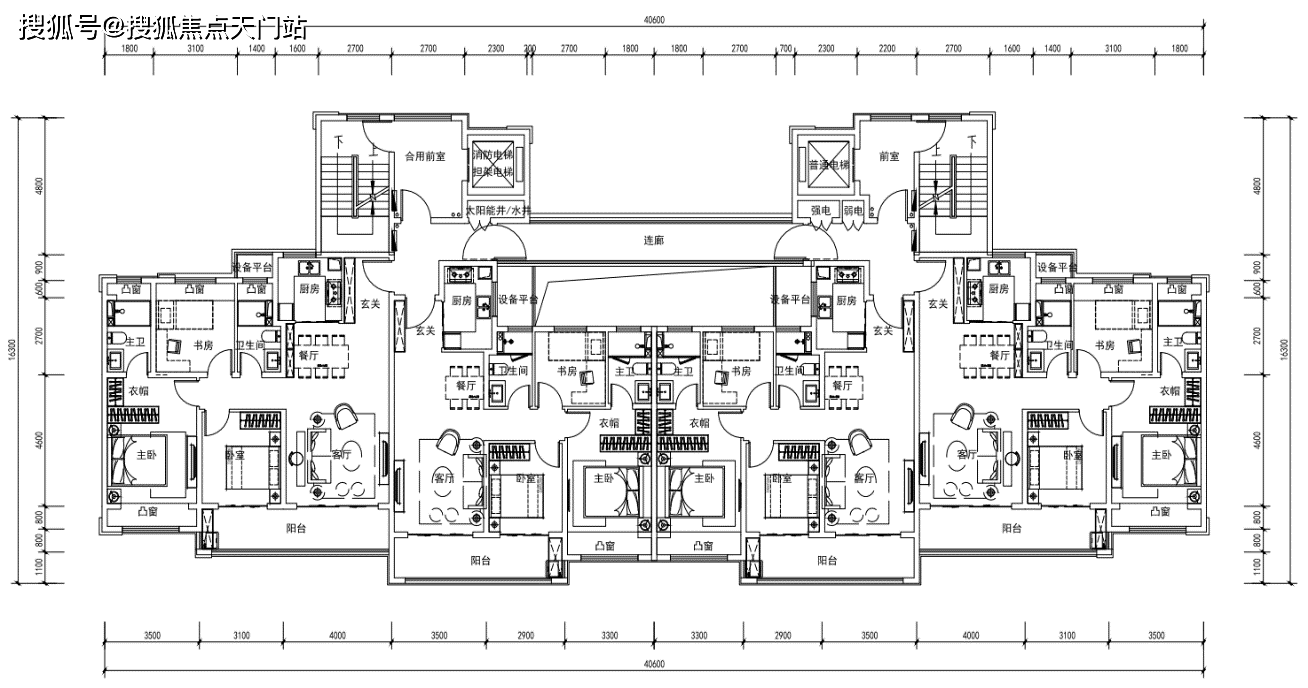
中间户106平、边户116平三室两厅两卫

大横厅142平,一梯两户,四房两厅两卫

竖厅142平,两厅两户,四房两厅两卫
171平,一梯两户,四房两厅三卫

【招商蛇口|建发国际—璟萃雅园】
VIP售楼部电话TEL:400-101-9071转接666『营销中心』
➤(提前来电预约享内部折扣)➤
➤售楼处〢欢迎来电咨询〢提前预约可享内部优惠〢专业一对一热情服务➤
➤现在处于疫情期间,看房需提前预约,到售楼处请戴好口罩,做好疫情防护,谢谢配合
声明:本文由入驻焦点开放平台的作者撰写,除焦点官方账号外,观点仅代表作者本人,不代表焦点立场。
