2025中海·海上和集@首页网站|上海 中海·海上和集售楼处电话|上海 中海·海上和集在售户型|小区配套|最新价格|周边详情|容积率|楼盘详情
扫描到手机,新闻随时看
扫一扫,用手机看文章
更加方便分享给朋友

如有问题欢迎来电咨询,专业一对一热情服务,让您用专业眼光去买房。
【基础信息】
项目区域:杨浦区-内环内
开发商:中海地产
面积区间:约1000-1300㎡独栋
价格区间:6000万左右
布局:1-5层,附赠1楼花园/B1地下室/退台花园/屋顶露台
物业公司:中海物业
物业费:12元/m²
产权年限:50年
交付标准:毛坯交付
交付时间:现房,款清交付
属性:适用于企业办公、商业经营、行政公馆、私人会所等;
中海·海上和集
中海·海上和集项目由大型央企中海集团开发运营,总建筑面积约8.8万平方米。建筑采用现代简约风格,外立面以真石漆结合铝板线条打造质感肌理,社区内实现约35%绿化覆盖率,形成立体景观体系。社区内嵌5000㎡复合商业与900㎡邻里服务中心,呼应周边新华医院(三甲)、和平公园等配套,构建五分钟生活圈。
周边客流分析
商务流量:项目紧邻北外滩中央活动区(CAZ),该区域近五年累计引进亿元级投资项目335个、总投资超3000亿元,集聚荷兰全球人寿、法国东方汇理等跨国企业总部
枢纽流量:项目坐拥“五轨交汇”枢纽优势:步行400米至8号线鞍山新村站、600米覆盖12号线江浦公园站,4/10/18号线环伺,形成10分钟直达陆家嘴、20分钟贯通浦西核心的通勤圈
产业人口:周杨浦滨江南段集聚哔哩哔哩、美团等互联网大厂,五角场周边18万大学生构成“永续年轻流量池”
地铁交通
地铁:8号线鞍山新村站,4号、12号、18号线环绕
主干道:北横通道、内环高架桥、大连路
距虹桥枢纽约25KM,约40分钟达
距浦东机场40KM,约45分钟达
商圈配套
内嵌5000㎡自持复合商业及900㎡邻里中心;教育医疗资源密集,1公里内汇聚打虎山路第一小学、新华医院(三甲);步行10分钟可达和平公园、江浦公园,北侧500米即控江路商圈(旭辉MALL、紫荆广场等),1公里直达55万方瑞虹天地综合体,2公里覆盖北外滩来福士、白玉兰广场
项目基本信息
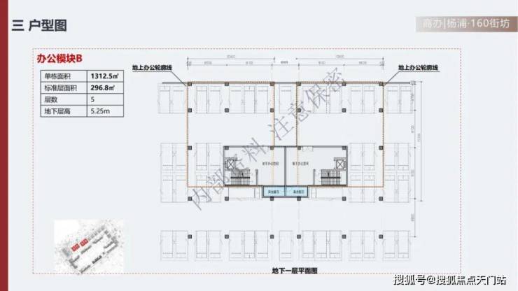
目前在售:23#号,25#号
面积:1048㎡、1284㎡
产权性质:办公产权可通燃气
附赠:一楼花园、B1地下室、露台花园、带专属车位
地上5层+地下1层,地上层高4.5米,地下层高5.25米。

如有问题欢迎来电咨询,专业一对一热情服务,让您用专业眼光去买房。
声明:本文由入驻焦点开放平台的作者撰写,除焦点官方账号外,观点仅代表作者本人,不代表焦点立场。
