文章总结:象屿·天宸雅颂项目即将盛大首开,首开即实现热罄,刷新南上海高端住宅市场热度。项目位于闵行红盘,拥有地铁、公园等资源,总价约420万起。首开去化率高达91.9%,总销售金额达10.2亿。
6站地铁+15万㎡公园,闵行红盘「⭐象屿·天宸雅颂售楼处热线☎️☎️:400-1787-138✔✔」89-139㎡压轴加推!总价600万起!附预约通道!
象屿・天宸雅颂
【售楼处专线】400-1787-138☎️☎️✅✅
(温馨提示:附线上预约通道)
象屿・天宸雅颂落子嘉定安亭,近邻地铁 11 号线安亭站。国企匠造建面约 90-130㎡3-4 房,社区复刻宋式园林意境,精装含品牌厨卫,配会所与颐养空间,近汽车博览公园,总价约 420 万起。
「⭐ 象屿·天宸雅颂售楼处热线☎️☎️:400-1787-138✔✔ 」
前滩南·闵行浦江地铁8号线枢纽
建面约89-139㎡精装3-4房
均价60003元/㎡ 总价约550万起
售楼处火热预约中
编辑
编辑

请务必报名后静待销售电话确认,确认后再行前往 现场 !仅预约客户可进入销售现场,感谢您的理解和支持
2025年的上海楼市,注定被一个名字点燃——⭐ 象屿·天宸雅颂售楼处热线☎️☎️:400-1787-138✔✔!
4月29日,上海楼市目光聚焦南上海,「⭐ 象屿·天宸雅颂售楼处热线☎️☎️:400-1787-138✔✔」在万众期待中迎来盛大首开。房源一经推出,便引发抢购热潮,捷报频传,首开即实现热罄,以现象级热度成为上海高端住宅市场当之无愧的焦点,重新定义了高端人居的价值标准。
编辑
编辑

所有的潜心营造,只为今天盛启。
首开当日现场人潮涌动,人声鼎沸等候区座无虚席,火热的场面印证着高品质住宅的强大号召力。据了解,首开去化率91.9%,总销售金额达10.2亿。这场开盘盛典,不仅彰显了项目的强大吸引力,更让「⭐ 象屿·天宸雅颂售楼处热线☎️☎️:400-1787-138✔✔」成为南上海楼市焦点,开启品质人居新篇。
编辑
编辑

【⭐ 象屿·天宸雅颂售楼处热线☎️☎️:400-1787-138✔✔ 】首开告捷,一房难求。为回应市场热情,二批次房源加推在即,再启沪上高端人居热势。
编辑
编辑

⭐ 象屿·天宸雅颂售楼处热线☎️☎️:400-1787-138✔✔ 项目一房一价表▼
编辑
编辑

小高层为89/102/107/128/139平(89-107为3房,128-139为4房);
叠加预计145-156平,联排预计190-230平,(具体户型和面积以实际为准)。
建面约89㎡ 3房2厅1卫▼
编辑
编辑

编辑
编辑

编辑
编辑

编辑
编辑

编辑
编辑

编辑
编辑

编辑
编辑

编辑
编辑

建面约128㎡ 3房2厅2卫▼
编辑
编辑

项目建面约128㎡4房同样出彩。
延续3S墙和双270°全景双舱亮点的同时,尺度感极大提升, 南向四开间,保证了更充沛的阳光。
客餐厅+超大尺度阳台贯穿南北,进门视野无遮挡,大宅气度油然而生!
编辑
编辑

编辑
编辑

编辑
编辑

编辑
编辑

编辑
编辑

编辑
编辑

编辑
编辑

编辑
编辑

建面约139㎡ 4房2厅2卫▼
编辑
编辑

项目建面约139㎡4房则是集大成的终极改善户型。
该户型是 独立电梯入户,保证了业主的私密性和尊崇感!
不止 是四开间朝南,更是大宽厅设计,采光无敌。
飘窗数量来到了惊人的 7个:4个房间、2个卫生间、还有厨房,仅飘窗带来的灵动空间就秒杀同面积段其他产品,要知道这个户型还配备了超大尺度的阳台!
项目高层户型硬核,装修更硬核!
据销售人员透露,大件方面,项目 中央空调/地暖两联供、新风系统一应俱全。
厨房方面,除了灶具、吸油烟机等常规配置,还将加配 蒸烤一体机、洗碗机、冰箱和厨房凉霸,全方位提升便捷性和品质感。
卫生间方面,项目洗脸盆、座便器、淋浴龙头或直接上豪宅专属 唯宝品牌(或同等档次品牌)。
从选材、选牌到施工工艺,项目装修每个环节都非常考究, 呈现的居住品质足以媲美其他市区千万级豪宅!
另外,项目使用了 智能化系统,从社区到单元门和入户整体的无接触归家,单元门自动呼梯到户内装标配置的智能化系统,为业主带来全方位的科技便捷生活!
编辑
编辑

编辑
编辑

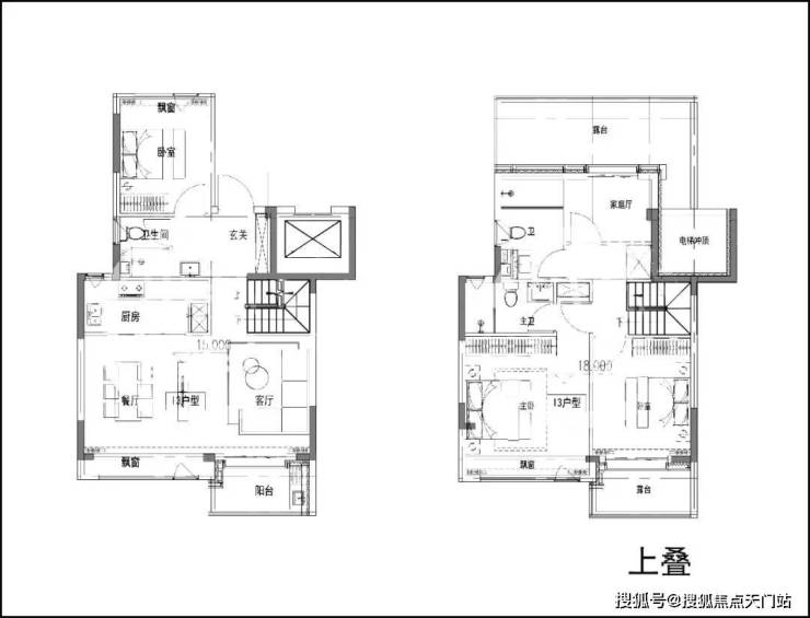
叠墅户型图如下所示:
(过程稿仅供参考,最终以实际为准)
编辑
编辑

编辑
编辑

编辑
编辑

项目基本信息
编辑
编辑

去年10月25日,上海市第六批涉住地块供地中,闵行区MHP0-1316单元01-03、01-02、03-02地块,东至浦星公路,南至姚家浜,西至大寨河,北至昌林路。
编辑
编辑

项目分为三个住宅地块开发,提供建面约89-140㎡的3-4房户型。
编辑
编辑

01-02地块规划约524套可售住宅,无保障房拟建8栋17-18F高层住宅。
以及若干社区配套用房,全部为两梯四户带连廊;地面无车位,全人车分流,规划有风雨连廊以及大量的架空层,预计打造泛会所概念(公共活动空间);
01-03地块规划约466套可售住宅
地块拟建9栋17-18F高层住宅、1栋20F保障房以及若干社区配套用房; 其中1#为两梯三户带连廊、4#、6#、8#为一梯两户,其余楼栋为两梯四户带连廊;
03-02地块为别墅产品,其中叠墅约147套,联排约35套。
该地块拟建4栋7F多层住宅、4栋4F住宅、5栋3F多层住宅以及若干社区配套用房,其中4-7F住宅为叠墅,3F住宅为联排。
项目产品信息
产品力卷出天际,600万级预算越级享受千万级豪宅品质的机会!
项目实景呈现的 硬核品质和超高颜值比起市区千万级的豪宅有过之而无不及!
项目恢弘大气的门头,项目设计师以浮岛为灵感,将几根立柱化作悬浮的雕塑,撑起一片轻盈的仪式感。
编辑
编辑

门头顶部的500多片镂空透光铝板雕花花瓣,皆由项目 LOGO精琢演化而来。当阳光倾泻,光与影在镂空间起舞,在地面织就一幅不断变幻的 自然画作。这是 3000万重金雕琢的细节,更是对品质的无声承诺。
它不仅是社区的入口,更是 城市界面的艺术展馆 。当访客驻足,当业主归来,这道门,以当代美学重新定义 归家即度假的奢适体验。
进门之后,恍若走进一幅立体绽放的画卷。地面采用了石材拼花,纹理如行云流水般舒展,在光影交错间勾勒出 低调的奢华。
最令人屏息的设计,莫过于倒置的花园,与传统墙上挂画或桌上摆花不同,这种反重力美学让视线不由自主地上扬,创造出 仰视仙境的震撼体验。
编辑
编辑

穿过大堂可以走浪漫的旋转楼梯去到B1层的会所。从上往下看去,这个唯美的旋转楼梯像永生的花瓣,也像凝固的巴兰钦芭蕾。有一瞬间我仿佛感觉这不是楼梯,而是连接现实与诗意的时空隧道。
编辑
编辑

虽然目前开放的公区只有这些,但项目展现的品质已足够惊艳,让客户对于⭐ 象屿·天宸雅颂售楼处热线☎️☎️:400-1787-138✔✔其他地方的兑现充满期待。
比如,项目 打造的约2500㎡下沉式会所,预计包含等 泳池、健身房、瑜伽室、水吧台、私宴厅等功能,满足业主全龄多元需求。
编辑
编辑

编辑
编辑

另外,项目地上三分之二的楼栋有架空层,最高层高约4.5米,合计 约3000㎡架空层作为泛会所,在室内外交叠过渡的空间中,以自然之景点缀,营造全龄共享的丰盛聚场。
编辑
编辑

再比如项目的外立面。
当其他外环外新房还在纠结用涂料还是真石漆,⭐ 象屿·天宸雅颂售楼处热线☎️☎️:400-1787-138✔✔直接上了对标千万级豪宅的铝板。 精致的铝板装饰+通透大窗的美学立面设计(局部涂料),打造弧面窄框艺术之镜,将来无疑又是一道靓丽的风景线!
编辑
编辑

编辑
编辑

⭐ 象屿·天宸雅颂售楼处热线☎️☎️:400-1787-138✔✔项目在园林景观方面结合郊野公园特色做的 浮岛美学园林惊艳无比,层层递进的秩序之美,传递生活与归心的仪式感。让业主享受内外皆胜境的生态居住体验!
编辑
编辑

编辑
编辑

而且⭐ 象屿·天宸雅颂售楼处热线☎️☎️:400-1787-138✔✔项目 3个地块全部都是人车分流设计,开车归家的业主在社区外就直接进入车库,保证地面行人安全以及安静绿色的居住体验。
编辑
编辑

另外,项目用 归家风雨连廊局部巧妙连接着高层核心景观节点和功能空间,让业主能重温“户外风雨连绵,廊下月华如水”的诗意瞬间。
编辑
编辑

全系神户型搭配魔鬼化细节装修!
项目预计 首开建面约89-139㎡3-4房,尤其值得一提的是,项目户型采用“一生之宅”的理念设计,高层户型均设置可拓展空间,保证不同年龄段都可以进行不同功能调整。
编辑
编辑

项目区位配套
浦江恒流,上海恒新。上海迈向卓越全球城市的进程,始终沿着黄浦江展开。黄浦江作为上海重要功能轴,至2035年将黄浦江沿岸打造成为彰显上海城市核心竞争力的黄金水岸和具有国际影响力的世界级城市会客厅。
编辑
编辑

作为上海中心城辐射区,闵行六大地区中心之一,前滩南门户,浦东四大城镇圈之一,浦江地区中心占据特有的平台区位优势。
编辑
编辑

新浦江中心沿袭闵东文创中心定位,以蓝绿环绕为基底,历史人文为内涵,产业更新为驱动,新浦江中心将衔接闵行与浦东新区,打造黄浦江沿岸崭新的生态交织、文化自信、产城融合能量聚集地。
编辑
编辑

新浦江新中心 将围绕沈杜公路TOD打造创智总部湾、大型商业、艺术街区、文化展览、滨水码头、高端住宅等,以世界前沿Live-Work-PlayShop模式,为上海打造高度复合等职住平衡10分钟生活圈。
轨道交通方面:项目 距离8号线沈杜公路站步行约350-600米左右,可快速直达前滩、陆家嘴等核心区域,也算是项目一大卖点;通过浦星公路可直接上南北高架,自驾出行也十分便捷!
编辑
编辑

商业配套方面:项目 高层东侧规划约15万方的商业,该商业地块应于住宅一并打包出让,共同组成真正的TOD项目,但目前做了拆分!另外距离项目约3.3公里有浦江城市生活广场、绿地乐和城,约3.9公里有万达广场、4.4公里有浦江欢乐颂等商业!
编辑
编辑

教育资源方面:项目 周边规划有一幅幼儿园用地,参考周边,未来项目对口浦江镇第二小学、第二中学的概率较大,教育资源一般;
另外在项目 北侧规划有一所民办学校,该校舍建成后,将迁入上海市民办协和尚音学校(九年一贯制)、上海闵行协和海富幼儿园,由协和教育中心举办。
医疗资源方面:距离项目约4公里有仁济医院南院以及复旦大学附属眼耳鼻喉科医院。
编辑
编辑

生态资源方面:项目周边被浦江郊野公园环绕,低密宜居。
编辑
编辑

【象屿·天宸雅颂】
√欢迎您致电品鉴 预约热线:400-1787-138 【预约热线】
温馨提示:网上售楼中心〢预约尊享Vip一对一专业置业顾问讲解!
_Vip营销中心_____欢迎来电预约尊享内部折扣_____匠心钜制恭迎品鉴!中介勿扰!
√Welcome to call the tasting appointment hotline: 400-1787-138 , ext. 2222 [Appointment hotline] Warm reminder: Online sales center〢 Make an appointment to enjoy VIP one-on-one professional property consultant explanation! _Vip marketing center_____Welcome to call to make an appointment to enjoy the exclusive internal discount_____Welcome to taste the ingenious masterpiece!No agents please!
购房前必知
产权性质:商品房、经济适用房、安置房等产权年限不同(住宅产权 70 年,商业 40 年),影响交易税费和落户。
五证齐全:《国有土地使用证》《建设用地规划许可证》《建设工程规划许可证》《建筑工程施工许可证》《商品房预售许可证》,缺一不可。
得房率:高层住宅得房率约 70%-75%,多层约 80%-85%,过高或过低都需警惕(如公摊过小可能影响公共设施)。