上海虹口元和投资大厦—千万别被套路了!大家进来聊聊个人感受!
扫描到手机,新闻随时看
扫一扫,用手机看文章
更加方便分享给朋友
上海虹口元和投资大厦
售楼处电话:400-101-9071转接777【售楼中心】
提前来电预约,可享内部房源折上折,当天下定可享砸金蛋活动,签约送礼品家电一台。
自驾看房,提前来电确定路线,可报销油费、过路费,班车免费接送。
项目简介
元和投资大厦位于上海市虹口区逸仙路靠近纪念路,坐落中环交通动脉线,逸仙路高架场中路下匝道、轻轨明珠线江湾镇站全线畅通。在城市商业副中心五角场大柏树商圈,雄踞五大商圈聚焦之地大柏树商圈,紧拥中环线。周边小区环绕、板块成熟、配套齐全、环境优美。
项目基本信息表
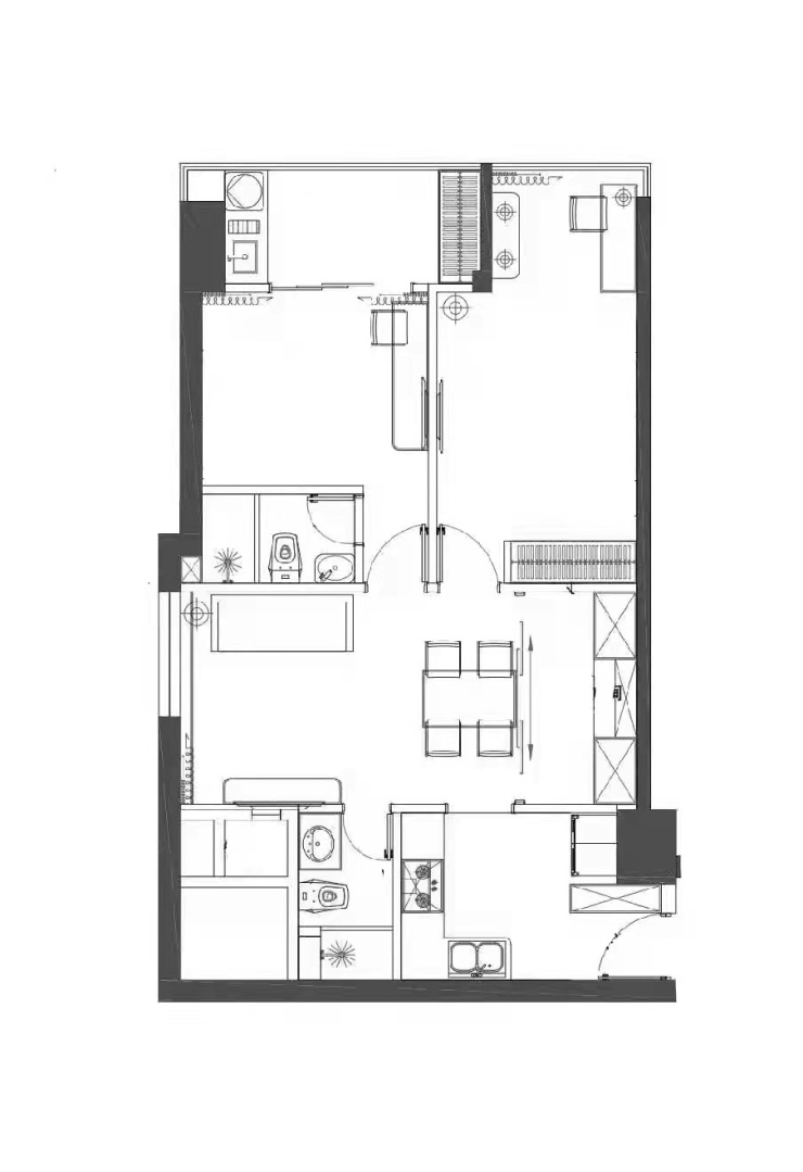
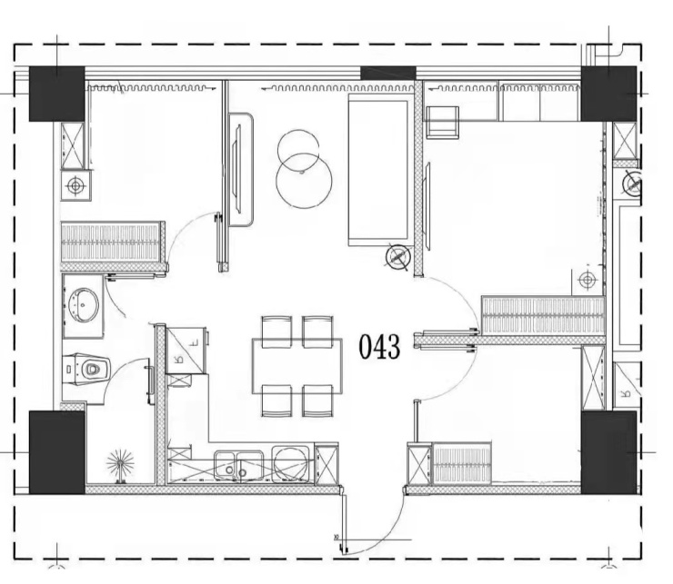
建面约81-102平户型
项目名称:元和投资大厦
所属区域:虹口区物业类型:商业办公类
物业公司:上海家鸿物业管理有限公司建筑面积:约81-102平
交付时间:11月底可售套数:4套
总价:318-458万
水电费:水:6.5元/吨电:1元/度
物业费:6.85元/平/月总层数:20层
层高:3.7米梯户比:3梯8户
交付标准:装修交付
拿地时间:2003年 竣工时间:2005年停车位:地面:50个、地下:200个停车费:800/月
配套齐全,商业医院菜场公园全都有
1.周边商业:吉买盛超级购物中心(逸仙路店)650米; 凯德虹口龙之梦3.5km(地铁两站);麦德龙(虹口江湾商场店)3.2KM;五角场大型购物商圈3.4km。休闲、娱乐、购物、餐饮,精彩生活,一应俱全。
2.医疗配套:上海中医药大学附属岳阳中西医结合医院(三甲)1.3KM;上海建工医院(二甲)2KM。
3.生活配套:距离农贸市场1000米,更有叮咚买菜APP下单,足不出户,生鲜即达,畅享便捷生活。江湾公园1.4KM,曲阳公园1.5KM,户外健身好去处。
4.交通配套:地铁站:地铁3号线江湾镇地铁站(750m),地铁3号线大柏树站(1.2KM),公交站:逸仙路纪念路站:52路、116路、552路、812路、850路(40m)
(以上数据来自百度地图)
样板间实图:
售楼处电话:400-101-9071转接777【售楼中心】
提前来电预约,可享内部房源折上折,当天下定可享砸金蛋活动,签约送礼品家电一台。
自驾看房,提前来电确定路线,可报销油费、过路费,班车免费接送。
声明:本文由入驻焦点开放平台的作者撰写,除焦点官方账号外,观点仅代表作者本人,不代表焦点立场。
