【大华星屿】嘉定南翔红盘首开燃爆市场!开盘劲销超 8 成热度拉满,建面约 107-123㎡爆款 3-4 房臻席递减,低密水岸墅区优质房源争藏从速!
扫描到手机,新闻随时看
扫一扫,用手机看文章
更加方便分享给朋友
大华星屿售楼处预约热线:400-1789-208
最新公示:
嘉定南翔低密水岸墅区「大华星屿」开盘去化超8成,劲销60287万元!
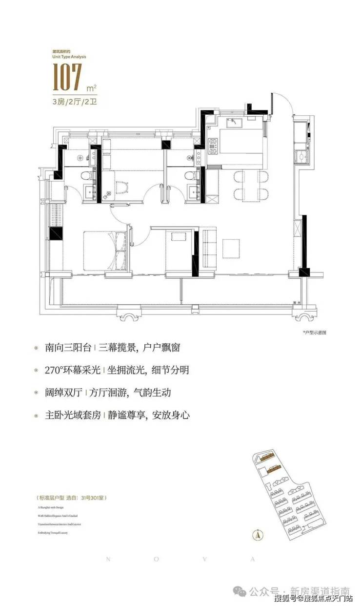
项目此次首开建面约107-123㎡3-4房,均价53096元/㎡,还有少量房源,欲购从速!
项目位于嘉定区南翔镇,东至竖张泾-华曹江,南至嘉前路,西至鹤槎路,北至嘉程路。地块临近山姆会员店(嘉定店)和嘉闵高架,距轨交11号线陈翔公路站约900米。

项目用地面积30310.72平方米,容积率为2.0。总建筑面积91423.04平方米,其中地
上建筑面积63946.08平方米,地下建筑面积27476.96平方米。项目规划建造12幢住宅楼

作为南翔新一代的品质封面,大华星屿带来的是媲美甚至超越新规的绝版产品。
首先是社区配置,项目仅400余户,叠墅占比近50%,在一线亲水生活区内,营造更低密的“翡翠浮屿”,这是南翔正轴上其他项目做不到的。
大华星屿住宅标准层的层高达到了3.05米至3.1米,这已经超过了“好房子”的基准线,甚至达到了别墅级的尺度配置,为业主带来真正开阔、舒适的空间感受。
项目溯源海派经典的ART DECO风骨,采用经典的三段式结构,整体布局讲究对称和秩序,横竖线条交织,体现出简约工整的现代美感。
在选材上,项目采用米色石材、铝板和金属镶框进行多元混搭,重点刻画单元入口、入户大堂等细节,质感非常丰富。
项目严格实行人车分流,所有车辆均由北侧嘉程路和西侧鹤槎路直接入库,行人途经宅间花园与架空层泛会所,形成沉浸式的归家体验。
景观方面,项目将外部三大公园与社区内部完全融合,最终形成了“一带两轴三庭”的沉浸式景观结构。
一带就是滨河星光绿带:
这不仅是景观绿带,更是居者与自然之间的零距离呼吸场;
无缝衔接华曹江滨水公园带,推窗即见绿意、抬脚即入林水——公园不是风景,而是家延伸的客厅。
两轴包含社区内部的礼仪轴与生态轴:
·约150M主题归家轴
包括星韵外街、星芒入口、鎏光水庭、藏星巷道,让业主的每一次归家都宛如一场绿野仙踪
· 约80M西侧仪式会客轴
包括酒店式车马院、星穹客厅,让来访客户感受媲美五星级酒店的尊贵体验!
三庭包括星泊森林,宝石花园,绮梦儿童乐园:
三个主题庭院,与外部公园内外联动、功能互补,构成完整的休闲生活圈,让全龄段的业主都能找到专属的快乐。
社区配置上面,项目在10、11、12这三栋楼的架空层,打造了 “全龄段生活延伸空间”。
10号楼的健身架空层:专属 “活力空间”,锻炼完后,在景观外摆区晒着太阳喝杯咖啡,看戏水池的波光粼粼,疲惫感瞬间消散;
11号楼的会客架空层:既能打乒乓球活络筋骨,也能在城市会客厅里唠唠家常,自在温馨;
12号楼的亲子架空层:孩子在共享学习区读绘本、拼乐高,你在旁边的家长休憩区和邻居轻松交流育儿心得,不用再为赶时间手忙脚乱。
点击进入下方通道
直接电话连线项目销售询问
大华星屿售楼处预约热线:400-1789-208
声明:本文由入驻焦点开放平台的作者撰写,除焦点官方账号外,观点仅代表作者本人,不代表焦点立场。
