上海 中环铂樾上海 中环铂樾售楼处恭迎您!速览 中环铂樾楼盘详情、户型、配套与最新价格
扫描到手机,新闻随时看
扫一扫,用手机看文章
更加方便分享给朋友

如有问题欢迎来电咨询,专业一对一热情服务,让您用专业眼光去买房。
北中环宝山区南大板块
15号线地铁口
「中环铂樾」
主推约110-139㎡3-4房
官方户型曝光
预计月底开放正式售楼处及样板间
最快6月入市!

据悉项目整盘共计246户,其中建面约110㎡3房2厅2卫约180套、建面约139㎡4房2厅2卫约64套,全部精装交付!
户型图如下:

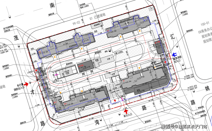
中建南大项目也就是宝山区W12-1301单元99-01(住宅)、100-01地块(商办),其中住宅地块四至范围为东至茂汇路,西至茂才路,南至姚湾路,北至南大路。就在南大智慧城双子塔西侧一点点,距离15号线南大路站仅约300多米。
据官网公示,中建七局联合中建港航拿下的宝山南大99-01、100-01地块中的99-01地块为住宅用地;
立面采用公建化鎏金幕墙,独创T型悬挑体系+流体曲面算法,打造中环封面;
项目以围合式布局,打造一轴四园的景观格局,深入探讨艺术和生活的共鸣,打造一处“臻享生活艺术之美”的人居新风尚。同时与架空层联动,形成多功能空间场域,满足邻里会客、休憩、观景需求。
四大主题架空层(社交会友、健身乐活、童玩天地、康体颐养),使得各个年龄段的人群都能在此找到属于自己的乐趣,享受品质生活。
1#为17层,1梯2户设计,12层、15层有连廊,一楼 为配套;
2#为14层,1梯2户,没有连廊,首层局部架空;
3#17层,1梯2户,12层、15层有连廊,首层架空;
4#17层,1梯2户没有连廊,首层局部架空,该楼栋全部为大户型。
此外,社区内部全部人车分流,楼间距在40-44.5米,品质不错。


最高建筑52.35米,容积率2.5。
99-01地块项目总建筑面积约为50608.5平方米,其中地上建筑面积为33301.06平方米。工程总投资14.76亿元。
项目计划的施工周期是从2025年2月8日-2026年11月30日:

南大智慧城双子塔
北中环宝山区南大板块
15号线地铁口
「中环铂樾」
主推约110-139㎡3-4房
官方户型曝光
最快6月入市!

如有问题欢迎来电咨询,专业一对一热情服务,让您用专业眼光去买房。
声明:本文由入驻焦点开放平台的作者撰写,除焦点官方账号外,观点仅代表作者本人,不代表焦点立场。
