欢迎访问华润中环置地中心望云销售中心(营销中心)首页!楼盘信息全面更新,涵盖小区环境、户型图集、价格详情及地址周边配套介绍
扫描到手机,新闻随时看
扫一扫,用手机看文章
更加方便分享给朋友
上半年的上海楼市,有这样一个“神盘”,六开六捷,同时以住宅套数销售TOP1、销售面积TOP2的断层级领先优势,问鼎楼市天花板!
去年10月25日,上海第六批次土拍,华润置地以46亿总价拿下宝山南大W12-1301单元32-04 、11-01地块,打造润府二期!
迭代到二期,中環置地中心·望雲的审美又得到了再度突破和提升。
据悉将融入“华润·D-MONDE”的设计理念,呈现“秩序”和“经典”的建筑灵感,以框架感、构成感、群落感形成独特的城市天际线,为中环呈鉴极具美感的城市封面;融合“经典、华丽、松弛”的设计风格,借鉴新加坡高端住宅景观理念,引入度假式生活体验,实现建筑、生活和自然三者和谐共存。
项目本次的边套设计了大量的飘窗、转角飘窗、主卧270度落地窗等设计,所以整个立面运用了大量的玻璃,构建出了非常极致的窗墙比。
单看华润置地给出的资料和由GAD设计的外立面效果图,可以看到,是铜色铝板搭配浅白色陶瓷板,和超大比例类似玫瑰金色系的玻璃幕墙,这种海派雅奢的腔调和质感,一下就拿捏住上海人的心巴。
景观:城市中央的国际海派社区,归家即是度假!
项目由翊象设计主创设计团队操刀设计。
整个社区以主景花园联动自然教室、休闲交谊与艺术空间,形成婉转游园的酒店式迎宾水院。
效果图仅供参考,具体以实际交付为准
同时,以超奢戏水池与尊享休闲会所为核心,联动架空层,串联休憩廊架与横向端景,打造核心奢享场景。
效果图仅供参考,具体以实际交付为准
另外,整个项目拥有包括泛会所(戏水池、健身场所)、场景化网红架空层泛会所等全维社交场景。
效果图仅供参考,具体以实际交付为准
产品方面,相比一期润府,望雲的户型设计可谓一脉相承,切中购房者“痛点”;在室内装修上的品质呈现,其审美也得到了进一步提升。
108㎡的入门级三房,起步门槛相比润府提高不少。
这个户型,入户玄关收纳、双开间的阳台、宽大的U型厨房,和套房主卧带步入式衣帽间+全景式飘窗,是比较突出的亮点;
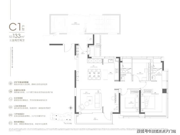
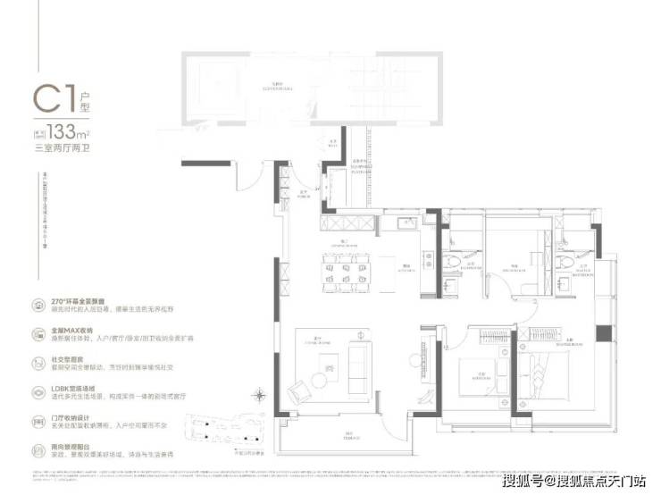
133㎡可以说是108㎡的进阶款,同样的三房两厅两卫,大面宽横厅、半开放式厨房设置岛台,加上主卧L型飘窗,再一次验证了华润置地豪宅化的产品思路。
来到165㎡个户型,已经上升到上海主流的大户型改善面积段,但看设计思路,可以看出是为满足多胎家庭成长而服务的。
近日中寰置地中心·望雲开放了165㎡样板间,楼典实地参观感受一番下来,整个户型动静分区的布局空间感很出众,人性化收纳设计细节很多,几乎每个房间都做了开窗面极大的飘窗,另外,装标也在润府的基础上升级了不少。
首先推开入户门,映入视线的是LDKB一体化客餐厅,家庭的核心活动区域,整个户型动静分区的布局一览无余,无走廊设计,空间利用率极高,走下来显得十分敞阔。
其次是收纳空间非常丰富,玄关、餐边柜、厨房、卫浴、主卧、阳台六大功能空间,随处可见。
比如,厨房配了珍珠白吊柜、三组抽屉式拉篮合理搭配,调料架收纳、大容量踢脚抽、清洁用品收纳区,米面粮油、碗碟刀叉都可完美隐身。
下图蓝色为收纳区域,绿色部分即飘窗区域:
入户门厅也非常讲究,定制级的玄关柜,包括鞋柜+收纳柜+卡座+衣帽区,整齐有序。
此外,像私享的入户梯厅可以做家庭小型储藏库;沙发后面的空间可以摆放大体量壁柜;大面宽阳台两侧也可作为定制储藏空间;
整个户型的飘窗面积总和达到了约14.3㎡。
其中主卧的270°转角飘窗就有约5.7m²,通过与外立面的结合,直接做了梳妆台和储物柜,拓展了飘窗的实用性。
同时室内精装交付标准上,也再度升级,从墙面、地板到厨卫品牌,都是国内外一线品牌。
188户型2梯2户,有独立的电梯厅。4房3卫设计,还是3明卫,这两点还是不错的。
客餐厅净面宽约5.45m、进深约6.85m左右。北侧是厨房和家政间,南侧是净面宽约5m的阳台。
南次卧也是套间设计,而且也是明卫,设计上还是用了心思的。卧室部分净面宽约2.9m、进深约3.7m。根据测算,可以放置6尺的床(宽度约1.8m)+2个床头柜(宽度约45cm/个)+衣柜(深约60cm)是可以的。
主卧转角落地窗+飘窗,也算是非常少见的了。净面宽约3.6m,不算进门的衣柜,进深大约5.7m左右。根据测算,可以放置宽约2m的床+2个床头柜(宽度约45cm/个)是可以的。
交通配套方面:北侧丰翔路、西侧祁健路、东侧汇丰路已建成通车,07-01地块南侧丰皓路(祁健路-工学路)计划2024年开工建设。项目距离15号线丰翔路站步行可达,日常出行非常方便。
商业配套方面:项目本身就是一个自带商业的TOD,华润置地规划以万象系列融汇轻奢时尚、休闲生活、运动潮流等多元业态,打造北中环“都市商业新旗舰。除了未来的万象系商业(规划中),周边还有经纬汇、聚丰购物广场、上坤城市广场、山姆会员店等,购物还是比较方便的。
医疗资源方面:项目周边有两大三甲级医院为健康保驾护航,本别是:仁济医院宝山分院和华山医院(宝山院区)。
教育资源方面:周边荟萃南大实验幼儿园、宝山区南大实验学校、上大附小、上大附中、上海大学附属学校、上海大学等全龄化教育资源。
声明:本文由入驻焦点开放平台的作者撰写,除焦点官方账号外,观点仅代表作者本人,不代表焦点立场。
