上海闵行联仲都悦汇较新的楼盘情况以及周边配套详解
扫描到手机,新闻随时看
扫一扫,用手机看文章
更加方便分享给朋友
上海闵行联仲都悦汇
售楼处品鉴热线:400-110-7220【售楼中心】
提-前-来-电-预-约-登-记—售楼处1v1销售专业讲解〢一对一热情服务〢
温馨提示:网上售楼中心〢欢迎来电咨询〢预约可享内部优惠〢匠心钜制恭迎品鉴〢

这样的别墅你喜欢吗
闵行不限购“大别野”
建面约378-441平
⛩地上三层地下一层
总价:1800-2200万
小区整体商业10万方
南北双花园90-300平

本项目位于闵行区马桥镇中秀路 100 弄,旗忠正核心,旗忠占地 1.76 平方公里,上海文明发源地之一,距今有 4000 多年历史,被誉为上海的“龙脊之地”。旗忠板块位于上海的西南面,具有超过 70%的绿化景观资源覆盖,空气中负氧离子含量相当于市区的 1.5 倍, 也是上海仅有的三块综合容积率低于 0.18 的国际别墅区之一。伴随着大虹桥城市核心地位的奠定,旗忠已一跃成为“大虹桥的后花园”。

项目简介:
【开发商】:上海联仲置业有限公司
【物业】:上海仲量联行物业管理公司
【容积率】:0.7
【绿化率】:35%
【车位比】:1:2.1
【物业费】:8元/㎡/月
【物业类型】:商业联排别墅
【交付标准】:毛坯
【拿地时间】:2014年8月
【开工时间】:2017年9月
【交房时间】:2021年6月
项目地址:闵行区中秀路
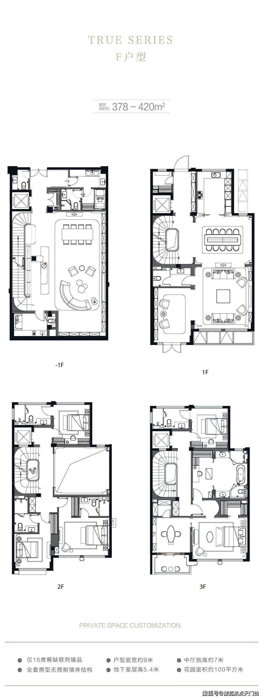
产品建面约378-441平
户型:地上三层地下一层
(地上:一层层高3.6米/二层层高3.4米/三层层高3.4米/地下层高5.4米)
总价:1800-2200万
小区整体商业10万方(在建)
南北双花园90-300平
商水&商电
产权车位约30万左右
项目卖点
50年办公别墅,不限购,通燃气
位于旗忠低密别墅区正核心
人工智能创新试验区,世界五百强入驻
旗忠高尔夫球场,网球中心等高端配套环伺
优质国际教育资源:德威国际学校、斯代文森国际高中
两横四纵,地铁5号线
自建十万方的繁华商业mall,马桥万达
高品质法式商墅,3.4-5.4m超高层高
实景现房,法式干挂石材,大面宽、大尺度,南向无遮挡

项目交通网络极为发达,自元江路向东 3 公里可抵达上海第二条南北高架—嘉闵高架,到大虹桥核心区域(虹桥机场)24 公里,连接延安路高架向东 36 公里,可抵达上海传统区域——人民广场,走沪闵高架 32 公里可到人民广场;元江路路口往南 500 米,则可转入申嘉湖高速,51 公里可达浦东机场,出行非常便捷。项目西侧 5 公里为沈海高速。 现有地铁最近的是 5 号线,闵行开发区站 4 公里,北桥站 5 公里。

更值得一提的是,位于旗忠正核心自建十万方的多元化商业综合体,未来也将和项目住宅同步交付使用,旗忠将成为离尘不离城的较佳宜居之地。马桥万达距项目仅两公里车程。
从风水、环境、交通、生活配套再到未来发展,旗忠的发展日益成熟已经成为众多成功人士置业的优选之地,同时随着政府远期规划的逐步兑现落地,旗忠的土地价值也将被进一步释放,投资旗忠也成为您家庭资产配置中最稳健、最有力的保障。

联仲都悦汇由联美、仲盛携手打造,位于旗忠板块正核心,紧临旗忠标志性建筑—旗忠网球中心。项目东临昆阳路,北靠骏麟路,西接中青路,南至敬南路;规划占地面积为16万方,总建筑面积为 33 万方。 本项目自然资源可谓得天独厚,被 6 个市政绿化所环绕,并且贯穿了3条自然水系,属于旗忠大生态环境中的公园住宅。项目一共分成 ABCD 四个地块,其中 A\B\C 三地块为商住办综合地块,以住宅为主结合部分商业及办公,距离 A 地块一路之隔的 D 地块是我们公司自有开发的—旗忠正核心少有的大型商业 mall 及办公产品。

目前即将对外发售的是 A 地块,地块由北至南分别为商业、住宅、办公三类物业,商业由我司自持 10 年经营,住宅及联排办公对外出售; 本次推出的就是位于 A 地块的联列办公产品,17/18/19 三栋,一共仅有 16 套,378-441 平商业联排别墅,使用面积在 550平以上。建筑风格为现代法式风格,外立面全部采用干挂石材。小区绿化率 35%,容积率0.7,车位配比 1:2.1,所售房源南向为市政绿地,无遮挡。目前房源已毛坯交付,边套建筑面积 402-441 平,中间套面积 378-420 平,房源为框架结构,可自由分隔可增加150平使用面积。地上三层,地下一层,地上:一层层高 3.6 米/二层层高 3.4 米/三层层高 3.4
米/地下层高 5.4 米。



此次出售的办公产品特点可以用三个词归纳,那就是大面宽、大尺度、高附加值。
上海闵行联仲都悦汇
售楼处品鉴热线:400-110-7220【售楼中心】
提-前-来-电-预-约-登-记—售楼处1v1销售专业讲解〢一对一热情服务〢
温馨提示:网上售楼中心〢欢迎来电咨询〢预约可享内部优惠〢匠心钜制恭迎品鉴〢
声明:本文由入驻焦点开放平台的作者撰写,除焦点官方账号外,观点仅代表作者本人,不代表焦点立场。
