「象屿天宸雅颂」售楼处电话:400-1182-105(欢迎致电)【官方认证】现项目3幅地块全部公示,包括8栋高层住宅、9栋多层住宅、8栋多层住宅、5栋3F低层住宅、8栋4-7F多层住宅以及5栋3F低层住宅,将推出建面约89-128㎡3...
「象屿天宸雅颂」售楼处官方预约热线:400-1182-105(欢迎致电)【官方认证】
「象屿天宸雅颂」售楼处电话:400-1182-105(欢迎致电)【官方认证】
「象屿天宸雅颂」营销中心电话:400-1182-105(欢迎致电)【官方认证】
编辑

一脉前滩·8号线枢纽·全臻装公园墅区
「象屿·天宸雅颂」
首开少量房源热销中
建面约88-139㎡3-4房
均价60501元/㎡
二批次房源加推在即
低密叠墅&宋风联排后期待加推
看房找我还有独家优惠
编辑

「象屿天宸雅颂」售楼处电话:400-1182-105(欢迎致电)【官方认证】
2024年10月25日,象屿地产以410639万元竞得 闵行区浦江镇MHPO-1316单元01-03、01-02、03-02地块,成交楼面价29200元/㎡, 住宅部分装修标准不低于3000元/㎡!
编辑

「象屿天宸雅颂」售楼处电话:400-1182-105(欢迎致电)【官方认证】
项目共计由3幅地块组成,目前设计方案均已公示:
01-02地块:拟建8栋17-18F高层住宅以及若干社区配套用房,规划可售住宅约524套,将推出建面约89-128㎡3-4房;
01-03地块:拟建9栋17-18F高层住宅、1栋20F保障房以及若干社区配套用房,规划可售住宅约472套,将推出建面约89-140㎡3-4房;
同时01-03地块规划有下沉式庭院,地下会所,该地块距离地铁站也更近一些!
「象屿天宸雅颂」售楼处电话:400-1182-105(欢迎致电)【官方认证】
高层除140㎡户型为两梯两户以外,其余全部为两梯四户,中间套带连廊!
03-02地块:拟建8栋4-7F多层住宅、5栋3F低层住宅以及若干社区配套用房,将推出叠墅以及联排产品,共计约182套!
编辑

「象屿天宸雅颂」售楼处电话:400-1182-105(欢迎致电)【官方认证】
编辑

「象屿天宸雅颂」售楼处电话:400-1182-105(欢迎致电)【官方认证】
编辑

「象屿天宸雅颂」售楼处电话:400-1182-105(欢迎致电)【官方认证】
首开房源↓
编辑

「象屿天宸雅颂」售楼处电话:400-1182-105(欢迎致电)【官方认证】
高层户型鉴赏↓
编辑

编辑

「象屿天宸雅颂」售楼处电话:400-1182-105(欢迎致电)【官方认证】
编辑

编辑

「象屿天宸雅颂」售楼处电话:400-1182-105(欢迎致电)【官方认证】
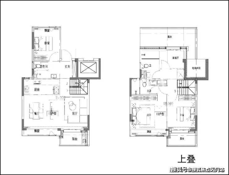
叠墅户型鉴赏↓
(过程稿,仅供参考)
编辑

编辑

「象屿天宸雅颂」售楼处电话:400-1182-105(欢迎致电)【官方认证】
编辑

板块配套
编辑

「象屿天宸雅颂」售楼处电话:400-1182-105(欢迎致电)【官方认证】
编辑

「象屿天宸雅颂」售楼处电话:400-1182-105(欢迎致电)【官方认证】
编辑

「象屿天宸雅颂」售楼处电话:400-1182-105(欢迎致电)【官方认证】
交通配套
项目距离8号线沈杜公路站步行约350-600米左右,可快速直达前滩、陆家嘴等核心区域,也算是项目一大卖点;通过浦星公路可直接上南北高架,自驾出行也十分便捷!
编辑

「象屿天宸雅颂」售楼处电话:400-1182-105(欢迎致电)【官方认证】
商业配套
项目高层东侧规划约15万方的商业,该商业地块应于住宅一并打包出让,共同组成真正的TOD项目,但目前做了拆分!
另外距离项目约3.3公里有浦江城市生活广场、绿地乐和城,约3.9公里有万达广场、4.4公里有浦江欢乐颂等商业!
编辑

「象屿天宸雅颂」售楼处电话:400-1182-105(欢迎致电)【官方认证】
教育资源
编辑

「象屿天宸雅颂」售楼处电话:400-1182-105(欢迎致电)【官方认证】
医疗资源
距离项目约4公里有仁济医院南院以及复旦大学附属眼耳鼻喉科医院!
编辑

生态环境
项目周边被浦江郊野公园环绕,低密宜居!
编辑

「象屿天宸雅颂」售楼处电话:400-1182-105(欢迎致电)【官方认证】
看房找我,底价购房+独家优惠
选房时需要考虑的几个关键因素包括地理位置、价格、生活环境、公共资源以及物业管理等。
1.地理位置:地理位置是选房的首要考虑因素。周边商业设施要充足,生活和出行方便。交通要发达,确保去哪里都很便捷。
2.价格:房价要适中,太贵的房子可能超出预算,而太便宜的房子可能存在问题。
3.生活环境:周边环境要舒适,避免嘈杂的噪音和污染。理想的居住环境应有绿树成荫、小河流水等自然景观。
4.公共资源:周边是否有幼儿园、学校、超市、便利店和菜市场等,这些设施能提高生活便利性和舒适度。
5.物业管理:好的物业管理能确保小区的安全、整洁和温馨,有助于房屋的保值增值。