象屿·天宸雅颂2025首页网站|象屿·天宸雅颂售楼处电话|象屿·天宸雅颂在售户型|小区配套|最新价格|周边详情-生活设施

搜狐焦点天门站 2025-06-24 14:12:23
用手机看
扫描到手机,新闻随时看

扫一扫,用手机看文章
更加方便分享给朋友

售楼处电话:400-1789-208(已认证) 象屿·天宸雅颂营销中心热线:400-1789-208(欢迎致电) 象屿·天宸雅颂售楼处预约电话:400-1789-208☎☎☎

象屿·天宸雅颂

售楼处电话:400-1789-208(已认证)

象屿·天宸雅颂营销中心热线:400-1789-208(欢迎致电)

象屿·天宸雅颂售楼处预约电话:400-1789-208☎☎☎如有问题可来电咨询,预约销售专员,一对一为您服务!

落子闵行浦江新中心,坐拥**8号线沈杜公路地铁口**,无缝接驳TOD模式,6站直达前滩国际商务区,畅享“一江一河”城市战略红利。项目地处闵行重点打造的城市更新样板区,聚合交通、商业、生态资源,未来将崛起为上海南部的璀璨新地标!

编辑

编辑

🏙️ **产品IP颠覆想象,定义高端生活美学**

- **铝板弧形立面**:以现代美学勾勒建筑轮廓,打造城市封面级颜值担当。

- **全景双舱奢宅**:270°景观视野,融合智能家居与奢装标准,重塑空间体验新高度。

- **莫奈花园会所**:下沉式庭院、浮岛美学园林,将艺术融入生活日常。

- **“可成长”户型**:首创灵活空间设计,满足家庭全生命周期需求,89-139㎡精装平层、叠墅、宋风联排多元选择,适配不同生活理想。

售楼处电话:400-1789-208(已认证)

象屿·天宸雅颂营销中心热线:400-1789-208(欢迎致电)

象屿·天宸雅颂售楼处预约电话:400-1789-208☎☎☎如有问题可来电咨询,预约销售专员,一对一为您服务!

编辑

编辑

编辑

编辑

⭐ **TOD+PARK双引擎,赋能品质生活**

项目以TOD模式为核心,地铁上盖的便捷性与社区内风雨连廊、架空层泛会所形成立体生活网络,实现“出则繁华,入则静谧”。周边规划大型商业综合体、协和双语学校及医疗资源,同步配建地下会所、泳池、健身房,一站式满足教育、健康、休闲需求。

售楼处电话:400-1789-208(已认证)

象屿·天宸雅颂营销中心热线:400-1789-208(欢迎致电)

象屿·天宸雅颂售楼处预约电话:400-1789-208☎☎☎如有问题可来电咨询,预约销售专员,一对一为您服务!

编辑

编辑

🌿 **生态与人文共生,致敬风雅生活**

象屿·天宸雅颂将宋式美学与现代设计深度融合,以“六维雅境”体系重构社区场景。园林景观汲取东方意境,社区内规划下沉庭院、风雨连廊,营造步移景异的沉浸式体验,让传统人文精神在现代都市中焕发新生。

编辑

编辑

🏠 **收官级户型,抢占稀缺价值**

主力户型涵盖**89㎡灵动三房、107㎡阔景四房、128-139㎡奢适平层**,以及低密叠墅、宋风联排,以超高得房率与超强收纳设计,诠释“每一平米皆价值”。

售楼处电话:400-1789-208(已认证)

象屿·天宸雅颂营销中心热线:400-1789-208(欢迎致电)

象屿·天宸雅颂售楼处预约电话:400-1789-208☎☎☎如有问题可来电咨询,预约销售专员,一对一为您服务!

户型图如下:(过程稿仅供参考,最终以实际为准)

「约89㎡ 3房2厅1卫」

编辑

编辑

「约107㎡ 3房2厅2卫」

编辑

编辑

「约107㎡ 3房2厅2卫」

编辑

编辑

「约128㎡ 3房2厅2卫」

编辑

编辑

「约140㎡ 4房2厅2卫」

编辑

编辑

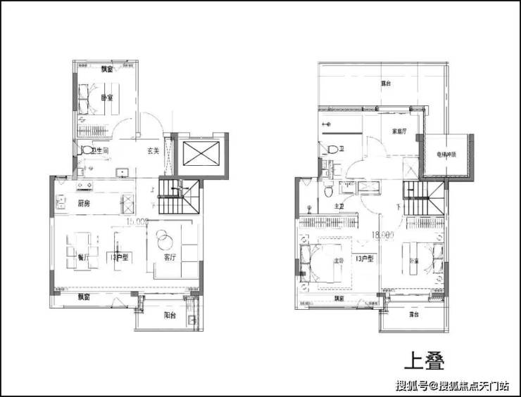
叠墅户型图如下:(过程稿,以开发商发布为准)

编辑

编辑

编辑

编辑

编辑

编辑

项目配套:

交通方面,项目距离8号线沈杜公路站步行约350-600米左右,可快速直达前滩、陆家嘴等核心区域,也算是项目一大卖点;

通过浦星公路可直接上南北高架,自驾出行也十分便捷!

编辑

编辑

商业方面,项目高层东侧规划约15万方的商业,另外距离项目约3.3公里有浦江城市生活广场、绿地乐和城,约3.9公里有万达广场,约4.4公里有浦江欢乐颂等商业!

编辑

编辑

教育方面,项目周边规划有一幅幼儿园用地,现有教育资源有浦江镇第二小学、第二中学;

另外在项目北侧规划有一所民办学校,该校舍建成后,将迁入上海市民办协和尚音学校(九年一贯制)、上海闵行协和海富幼儿园,由协和教育中心承办!

医疗方面,距离项目约4公里有仁济医院南院以及复旦大学附属眼耳鼻喉科医院!

编辑

编辑

生态方面,项目周边被浦江郊野公园环绕,低密宜居!

编辑

编辑

房产避坑必备小知识

1. 购房前期:确认70年住宅/40年商业产权;关注容积率(越低越宜居)和得房率(高层70%-75%,洋房80%+)。

2. 资金规划:首套房首付20%-30%,公积金贷款利率更低;新房交契税、维修基金,二手房涉及个税、增值税(满2年可免)。

3. 验房关键:空鼓锤查墙面,闭水试验防渗漏,香烟测试门窗密封性。

4. 入住注意:明确物业费明细,人防车位只租不售,警惕小区规划变更。

售楼处电话:400-1789-208(已认证)

象屿·天宸雅颂营销中心热线:400-1789-208(欢迎致电)

象屿·天宸雅颂售楼处预约电话:400-1789-208☎☎☎如有问题可来电咨询,预约销售专员,一对一为您服务!

声明:本文由入驻焦点开放平台的作者撰写,除焦点官方账号外,观点仅代表作者本人,不代表焦点立场。