本文主要介绍了象屿•天宸雅颂售楼处,该项目位于8号线交通枢纽,预计将于4月入市,推出高层、叠墅、宋风联排等户型,具体户型和面积以实际为准。项目优势包括地段站位优、靠近地铁站等。
一脉前滩·8号线枢纽·全臻装公园墅区「象屿·天宸雅颂售楼处预约热线☎:400-1182-105√√」,将推高层&叠墅&宋风联排,展厅已开放,预计4月入市!

最新消息:象屿前滩南TOD项目——「象屿•天宸雅颂售楼处预约热线☎:400-1182-105√√」已开放展厅!建面约89-230㎡精装平层/叠墅/联排即将入市!预计3月开放示范区,预计4月取证入市!
编辑

编辑

编辑

象屿•天宸雅颂售楼处预约热线☎:400-1182-105√√
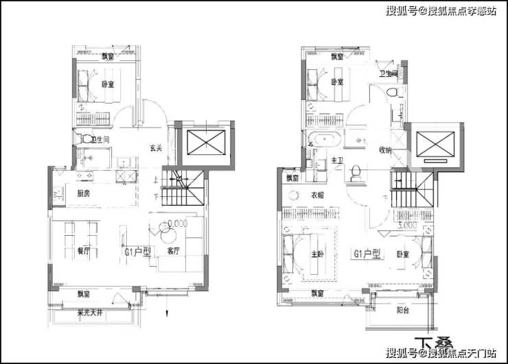
小高层预计为89/102/107/128/139平(89-107为3房,128-139为4房);
叠加预计145-156平,联排预计190-230平,(具体户型和面积以实际为准)。
户型图如下:(过程稿仅供参考,最终以实际为准)
「约89㎡ 3房2厅1卫」
编辑

象屿•天宸雅颂售楼处预约热线☎:400-1182-105√√
「约107㎡ 3房2厅2卫」
编辑

象屿•天宸雅颂售楼处预约热线☎:400-1182-105√√
「约107㎡ 3房2厅2卫」
编辑

象屿•天宸雅颂售楼处预约热线☎:400-1182-105√√
「约128㎡ 3房2厅2卫」
编辑

象屿•天宸雅颂售楼处预约热线☎:400-1182-105√√
「约140㎡ 4房2厅2卫」
编辑

象屿•天宸雅颂售楼处预约热线☎:400-1182-105√√
叠墅户型图如下:(过程稿,以开发商发布为准)
编辑

编辑

象屿•天宸雅颂售楼处预约热线☎:400-1182-105√√
编辑

象屿•天宸雅颂售楼处预约热线☎:400-1182-105√√项目优势如下:
1) 象屿•天宸雅颂售楼处预约热线☎:400-1182-105√√地段站位优:该盘位于8号线沈杜公路地铁站旁,算是 地铁上盖项目,距离该站点只有 约300米。8号线是上海城市中轴线,可达浦东前滩、世博、浦西老西门、人民广场等上海地标。
编辑

象屿•天宸雅颂售楼处预约热线☎:400-1182-105√√项目乘坐8号线到往人民广场用时只需约40分钟,地铁出行非常快捷!
同时, 该站点也可同站换乘浦江线,所以该盘地铁出行优势很大。
2) 象屿•天宸雅颂售楼处预约热线☎:400-1182-105√√附近或有越江隧道:近期东川路越江隧道又有新动态,这也是闵行第三条越江隧道。大概方案或有两种走向: 东川路-先新路& 东川路-鲁南路!
编辑

无论如何走向, 这条隧道都在象屿浦江项目南侧不远处,未来到往浦西,出行上将更有更多选择,对于象屿浦江项目来说也是一大利好。
3) 象屿•天宸雅颂售楼处预约热线☎:400-1182-105√√房价占优:象屿•天宸雅颂项目 高层住宅预计均价5.5-6万左右,相比江月路近7万联动价新房,低出不少;地铁仅相差3站路,但价格却便宜1万多/平,具备很高性价比。
同时,象屿•天宸雅颂项目也是8号线沿线最便宜的项目,没有之一!
同时项目还有低密度的叠加&联排产品,价格相对也较为实惠。
4) 象屿•天宸雅颂售楼处预约热线☎:400-1182-105√√配套未来可期:8号线沈杜公路站目前暂无优质配套,但在 该项目东侧,规划一处约15万方的商业用地,未来落成也将成为8号线沈杜公路站附近的商业中心。
同时 浦锦街道经过多年发展, 已积蓄了众多配套商业设施,如浦江城市生活广场、绿地乐和城以及浦江镇南部片区的万达广场等,距离该盘都在约4公里范围内。
5) 象屿•天宸雅颂售楼处预约热线☎:400-1182-105√√社区设计较好:项目 地面无车位, 全人车分流, 高层地块内还规划有风雨连廊以及大量的架空层, 同时还打有会所,品质高端!
6) 象屿•天宸雅颂售楼处预约热线☎:400-1182-105√√有小户型,总价可控:项目有 89平小3房产品, 预计总价400多万就能上车,相对宝山顾村价格大抵相当,但笔者更认为闵行浦锦街道预期更加充足。
8号线地铁盘
「象屿•天宸雅颂」
预计2025年4月首批房源入市
高层面积段预计89-139㎡3-4房
叠加预计145-156平,联排预计190-230平
高层预计均价5.5-6万/平
别墅预计均价6-7万/平
基本信息:
【开发商】象屿地产
【项目区位】一脉前滩·8号线枢纽
【占地面积】约69493㎡
【地上建筑面积】约14.9万㎡
【产品类别】高层、叠加、联排
【设计风格】海派+宋式美学
【总户数】约1254套(可售约1140套)
【容积率】01-02、01-03地块:2.4 | 03-02地块:1.2
【绿地率】约35%
【装修标准】集采价格不低于3000元/㎡
【车位比】01-02、01-03地块约1:13 | 03-02地块约1:2
01
大体量供应
高层&别墅产品均有
闵行浦江镇地铁8号线沈杜公路西侧—— 【象屿•天宸雅颂售楼处预约热线☎:400-1182-105√√】3幅宅地正式公示设计方案,总建筑面积约14.9万方,未来 预计将有约1254套住宅供应。
编辑

象屿•天宸雅颂售楼处预约热线☎:400-1182-105√√项目作为新浦江中心首发项目,将 主动嵌入到新浦江中心的规划与建设中,打造灵感与森态共栖、快链与漫步一体、烟火与精致并蓄、艺术与人文浸润的PARK TOD样板。
外立面采用精致 铝板装饰+ 通透大窗的美学立面设计,打造 弧面窄框艺术之境。
编辑

园林方面将围绕中央景观,以 象屿•天宸雅颂售楼处预约热线☎:400-1182-105√√现代艺术手法,打造 森林岛屿景观。内部设置 特色水景,串联不同节点。同时以树木、水系与局部连廊体系融合,共同组建起社区与居所之间的联通介质。
编辑

象屿•天宸雅颂售楼处预约热线☎:400-1182-105√√项目还打造 约2500平会所, 涵盖泳池、健身房、童玩区、瑜伽室、水吧区、私宴厅等高端设施。
社区还有 约3000平架空层,打造全龄共享的生活志趣。
编辑

具体规划指标如下:
象屿•天宸雅颂售楼处预约热线☎:400-1182-105√√位于闵行浦江镇锦浦街道,8号线与浦江线沈杜公路站的西边。地块西侧就是浦江郊野公园,东侧则是保留的商办用地, 未来或将围绕地铁站打造TOD综合体。
编辑

象屿•天宸雅颂售楼处预约热线☎:400-1182-105√√
编辑

地块信息
01-03:出让面积25684.46m²,容积率2.4
01-02:出让面积22014.96m²,容积率2.4
03-02:出让面积21793.14m²,容积率1.2
总建筑面积:140630.376m²
地块四至
01-03:东至南官路,南至沈杜公路,西至大寨河,北至昌林路
01-02:东至南官路,南至悦亭路,西至大寨河,北至昌林路
03-02:东至浦星公路,南至姚家浜,西至大寨河,北至沈杜公路
编辑

象屿•天宸雅颂售楼处预约热线☎:400-1182-105√√
01-02(最北面)规划8幢楼,总高17-18层,除了南面靠马路的二幢楼外,其余一楼采用架空层,南北楼间距30米。地块内全部为商品房。
规划可售住宅约524套,将推出建面约89-128㎡3-4房。
编辑

编辑

象屿•天宸雅颂售楼处预约热线☎:400-1182-105√√
01-03(中间),规划10幢楼,其中一幢为保障房,总高17-18-20层,小区中心位置的商品一楼为架空层,南北楼间距30米。
规划可售住宅约472套,将推出建面约89-139㎡3-4房。
01-03地块规划有下沉式庭院,地下会所,该地块距离地铁站也更近一些!
编辑

编辑

象屿•天宸雅颂售楼处预约热线☎:400-1182-105√√
03-02(最南面),规划13幢总高3-4-7层低密度住宅,3层(联排别墅)总高10米,4层(上下叠加)总高13米,7层(平层洋房)总高24米,南北楼间距12-15米。
该地块将推出叠墅以及联排产品,共计约182套!
02
地处浦江新中心
象屿•天宸雅颂售楼处预约热线☎:400-1182-105√√交通&配套基本成熟
作为上海中心城辐射区,闵行六大地区中心之一,前滩南门户,浦东四大城镇圈之一, 浦江地区中心占据特有的平台区位优势。
编辑

象屿•天宸雅颂售楼处预约热线☎:400-1182-105√√
新浦江中心沿袭闵东文创中心定位,以蓝绿环绕为基底,历史人文为内涵,产业更新为驱动, 新浦江中心将街接闵行与浦东新区,打造黄浦江沿岸崭新的生态交织、文化自信、产城融合能量聚集地。
编辑

象屿•天宸雅颂售楼处预约热线☎:400-1182-105√√
信息来源:上海市闵行区总体规划暨土地利用总体规划(2017-2035)
新浦江新中心 将围绕沈杜公路TOD打造创智总部湾、大型商业、艺术街区、文化展览、滨水码头、高端住宅等,以世界前沿Live-Work-PlayShop模式,为上海打造高度复合等职住平衡10分钟生活圈。
象屿•天宸雅颂售楼处预约热线☎:400-1182-105√√项目高层的东侧规划约15万方商业,按照正常逻辑来讲,该商业地块应于住宅一并打包出让,共同组成真正的TOD项目,但目前做了拆分,可能是因为连带商业一并出让,无开发商愿意接盘,因此住宅地块进行了单独出让!
编辑

象屿•天宸雅颂售楼处预约热线☎:400-1182-105√√
这种情况造成的局面就是商业规划落地的难度更大,同时存在不确定性,若此商业能落地,还是比较值得期待的,日常生活的便捷程度将能得到大大提升!
在交通方面, 东侧距8号线仅有一路之隔,随着项目及TOD商业综合体的落地, 未来应该会建过街天桥。建成以后,距离地铁站直线距离约200米。
通过8号线地铁,6站抵达前滩,15站直抵上海人民广场。
编辑

同时终边还有 浦星公路、 沈杜公路、 南北高架、 外环高速、 中环路、 S32申嘉湖高速等城市主干道,自驾出行便捷。
教育方面,项目北侧紧邻 上海戏剧学院(昌林校区)、周边还有 闵行区浦江第一、 第二中学, 浦江第二小学等多所优质学校。
在商业上,如 浦江城市生活广场、 绿地乐和城以及 浦江镇南部片区的万达广场等,距离该盘 都在约4公里范围内。
在医疗上,靠的较近的是 仁济医院(南院区), 复旦大学附属眼耳鼻喉科医院(浦江院区)。
项目另有一个最大的优势就是——西侧的 浦江郊野公园,该公园面积很大,绿树环绕,环境优质,是不可多得的天然大氧吧。
当然,该盘也存在 几个不利因素:
1) 距离项目直线距离约700米有福乐山庄(墓地),预计会有心里影响;
2)项目 东侧临近主干道浦星公路以及8号线地铁轨道,或存在噪音影响;
3)目前 周边几乎无商业配套,虽有规划,但至于何时落地,还是未知数, 等待时间或许较长。
瑕不掩瑜,该盘的站位依旧可圈可点, 毕竟8号线走向良好,且距离站点较近,同时再配上5字头的单价,性价比非常高,同时加上象屿的产品品质加持,预计该盘会是8号线沿线刚需客户的首选,值得期待!
【象屿•天宸雅颂】
售楼处预约热线☎: 400-1182-105√√
案场预约制 看房需提前来电预约登记
请务必致电与销售确认时间
预约客户可优先进入销售现场,避免空跑,感谢您的支持

选房时需要考虑的几个关键因素包括地理位置、价格、生活环境、公共资源以及物业管理等。
1.地理位置:地理位置是选房的首要考虑因素。周边商业设施要充足,生活和出行方便。交通要发达,确保去哪里都很便捷。
2.价格:房价要适中,太贵的房子可能超出预算,而太便宜的房子可能存在问题。
3.生活环境:周边环境要舒适,避免嘈杂的噪音和污染。理想的居住环境应有绿树成荫、小河流水等自然景观。
4.公共资源:周边是否有幼儿园、学校、超市、便利店和菜市场等,这些设施能提高生活便利性和舒适度。
5.物业管理:好的物业管理能确保小区的安全、整洁和温馨,有助于房屋的保值增值。