2026.(森兰·航荟名庭售楼处电话-售楼中心电话- 销售中心 - 环境 - 户型 - 森兰·航荟名庭价格 - 地址 - 楼盘最新详情 - 配套 - 电话 - 梯户比 - 售楼处地址

搜狐焦点天门站 2026-01-22 14:40:00
用手机看
扫描到手机,新闻随时看

扫一扫,用手机看文章
更加方便分享给朋友

森兰·航荟名庭售楼处电话:400-8669-938

森兰·航荟名庭售楼处电话:400-8669-938

18号线约500米进站

低密精致社区+1梯2户无连廊神户型

森兰·航荟名庭

劲爆优惠热销中!

建筑面积约90-136㎡3-4房

上车门槛进一步降低,入手正当时

轨交之上,1.5低容积率

森系生活

洋房、小高层无连廊,产品少见

土拍市场上,容积率已经很难见到1.5及以下的,以后也很少。今年首批拟出让的宅地中,19幅地块,仅1块容积率低于1.5,均价高达6.95万/㎡,可见低密住区,在上海将越来越稀缺。

当高密度住区弊端显露,低密的距离感能带给人们更多的安全感。在森兰·航荟名庭, 1.5的社区容积率,规划7-8层洋房,11-14层无连廊小高层 ,如此低密环境,如今站上了浦东的风口。

项目效果图

可以洋房,何必高层,可以低密,何必拥挤。 低密社区不仅保障了居住的舒适度,也实现了社区内景观、服务设施的私属性,达到了安全有效防护,使住户的健康更有保障。

让同样的高度生长更少的楼层,降低了密度,抬高了视野,拓展了空间的舒适感。 即使抛开楼间距、采光通风等优势,只计算实实在在的得房率,洋房的性价比也是显而易见的

项目效果图

这一切,因为有低密

才有生活的另一种可能

全区“6+1”森O₂家园系统

项目全区景观空间以林里纷繁的温度家园为设计定位,以“森O₂家园”为设计理念,景观设计立足场地南北双片区 约50000㎡大盘空间,约300m大中轴,约10000㎡中心景观区 的多组团的丰富空间规划特点。

项目效果图

公园+花园的双园社区、品质归家入口、特色阳光草坪、双会客系统、主题儿童乐园、健身系统 这六大功能价值为主,并且融合由三条不同主题的林荫步道和三个圆形景观节点组成的 “绿林项链”全区漫步系统 ,共同构成全区“6+1”森O₂家园系统。

行走其间,甚至能想象到,夏日傍晚在艺术景观客厅纳凉,习习凉风从树荫下拂过。

项目效果图

航头史称鹤沙,因“鹤沙八景”闻名于世,森兰·航荟名庭不忘初心,结合航头当地鹤文化IP形象,塑造 “森氧鸟” 。将如此生动的形象融入社区景观中,这也是带给家园的礼物。

项目效果图

一梯两户无连廊

在设计之初,森兰·航荟名庭就考虑到了连廊带来的潜在负面影响,因此整体采用 一梯两户无连廊的设计方案,从根本上解决了隐私和采光影响

在环境更静谧的同时,让住户免于电梯的漫长等待,不仅提升了私密性,也提高了出行效率,让住户把更多私享空间留给家人,奢享舒适生活。

而且未来购房者摇号选房时,选择面也会更广,上车几率也会更高,无论如何选择都不会有连廊影响。

项目效果图

始于森兰系基因

建筑面积约90-130㎡3-4房全龄户型

除了“轨交盘”、“低密住区”这些标签,如今限价条件下,更应该 买真正值得持有,开发商实力雄厚,高品质配置的新房

大家所熟知的 森兰星河湾、森兰名轩、森兰名佳、森兰名苑、森兰壹公馆 等森兰系产品,战绩惊人,硕果累累,这一份忠实拥趸的背后,是购房者在森兰身上看到了嵌入城市的生长基因。

从之前森兰系产品的实景图来看,品质眼见为实,与城市共融共进。在时光的浸润下迎接市场的检验,也塑造了森兰国际住区的现在与未来。

森兰住宅项目实景图

同宗同源的项目,有一种基因上的笃定。好房子的底色,就是人们对它最大的信心来源。

本次森兰·航荟名庭即将推出的是 建筑面积约90-130㎡3-4房,精准覆盖各种主流需求 ,全龄户型,满足不同家庭的居住需求。 有毛坯和装修可供选择 ,上车门槛可能还要低于你的想象,真正为置业者所考虑。

建筑面积约90㎡三房两厅两卫

建筑面积约90㎡, 做到实实在在的三房两厅两卫,很好地控制了总价 ,让买房人的钱都用在“刀刃”上。

户型方正,全明通透, 270°宽景阳台,享受270度转角巨幕视野 ,赋予居所大气磅礴的空间感与层次感。

样板房实景图

入户即是独立玄关,大尺度U型厨房,三开间朝南的全飞机户型设计,几乎没有多余的面积浪费。

样板房实景图

实用性超乎想象,轻松实现一步到位,资产配置也能得心应手。主卧套房设计,优享舒适生活,卧室大飘窗设计,森氧风光尽收眼底。

样板房实景图

建筑面积约100㎡三房两厅两卫

建筑面积约100㎡三房两厅两卫,构筑老、中、青三代人美好生活蓝图。独立玄关,方便收纳。

约5.2米阳光宽厅 ,收纳幸福光景,不断拓宽的阳台尺度,是建筑对自然的致敬,将窗外园林化为家中风景,鲜氧、清风、阳光……肆意穿梭于房间各个角落。

样板房实景图

实用三房,成长型家庭也能一步到位。对于单身精英,是安放阅读与释放兴趣的尽兴空间,电竞室、绘画室、桌游室,满足你对个性生活的追求。

对于二人情侣,是安放衣物与家庭办公的温馨空间,衣帽间、书房、学习,充分满足二人生活的多元生活。面对三口之家,可以从婴儿房进阶为儿童房,伴随年龄结构的变化,而不断调整自己的定位。

样板房实景图

建筑面积约130㎡四房两厅两卫

划重点

1、建筑面积约130㎡四房,功能性完全满足,二孩家庭与三代同堂的家庭也能满足居住需求。

2、约5.7米宽厅,功能分区明确,生活动线井然有序。格局上实现了真正的全明空间与南北通透,生活空间张弛有度。

样板房实景图

3、南向主卧打造了带衣帽间的酒店式套房,舒适感和品质感双重加持。

样板房实景图

18号线地铁房,丰盛配套无需等待入住即享!

航头一直是浦东腹地人口较为密集的居住区,板块发展多年,各项生活配套已然醇熟。 森兰·航荟名庭又占据航头板块核心位置,所以入住后即可享受丰盛配套,无需等待。

交通方面,森兰·航荟名庭直线距离 18号线航头站仅约500米 ,完全可以实现步行进站!进站后7站即达中环 御桥 、11站可达内环龙阳路、15站来到陆家嘴金融城昌邑路。

还有一个福利:始发站有座位,让你日常通勤迅捷又舒适。

示意图仅供参考

不只是地铁,项目周边还有4条主干道环绕,自驾通勤周浦康桥、前滩三林、北蔡花木、联洋碧云、张江等浦东上游板块同样迅捷无比!

商业方面,项目周边有上海苏航生活广场、咸塘小镇商业步行街,集中式大型商业有周浦万达广场、浦乐生活广场(在建中)。

医疗方面,项目周边有上海龙华医院浦东分院 (三甲医院)、上海南航医院等。

休闲娱乐方面,项目可自驾迅捷通达召稼楼古镇、新场古镇、浦江郊野森林公园、 上海野生动物园 、迪士尼度假区等。

示意图,仅供参考

示意图,仅供参考

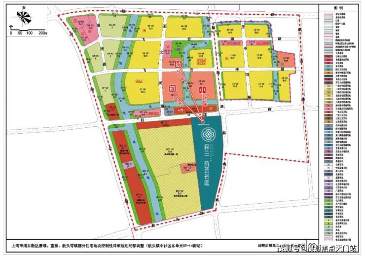
尤其值得一提的是教育方面。

项目隔壁就是海洲幼儿园,北面还有2块教育用地,可以说从幼儿园小学到初中的教育都近在咫尺。未来业主每天可步行接送孩子上下学,让孩子的成长之路更从容,也更安全。

(免责声明:以上学校相关信息来自上海2035航头板块规划公示,仅供参考。不作学区承诺,对口信息以每年政府公示为准)

来源上海2035航头公共服务与基础教育设施规划图

除了入住即享的丰盛配套,随着18号线通车,航头如今能直接承接张江外溢的居住需求!

不仅是人口导入,还有产业同步导入,在《上海市张江科学城发展“十四五”规划》中明确,张江科学城南部辐射区域,将打造前沿高端产业集群。 伴随着产业的引入,森兰·航荟名庭未来前景可期!

森兰·航荟名庭售楼处电话:400-8669-938

声明:本文由入驻焦点开放平台的作者撰写,除焦点官方账号外,观点仅代表作者本人,不代表焦点立场。