华润澐启滨江售楼处电话:400-8669-938

浦东后滩 华润置地中国江河1号作品
「华润后滩项目」「澐启滨江」
将推出建面约125-286㎡3-4房
项目信息
8月1日,华润置地联合南房集团以股权转让的形式,成功拿下了 后滩07-01、04-01以及 黄浦余庆里地块,总成交价244.7亿元!

上海首个一线滨江新规豪宅
上海“好房子”新规的发布,不仅是一次居住标准的升级,更是一场从居住理念到空间形态的系统性革新。
当政策红利驱动高端住宅进入 “品质竞赛新纪元”,滨江这一承载上海城市精神的黄金地带,正迎来产品力的全面跃升。而澐启滨江,以 “新规首作”的标杆姿态,凭借设计理念的前瞻性与居住体验的革新性,对上一代产品实现全方位超越,独创 “十二大颠覆性设计体系”,为上海滨江豪宅树立起难以企及的新高度。

简单来说,不是让建筑“看风景”,而是让建筑本身成为风景的延伸!建筑的形态,是城市精神的具象表达。

澐启滨江的外立面设计,没有跟风玻璃盒子,而是用 进口铝板+超白玻璃幕墙组合,线条模拟江潮起伏的弧度。
最绝的是色彩灵感来自黄浦江上百年沙船,浪白色基调配夕阳金镶边,让建筑变成江岸的“发光灯塔”。
塔冠如灯塔般指引回家,中段以浪白与夕阳金游艇舱勾勒出270°江景画框,下段石材柱廊则向上生长出ART-DECO经典线条,整体既精致又有腔调。


整体建筑如一艘停泊于江岸的“时代巨轮”,将江脉文明与当代设计语言无缝融合,给上海住宅的审美与居住体验制定了新的标准!突破传统社区“平面造景”的局限, 澐启滨江社区围墙被下沉水景和绿化替代,滨江步道直接融入世博文化公园的10公里绿廊,实现 “推窗见江、移步入园”。

社区内配置 巨幅透明全景泳池&群岛会所体系,另外还有 全域架空+立体峡谷的设计。

所有楼栋一层全架空,形成风雨连廊和下沉庭院;社区内中央水轴串联四大主题园区(亲子乐园、静谧花园等),甚至引入雾森系统营造“仙境感”。


这种“自然生态+人文社交”的双重赋能,重新定义了上海高端住宅的审美高度与生活维度。

作为“新规首作”,澐启滨江在户型设计上实现了 “视野革命”与“空间弹性”的双重突破。
建面约230-285㎡「环幕江景舱」,以“270°无界平层”结构打破传统空间边界,3.3米层高(部分户型)配合全景落地窗,将黄浦江的流动韵律、徐汇滨江的艺术天际线与社区的峡谷景观三重资源无界引入室内,成就上海滨江市场罕见的“IMAX环幕视野”。

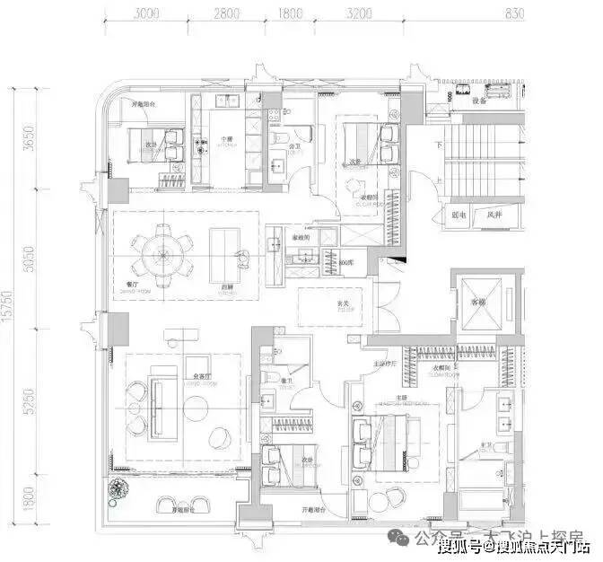
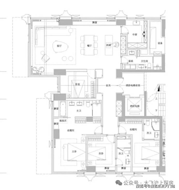
户型图过程稿:(过程稿仅供参考,最终以实际为准)
123㎡3房2厅2卫

241㎡3房2厅2卫

185㎡4房2厅3卫

237㎡4房2厅3卫

231㎡4房2厅4卫

286㎡4房2厅4卫

板块信息
衡量一条江的价值,最有份量的方式是「时间」黄浦江的百年变迁,值此四个时刻为世人所铭记每一个时刻,都事关世界,亦将上海推向世界。
如今,当你站在外滩,看浦江两岸新旧交织的天际线,看到的不仅是城市景观,更是一部中国近代化与全球化,最为激荡的流动历史。从外滩万国建筑群勾勒出的恢弘轮廓,到陆家嘴摩天楼宇刺破天际的磅礴力量,再到世博盛会向世界展开的瑰丽画卷…….黄浦江的百年奔流,无声地见证并承载着这座城市的雄心与诗意。

而今,时代的聚光灯再次落下,一处全球瞩目HEARTOf BUND--后滩,正于历史与未来的交汇处傲然屹立,为这条传奇江岸,开启下一章的无限想象。后滩之于上海,是更前瞻的探索者,当一座城市的顶级核心区域,可以同时拥有世界级的经济密度、世界级的生态品质和世界级的文化空间,在这条赛道上后滩驱动上海成为全球的领跑者。曾经全球滨水模式看伦敦与纽约,43公里泰晤士河与21公里哈德逊河的沿岸是世界级的金融、文化、旅游和公共生活走廊。


今天,当浦江两岸45公里滨水岸线全线贯通,黄浦江百年恒流,终以雄心垂范世界。
正如全国政协常委、上海公共外交协会会长周汉民所言,像这么一个滨水岸线长度的贯通与功能再造,纽约、伦敦、东京、巴黎都不能比的,这绝对是一个有世界影响力的故事。在这里,新黄金三角,正将世界水岸的潮汐,引向东方。

过往由老外滩、北外滩与陆家嘴构成的“黄金三角”成为19与20世纪的辉煌见证。当下,一个由世博滨江、后滩、前滩及对岸的徐汇滨江共同构筑的、更具划时代意义的“黄金三角2.0”正在崛起,堪称上海在21世纪最伟大的成果。它彻底颠覆了20世纪“功能分离”的城市模式,开创了“功能混合”的未来范式。其核心灵魂是将创新、生态、文化、居住、休闲等功能如同经纬线般紧密编织。它追求的不仅是经济密度,更是生活的温度、文化的厚度与创新的活力。

曾经追赶,现在超越,新黄金三角的诞生凝练了上海过去数十年的发展智慧,承载着21世界上海建设卓越全球城市的最高成果,标志着中国在城市滨水区开发上实现了从对标到超越的原创性引领。而后滩,正位处新黄金三角的地理中心,也是城市精神和生活方式的驱动核心。这片曾为世界访客搭建的舞台,历经十五年的沉淀与远见卓识的规划,正在展开属于上海的滨江远见。

后滩,不仅是黄浦江畔的珍贵留白,更是一场关于“上海如何与江河共生”的伟大探索。华润置地择址于此在时代巨澜中领帆开来,以“大江大河”回应上海“一江一河”的世纪战略,为世界,著写中国江河1号作品。上海的城市发展,始终围绕黄浦江展开,而一条黄浦江,仅有两个天然S湾。第一条S湾孕育“外滩-北外滩陆家嘴”世界级会客厅,奠定上海全球金融中心的地位;第二条S湾则诞生“世博-前滩-徐汇滨江”新黄金三角,以“艺术+文化+总部经济”重新定义全球生活方式,也是黄浦江的「珍藏一湾」。这条S湾上,串联起世博、前滩、徐汇滨江三大CAZ,沉淀着21世纪上海江河的璀璨成果。超7000亿GDP在此创造,4000家企业巨擘在此聚首,构筑起一座足以比肩全球的产业江岸。所以,后滩存在的意义,从不是为了追赶时代,而是为了定义下一个时代。后滩,它首先是地理之心。S湾总长约7KM水岸,浦东岸线以西岸梦中心为中点展开,浦东则以后滩为地理中心串联南北,东西隔江对望,标定新S湾正心。其次,是政策之心。在《黄浦江沿岸地区功能融合发展和空间品质提升专项规划(2025-2035年)》中,后滩被定义为“浦江之心,活力珠链”打造面向全球的城市滨水新都心、科技创新中心、文化交流中心和城市中心活动区。上海沿江板块众多,但能被官方钦点为浦江之心”的,有且仅有后滩。再者,它是资源之心,众星捧月的土地之上,后滩书写永不落幕的万千精彩。漂启滨江立踞于此,北邻世博文化公园与央企总部高地,南接前滩国际商务区,隔江对望徐汇滨西岸艺术硅谷,目之所及,城市TOP级景观拥揽入怀,关于江流的精彩和想象,汇涌而来。






规划一线,难再有。黄浦江沿岸世界级滨水区覆盖流域,结合滨水空间特点和功能导向,细分为三个层次内层亲水营造范围(滨江开放空间向外约100-400米)中层品质提升范围(从滨江开放空间向腹地拓展约500-1000米范围)以及外层赋能拓展范围(从滨江开放空间向腹地拓展约2公里)。启滨江直线距江约300米,位处「内层亲水营造」范围,领衔一线滨江生活范式。景观一线,不曾有。向前,是徐滨的ART&AI风景;向左,是前滩的时尚活力霓虹,向右,是世博会客厅的璀璨天际。澐启滨江,目之所及,皆是上海封面级视野。资产一线,不再有。纵观黄浦江S湾三十余年开发史:仅有11个一线滨江住区。当启滨江落笔于最后一片可成片开发的珍藏江岸,这不仅是时代馈赠的恒贵资产,更是上海留给极少数人的旗舰恒藏。


地铁19号线(在建)的德州路站就在社区门口。这条投资938亿、单价超20亿/公里的“全球最贵地铁线”,串联起北外滩、陆家嘴、前滩三大核心CBD。

未来,居民无需换乘即可直达外滩金融中心,实现“地铁一响黄金万两”的资产增值逻辑。

华润澐启滨江售楼处电话:400-8669-938

上海普陀板块具有独特的区位优势和发展潜力,以下是对其的分析:
- 区位交通:普陀区位于上海中心城区西北部,是上海的“西大堂”,是上海连接长三角及内地的重要枢纽,也是沿沪宁产业创新带上的重要节点 。区内轨道交通网络密集,有11号线、14号线等多条地铁线路,方便居民出行。
- 商业配套 :真如地区是普陀的商业核心之一,随着城市更新,红旗村已蝶变为“真如境”,建成真如环宇城MAX、山姆会员店等高品质商业载体。此外,苏州河沿岸的天安千树等也成为新的商业地标,为区域带来了丰富的消费体验。
- 产业发展 :普陀区聚焦智能软件、研发服务、科技金融、生命健康四大重点产业,加速培育智能软件与数智健康两大千亿级产业集群。规划占地面积2.32平方公里的海纳小镇,重点布局先进计算、数字广告、数字能源等新产业,目前已集聚约3000家数字经济企业。
- 生态环境 :普陀区绿化率超过40%,拥有真如公园、曹杨公园等11处国家4A级景区。苏州河21公里岸线全面贯通,形成了“半马苏河”公园等一批活力空间,成为市民休闲娱乐的好去处。
- 教育医疗:教育资源方面,普陀区有上外附属桃李未来实验学校等优质学校 。医疗资源也较为丰富,有普陀区中心医院等医疗机构,为居民提供医疗保障。
- 城市更新 :“十四五”期间,普陀坚持通过城市更新不断优化规划布局。真如地区的“真如之心”“真如翠谷”等项目正在加速推进,将进一步提升区域的城市能级和空间品质。
- 不足之处:普陀区部分区域城市界面较为老旧,虽然近年来城市更新力度较大,但仍有一些老旧小区和厂房有待改造。与上海其他核心区域相比,普陀的商业和产业能级还有提升空间,在高端商业品牌和总部企业集聚方面相对不足。