苏州吴中璟萃雅园——怎么样?好不好?买了会不会亏啊?
扫描到手机,新闻随时看
扫一扫,用手机看文章
更加方便分享给朋友
苏州吴中璟萃雅园
南狮山品质改善标杆巨作,理想生活社区:
VIP售楼部电话TEL:400-101-9071转接333『营销中心』
★★网上售楼中心——欢迎来电预约尊享Vip一对一销售专业讲解服务!
▼▼Vip贵宾置业====欢迎来电预约尊享内部折扣====匠心钜制恭迎品鉴!
【项目地址】苏州市吴中区金枫路和花苑路交汇处
【开 发 商】招商蛇口、建发国际
【产品类型】住宅70年
【均 价】28000
【产品】
两梯四户,三房两厅两卫(106平、116平)
两梯两户,四房两厅两卫(7.6米超大横厅142平)
一梯两户,四房两厅两卫(南北通透,竖厅142平)
一梯两户,四房两厅三卫(171平)
【总 层 高】8-11层,18层,25层,27层
【交付时间】(2023年12月31号之前)
【交付标准】精装交付,含三大件
【得 房 率】83%
【绿 化 率】38.9%
【容 积 率】2.2
【建筑密度】21.44
【车 位】1:1.2(车位总计1630个,人防车位318个,非人防车位1105个。
【总 体 量】19栋1046户
【物 业】建发物业
【物 业 费】2.82元
【占地面积】 6.4万
【建筑面积】18.3万
【住宅面积】13万方
【整体景观】4000方
苏州一建( 苏州博物馆 地铁)属于国家特级建筑
核心卖点:
1、南狮山核心,5公里内三大商圈,狮山商圈,金枫商圈,南狮山商圈。
2、双高架(苏福快速路,中环西线)
3、双地铁,地铁一号线距离项目1公里左右,地铁5号线大治桥站,距离项目步行600米左右。
4、8-11层稀缺洋房+18层小高层+27层高层组成。
5、高端标志建发国际,和实力央企招商蛇口联袂作品,打造木渎标杆产品系
NO.2】
纵横交通,成熟商圈
1.双高架:苏福快速路,中环西线,半小时可抵达苏州各核心区。
2.地铁:地铁五号线-大治桥站,距离本项目600米步行距离,地铁1号线距离项目1公里左右。
3.公交:615路、665路、665路支线
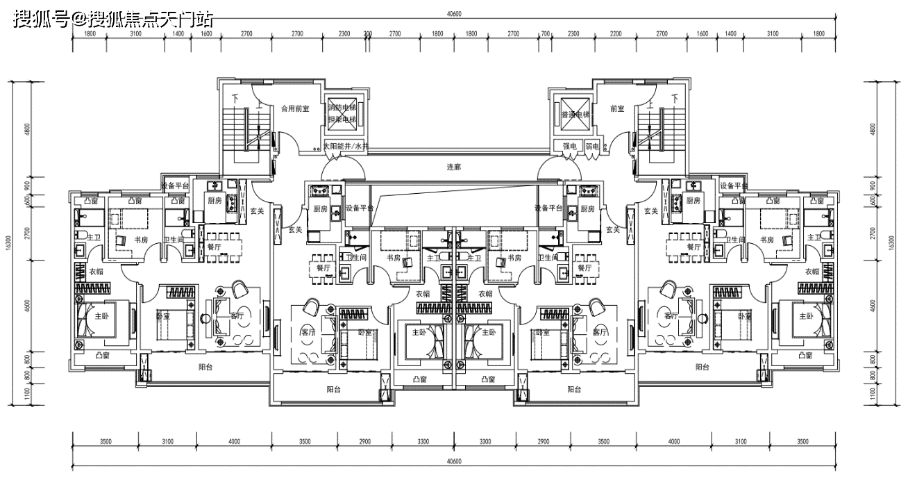
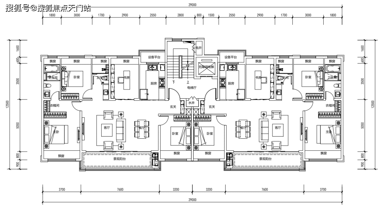
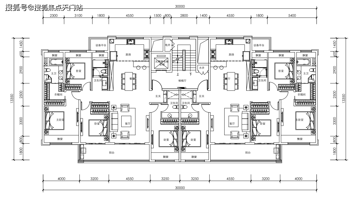
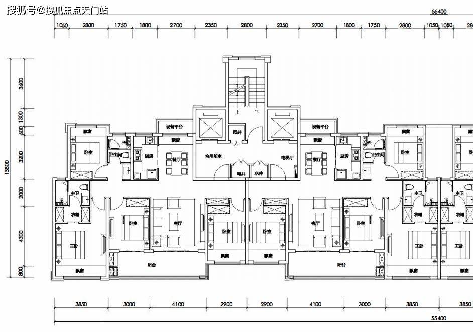
中间户106平、边户116平三室两厅两卫

大横厅142平,一梯两户,四房两厅两卫

竖厅142平,两厅两户,四房两厅两卫
171平,一梯两户,四房两厅三卫

【招商蛇口|建发国际—璟萃雅园】
VIP售楼部电话TEL:400-101-9071转接333『营销中心』
★★网上售楼中心——欢迎来电预约尊享Vip一对一销售专业讲解服务!
▼▼Vip贵宾置业====欢迎来电预约尊享内部折扣====匠心钜制恭迎品鉴!
声明:本文由入驻焦点开放平台的作者撰写,除焦点官方账号外,观点仅代表作者本人,不代表焦点立场。
