国贸虹桥璟上 (售楼处) 首页 -国贸虹桥璟上销售中心 - 环境 - 户型 - 价格 - 地址 - 楼盘详情 - 配套 - 电话 - 交房时间 - 配套 - 电话 - 交房时间
扫描到手机,新闻随时看
扫一扫,用手机看文章
更加方便分享给朋友
国贸虹桥璟上三期
17号线嘉松南路站约700米
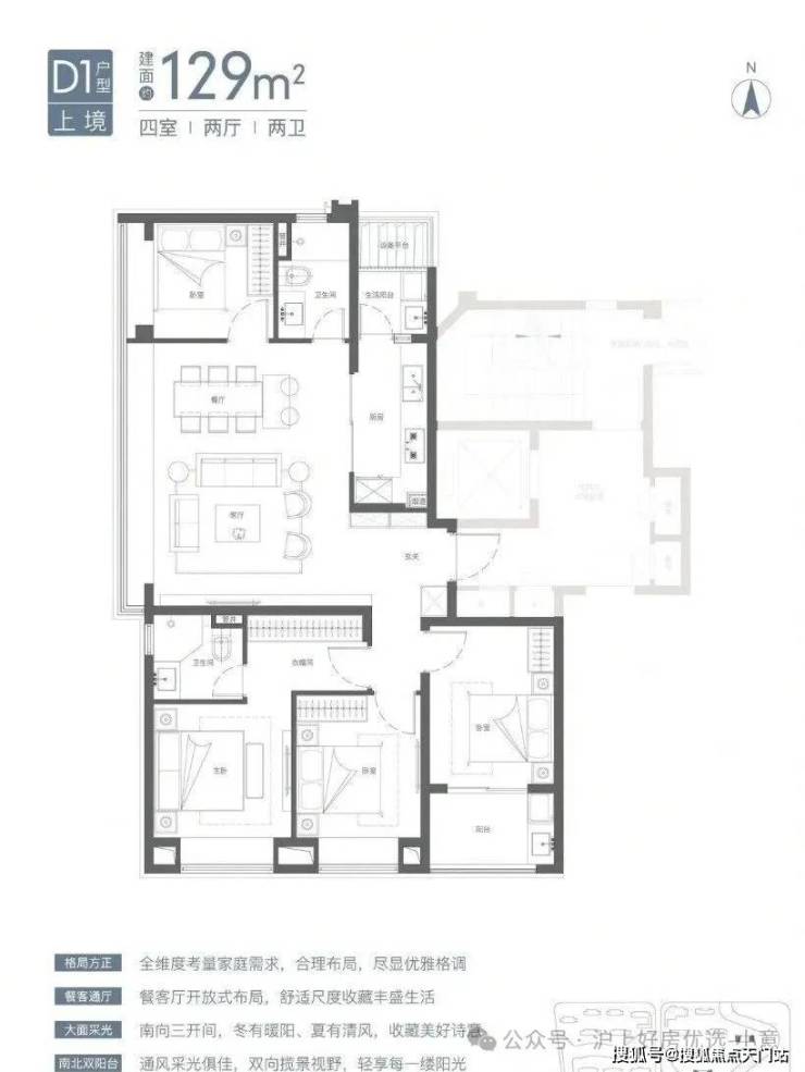
建面约105-129㎡3-4房户型
准现房 房源200套
均价54500元/㎡ 特价约450万起
项目推售详情
【国贸虹桥璟上】由品牌国企国贸地产匠心打造。
作为深耕上海的老牌国企之一,国贸地产近年来已经筑造了多个住宅标杆,例如国贸天悦、国贸佘山原墅和国贸凤凰原等“原系”项目,积累了口碑极高的产品力和交付力。此次在大虹桥,国贸地产在“原系”之上进行全面升级,推出了上海第一个“上系”作品,为购房者带来更高层次的品质和享受。
接着便是由3座住宅岛屿空间和1座公园岛屿空间组成的社区,岛屿由桥梁和水系串联,归家路线也变得生动有趣起来。
效果图
这种天赋对应的是更宜居、更舒适的滨水慢生活,国贸虹桥璟上从环境和氛围感上就区隔了其它项目。
丰富的景观功能性:国贸根据地块的特点,引入“微度假”的概念,不仅打造“休闲氛围”,更营造了“丰富体验”。
比如,三座岛屿社区都有不同主题,并设置了非常丰富的景观节点。
景观示意图
同时,国贸地产还代建了一座约1.8万方的滨河市政公园,以后业主出门除了水系,还有公园,在公园北角还将修建篮球场。
另外还设置8大架空层,聚焦儿童体验、社交阅读、青年运动、老年康养的全龄段社区休闲空间需求。
架空层示意图,仅供参考,以项目最终呈现为准
更加便捷的社区配套:项目其中一个地块自带约1300㎡底商,另一个地块内有约1800㎡菜场,是市面非常难得的生活非常便捷的新房。
菜场效果图
建筑风格遵循少即是多的设计理念,现代而又简约:立面利用大面积玻璃窗+仿石多彩漆,局部层间金属线条,并在首层基座采用人造石材和铝板等装饰材料,提升了建筑整体感和精致度。顶层外挑飘板使得建筑立面体块清晰,层次丰富。
项目推售详情
最新动态,【国贸·虹桥璟上】三期新加推约105-129㎡3-4房,均价54500元/㎡,项目已经开盘,剩余房源特价约450万起,可直接认购!
三期区位示意图
建面约105㎡3房2卫:项目建面约105㎡3房2卫有两种风格(宽厅、竖厅),尤其是宽厅户型,设计格外惊艳。
国贸虹桥璟上建面105㎡3房样板间实拍视频:
罕见宽厅设计:约95%的宽厅设计出现在120㎡以上户型中,而项目在约105㎡面积段就做了宽厅,非常难得,这个户型进入二手房市场将极具竞争力。
宽厅面宽约5.5米,3.5开间面宽共约11.5米,再加上约8㎡的阳台,使得整个家庭的公共区域尺度感十足、功能也更加灵活多变。
全屋六处飘窗:常规户型一般全卧飘窗,一共3处。但项目竟然有6处飘窗,3个卧室和主卫、次卫都设有飘窗,拓展空间和采光效果优秀。
U型厨房、餐厅、客厅、阳台一线联通,南北通透。主卧套房、全卧飘窗、次卫干湿分离也都是标配。
建面约89㎡样板间实景图▼
国贸虹桥璟上建面129㎡4房实际交付视频:
国贸虹桥璟上建面129㎡4房样板间实拍视频:
项目周边配套
声明:本文由入驻焦点开放平台的作者撰写,除焦点官方账号外,观点仅代表作者本人,不代表焦点立场。
