西郊云庐售楼处电话:400-8669-938
编辑

时隔1年,上海终于再次迎来了新政。
在这次新政下,一条前所未有的资产价值分界线正变得愈发清晰——外环线。
为什么偏偏是外环外不限套数?答案是:库存多、压力大,实在是扛不住了!
所以,这场以“放开限购”为核心的政策盛宴,应该被购房人洞察到的信息就是:外环以内的新房才是应该入手的项目!
如果有这么一个项目,既在外环以内,且周边多年无土地供应,又叠加公积金、商贷等多重利好,还是全市范围内为数不多限价盘,那它一定是买房人必抢房!
——西郊云庐,长宁最后一块有联动价的住宅!10.8认筹,样板间现已开放!
编辑

区位效果图
长宁最后的限价盘
西郊别墅区 虹桥路上
「西郊云庐」
建面约104-221㎡户型
联动价12.1万/㎡
售楼处&样板间已正式开放!
10.8认筹!
一房一价表首次曝光!
最新一房一价如下:
编辑

编辑

编辑

编辑

编辑

01 足够优越的土地
一、贵胄之地
永不拓宽的承诺:2007年,上海明确了64条永不拓宽的道路,因其历史文化价值和独特风貌受到最高级别保护。虹桥路,正是其中一员,与安福路、武康路、衡山路、思南路等齐名,共同定义了上海最核心的历史风貌价值。
庞大的风貌区体量:虹桥路的历史底蕴也同样丰厚,面积达约481公顷,拥有16处共42幢优秀历史建筑,是市中心12个风貌区中规模最大的一处。
最后的居所:虹桥路两侧总计151幅住宅用地中,149幅已成现状小区,仅存2幅待开发土地。 其中一幅已售罄。西郊云庐,是虹桥路沿线最后唯一未开发的住宅土地,是真正的“最后一块”可居之地。
值得一提的是,西郊云庐与高净值顶豪圈层为邻。长宁区有众多全市顶豪项目,但西郊的“贵”是全上海独一份。住在西郊别墅区,会天然形成超越行政区划的价值认同!
编辑

效果图
二、核心5公里生活圈
在西郊云庐的黄金5公里范围内,涵盖虹桥商务区、金虹桥商务区等大型办公区;万象城商圈、临空商圈等逛吃游乐社交商圈;串联西郊百联、虹桥天地、万象城、荟聚等核心购物中心。
交通便利:周围有外环高速、虹桥路、哈密路等多条道路;地铁10号线直达新天地、豫园老城厢、南京路、淮海路等城市中心区域。
编辑

示意图
三、宜居典范
2024年年初,长宁区在全市率先开展公园城市引领示范区建设。长宁区绿化覆盖率达到了34.15%,人均公共绿地面积达7.6平方米,均位居中心城区第一。
编辑

图源上海长宁
西郊云庐所在的西郊板块-程家桥街道辖区绿化覆盖率达43.37%。项目周边有约74万㎡上海动物园、约8万㎡西郊宾馆……住宅毗邻公园,不仅能提供优美的景观,更是天然的“氧吧”和温度调节器。
总结而言,住在西郊云庐,是一场将“绿色”从点缀变为核心的舒适生活体验!
编辑

西郊宾馆,图源网络
在以上种种优势之下,西郊云庐还是长宁最后一块有联动价的住宅!
从2024年开始,上海区域地王层出不穷,各环线新房价格明显上涨,内环单价已迈入20万+/㎡大关、内中环12万+/㎡、甚至外环外单价都要预计9+万/㎡······面粉贵,面包自然更贵!
另外,放眼整个长宁,就能发现长宁新房供应极其稀少,2015-2024年整个长宁区新房供应仅1033套,仅占全市的0.11%,不足1%!
在这种背景下,西郊云庐的价格真的香!
编辑

数据源于网上房地产
02 极致舒适的产品
什么样的产品才能配得上这样禀赋的土地呢?
在户型层面,
西郊云庐推出建面约104-221㎡多元户型,多种爆款户型,居家舒适度轻松拿捏!以下面几个户型为例:
1、104㎡户型是功能性与空间的完美平衡,房间数量适宜。三室户型可以满足夫妻、孩子和一位老人/保姆/书房的多功能需求,实现了“一步到位”的家庭结构覆盖。
104㎡3房2厅2卫
编辑

零过道浪费设计,生活动线规划合理;
全卧飘窗+观景阳台,通风、采光、视野都更优越;
约3.9米横厅,尺度感拉满,日常收纳也能轻松安置,传统三房户型面宽约3.5米;
未来二手流通性更强,面积小、功能全、低门槛。自7090政策取消后,新房起始面积大多为120㎡起,比该户型多出约20平,同级别项目毛估一下, 总价也要多出200万了。另一方面,如果选择总价相近的房源, 那房龄势必会比本案老,所以未来这一户型在二手市场上的流通度会很高。
编辑

效果图
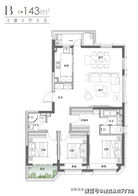
2、143㎡户型,更大的空间尺度和舒适感。这种户型敢于“浪费”空间,用空间来换取心理上的尊贵感和舒适度,这种户型并非普通住宅,而是一种生活方式的宣言。
143㎡3房2厅2卫
编辑

在市面上大多住宅强调多房的功能性时,西郊云庐更注重都是舒适的体验。
动静分离,有效减少了家人间作息不同步的干扰,保障了休息和隐私;
三开间朝南,采光更好,冬季阳光深入,提升室温;
客厅东向视野景观更好,充分发挥景观优势。
编辑

效果图
3、221㎡户型,这是一个可以居住十年、二十年甚至更久的“终极居所”。它能够从容应对家庭生命周期的各种变化,叠加一梯一户一层的设计,提供给业主高品质、私密、便捷且安全的居住体验。
221㎡4房2厅3卫
编辑

一梯一户一层,极致的私密与专属感,无干扰的生活空间;无与伦比的便捷性,省时高效,从公共区域到私家领域的过渡非常清晰且具有仪式感;
四开间朝南,室内通透性极强,典型的方正户型;
动静分离,市面上比较少真正的动静分离户型,这一户型就有效地将生活区和社交区分割开了,保证居家的静谧生活;
观景阳台叠加超大社交空间,在客厅与家人赏景、与朋友闲谈、儿童生日趴都是好选择。
编辑

效果图
项目还有其他户型,充分满足购房者的多元置业需求!
编辑

编辑

编辑

编辑

左右滑动查看更多
还有更多室内细节,
1、内外多重静音设计:
在外部降噪层面,既有政府规划的“静音降噪工程”背书,又融合多种方式达到降噪静音效果,例如高架主线抬高,全影形声屏障,以及最宽20米的降噪垂直绿化带等等。
关于生活降噪层面,西郊云庐在楼板、排水、户门、电梯、家电等多个细节处,都精心配置了降噪静音的能效。
例如,系统门窗是德国百年品牌诺托·弗朗克(或同等品牌)定制的四玻+两腔+一胶,静享居家生活;
全球知名电梯供应商和服务商OTIS电梯(或同等品牌),大大减少电梯运行中产生的震动,为住户创造了一个安静的用梯环境;
编辑

示意图
中央空调地暖(两联供),采用三菱(或同等品牌),创新静音技术。常规运营状态(开关机),根据不同匹数,噪音严格控制不超过31dB;纯地暖模式下,创新静音盒设计完全阻断内机运行声音,室内噪音接近零分贝。
编辑

静谧楼板示意图
2、高标准装标:
配备进口利勃海尔冰箱(或同等品牌);
世界500强,美国NASA指定供应商霍尼韦尔 (或同等品牌)新风除湿及全屋智能化系统;
入户摩根智能门,按键镶嵌施华洛世奇水晶,兼备安全防护和高颜值两大功能;
项目还是上海首个使用迈巴赫、法拉利、阿斯顿马丁、宾利、劳斯莱斯同款豪车领域顶级声学技术的豪宅!
还包括各类奢石的应用……
编辑

新风系统示意图
03 公区是舒适人居的验金石
公区是住宅无法重写的底层代码——它不像户型能砸墙改造,但却在每天的生活细节里持续影响每一个人。一个设计滞后的公区,会让业主在未来的每一次归家动线、邻里社交、社区活动中,持续支付隐形成本。
绿化公园+园林景观,散步也像在度假!
于外:在西郊云庐社区西侧,是项目为政府代建的约4000㎡绿化公园;
于内:西郊云庐在社区中心位置,设计了纵向景观轴线。
社区特别设置 单独人行出入口,将社区内景观景观与社区外绿化公园有机串联,组成为多样化的生态空间,这里也将成为业主茶余饭后的散步与休闲好去处。
编辑

效果图
社区容积率仅2.0,共7栋楼11-13层小高层,还采用了 错落式的楼栋铺排,最大限度地保障了业主的观景视野和采光,还形成了丰富的空间层次, 让园林景观更能渗透到每栋楼前。
编辑

效果图
会所,是西郊精英圈层的第二个社交场域!
西郊云庐将打造私人会所,配备有健身房、室外会客厅、私宴厅及研习室等功能,将家的空间延伸至此,成为高端的社交平台。
编辑

西郊云庐售楼处电话:400-8669-938
编辑
