中環置地中心·望雲售楼处电话/中環置地中心·望雲首页网站/中環置地中心·望雲地址/中環置地中心·望雲在售户型/营销中心/最新价格
扫描到手机,新闻随时看
扫一扫,用手机看文章
更加方便分享给朋友
2024年10月25日华润以底价拿下宝山区大场镇W12-1301单元32-04、11-01地块,随着二期地块的顺利出让,标志着整个丰翔路站TOD项目中环置地中心的版图由此补全!

望雲TOD新品上市
百万方底盘之上的进化论
望雲TOD,以“无界之城”的构想,在城市与自然之间、烟火与诗意之间,打开了一种无界共生的城市空间。以百万方TOD底盘为核心,实现互通互联,实现“人、站、产、城、商、居”一体化全盘高阶塑造,共建一座“地上一座城,地下一座城,云端一座城”的立体之城。

望雲TOD,以百万方TOD的复合逻辑为底,回应城市的未来之问,为理想人居提供了最具当代表达的答案。以“无界”为原点,从TOD+Walk、TOD+Park、TOD+Mixc、TOD+Luxury四大维度,构筑一座具备未来感的无界之城。从交通的高效到空间的复合,从居住的舒适到产业的聚集,一切关于理想生活的想象,在这里浓缩为现实的触感。

TOD+Walk无界真正TOD地铁串联地库入户,与城市无缝衔接
地库直联15号线丰翔路站,接驳1/2/3/9号线,无风雨归家系统,从容穿越城市的四季风雨,构建真正意义上的地铁无缝链接地库入户体验。通道连廊还连通街区商业、万象汇商业,实现无界联通,随时随地,享受烟火生活。

秉承“商务生态缔造者”的品牌理念,中環置地中心以一流的办公产品和全新的商务配套,升级城市商务印象,打造科创新城一站式TOD商办综合体办公楼宇,为企业发展赋能,激发城市、区域、产业的活力,推动片区产业转型升级。

TOD+Mixc 以街区编织城市,以万象聚合生活
以万象汇引领的区域型购物中心示范作品,聚焦周边高知客群、科创园精英等人群,打造引人入胜、充满期待、无尽探索的,值得共享的消费体验场所,目标成为区域消费者品质生活方式的全新必选地。



从生活街区到万象商业,再到150米超高层办公,以立体链接系统构筑完整漫步环线,不止串联了丰富的公共空间与资源,更塑造了多元活力的城市场景,一站式整合都市的生活体验场景,进阶为北上海商业和商务新中心,引领生活的迭代新生。

TOD+Park 将最珍贵的自然留白,交还给城市与人
这不仅是一场关于生态的表达,更是关于生活哲学的构建。推窗即见绿意,外有约13万方走马塘滨水绿廊与南大中央公园(在建中),内有定制园林与归家仪式感空间。在快节奏的都市肌理中,为松弛生活预留一片天然的后场。内外双园,营造如度假般的轻盈日常,让自然成为生活的背景音。

TOD+Luxury 中心之上万象主场 限量美学作品
在住宅营造上,品质人居与缤纷商业、创新办公和谐共融共创,以社区生活与滨水绿廊为载体,以蓝绿湾区、公园都芯为理念,打造上海“复合型、生态性、识别性”俱佳的,具备号召力的海派国际生活范式。

项目本次的边套设计了大量的飘窗、转角飘窗、主卧270度落地窗等设计,所以整个立面运用了大量的玻璃,构建出了非常极致的窗墙比。

同时,南侧还运用了铜色的铝板和浅色金属板,这样立面风格,再搭配上塔冠的造型,实在太抓眼球了。

景观方面,项目由翊象设计主创设计团队操刀设计。
整个社区以 主景花园联动 自然教室、 休闲交谊与 艺术空间,形成婉转游园的酒店式迎宾水院。
同时,以 超奢戏水池与 尊享休闲会所为核心,联动 架 空层,串联休 憩廊架与 横向端景,打造核心奢享场景。
另外,整个项目拥有包 括泛会所(戏水池、健身场所)、场景化网红架空层泛会所等全维社交场景。

据悉,中環置地中心·望雲加推86套房源,建面约108-165㎡3-4房产品。建面约165㎡公园头排全景舱新品上市,建面约133㎡绝版户型最后收官。过会均价67477元/㎡,其中52套108㎡户型为6幢楼中间套,均价6305元/㎡,总价590万起!首排2幢165㎡户型32套,均价72059元/㎡,一路之隔马塘公园,一览众山小!目前已开启认购!
示意图,仅供参考
加推房源全套户型图如下:
108㎡的入门级三房,起步门槛相比润府提高不少。
这个户型,入户玄关收纳、双开间的阳台、宽大的U型厨房,和套房主卧带步入式衣帽间+全景式飘窗,是比较突出的亮点;
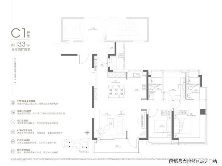
133㎡可以说是108㎡的进阶款,同样的三房两厅两卫,大面宽横厅、半开放式厨房设置岛台,加上主卧L型飘窗,再一次验证了华润置地豪宅化的产品思路。
此次加推位于6#号楼,楼下即是景观戏水池,凭借奢享园林景观的上佳位置,随时随地亲子嬉戏,无遮挡享绿意景观,真正的推窗见景。超阔面宽,墅级采光面,270°全景飘窗,无遮挡全景飘窗,开阔视野,引窗外繁华与自然入室;LDBK+X宽厅,构造大客厅,妥帖收藏家人的一切欢然时光。
来到165㎡个户型,已经上升到上海主流的大户型改善面积段,但看设计思路,可以看出是为满足多胎家庭成长而服务的。
近日中寰置地中心·望雲开放了165㎡样板间,楼典实地参观感受一番下来,整个户型动静分区的布局空间感很出众,人性化收纳设计细节很多,几乎每个房间都做了开窗面极大的飘窗,另外,装标也在润府的基础上升级了不少。
首先推开入户门,映入视线的是LDKB一体化客餐厅,家庭的核心活动区域,整个户型动静分区的布局一览无余,无走廊设计,空间利用率极高,走下来显得十分敞阔。
其次是收纳空间非常丰富,玄关、餐边柜、厨房、卫浴、主卧、阳台六大功能空间,随处可见。
比如,厨房配了珍珠白吊柜、三组抽屉式拉篮合理搭配,调料架收纳、大容量踢脚抽、清洁用品收纳区,米面粮油、碗碟刀叉都可完美隐身。
下图蓝色为收纳区域,绿色部分即飘窗区域:
入户门厅也非常讲究,定制级的玄关柜,包括鞋柜+收纳柜+卡座+衣帽区,整齐有序。
此外,像私享的入户梯厅可以做家庭小型储藏库;沙发后面的空间可以摆放大体量壁柜;大面宽阳台两侧也可作为定制储藏空间;
整个户型的飘窗面积总和达到了约14.3㎡。
其中主卧的270°转角飘窗就有约5.7m²,通过与外立面的结合,直接做了梳妆台和储物柜,拓展了飘窗的实用性。
同时室内精装交付标准上,也再度升级,从墙面、地板到厨卫品牌,都是国内外一线品牌。

188户型2梯2户,有独立的电梯厅。4房3卫设计,还是3明卫,这两点还是不错的。
客餐厅净面宽约5.45m、进深约6.85m左右。北侧是厨房和家政间,南侧是净面宽约5m的阳台。
南次卧也是套间设计,而且也是明卫,设计上还是用了心思的。卧室部分净面宽约2.9m、进深约3.7m。根据测算,可以放置6尺的床(宽度约1.8m)+2个床头柜(宽度约45cm/个)+衣柜(深约60cm)是可以的。
主卧转角落地窗+飘窗,也算是非常少见的了。净面宽约3.6m,不算进门的衣柜,进深大约5.7m左右。根据测算,可以放置宽约2m的床+2个床头柜(宽度约45cm/个)是可以的。
中环置地中心
地处宝山南大板块!作为宝山4个重点发展区域之一,南大同时也是上海北部最大的待开发区域之一。
待开发,也就意味着尚未建成!但不管是从规划还是位置来看,南大都是上海少有的能兼顾产业和居住的板块之一。
首先南大被称为中心城区一块不可多得的“大衣料子”,总开发体量约540万方,包含两大TOD及约250米天际地标,规划绿地面积占比高达43%(来源:上海宝山)!
和其他区域边拆边建式的零散开发不同,而是统一拆改后再集中规划,这样的开发形式,也决定了这里的规划从一开始就会相对完整且高能级。
比如它的产业先行,整个区域内分布了不少的科创产业。
而且,从2035总体规划中,其实也能看出来,南大定位很高,属于全市重点推进的整体转型区域,是宝山建设上海科创中心主阵地的核心载体。
所以不管是放在全上海还是宝山,这都是一块举足轻重的产业基地。
而除此之外,前面也提到,南大板块规划的绿地面积占比高达43%。特色公园40余个,人均绿色面积约39.38㎡,是上海人均绿地面积的约3倍。未来可能会是一个超越碧云的大型生态居住区。(数据来源:上海宝山区政府官网)
也就是说,在这个重点产业区域,其实早就考虑到了与生活相融的问题。
讲真,在环线外的空白区域这样规划不是难事,但在上海的中环附近,近乎预留了一半的土地给到绿化,给到生活,这算的上是一件吃力不讨好的事儿。
但南大有宜人的生态,而且还是高规格。
【中环置地中心·望雲】 位于南大智慧城C位,周边生活配套非常成熟且距离相对较近,未来随着板块规划逐步兑现,地段价值将会更加凸显。
交通配套方面:北侧丰翔路、西侧祁健路、东侧汇丰路已建成通车,07-01地块南侧丰皓路(祁健路-工学路)计划2024年开工建设。
项目距离15号线丰翔路站步行可达,日常出行非常方便。
商业配套方面:项目本身就是一个自带商业的TOD,华润置地规划以万象系列融汇轻奢时尚、休闲生活、运动潮流等多元业态,打造北中环“都市商业新旗舰。
除了未来的万象系商业(规划中),周边还有经纬汇、聚丰购物广场、上坤城市广场、山姆会员店等,购物还是比较方便的。

医疗资源方面:项目周边有两大三甲级医院为健康保驾护航,本别是:仁济医院宝山分院和华山医院(宝山院区)。

教育资源方面:周边荟萃南大实验幼儿园、宝山区南大实验学校、上大附小、上大附中、上海大学附属学校、上海大学等全龄化教育资源。
声明:本文由入驻焦点开放平台的作者撰写,除焦点官方账号外,观点仅代表作者本人,不代表焦点立场。
