售楼处电话:400-936-9938(已认证)

黄浦区核心老西门板块
华润置地+南房集团联手打造
「士林润园」直接认购!
建面约300-500㎡合院别墅
附赠面积有内外庭院、阳台、露台
地下室两层 实际使用面积很大
总价约:6500万~1.65亿
售楼处线上火热预约中!

「士林润园」 这个全新项目的遥远前一期姊妹盘——士林华苑一期其实是黄浦区豫园板块的一个2007年竣工的次新楼盘,由黄浦国资委旗下的南房集团开发打造,项目北面复兴东路一路之隔就是复地雅园和璞玉one。 在黄浦区,南房集团的另外一个开发的典型住宅就是五坊园。

项目附近远望豫园和陆家嘴视野实拍
士林华苑二期是老西门街道旧城改造项目 ,项目一期2007年竣工,二期在2021年7月发布了房屋征收补偿协议生效公告。2021年12月华润入股,项目由南房和华润共同联合开发!



根据规划, 士林华苑二期需要“落实风貌保护要求,深化地块布局和建筑方案设计,同步实施建设相关公共服务配套”。


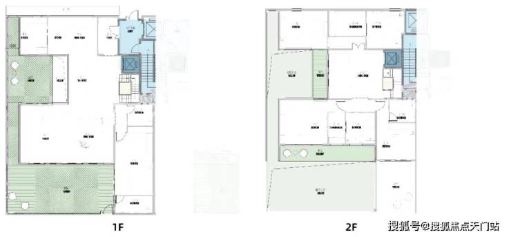
【士林华苑】 二期地块包含大量历史文化保护建筑, 产品打造的是面积段约210-500㎡合院别墅,附赠面积有内外庭院、阳台、露台、地下室两层,实际使用面积很大,总价预约6200万到1.65亿。
首开28套风貌别墅,总价6000万元起,最贵突破亿元,首开即售罄,并且之后连续加推,依然热度不减,成为上海购房市场新热点。


再让我们看看周边全龄配套: 项目位于黄浦区核心,左拥新天地、淮海中路,右抱陆家嘴,北倚人广、外滩,南侧是一路连缀的豪宅区。



顶尖商圈、潮流文艺街区,甚至上海地标们、未来城市封面都将是士林润园的生活场域。 加上豫园这百年来传承的文化底蕴,仅看现有的地段价值,士林润园已足够吸引人。

从地段来说,位于内环内黄浦区的豫园板块,妥妥的城中核心, 距离地铁站也不算远,在8/10号线老西门站和9号线小南门站之间。



黄浦区核心老西门板块备受瞩目的【士林华苑】二期「士林润园」已售近60套!在售建面约300-500㎡合院别墅,附赠面积有内外庭院、阳台、露台;地下室两层 实际使用面积很大;总价约:6500万~1.65亿!士林润园地块包含大量历史文化保护建筑,将打造叠拼+合院的产品。



叠拼效果图👇

L型合院的效果图👇














360㎡合院户型示意图👇

360㎡下叠边套示意图👇

236㎡叠拼3-5F大平层示意图👇







『士林·润园』 的室内样板房由傅厚民设计,这也是他全球作品中的第一个风貌别墅项目。




室内拥有高挑的天花板和宽阔的客厅,能够让空间显得更加开阔。 此外,合理的空间布局和细节设计也使得每个功能区都显独立性又相互连接,保证了空间尺度又兼顾了实用性。

餐厅的设计巧妙融合了老上海的经典元素,圆形餐桌和橘色皮质餐椅在色彩上既现代又充满活力, 顶部的水晶吊灯造型灵感来自上海市花“玉兰花” ,既增添了空间的华丽感,又巧妙地融入了上海的地域特色。



复古简约的家具和细节装饰,在空间中自然融入,同时避免过度繁复。这样的设计既 保留了历史的厚重感,又契合现代人的生活需求。








从庭园看向别墅, 保留的老山墙、砖楣和门头,再加上悬挑阳台和层层露台 ,这种传统风貌带给人一种重见历史的感慨,又有温馨、宁静的现代舒适感。


风貌配套会所: 士林润园的会所位于项目的核心区域,与整体园区的景观、居住区有良好的联系。

会所也由傅厚民设计,室内通过诸多细节,展示连接过去与现在的对话。例如,特别设计了一条结合石库门拱门元素的通道,让人们在这里就能感受到一段传承的历史记忆。

整个会所的布局开放、流畅,动静分明,让人一进门就能感受到宽敞与舒适。

休息区是一个充满私密感的空间,这里摆放着各种款式的复古式组合沙发,仿佛将人带回到了上海的旧时光。


会所内的泳池上方做流畅且立体的吊顶线条,造型现代且富有层次感。 这样的设计不仅提升了空间的视觉效果,更营造出一种轻松、悠闲的度假氛围。

健身房的设计也同样充满了细节。黑框玻璃门的复古韵味,和现代健身空间的功能性做到了完美结合。

车库也极具品质,色彩和风格都延续了海派的经典气质。

士林润园借鉴大族院落的设计,打造了一个完美融合历史与现代的院墅社区。 103席合院沿袭“一宅一园”的旧时格局,并完整保留 53 处原址构件,建成一座“城市 DNA 库”。
老宅中的历史细节也巧妙融入现代设计,例如张家族宅的界石变成了墙角雕塑,胡氏墨厂的雕纹化作山石屏风。

除了宅院,士林润园还通过 “润园八景” 的设计,把上海深厚的历史和文化融入每一寸空间。拄颊映、文开园、亭桥街、棹湾处、云间诗、申之华、海上花、小桥头,这些景观设计基于上海历史文化中的典故和逸事。
项目效果图如下



















士林润园 属于黄浦区老西门街道旧城改造项目,项目一期于2007年竣工,项目北面复兴东路一路之隔就是【复地雅园】和【璞玉one】。

从1291年元代设县,到2035年规划诞成中央活动区CAZ核芯样本。历时730余载老城厢,始终是上海城市的心脏所在。 随着一江一河城市中心战略的帷幄与城市中芯的复苏与更新,更是将成为上海城市的“中芯之芯”。

项目占位于老城厢主轴中芯之上,左手历史,右手繁华,这里既代表上海历史的特质空间,又代表上海现代生活的品质空间。
籍由精研老城厢的历史与风华,活化城市深厚人文底蕴,存续街巷肌理与建筑特质, 以当代设计审美对海派建筑风貌的匠心修缮,旨在传承城市文脉、打造卓越人居环境,定制理想人居空间,更将探索、兑现城市之心的恢弘愿景,以城市更新下的人文宅院巨著,予城市更新的未来,著立新的不朽。

交通方面: 周边交通网络成熟,总结起来就是“一桥三环四线五隧道”,其中四线就包括了8号线老西门站、10号线的豫园站、9号线的小南门站及14号线的豫园站,从项目坐地铁出发,畅达上海各个区域。


老西门地铁站
商业方面: 500米的范围内香港名都城、豫园商圈、复兴艺术中心,人民广场、新天地、外滩、南京路步行街都在2km范围,顶级商业环绕。

香港名都城
教育方面: 周边的公立学校有复兴东路三小、上海实验小学、蓬莱路二小等,初中有光明初级中学及市十、市八,康德及永昌两所九年一贯制的民办学校等。

蓬莱路二小
医疗方面: 上海九院、瑞金医院、仁济医院西院、黄浦区中西医结合医院、曙光医院西院、复旦大学附属妇产科医院等众多享誉全国的医疗资源。

复旦大学附属妇产科医院

黄浦核心老西门「士林润园」建面约300-500㎡合院别墅,总价6500万起!
售楼处电话:400-936-9938(已认证)
