南山璞缦售楼处即将开盘,32席建面约198㎡改善大宅,48901元/㎡起价,户型丰富,配套设施完善。周边有虹桥枢纽、罗宾森广场、花都荟等商业和医院,为居住者提供全方位服务。项目实景图展示,拥有恒温泳池会所和水幕下沉式园林,户型多样。
南山璞缦
售楼处电话:400-1787-138(已认证)
营销中心热线:400-1787-138(欢迎致电)
售楼处预约电话:400-1787-138☎☎☎如有问题可来电咨询,预约销售专员,一对一为您服务!
过去十年,嘉定新城这片热土上,上万套新房面市,但真正能称得上改善大宅的200㎡以上户型数量非常少。
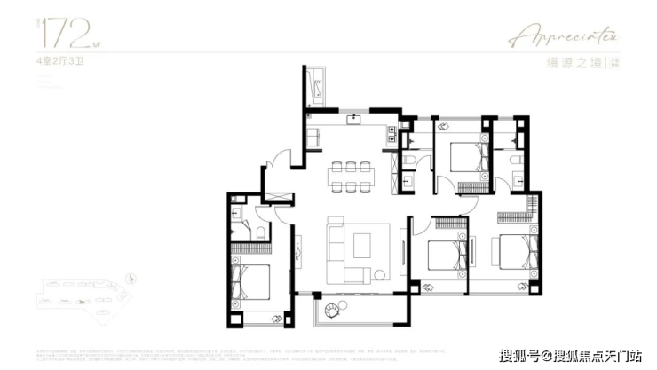
现在,嘉定主城高定海派缦系住区—— 南山·璞缦,带着建面约198㎡的改善大宅来了, 总共32席。与此同时,项目还推出了建面约143㎡四房三卫、建面约172㎡四房三卫等,过会均价约48901元/㎡,共计102套房源,即将开盘。

点击输入图片描述(最多30字)
加推楼栋分布示意图
不仅如此,项目的产品品质一直被大众认可,展示的实景示范区也是细节满满。

点击输入图片描述(最多30字)

点击输入图片描述(最多30字)

点击输入图片描述(最多30字)
项目实景图
嘉定新城 | 南山·璞缦
项目地段
交通方面,项目周边有上海绕城、沪嘉高速、嘉闵高架及沪宜公路、沪翔高速等纵横路网,畅享虹桥枢纽以及市区;11号线+嘉闵线(在建中)也将嘉定与市区紧密衔接。

点击输入图片描述(最多30字)
实景图
商业方面,项目北侧就是花都荟、盒马鲜生,聚合一站式广袤业态商业;周边有罗宾森广场、州桥老街、宝龙广场、嘉定日月光广场、嘉定百联购物中心等醇熟商业体,能够满足各类购物需求!

点击输入图片描述(最多30字)
实景图
医疗方面,嘉定区中心医院、嘉定区中医医院、嘉定妇幼保健院等综合医院,医疗资源完善,为居住者的健康保驾护航。

点击输入图片描述(最多30字)
实景图
项目实景
南山璞缦拥有建面约1500m²恒温泳池会所及落差达约10米的水幕下沉式园林。

点击输入图片描述(最多30字)

点击输入图片描述(最多30字)

点击输入图片描述(最多30字)

点击输入图片描述(最多30字)

点击输入图片描述(最多30字)

点击输入图片描述(最多30字)
实景图
户型:建面约105-198m²3-4房

点击输入图片描述(最多30字)

点击输入图片描述(最多30字)

点击输入图片描述(最多30字)

点击输入图片描述(最多30字)

点击输入图片描述(最多30字)

点击输入图片描述(最多30字)
南山璞缦
售楼处电话:400-1787-138(已认证)
营销中心热线:400-1787-138(欢迎致电)
售楼处预约电话:400-1787-138☎☎☎如有问题可来电咨询,预约销售专员,一对一为您服务!
房产证与不动产证
房产证:2015 年前的房产所有权凭证,仅登记房屋信息。
不动产证:整合土地、房屋等不动产信息,更全面,是现行产权证明。