信达海上院子售楼处-信达海上院子楼盘详情正式上线!销售中心呈现小区实景、户型设计、价格详情及地址周边配套一览
扫描到手机,新闻随时看
扫一扫,用手机看文章
更加方便分享给朋友
新江湾是上海传统豪宅区,毗邻五角场城市副中心,拥有9.45平方公里的原生湿地以及约15万㎡的新江湾湿地公园生态稀缺资源。信达泰禾·上海院子位于新江湾城核心位置,家门口就是10号线殷高东路站,步行可达。
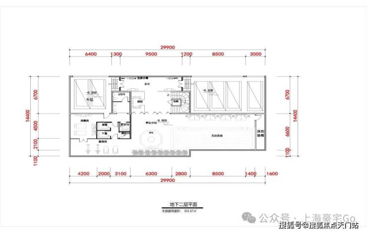
「上海院子」独特的院落式社区打造,融合了“院子系”特点、福州三坊七巷和上海弄堂形制,规划了“三街九坊十八巷”。且以“大门、坊门、院门、宅门”四进系统层层递进。项目精益求精,如吊顶天花雕刻的是龙纹和祥云的图案,寓意吉祥安康。
声明:本文由入驻焦点开放平台的作者撰写,除焦点官方账号外,观点仅代表作者本人,不代表焦点立场。
