金茂璞元售楼处电话:400-8669-938
编辑

金茂TOP级璞系+科技住宅
「金茂·璞元」
建面约130-172㎡房源
二批次即将加推
编辑

8月24日,虹口内环内新盘金茂璞元首开,均价16.6万/㎡,99套房源26分钟全部售罄;首推99套建面约126-184㎡3、4房,收获173组认购,认购率175%,未触发积分。
编辑

最新消息!
金茂上海璞系壹号作品---金茂璞元二批次预计国庆前后加推,实景示范区即将开放!将推建面约130-172㎡房源!
编辑

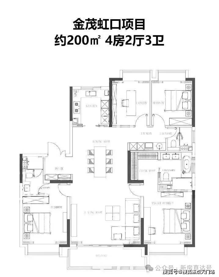
户型图如下:
(过程稿仅供参考,最终以实际为准)
编辑

编辑

编辑

编辑

样板间实拍:
从2015年上海的第一个金茂府开始,每一个金茂的新盘都会毫无意外地热销,金茂也成了上海楼市中口碑最硬的品牌之一。
这次,金茂在自己的虹口内环地王地块,拿出了作为 金茂高端产品系璞系上海首作---「金茂璞元」,它将以 “国际范、东方韵、艺术感”的美学造物,重新定义上海高定人居价值标杆!
编辑

示意图,仅供参考
但更令人震撼的是「金茂璞元」“返璞归真”的匠心!
从流出的设计手稿看来,未来社区内会将平面景观垂直化,点缀名木绿植,整个意境更生动。
示意图 仅供参考
项目与周边的地缘特性充分融合,交通、景观、商业,各司其职又相互融合。
采取架空层、景观节点、下沉庭院的相互配合, 一步一景。
编辑

示意图 仅供参考
10米高差的立体园林初见一角,能够看到“入境、观景、绿岛、秘境”四个景观点位,整个下沉式庭院串联了 一主一辅的两条主景观动线, 横看成岭侧成峰的城市峡谷,名不虚传。
编辑

示意图 仅供参考
西安的“璞系”产品也是通过园林设计打动市场的,但相信 「金茂璞元」将会再次升维作画!
编辑

西安璞逸曲江实景图
能超越金茂府的,只有金茂“璞系”
金茂用16年深耕,积攒下数万组客户访谈和深度问卷,由此建立了对高净值客群的深刻洞察,最终打造出“金茂府”这一国内地产“科技住宅”殿堂级别的产品。
这种“长期主义”的坚守与践行,也在全国29座城市,78座金茂府,收获众多的拥趸。 金茂的二手房价格,一直高出板块的二手房价均值。
编辑

数据源自链家,仅供参考
能超越金茂府的,只有金茂自己。
此次, 作为2025年金茂一号作品,金茂拿出了自己“金玉满堂”四个产品系列中的TOP级“璞”(玉)产品。
如果说金茂府代表着公认的豪宅,那么「金茂璞元」就代表着更高阶的“豪宅中的豪宅”,金茂31年不断自我超越的巅峰呈现。
编辑

示意图,仅供参考
从 「金茂璞元」身上,你会清楚看到金茂的野心,这是一个很难与上海本土的主流豪宅放在一起比较的项目。无论是它的立面、景观、亦或是户型等方方面面,都 在以全球顶豪坐标系定义它的价值。
编辑

示意图,仅供参考
立面方面,「金茂璞元」选用 陶板作为立面材料, 结合大面玻璃及铝板,打造高端住区形象。相比老式豪宅的做法,这种源自传统陶瓷工艺的材料,既能呈现自然材料的温暖肌理,又有远超铝板的耐久性与可定制性,是今天国际高端住宅的最in选择。
比如,纽约中央公园435米高的的111 West 57th Street(铅笔塔) ,创新性采用陶瓦镶金银丝工艺,勾勒出羽毛般的轮廓,让美式复古与现代技术完美结合。
图源网络,仅供参考
编辑

迪拜今年建成的地标景观, 442米高的Ciel Tower(云端塔)外立面采用了从底部深邃蓝过渡到顶部银白的渐变陶板,可以模拟沙漠日出时的天空色彩变化。
编辑

图源网络,仅供参考
金茂的璞系也一直注重从在地从人文的角度去诠释作品,每个作品都浸润着独有的东方气蕴,一璞一高定。
如在北京的璞系立面采用“丹韵银律”的京韵文化元素。
编辑

图源网络,仅供参考
成都的璞系立面汲取了陶瓷与蜀竹的元素。
编辑

图源网络,仅供参考
此次上海「金茂璞元」的立面又会如何阐述上海的底色,我很期待。
景观方面,将传统平面绿化转化为垂直的多层次园林空间,整个下沉庭院空间加上架空层约14米,这 接近5层楼高度的超级挑空,打造出隐秘的“城市岛屿”。
从现有公开的意向图中,可以窥见居于其中的震撼体验。
编辑

示意图,仅供参考
这种垂直花园的做法,在上海的豪宅圈里同样找不到对标,倒是颇有新加坡樟宜机场的森林奇观味道。
编辑

图源网络,仅供参考
公区方面,小区配有 超豪华会所和架空层。不同于大多数豪宅中规中矩的做法,它的底层空间采用大量玻璃幕墙设计,带来了极为舒适的景观通透感和自然光照,使住宅犹如生长在森林之中。
编辑

示意图,仅供参考
户型方面,全面迭代, 不论大小户型,都是一梯一户,并以“场景化户型设计”重新定义居住逻辑。
130㎡ | 法式艺术与东方气韵的碰撞
不同于传统高端住宅,金茂璞元的创新之处,正在将室内空间美学覆盖至公区空间,成为家的美好延伸,兼具功能与美学。并且采用无连廊设计,进而提升居家的隐私。双开门是业界大宅的一种标准,即便130㎡户型,金茂璞元亦坚持采用铸铝装甲子母门,连门把手皆以定制璞系族徽辉映。
编辑

开阖之间,诠释着“单扇门走一人,双扇门走礼仪”的礼序,也闪耀着金茂对知遇者的舍得。
「玄关的艺术」
作为家中的第一道风景线,玄关柜皮革饰面,具有温润的肌理感,与玄关背板“烟雨江南”、地面“香奈尔灰”相得益彰。
从天然木饰到名贵奢石,木石相映成趣,不经意间泛起生活的温润。
编辑

「约6.7米大横厅设计」
震撼感官的气度,来自超级横厅设计,开放式厨房与横厅无界联动,呈现出超大空间的奢阔气度。
编辑

在130㎡户型空间里,深浅交替的色系,为空间注入典雅意境,强烈风格背后,是看不见的苛求极致。
为一块奢石弧形工艺,投入翻倍的成本,整屋坚持用一种昂贵的木饰面贯通始终,从而实现整体艺术风格的统一。
编辑

客厅背景墙的“烟雨江南”天然大理石,不同于传统平面背景墙,通过弧度及立体的造型处理,并镶嵌不锈钢材质,对于金茂而言,比奢石昂贵的,是让奢石真正与空间气场融为一体。
编辑

空间的本质,归根到底是承载着生活的内容,在生活方式上,璞元亦在追求一种全新的理念,将更多空间赋予在客餐厅公区空间,倡导家庭成员的和谐、美好相处,这种源于国际视野的居住理念,亦缩影着璞元骨子里的“国际范”。
「奢侈品级厨电」
除了追求美学与细节,璞元全屋厨电配置皆为顶级品牌。
超配嘉格纳七件套,涵盖灶台、油烟机、洗碗机、蒸箱、烤箱、冰箱等,这一具有300多年历史的顶奢厨电品牌,也被誉为“厨电界的劳斯莱斯”。
采用怡口直饮水、铂浪高水槽及龙头,水槽口内嵌厨余粉碎机,内里使用硬度堪比钻石的石英石材质。
厨房区域同样铺设了毛细管网,处处都彰显着金茂追求高品质生活的初心。
编辑

「全维收纳哲学」
为使厨房成为「真正幸福之地」,璞元在各个细微之处倾注关怀,从地柜拉篮系统,到上柜系统,再到抽屉分格系统,浅抽与深抽搭配,让整个厨房空间,既百变,又充满秩序。
编辑

编辑

编辑

编辑

厨房与餐厅打造半开放式格局,隐形推拉门既可以隔绝烟火,平时收入墙内让空间一体、开阔大气。
编辑

编辑

定制橱柜为意大利高端品牌威乃达,实现家居健康的同时,兼具高奢品质。
极简轻奢的入户鞋柜,成为归家后安顿身心的第一个空间,也是第一抹彰显品味的风景线,分区合理,配备鞋柜精灵,让空气更加清新。主卧衣柜,特别设计首饰&领带收纳空间,一物一格,分区收纳,优质皮革材质,诠释璞元所倡导的「轻奢温暖生活格调」。
内观·ANANDA
172㎡ | “奢而不露,雅韵自生”的空间美学
居住空间,不仅承载着居者的格调与品位,也应当对生活方式带来升维。
璞元在金茂五舒十二大科技系统进行迭代升级,并且引入华为鸿蒙智家系统,科技+智能的双硬核之作,让业主真正拥有一处会思考的家。
编辑

「超级家庭中心」
约 6.9 米横厅面宽,尺度阔绰、气场自成;洗衣机与烘干设备置于独立家政间,不占用阳台空间,让横厅更通透大气、起居更从容舒适。
编辑

客厅大面通铺星耀灰石材,搭配芬迪蓝奢石电视背景墙,地面、墙面天然纹理的相互映衬,交织出一种隐而不奢的东方气韵,为超级尺度感的家庭活动空间,平添一份雅韵。
所选用的芬迪蓝大理石,以其独特的纹理和色彩组合,被誉为“石头的奢侈品”。
编辑

172㎡厨房区域同样超配嘉格纳七件套,配置奢侈品级厨电,只为将居家氛围感提升至“Next level”。
编辑

厨房地柜拉篮、上柜全维收纳系统,与双开门大尺度冰箱、多功能烤箱等厨电奢品,以高端性能和合理格局,承载米其林级家宴。
编辑

编辑

编辑

「奢华卫浴世界」
在璞元的每一刻,皆是一场奢华的生活旅程。
卫浴空间,配备兼容艺术感与实用性的劳芬壁挂马桶,当代的卫浴龙头配合金茂独有的全屋净水系统,越级的配置,予生活无可挑剔的奢适体验。
无论是被誉为“龙头花洒界的劳斯莱斯”的当代,还是被誉为"卫浴界的瑞士手表"的劳芬,璞元希望采撷全球顶级奢品,献给具有世界阅历的生活者。
此外,璞元亦贴心为女人带来极致呵护,镜柜内置美妆恒温冰箱,提升女主人护肤及化妆的舒爽体验感。
「独立家政间」
兼顾每一种需求,贯穿在璞元产品设计的始终。
一方独立家政空间,洗烘套装从容安置,大空间储物柜设计,诠释功能主义奢华。
「舒风卫生间」
璞元科技系统采散分散回风,户内气流组织更好,让空气清新如初。
夏季卫生间和厨房因回风带来凉感,温度体感更舒适,如同璞元追求的一般,兼顾每一种未被满足的生活需求。
高度国际化的「塔尖圈层」
“血统不会影响一个人的未来,但交际圈会”,这是巴菲特说的。
百年前,虹口就已经是旧时的市中心,旧时的商贾富豪、医生教授等上流人士就在溧阳路、山阴路、多伦路等地建起了洋房。
编辑

图源网络,仅供参考
那时的虹口就是海派文化的发祥地、鲁迅、 瞿秋白、郭沫若、茅盾等文化名流圈子都曾在虹口生活。
编辑

图源网络,仅供参考
时至今日,瑞虹新城经过30年的运作,已经有了自己鲜明的高净值圈层标签。
小编咨询了板块内近两年入市新盘的多位老销售,还走访了周边的中介,听到了几乎一致的声音:
近年入手的业主几乎都是各行各业中的高知人群,多是知名的行业领袖,私营业主,外企高管,医生,教授与体制内领导…...
不止如此,板块的国际化浓度也非常高。据统计,这里有15%的外籍居民,汇集了30多个国家和地区的外籍人士,超过70%的居民或子女有留学背景。这种国际化豪宅圈层属性上海屈指可数。
编辑

瑞虹社区活动,图源上海虹口公众号,仅供参考
圈子好比巴菲特的通讯录,别人搬不走也换不来。
选择「金茂·璞元」,就是在选择“圈子”。毕竟最好的资源不在饭局,而是下楼即遇生意伙伴;最好的人脉不是向上社交,而是从小就是朋友。
千金买邻,大抵如此。
瑞虹板块---30年一路向上成就出的豪宅区
近三十年来,上海的顶级豪宅在不断更替换新,有很多曾经炙手可热的板块逐渐淡出人们视线,就像今天很少会有人再会谈起古北、联洋、碧云……
新天地和瑞虹是浦西唯二的,在二三十年里一直站在C位,房价不断攀升,持续吸引市场的关注的豪宅板块。
它们都是同样起源自瑞安的区域旧改整体开发,因坚持长期主义而焕发出熠熠生机。
瑞虹的1-10期都是瑞安自己做的商品房社区,全新的城市界面塑造出了纯粹的豪宅圈层。
编辑

图源网络,仅供参考
30年前,瑞虹一期就是上海第一个精装修,第一个拥有会所的住宅小区。
20年前,瑞虹二期率先在上海引进园林住宅的概念。
10年前,从瑞虹七期开始豪宅化,定制奢品精装、私人豪华会所的概念备受市场追捧。
之后的八、九、十期个个都是当时顶尖的豪宅盘。其中,九期的二手成交价一度接近20万(十期限售)。
如今,展现在「金茂璞元」面前的,是历时三十余年的积淀,集住宅、商业、办公、教育于一体的170万方内环内最大豪宅区,各类醇熟的生活资源是很多正在大兴规划的豪宅板块所无法比拟的。
编辑

示意图,仅供参考
交通方面,周边有4/8/10/19号线四条轨交环绕,其中 10号线邮电新村站就在家门口,直线距离仅约70米,4站即可直达南京东路站。这种TOD级的轨交资源不止在瑞虹板块内,甚至在整个浦西内环都是极为稀缺的。
图源百度地图,仅供参考
编辑

开车10分钟就能到陆家嘴、外滩、北外滩和南京东路等核心商圈。
编辑

图源百度地图,仅供参考
商业方面,这里有 约55万㎡的瑞虹天地是一大亮点,由新天地原班团队设计,以星星堂、月亮湾、太阳宫为核心,引入多家首店品牌,成为了当下炙手可热的时尚地标。
编辑

图源网络,仅供参考
生态方面,约17万方的3A级景区和平公园+浦西内环内面积最大的鲁迅公园,构成了市中心从未有过的大型生态绿肺。
编辑

图源网络,仅供参考
医教配套方面,板块内有尚外附小幼儿园、上海新宏星小学、华师大一附中初中部多所优质学校。第一人民医院、新华医院2家三甲医院,是上海优质医教资源最密集的区域之一!
除了自身高浓度的配套, 瑞虹南面紧贴着的定位为“世界会客厅”的北外滩,将与外滩和陆家嘴共同构成世界级城市中央活动区CAZ的“浦江金三角”。
这里840万方建筑规模比肩陆家嘴,将会是未来上海最繁华的所在,它 会给「金茂璞元」未来价值成长空间带来极大的确定性。
编辑

图源网络,仅供参考
如果说 北外滩是 “上海未来的面子”,那 「金茂璞元」就是“上海未来的里子”。
金茂璞元售楼处电话:400-8669-938
编辑
