建发海宸销售中心 (营销中心) 欢迎您 - 楼盘详情 | 户型图 | 价格 | 地址 | 周边配套 - 建发海宸首页网站
扫描到手机,新闻随时看
扫一扫,用手机看文章
更加方便分享给朋友
最新消息:新江湾城核心位置低密水景大盘,建发房产上海首座灯塔作品---【建发海宸】加推房源均价115985元/㎡,今日开盘,目前可直接认购,线上预约,折扣多多!
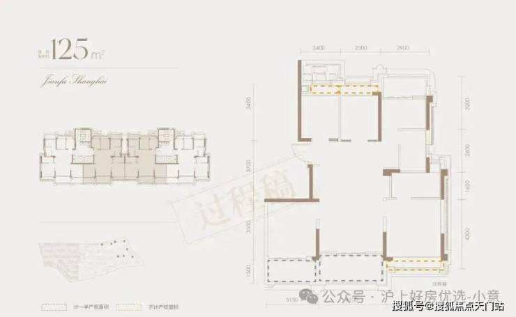
建面约125㎡4房神户型
建发海宸三开间朝南建面约125㎡4房户型的总价仅约1200万级!
3房变4房,建面增加32㎡,总价更便宜,品质更领先,如此劲爆的价格,如此深厚的安全垫,让项目这个户型注定成为爆款!
项目建面约125㎡三开间朝南户型居然做到了3阳台+4飘窗的附加空间。
经过专业建筑师的测算,3阳台的面积(估算)足足有13.06㎡,4飘窗的面积 (估算) 也有 4.74㎡ 的面积,加上这些灵动空间,该户型的得房率已经超过了市面上绝大多数洋房产品!
而且4个卧室,主卧南接大面积飘窗,自带卫生间,豪华套房配置,次卧1和次卧2“借助”2个阳台,尺度也很阔绰。书房配备北向飘窗,作为儿童房完全够用,这就真正实现了4房真改善的意义,适配越来越多的二胎或三代同堂家庭。
也正是因为各个功能间可以向外拓展空间,让该户型的公区尺度大到惊人。
经过专业建筑师测算,该户型的客厅南向开间达到3.9米,入户门到公卫的距离足足5.35米。
客餐厅的进深加上阳台进深高达8.55米,造就了媲美140-160㎡户型也难见到的超大公区,将大宅气度展露无遗,也能盛放各类大家族聚会。
125㎡户型仅仅在客厅公区,就打造了三处 整面墙的柜子来做收纳,除了传统的收纳柜,还有隐藏推拉零食架、内嵌式吧台等创新收纳方案,从衣服鞋帽,到大件行李箱再到家用清洁工具,都有专属的安置空间。
厨房的收纳空间几乎能填满整个厨房空间,这些收纳空间不是随意塞满的,而是根据日常烹饪习惯的频率来贴心规划。
主卫镜柜收纳空间,满满的一面墙,还贴心配置了一个可调节温度的美妆冰箱 ,女主人看到了很难不心动!
【建发海宸】位于新江湾正芯,隔壁就是今年成交价超过13万/㎡的上海院子,门口就是湿地公园和年轻潮派 的MEET678,北面在建的是交大附中杨浦实验学校。 新江湾城精华资源全部触手可及!
项目直线距离10号线约500米,直线距离在建20号线约700米,直线距离18号线约700米,3轨交汇的格局让项目直通五角场、南京东路、新天地、虹桥枢纽,加上中环北扩,直达市中心、纵横上海,出行、出游说走就走。
项目位置示意图仅供参考
整个地块三面都被绿地与河道包裹,尤其是项目东侧,公共绿地、滨河景观带、城市生态走廊此地排列,天然具备 构建多层次景观视域的条件。
项目鸟瞰效果图,非交付标准仅供参考
2条景观轴线跃然纸上:
· 一条沿着河岸和绿廊如玉带缠绕;
· 另一条如轴线笔直贯穿,是约200米长的繁花长廊。
两条轴线在滨河水岸交汇,形成了全上海罕见的“超级景观通廊”。
建发海宸规划示意图
其实在拿地之初,我就断定建发海宸的品质一定是引领级的。
首先,新江湾低密豪宅盛名在外,业主对品质的挑剔无比苛刻,全市知名的豪宅区再出新盘,品质感拉满是必然的。
其次,建发房产2007年踏入新江湾,如今已经是第六次落子,相信没有人比他更深谙这片土地的密码。
项目效果图示意图,仅供参考非交付标准
海派建筑与文化,展现着上海这座城市的底蕴和腔调。
【建发海宸】将 东方隽永韵味与西方美学理念相融合,淬炼出了一种独特的精神风貌,让人在摩登与复古的交织中领略时光的美妙。
项目大门口标配的铜狮庄严中透出几分摩登腔调。主入口的铜艺精雕大门上,建发特别邀请了百年品牌“老凤祥”掐丝珐琅非遗大师陈徐奇,以掐丝珐琅工艺打造门钹,精致典雅。门厅以上海的标志白玉兰为造型,勾勒出摩登与飘逸并存的气质。
环抱式落客区灵感来自意大利许愿池,细看池底却铺陈龙鳞祥纹,含蓄传递东方祥瑞。
项目效果图示意图,仅供参考非交付标准
项目效果图示意图,仅供参考非交付标准
项目效果图示意图,仅供参考非交付标准
项目效果图示意图,仅供参考非交付标准
项目的花园更是将精致二字诠释的淋漓尽致。灵感择取上海著名海派名园,每一处皆有独特的气质与故事, 秋日阳光走在如此唯美的园林中,尊崇感和松弛感油然而生!
项目效果图示意图,仅供参考非交付标准
项目效果图示意图,仅供参考非交付标准
项目为业主配置了 约4200㎡摩登会所与约1370㎡泛会所空间,整体面积超5 500㎡,远超市面上豪宅会所的尺度,你能想到的会所功能这里都能实现!
建发海宸会所规划示意图
更令人惊奇的是,虽然规模如此之大,但在功能划分上面建发却精细到不行。
比如相较于豪宅会所标配的泳池,建发海宸特意搭配了儿童泳池和泡池。再比如豪宅会所标配的私宴厅,建发海宸特意预备了2个,让大家族的社交宴请更加从容。
项目效果图示意图,仅供参考非交付标准
项目效果图示意图,仅供参考非交付标准
项目效果图示意图,仅供参考非交付标准
项目效果图示意图,仅供参考非交付标准
现在很多人谈起新江湾城,初印象会是生态很好,低密产品多,然后离五角场很近。这些当然是新江湾城的优势,但不是核心竞争力。
比起市区所有板块,新江湾城独一条秒杀所有:它形成了一条完整的高端人才生态链!
新江湾城实景图,图片来源于网络
上海乃至全国的顶级高校,复旦大学、同济大学、上海财经大学都在新江湾城。这些顶级学府营造了新江湾城浓厚的人文氛围,并为板块产业发展提供了源源不断的人才资源。
示意图,图片来源于网络
产业方面:新江湾城作为杨浦超大规模产业园区的落户地,肩负着上海建设全球科创中心、跻身全球城市的历史使命,向来有“东方硅谷”之称。
板块内坐拥湾谷科技园、复旦软件园、创智天地3大产业园, 集中了科技金融机构460家、科技型企业7000余家,其中耐克、IBM、AECOM、西门子、李尔、硅谷银行等跨国公司地区总部、研发中心纷纷落户!
示意图,图片来源于网络
教育资源方面: 新江湾城的基础教育非常拔尖,同济附属、上财附属、交大附中杨浦实验学校(在建中)、上音实验学校、复旦二附、中福会幼儿园、德法学校等名校为新江湾城居民的子女提供着优质的中小学教育!
商业配套方面:新江湾城与五角场商圈一衣带水, 合生汇、万达广场、百联又一城等,想怎么逛就怎么逛。
医疗资源方面:板块内有嘉会国际医疗中⼼、上海长海医院、上海市肺科医院、市东医院新江湾院区(在建)等国际医疗和三甲医疗。
示意图,图片来源于网络
示意图,图片来源于网络
生态资源方面:新江湾城绿化覆盖率高达约60%,新江湾城公园来一场桨板夜划,安徒生童话乐园探秘丑小鸭村庄,SMP滑板公园体验“贴地飞行”,新江湾城生态走廊观鸟拍鸟,这样适逸的生活没人可以拒绝。
声明:本文由入驻焦点开放平台的作者撰写,除焦点官方账号外,观点仅代表作者本人,不代表焦点立场。
